Omschrijving

Ruime tussenwoning met aanbouw, vier slaapkamers en nette badkamer
Deze ruime tussenwoning uit 1991 biedt 129 m² woonoppervlakte, een royale uitgebouwde woonkamer, vier slaapkamers en een nette badkamer. Dankzij energielabel B, een praktische indeling en een verzorgde tuin op het zuiden is dit een comfortabele gezinswoning op een fijne locatie in Ede.

Ligging
De woning ligt in een veelzijdige en gunstige woonomgeving, ideaal voor gezinnen en iedereen die waarde hecht aan een combinatie van natuur, voorzieningen en bereikbaarheid. Op loopafstand bevinden zich diverse scholen, het winkelcentrum Stadspoort en het ziekenhuis.

Voor natuurliefhebbers liggen bossen en groene gebieden in de directe omgeving, perfect voor wandelen en fietsen. Ook zijn er meerdere speelplekken in de wijk, wat bijdraagt aan het kindvriendelijke karakter. Het centrum van Ede is eenvoudig per fiets bereikbaar en station Ede-Wageningen zorgt voor uitstekende trein- en busverbindingen. Met de A12 en A30 in de nabijheid is ook de bereikbaarheid met de auto uitstekend.

Pluspunten
+ Energielabel B
+ Royale woonkamer
+ Uitbouw op begane grond én eerste verdieping
+ Nette badkamer met inloopdouche
+ Vier wel bemeten slaapkamers
+ Ruime tuin met stenen berging
+ Openbaar parkeren voor de deur
+ Tuin op het zuiden


Indeling
Begane grond
Via de entree heb je toegang tot zowel de keuken als de woonkamer.
De keuken is praktisch ingericht, beschikt over diverse inbouwapparatuur en veel opbergruimte. De houten fronten geven de keuken een frisse en warme uitstraling.

De woonkamer is ruim opgezet en dankzij de royale aanbouw ontstaat er veel leefruimte. De indeling is praktisch en via de openslaande deur heb je direct toegang tot de tuin.

Eerste verdieping
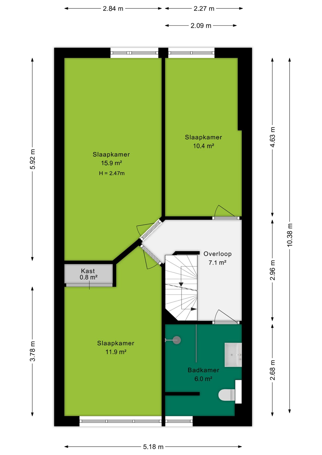
Op de eerste verdieping bevinden zich drie goed bemeten slaapkamers van circa 10 m², 12 m² en 16 m². Alle kamers zijn voorzien van daglicht. Deze verdieping is aan de achterzijde uitgebouwd, wat zorgt voor extra ruimte.

De badkamer heeft een nette uitstraling en is uitgerust met een inloopdouche, wastafelmeubel, toilet en designradiator.

Tweede verdieping
Via de trap bereik je de zolderverdieping. Hier bevindt zich de wasmachineaansluiting en een vliering voor extra opbergruimte.
Verder vind je hier een vierde slaapkamer van circa 10 m² met dakraam. Deze kamer is functioneel in te delen en ook uitstekend geschikt als werk- of hobbykamer.

Buitenruimte
De ruime achtertuin ligt op het zonnige zuiden en is fraai aangelegd. Er is volop ruimte om meerdere zitplekken te creëren. Dankzij het zonnescherm over de volledige breedte van de woning kun je hier zowel van zon als schaduw genieten.
Achterin de tuin staat een stenen berging, ideaal voor fietsen, gereedschap of extra opslag.

Samenvatting
Een ruime en praktische tussenwoning met aanbouw, vier slaapkamers en een moderne afwerking. De combinatie van ruimte, een verzorgde tuin en de gunstige ligging nabij scholen, winkels, natuur en uitvalswegen maakt dit een ideale gezinswoning in Ede.

Koopovereenkomst:
Bij de verkoop zal een standaard NVM-koopovereenkomst worden gehanteerd.
Bij woningen ouder dan 20 jaar worden de volgende clausules opgenomen:

Asbestclausule
Ouderdomsclausule

Bij aankoop zonder financieringsvoorbehoud geldt een termijn van zes weken na het opstellen van de koopovereenkomst voor het storten van de waarborgsom of bankgarantie.

Deze informatie is met zorg samengesteld. Er wordt geen aansprakelijkheid aanvaard voor eventuele onvolledigheden of onjuistheden. Alle opgegeven maten en oppervlakten zijn indicatief.
+ toon meer
deze woning is Verkocht

Churchilldreef 39 Ede

Churchilldreef 39

6716 HK, Ede
Ditters open huis: 5 april 2025 10:00 - 12:00 uur
Landelijke Open Huizen Route NVM: 5 april 2025 11:00 uur - 15:00 uur
Vanaf€ 445.000 k.k.

Schakel een aankoopmakelaar in.

Snel handelen helpt je jouw droomhuis te bemachtigen. Zo vergroot je de kans dat je er op tijd bij bent.
Ede
verkocht

Of maak vrijblijvend een zoekprofiel aan.

Vergelijkbare woningen

Hypotheken

Onafhankelijk hypotheekadvies

  • Ligt jouw droomhuis binnen handbereik?
  • Wil je jouw huidige hypotheek verhogen?
  • Is er hypotheekruimte voor verduurzaming?

Blijf op de hoogte

Ontvang als eerste updates over nieuw aanbod en mis geen enkele kans om jouw droomwoning te vinden.

Gratis waardebepaling of verkoopgesprek

Met de vrijblijvende waardecheck weet je snel waar je aan toe bent. Onze makelaars kijken naar de lokale markt en vergelijkbare woningen in jouw buurt om een goede schatting te geven.

Realiseer al jouw woondromen met Ditters

Wij zijn een team van gedreven vastgoedexperts met een passie voor het maken van verbindingen – tussen kopers en verkopers, huurders en verhuurders. Met een frisse kijk op de makelaardij combineren we expertise met creativiteit. Onze makelaars luisteren écht en nemen de tijd om jouw wensen te begrijpen.


Bij Ditters sta je er niet alleen voor. We denken met je mee, begeleiden je in elke stap en zijn altijd bereikbaar voor vragen. Neem gerust contact met ons op – we helpen je graag verder!