Omschrijving

Dit appartement bevindt zich aan De Gaullesingel 99 in Ede en biedt een ruime woonkamer, een lichte keuken, een multifunctionele kamer, een slaapkamer, een fijne badkamer en een zonnig balkon op het oosten. Daarnaast is er een handige berging in het souterrain aanwezig.

Op loopafstand vind je winkelcentrum Stadspoort, waar je al je dagelijkse boodschappen kunt doen. Ook het ziekenhuis Gelderse Vallei, het openbaar vervoer en de uitvalswegen A12 en A30 zijn snel bereikbaar. Bovendien ligt Landgoed Hoekelum op fietsafstand, waar je kunt genieten van mooie wandelingen in het bos.

Indeling:
Tweede verdieping:
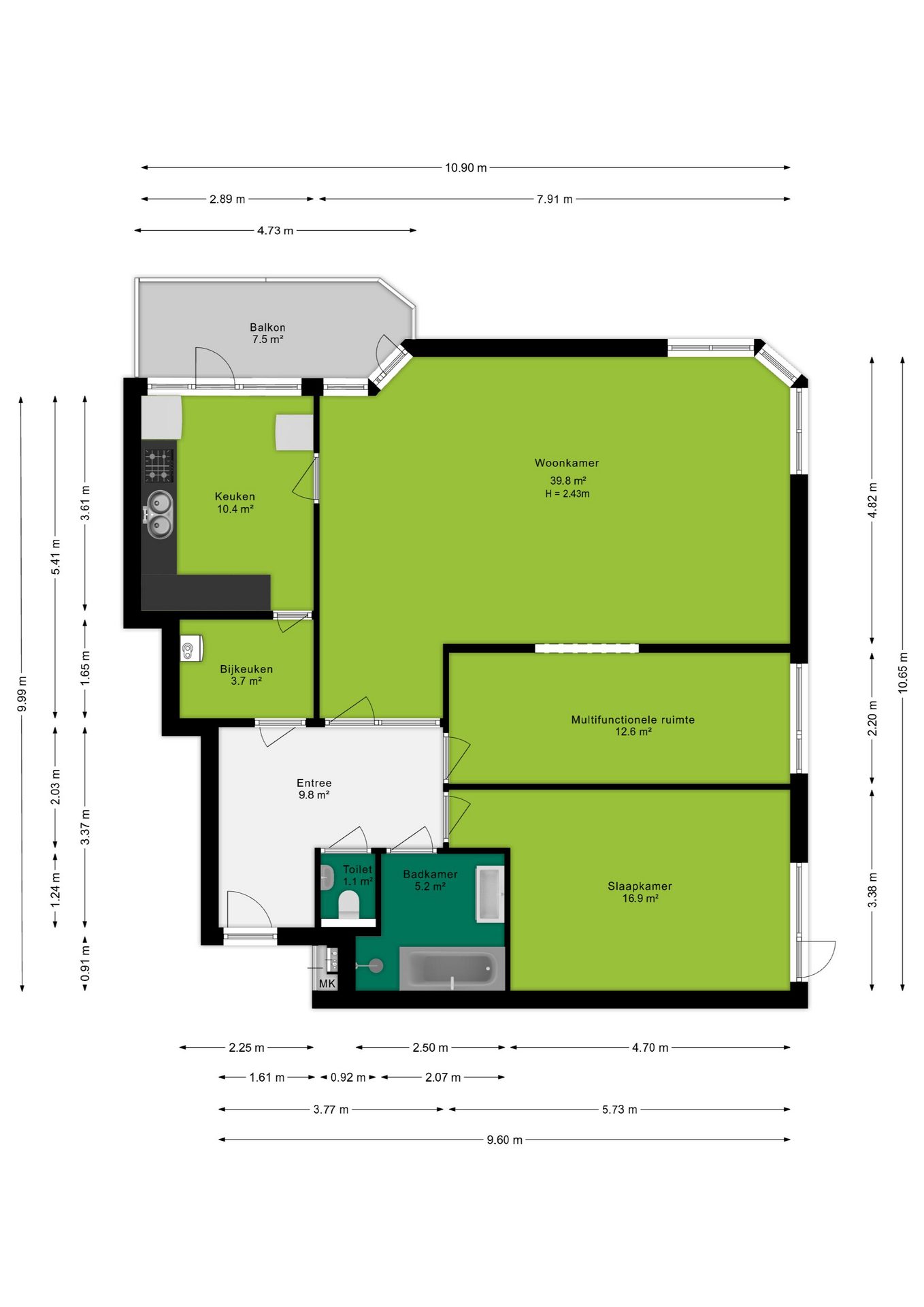
Via de ruime entree bereik je de riante woonkamer van 39,8 m². Deze ruimte beschikt over verschillende raampartijen welke zorgen voor genoeg lichtinval. Er is genoeg ruimte voor een fijne hoekbank en verschillende zithoekjes. Het eetgedeelte bevindt zich hier ook. De naast gelegen ruimte van 12,6 m² is via een deels doorbroken muur ook direct te bereiken via de woonkamer. Deze kan dienen als kantoor of bijvoorbeeld hobby ruimte, of je zou deze muur weer dicht kunnen maken wanneer die weer als slaapkamer kan gaan dienen.

Vanuit de woonkamer bereik je de dichte L-vormige keuken van 10,4 m², uitgevoerd met witte kastjes en een donkerwerkblad en tevens voorzien van diverse inbouwapparatuur zoals: gasfornuis, afzuigkap en oven. De deur welke toegang verleent tot het balkon zorgt voor de nodige natuurlijke ventilatie. Vanuit hier is ook een bijkeuken te bereiken van 3,7 m².

De slaapkamer van 16,9 m² is te bereiken via de entree, voorzien van veel daglicht en genoeg ruimte voor een grote kledingkast.

De badkamer van 5,2 m² welke volledig is uitgevoerd met witte tegels is voorzien van een wastafelmeubel, ligbad en een inloopdouche. In de naast gelegen ruimte bevindt zich het toilet.

Buitenruimte:
Het appartement beschikt over een 7,5 m² balkon op het oosten, dat zowel via de woonkamer als de keuken bereikt kan worden. Dit maakt het tot een ideale, zonnige plek om van te genieten.

Naast de woning zelf beschikt het appartement over een berging van 5,8 m² in het souterrain.

Pluspunten
+ Gelegen op de tweede verdieping
+ Riante woonkamer van 39,8 m²
+ Balkon op het oosten
+ Nefit C.V. ketel (2022)
+ Volledig geïsoleerd
+ Externe berging
+ Centrale ligging nabij voorzieningen, scholen en uitvalswegen.

- Bij de verkoop zal er een standaard NVM koopovereenkomst worden gehanteerd. Bij woningen welke ouder zijn dan 20 jaar, worden de volgende clausules opgenomen in de koopovereenkomst:
- Asbestclausule;
- Ouderdomsclausule.

Koopovereenkomst:
Koop je de woning zonder voorbehoud van financiering? Dan zullen wij een termijn hanteren van 6 weken na het opstellen van de koopovereenkomst voor het storten van de bankgarantie/waarborgsom.
+ toon meer
deze woning is Verkocht

De Gaullesingel 99 Ede

De Gaullesingel 99

6716 LG, Ede
Ditters open huis: 5 april 2025 10:00 - 12:00 uur
Landelijke Open Huizen Route NVM: 5 april 2025 11:00 uur - 15:00 uur
Vanaf€ 425.000 k.k.

Schakel een aankoopmakelaar in.

Snel handelen helpt je jouw droomhuis te bemachtigen. Zo vergroot je de kans dat je er op tijd bij bent.
Ede
verkocht

Of maak vrijblijvend een zoekprofiel aan.

Vergelijkbare woningen

Hypotheken

Onafhankelijk hypotheekadvies

  • Ligt jouw droomhuis binnen handbereik?
  • Wil je jouw huidige hypotheek verhogen?
  • Is er hypotheekruimte voor verduurzaming?

Blijf op de hoogte

Ontvang als eerste updates over nieuw aanbod en mis geen enkele kans om jouw droomwoning te vinden.

Gratis waardebepaling of verkoopgesprek

Met de vrijblijvende waardecheck weet je snel waar je aan toe bent. Onze makelaars kijken naar de lokale markt en vergelijkbare woningen in jouw buurt om een goede schatting te geven.

Realiseer al jouw woondromen met Ditters

Wij zijn een team van gedreven vastgoedexperts met een passie voor het maken van verbindingen – tussen kopers en verkopers, huurders en verhuurders. Met een frisse kijk op de makelaardij combineren we expertise met creativiteit. Onze makelaars luisteren écht en nemen de tijd om jouw wensen te begrijpen.


Bij Ditters sta je er niet alleen voor. We denken met je mee, begeleiden je in elke stap en zijn altijd bereikbaar voor vragen. Neem gerust contact met ons op – we helpen je graag verder!