Welkom op Jan Th. Tooroplaan 84, een karakteristieke hoekwoning in het hart van Ede-Zuid. Deze ruime woning combineert een fijne leefomgeving met een uitstekende bereikbaarheid. Zo zit je op een steenworp afstand van het station, de groene bossen en het winkelcentrum Spindop.
Stap binnen en ontdek de woonkamer op de begane grond, compleet met airconditioning om ook op warme dagen een fris en aangenaam binnenklimaat te bieden. Vanuit hier bereik je direct de royale tuin, compleet met een gezellige veranda die uitnodigt tot lange zomerse avonden. Daarnaast beschikt de tuin over een ruime berging, ideaal voor opslag of als plek voor uw hobby’s.
De woning telt drie slaapkamers. Een bijzonder pluspunt is de lange oprit die voldoende parkeergelegenheid biedt voor meerdere auto's. Verder is de locatie van de woning onweerstaanbaar: in de geliefde wijk Reehorst profiteer je van basisscholen, middelbare scholen, sportfaciliteiten, tal van horecagelegenheden en een divers aanbod aan winkels in de directe omgeving. Dankzij de gunstige ligging nabij de A12, A30 en N224 rijd je in een handomdraai naar omringende steden, terwijl station Ede-Wageningen u verbindt met Arnhem, Utrecht en verder.
Kortom, ben je op zoek naar een woning waar rust, ruimte en bereikbaarheid perfect samengaan? Dan is Jan Th. Tooroplaan 84 de ideale plek. Maak snel een afspraak voor een bezichtiging en ervaar zelf de unieke charme van deze bijzondere woning in Ede!
Enkele pluspunten van de woning:
+ Drie slaapkamers;
+ Veel parkeerruimte;
+ Airconditioning in de woonkamer;
+ Ruime tuin;
+ Veel bergingsruimte;
+ Tuinhuis in de achtertuin.
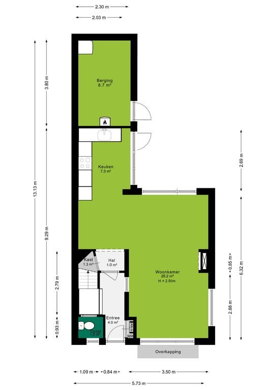
Begane grond
Bij binnenkomst in de woning betreed je de entree met een meterkast en een apart toilet. De woonkamer straalt een warme en uitnodigende sfeer uit dankzij de houthaard, die niet alleen voor gezelligheid maar ook voor een aangename warmte zorgt. De kamer is voorzien van grote ramen aan zowel de noord- als zuidzijde, waardoor er gedurende de hele dag veel natuurlijk licht binnenkomt en een aangename leefomgeving ontstaat.
De keuken, bereikbaar via een klein halletje dat tevens toegang biedt tot een praktische trapkast, is ingericht met houten kastjes die een klassieke uitstraling hebben. Deze ruimte is uitgerust met diverse inbouwapparatuur, waaronder een gasfornuis, afzuigkap, oven, vaatwasser en koelkast.
Aangrenzend aan de keuken bevindt zich een aangebouwde berging, een handige ruimte waar de Cv-ketel is geïnstalleerd en waar je tevens de aansluiting voor de wasmachine vindt. Deze berging biedt extra opbergruimte en draagt bij aan de functionaliteit van de woning.
Eerste verdieping
Op de eerste verdieping vind je een overloop, een badkamer en drie slaapkamers. De overloop is voorzien van een handige kast en biedt toegang tot de vlieringtrap. De badkamer is volledig betegeld en uitgerust met een douche en een wastafel. Dankzij een raam aan de noordzijde profiteer je hier van natuurlijk licht en goede ventilatie.
De hoofdslaapkamer bevindt zich aan de zuidkant van de woning en heeft airconditioning. De slaapkamer beschikt over een charmant balkon, perfect om te ontspannen en van de zon te genieten. De aangrenzende slaapkamer aan de zuidzijde ontvangt eveneens veel natuurlijk licht en kan ook gebruikt worden als werkruimte. De derde slaapkamer bevindt zich aan de noordkant en beschikt over een groot raam dat zorgt voor veel lichtinval, evenals een ingebouwde kast voor extra opbergruimte.
Vliering
Via een vlizotrap kom je op de vliering die ideaal te gebruiken is als bergruimte.
Tuin
Aan de zijkant van de tuin is er volop parkeerruimte beschikbaar, wat ideaal is voor gasten die met de auto komen. De achtertuin, gelegen op het noorden en erg onderhoudsvriendelijk.
Achterin de tuin bevindt zich een aparte houten berging, perfect voor het opbergen van tuingereedschap, fietsen en andere benodigdheden. Daarnaast vind je er een charmant tuinhuis met een uitnodigende veranda. Deze veranda biedt een beschutte plek waar je heerlijk kunt ontspannen, uit de wind en toch genietend van de zon. De combinatie van praktische voorzieningen en sfeervolle elementen maakt de tuin tot een veelzijdige en aangename buitenruimte.
Bijzonderheden
Verwarming: CV ketel, Nefit smartline HR;
Warm water: CV ketel, Nefit smartline HR;
Isolatie: Dubbelglas;
Tuinligging: Noorden
Aanvaarding: In overleg.
Koopovereenkomst:
Bij de verkoop zal er een standaard NVM koopovereenkomst worden gehanteerd. Bij woningen welke ouder zijn dan 20 jaar, worden de volgende clausules opgenomen in de koopovereenkomst:
- Asbestclausule;
- Ouderdomsclausule.
Koop je de woning zonder voorbehoud van financiering? Dan zullen wij een termijn hanteren van 14 dagen na het opstellen van de koopovereenkomst voor het storten van de bankgarantie/waarborgsom.
Deze informatie is door ons met de nodige zorgvuldigheid samengesteld. Onzerzijds wordt echter geen enkele aansprakelijkheid aanvaard voor enige onvolledigheid, onjuistheid of anderszins, dan wel de gevolgen daarvan. Alle opgegeven maten en oppervlakten zijn indicatief.