Omschrijving

Sfeervolle hoekwoning op een fijne locatie. Deze woning biedt 4 slaapkamers, een zonnige tuin op het
westen met achterom en een vrijstaande stenen berging. Dankzij de vloerverwarming en volledige
isolatie geniet je van modern wooncomfort. Gelegen op korte afstand van het groene buurtpark
Maandereng. Hier woon je heerlijk rustig en comfortabel.

Op slechts 6 minuten wandelen vind je het winkelcentrum Stadspoort, hier vind je diverse winkels en
voorzieningen. Daarnaast is de woning gunstig gelegen nabij de snelweg A12, wat zorgt voor uitstekende
bereikbaarheid.

Alle kenmerken op een rij:
* Hoekwoning met 4 (slaap)kamers voorzien van elektrische rolluiken; ;
* Tuin op het westen met achterom;
* Uitbouw met grote, tuingerichte leefkeuken;
* Dakkapel voor extra ruimte en licht;
* Schutting rondom de achtertuin is recent vernieuwd;
* Winkelcentrum Stadspoort op loopafstand bereikbaar;
* Dichtbij de snelweg en station Ede-Wageningen.

Indeling
Begane grond
Direct bij binnenkomst valt de sfeervolle en lichte woonkamer op. Terwijl je op de bank zit, geniet je van de grote hoeveelheid natuurlijk licht die de ruimte vult. Loop je door, dan kom je in de ruime keuken, waar ook de eethoek is geplaatst. Dankzij de grote raampartij en de openslaande deuren aan de achterkant, kijk je prachtig uit op de tuin. Een heerlijke plek om samen te komen en te genieten.

Eerste verdieping
Op de eerste verdieping vind je drie fijne slaapkamers en een badkamer. De slaapkamer aan de achterzijde heeft een Frans balkon. De andere twee slaapkamers, beide circa 8 m² groot, liggen aan de voorzijde van de woning.
De badkamer is van alle gemakken voorzien en uitgerust met een inloopdouche, een designradiator, een dubbele wastafel en een toilet.

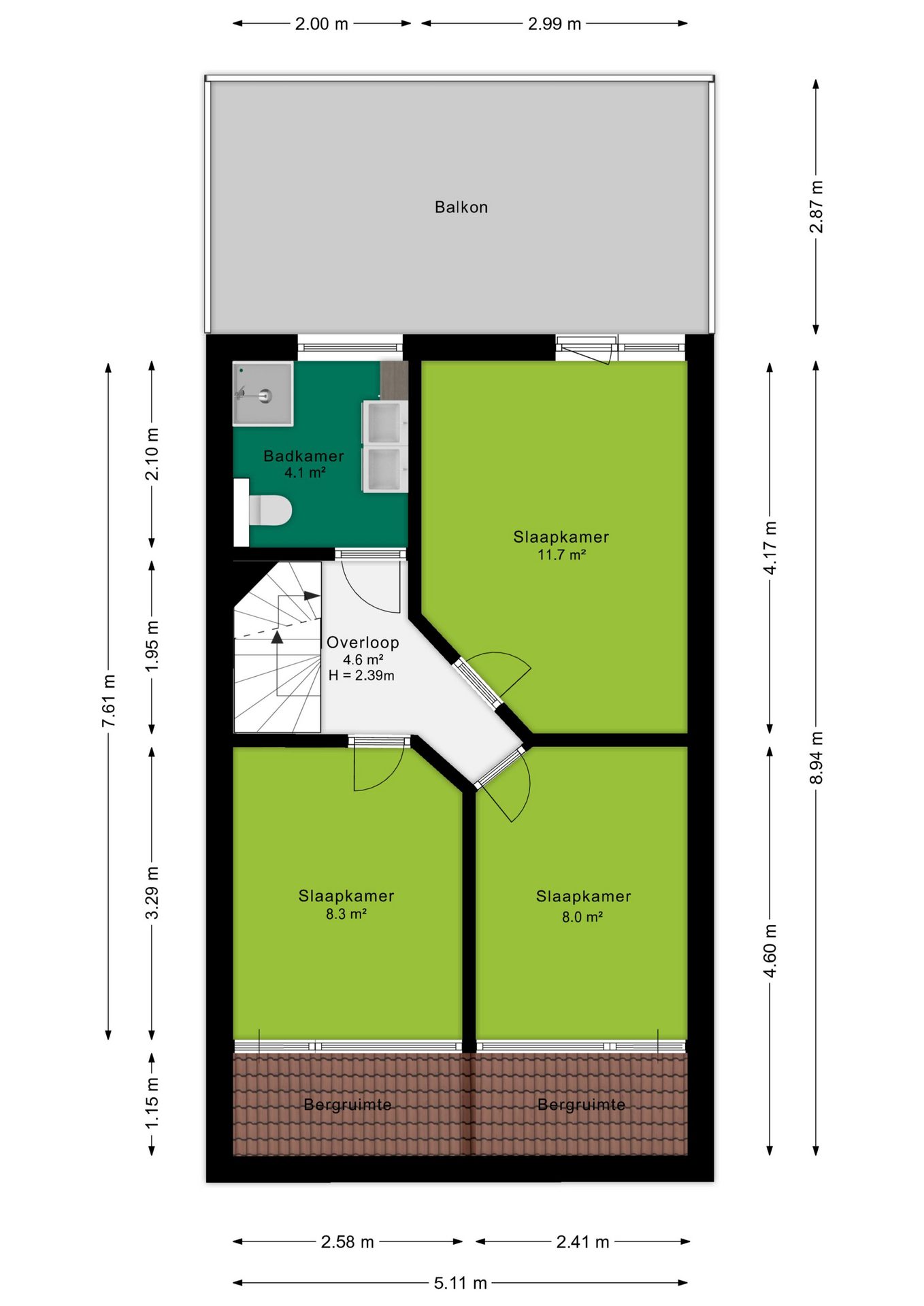
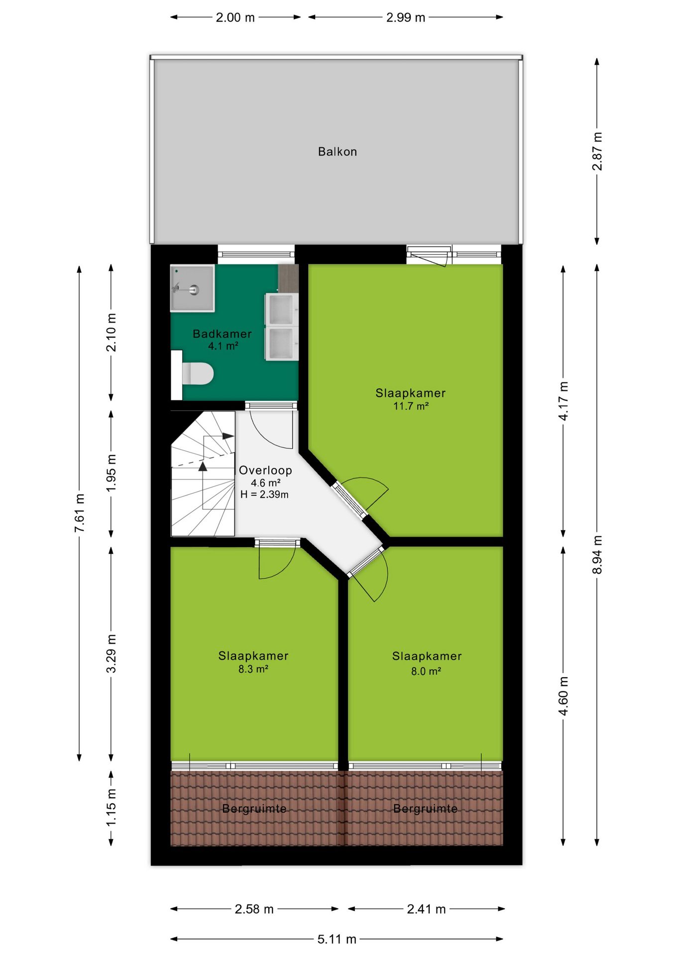
Tweede verdieping
De tweede verdieping biedt nog meer praktische ruimte. Op de overloop vind je de wasmachineaansluiting, ideaal voor een georganiseerde wasruimte. Daarnaast bevindt zich hier de vierde slaapkamer; een fijne, lichte ruimte die perfect is als extra slaapkamer, werkkamer of hobbyruimte. Bovendien is er een vliering die perfect geschikt is voor extra opslag en ook achter de schotten is er veel bergruimte.

Tuin
Geniet van de fijne, verzorgde tuin op het westen. Hier kun je vanaf de vroege ochtend tot aan zonsondergang genieten van de zon, terwijl er ook eenvoudig een schaduwplek te creëren is. Dankzij de beschutte ligging biedt de tuin veel privacy, perfect voor ontspannen momenten. Met sfeervolle tuinverlichting kun je ook 's avonds comfortabel buiten zitten.
Voor extra opbergruimte en tuingereedschap is er een handige stenen berging aanwezig. Een ideale plek om te genieten van het buitenleven.

Bijzonderheden
Verwarming en warm water: CV-ketel, Remeha Calenta 40c;
Isolatie: volledig geïsoleerd;
Bouwjaar: 1986;
Tuinligging: westen;
Aanvaarding: in overleg.

Koopovereenkomst
Bij de verkoop zal er een standaard NVM koopovereenkomst worden gehanteerd. Bij woningen welke ouder zijn dan 20 jaar, worden de volgende clausules opgenomen in de koopovereenkomst:
- Asbestclausule;
- Ouderdomsclausule.

Koop je de woning zonder voorbehoud van financiering? Dan zullen wij een termijn hanteren van 14 dagen na het opstellen van de koopovereenkomst voor het storten van de bankgarantie/waarborgsom.

Deze informatie is door ons met de nodige zorgvuldigheid samengesteld. Onzerzijds wordt echter geen enkele aansprakelijkheid aanvaard voor enige onvolledigheid, onjuistheid of anderszins, dan wel de gevolgen daarvan. Alle opgegeven maten en oppervlakten zijn indicatief.
+ toon meer
deze woning is Verkocht

Karssenstraat 2 Ede

Karssenstraat 2

6717 MT, Ede
Ditters open huis: 5 april 2025 10:00 - 12:00 uur
Landelijke Open Huizen Route NVM: 5 april 2025 11:00 uur - 15:00 uur
Vanaf€ 450.000 k.k.

Schakel een aankoopmakelaar in.

Snel handelen helpt je jouw droomhuis te bemachtigen. Zo vergroot je de kans dat je er op tijd bij bent.
Ede
verkocht

Of maak vrijblijvend een zoekprofiel aan.

Vergelijkbare woningen

Hypotheken

Onafhankelijk hypotheekadvies

  • Ligt jouw droomhuis binnen handbereik?
  • Wil je jouw huidige hypotheek verhogen?
  • Is er hypotheekruimte voor verduurzaming?

Blijf op de hoogte

Ontvang als eerste updates over nieuw aanbod en mis geen enkele kans om jouw droomwoning te vinden.

Gratis waardebepaling of verkoopgesprek

Met de vrijblijvende waardecheck weet je snel waar je aan toe bent. Onze makelaars kijken naar de lokale markt en vergelijkbare woningen in jouw buurt om een goede schatting te geven.

Realiseer al jouw woondromen met Ditters

Wij zijn een team van gedreven vastgoedexperts met een passie voor het maken van verbindingen – tussen kopers en verkopers, huurders en verhuurders. Met een frisse kijk op de makelaardij combineren we expertise met creativiteit. Onze makelaars luisteren écht en nemen de tijd om jouw wensen te begrijpen.


Bij Ditters sta je er niet alleen voor. We denken met je mee, begeleiden je in elke stap en zijn altijd bereikbaar voor vragen. Neem gerust contact met ons op – we helpen je graag verder!