Omschrijving

Gelegen op de hoek van de Berkenrodeweg vind je deze charmante 2-onder-1-kapwoning. Met een royale diepe voor- en achtertuin, biedt deze woning volop ruimte en mogelijkheden. Vier ruime slaapkamers maken dit huis ideaal voor gezinnen of iedereen die op zoek is naar comfort en extra leefruimte. Hier woon je comfortabel op een perfecte locatie. En met energielabel A en maar liefst 11 zonnepanelen profiteer je ook nog eens van lagere energiekosten.

Binnen een paar minuten sta je midden in het bos voor een heerlijke wandeling in de natuur. Een ideaal startpunt voor ontspanning en recreatie. Bovendien ligt station Ede-Wageningen op slechts 5 minuten loopafstand.. Voor vers brood hoef je niet ver: Jorisbrood verwelkomt je met de lekkerste bakkersproducten. Daarnaast ben je zo bij winkelcentrum Spindop aan de Parkweg voor al je dagelijkse boodschappen. Alles wat je nodig hebt dichtbij én in een prachtige omgeving.

Alle kenmerken op een rij:
* 2-onder-1 kapwoning met 4 slaapkamers;
* Diepe voor- en achtertuin;
* Deze woning beschikt over energielabel A en 11 zonnepanelen;
* Dichtbij het bos en station Ede-Wageningen.

Indeling
Begane grond
In de hal vind je de meterkast en het toilet. Zodra je de woonkamer binnentreedt, word je meteen verrast door het prachtige natuurlijke licht dat via de openslaande deuren naar binnen stroomt. De woonkamer ademt gezelligheid dankzij de sfeervolle open haard, een heerlijke plek om te ontspannen. Vanuit de woonkamer bereik je de aangrenzende eetkamer, waar je tijdens het eten kunt genieten van het mooie uitzicht op zowel de achter- als voortuin.
Loop je door naar de keuken, dan sta je in een lichte en functionele ruimte, uitgerust met diverse inbouwapparatuur.

Eerste verdieping
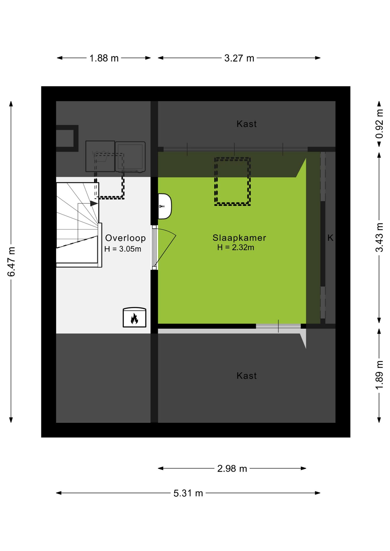
Aangekomen op de overloop, op de eerste verdieping, heb je toegang tot drie fijne slaapkamers en de badkamer.
De slaapkamer aan de achterkant beschikt over een dakkapel, waardoor deze kamer geniet van extra lichtinval én nét dat beetje extra ruimte. De badkamer is van alle gemakken voorzien met een comfortabele inloopdouche, een dubbele wastafel en een toilet.

Tweede verdieping
De tweede verdieping biedt nog een ruime vierde slaapkamer, perfect als extra (werk)kamer, hobbyruimte of logeerkamer. Op de overloop vind je de CV-ketel en de aansluiting voor de wasmachine.
Daarnaast is er volop opbergruimte beschikbaar achter de knieschotten, ideaal om al je spullen netjes en uit het zicht te bewaren.

Tuin
Deze woning is perfect voor liefhebbers van tuinieren en buitenleven. Of je nu groene vingers hebt, graag ontspant in de buitenlucht of van gezellige etentjes in de buitenlucht houdt, de zonnige tuin biedt de hele dag door een heerlijke plek om te genieten.
In de achtertuin vind je bovendien nog een praktische en ruime garage van ca. 19 m², ideaal voor het stallen van fietsen, opbergen van gereedschap of als extra opslagruimte.

Bijzonderheden
Verwarming en warm water: Remeha Calenta 28C 2014;
Isolatie: volledig geïsoleerd;
Tuinligging: achtertuin noordoosten, voortuin zuidwesten;
Aanvaarding: in overleg.

Koopovereenkomst:
Bij de verkoop zal er een standaard NVM koopovereenkomst worden gehanteerd. Bij woningen welke ouder zijn dan 20 jaar, worden de volgende clausules opgenomen in de koopovereenkomst:
- Asbestclausule;
- Ouderdomsclausule.

Koop je de woning zonder voorbehoud van financiering? Dan zullen wij een termijn hanteren van 14 dagen na het opstellen van de koopovereenkomst voor het storten van de bankgarantie/waarborgsom.

Deze informatie is door ons met de nodige zorgvuldigheid samengesteld. Onzerzijds wordt echter geen enkele aansprakelijkheid aanvaard voor enige onvolledigheid, onjuistheid of anderszins, dan wel de gevolgen daarvan. Alle opgegeven maten en oppervlakten zijn indicatief.
+ toon meer
deze woning is Verkocht

Klinkenbergerweg 99 Ede

Klinkenbergerweg 99

6711 MJ, Ede
Ditters open huis: 5 april 2025 10:00 - 12:00 uur
Landelijke Open Huizen Route NVM: 5 april 2025 11:00 uur - 15:00 uur
Vanaf€ 550.000 k.k.

Schakel een aankoopmakelaar in.

Snel handelen helpt je jouw droomhuis te bemachtigen. Zo vergroot je de kans dat je er op tijd bij bent.
Ede
verkocht

Of maak vrijblijvend een zoekprofiel aan.

Vergelijkbare woningen

Hypotheken

Onafhankelijk hypotheekadvies

  • Ligt jouw droomhuis binnen handbereik?
  • Wil je jouw huidige hypotheek verhogen?
  • Is er hypotheekruimte voor verduurzaming?

Blijf op de hoogte

Ontvang als eerste updates over nieuw aanbod en mis geen enkele kans om jouw droomwoning te vinden.

Gratis waardebepaling of verkoopgesprek

Met de vrijblijvende waardecheck weet je snel waar je aan toe bent. Onze makelaars kijken naar de lokale markt en vergelijkbare woningen in jouw buurt om een goede schatting te geven.

Realiseer al jouw woondromen met Ditters

Wij zijn een team van gedreven vastgoedexperts met een passie voor het maken van verbindingen – tussen kopers en verkopers, huurders en verhuurders. Met een frisse kijk op de makelaardij combineren we expertise met creativiteit. Onze makelaars luisteren écht en nemen de tijd om jouw wensen te begrijpen.


Bij Ditters sta je er niet alleen voor. We denken met je mee, begeleiden je in elke stap en zijn altijd bereikbaar voor vragen. Neem gerust contact met ons op – we helpen je graag verder!