Omschrijving

Wonen met ruimte, comfort en volop mogelijkheden op een toplocatie in Ede.
Welkom bij Laathof 9 — een royale hoekwoning met grote garage, parkeergelegenheid op eigen terrein én een zonnige tuin op het oosten. Deze woning uit 1980 is met 138 m² woonoppervlakte, vier slaapkamers (met optie tot vijf), 12 zonnepanelen en vloerverwarming op de begane grond een buitenkans voor wie comfortabel en energiezuinig wil wonen.

De woning is gelegen in een kindvriendelijke, rustige wijk met alle voorzieningen binnen handbereik. Op steenworp afstand vind je winkelcentrum Bellestein voor de dagelijkse boodschappen. Ook scholen, sportverenigingen en het groene Proosdijpark met kinderboerderij zijn op fietsafstand. Dankzij de gunstige ligging nabij de N224 en A30 zijn ook omliggende steden en uitvalswegen snel bereikbaar.

Pluspunten op een rij
+ Grote stenen garage met elektrische roldeur;
+ Vier slaapkamers, met mogelijkheid tot vijf;
+ Begane grond volledig voorzien van vloerverwarming;
+ 12 zonnepanelen — energiezuinig wonen met label B;
+ Parkeren op eigen terrein én in de garage;
+ Kindvriendelijke ligging, nabij winkelcentrum en natuur.

Indeling
Begane grond
Je komt binnen in de lichte woonkamer, die naadloos overloopt in de eetkamer en ruime keuken. Vanuit de eetkamer loop je zo de tuin in. De moderne keuken in U-opstelling is voorzien van alle gemakken: koelkast, vriezer, oven, magnetron, vaatwasser en een gasfornuis. De begane grond is volledig voorzien van vloerverwarming — heerlijk comfort in elk seizoen.

Eerste verdieping
Op deze verdieping bevinden zich twee slaapkamers, waaronder een riante hoofdslaapkamer met grote inloopkast. Liever een extra slaapkamer? Die is eenvoudig te realiseren. De slaapkamer aan de achterzijde biedt toegang tot een zonnig balkon op het oosten. De ruime badkamer beschikt over een ligbad, douche, dubbele wastafel en een tweede toilet.

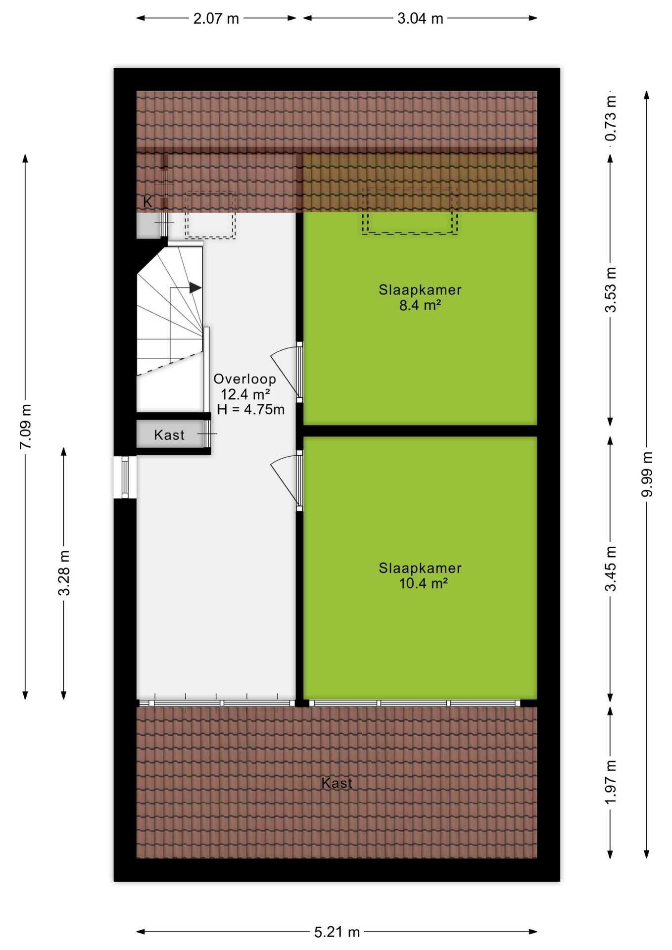
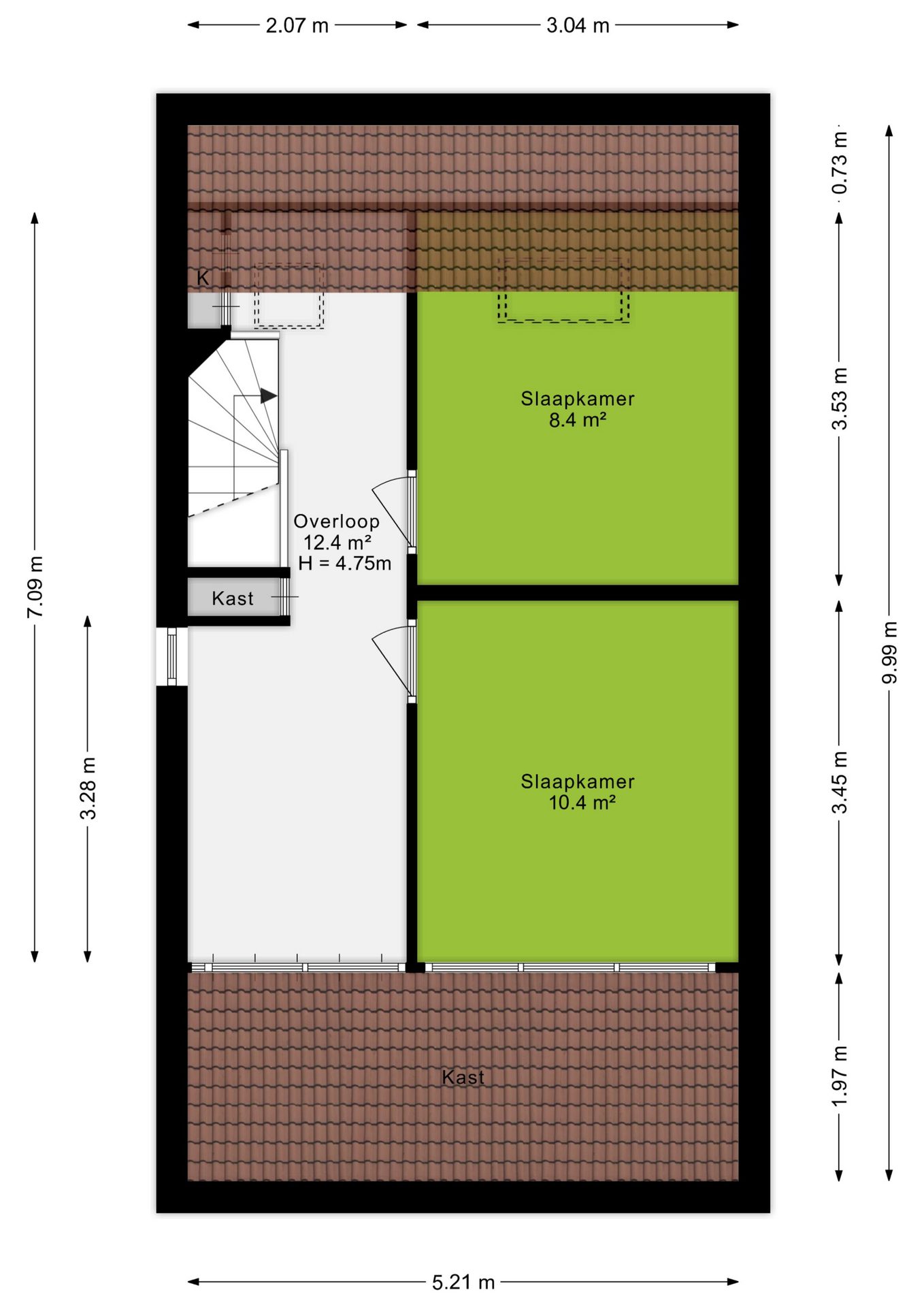
Tweede verdieping
Hier vind je nog eens twee slaapkamers en een royale overloop. Achter de knieschotten is praktische opbergruimte aanwezig, ideaal voor koffers, kerstspullen of hobbygerei.

Tuin en parkeren
De zonnige achtertuin is gelegen op het oosten en is bereikbaar via een achterom én via de stenen garage met elektrische roldeur. Op de oprit voor de woning kun je gemakkelijk twee auto’s kwijt, in de garage nog eens één. Zo is parkeren nooit een probleem.

Koopovereenkomst:
- Bij de verkoop zal er een standaard NVM koopovereenkomst worden gehanteerd. Bij woningen welke ouder zijn dan 20 jaar, worden de volgende clausules opgenomen in de koopovereenkomst:
- Asbestclausule;
- Ouderdomsclausule.

Koop je de woning zonder voorbehoud van financiering? Dan zullen wij een termijn hanteren van 14 dagen na het opstellen van de koopovereenkomst voor het storten van de bankgarantie/waarborgsom.

Deze informatie is door ons met de nodige zorgvuldigheid samengesteld. Onzerzijds wordt echter geen enkele aansprakelijkheid aanvaard voor enige onvolledigheid, onjuistheid of anderszins, dan wel de gevolgen daarvan. Alle opgegeven maten en oppervlakten zijn indicatief.
+ toon meer
deze woning is Verkocht

Laathof 9 Ede

Laathof 9

6715 LD, Ede
Ditters open huis: 5 april 2025 10:00 - 12:00 uur
Landelijke Open Huizen Route NVM: 5 april 2025 11:00 uur - 15:00 uur
Vanaf€ 450.000 k.k.

Schakel een aankoopmakelaar in.

Snel handelen helpt je jouw droomhuis te bemachtigen. Zo vergroot je de kans dat je er op tijd bij bent.
Ede
verkocht

Of maak vrijblijvend een zoekprofiel aan.

Vergelijkbare woningen

Hypotheken

Onafhankelijk hypotheekadvies

  • Ligt jouw droomhuis binnen handbereik?
  • Wil je jouw huidige hypotheek verhogen?
  • Is er hypotheekruimte voor verduurzaming?

Blijf op de hoogte

Ontvang als eerste updates over nieuw aanbod en mis geen enkele kans om jouw droomwoning te vinden.

Gratis waardebepaling of verkoopgesprek

Met de vrijblijvende waardecheck weet je snel waar je aan toe bent. Onze makelaars kijken naar de lokale markt en vergelijkbare woningen in jouw buurt om een goede schatting te geven.

Realiseer al jouw woondromen met Ditters

Wij zijn een team van gedreven vastgoedexperts met een passie voor het maken van verbindingen – tussen kopers en verkopers, huurders en verhuurders. Met een frisse kijk op de makelaardij combineren we expertise met creativiteit. Onze makelaars luisteren écht en nemen de tijd om jouw wensen te begrijpen.


Bij Ditters sta je er niet alleen voor. We denken met je mee, begeleiden je in elke stap en zijn altijd bereikbaar voor vragen. Neem gerust contact met ons op – we helpen je graag verder!