Omschrijving

Stel je voor, je wordt wakker met het vrolijke getjilp van vogels als achtergrondmuziek. Je eerste kop koffie van de dag drink je terwijl het ochtendlicht de kamer binnenstroomt en een gouden gloed werpt over de landerijen. 's Avonds kom je tot rust in de kalmte van je eigen stukje natuur. Dit is niet gewoon een huis, dit is de plek waar jouw dromen hand in hand gaan met het dagelijks leven.

Waarom dit jouw droomthuis is?
Je woont vrijstaand en groen. Met een Energielabel B, voorzien van HR+ glas en zonnepanelen uit 2022 is de energierekening klein en je woonplezier groot. In 2023 is de woning professioneel geschilderd door een erkend schildersbedrijf, wat zorgt voor een frisse uitstraling.
De woning beschik over een royaal perceel met een brede oprit, een grote schuur en garage én een ruime vliering: ideaal voor opslag, hobby’s of een werkruimte. De airco zorgt voor verkoeling in de zomer en een warm welkom in de winter.

Je woont midden in de natuur, maar wel met alle gemak binnen handbereik. Zie jezelf al fietsen langs knisperende bospaden of wandelend genieten van het landschap. De Doesburgermolen bekijken, een middag wegzwijmelen bij de Goudsberg of slenteren door het Edese bos - het kan allemaal. En als paarden jouw passie zijn, dan zit je hier goed: manege De Nieuwe Heuvel ligt bijna om de hoek.

Ondanks de rust en ruimte is alles wat je nodig hebt binnen handbereik:
- Op de fiets naar Lunteren zit je in tien minuten midden in het centrum.
- Een kwartiertje op de fiets en je beleeft de gezelligheid van Ede.
- Binnen vijf minuten rijden zit je al op de A30, voor een snelle verbinding met de rest van Nederland.

Wil je voelen hoe het is om hier te wonen? Ervaren hoe de ruimte, de rust en het comfort zich vermengen tot een unieke woonervaring? Neem dan contact op voor een bezichtiging en laat je betoveren door de charme van dit prachtige huis.

Jouw droomwoning staat op je te wachten!

Enkele pluspunten van de woning:
+ Vrijstaande woning waar je geniet van ultieme privacy en ontspanning
+ Energielabel B en verse zonnepanelen om je kosten te drukken
+ HR+ glas voor een comfortabel binnenklimaat en licht in overvloed
+ Ruimte genoeg om al je auto's te parkeren
+ Een schuur en garage waar je alle kanten mee op kunt: werkruimte, atelier of bergruimte
+ Een zolder die zo ruim is dat je er verloren in raakt
+ Airco die zorgt dat het binnen altijd aangenaam is
+ In 2023 bereden en bestreken door professionals, klaar om ingeleefd te worden

Indeling
Begane grond
Bij aankomst zal je meteen voelen hoeveel ruimte dit huis biedt. De brede oprit biedt plaats aan meerdere auto’s en de goed onderhouden gevel straalt charme en kwaliteit uit.

Bij binnenkomst tref je de hal met de meterkast en een net toilet met een handwasbakje. Loop door naar de lichte en gezellige woonkamer, waar grote ramen met HR+ glas niet alleen zorgen voor een prettige atmosfeer, maar ook een overvloed aan daglicht binnenlaten, wat zorgt voor een heerlijke leefomgeving. Dankzij de airconditioning geniet je hier altijd van perfect comfort, ongeacht de buitentemperatuur. Voor extra sfeer en warmte is er ook een gashaard aanwezig.

De keuken ademt een huiselijke sfeer met houtkleurige kasten en is voorzien van allerlei inbouwapparatuur: een inductiekookplaat, vaatwasser, koelkast, vriezer en een magnetron. Vervolgens leidt de keuken je naar de bijkeuken, die is uitgerust met een wasmachineaansluiting en extra opslagruimte biedt. Vanuit hier heb je ook toegang tot de garage.

Eerste verdieping
De overloop leidt je naar twee royale slaapkamers, die beiden profiteren van hun eigen toegang tot het uitnodigende balkon. Een volledig betegelde badkamer, compleet met een douche, toilet en een dubbele wastafel staat klaar voor je dagelijkse verzorging. De hoofdslaapkamer heeft een praktische inbouwkast, die een zee aan bergruimte biedt. Daarnaast zorgt een extra bergkast op de gang voor nog meer opberggemak.

Een tweede, volledig betegelde badkamer met een toilet, wastafel en douche maakt de sanitaire voorzieningen compleet. Een vierde slaapkamer, ruimtelijk en verlicht door een dakraam, biedt nog een comfortabele plek om tot rust te komen. Tenslotte bevindt zich op deze verdieping een aparte ruimte voor de cv-installatie.

Vliering
Via een vlizotrap bereik je de vliering. De royale vliering is een verborgen parel die je de flexibiliteit geeft om je woonwensen waar te maken.

Tuin
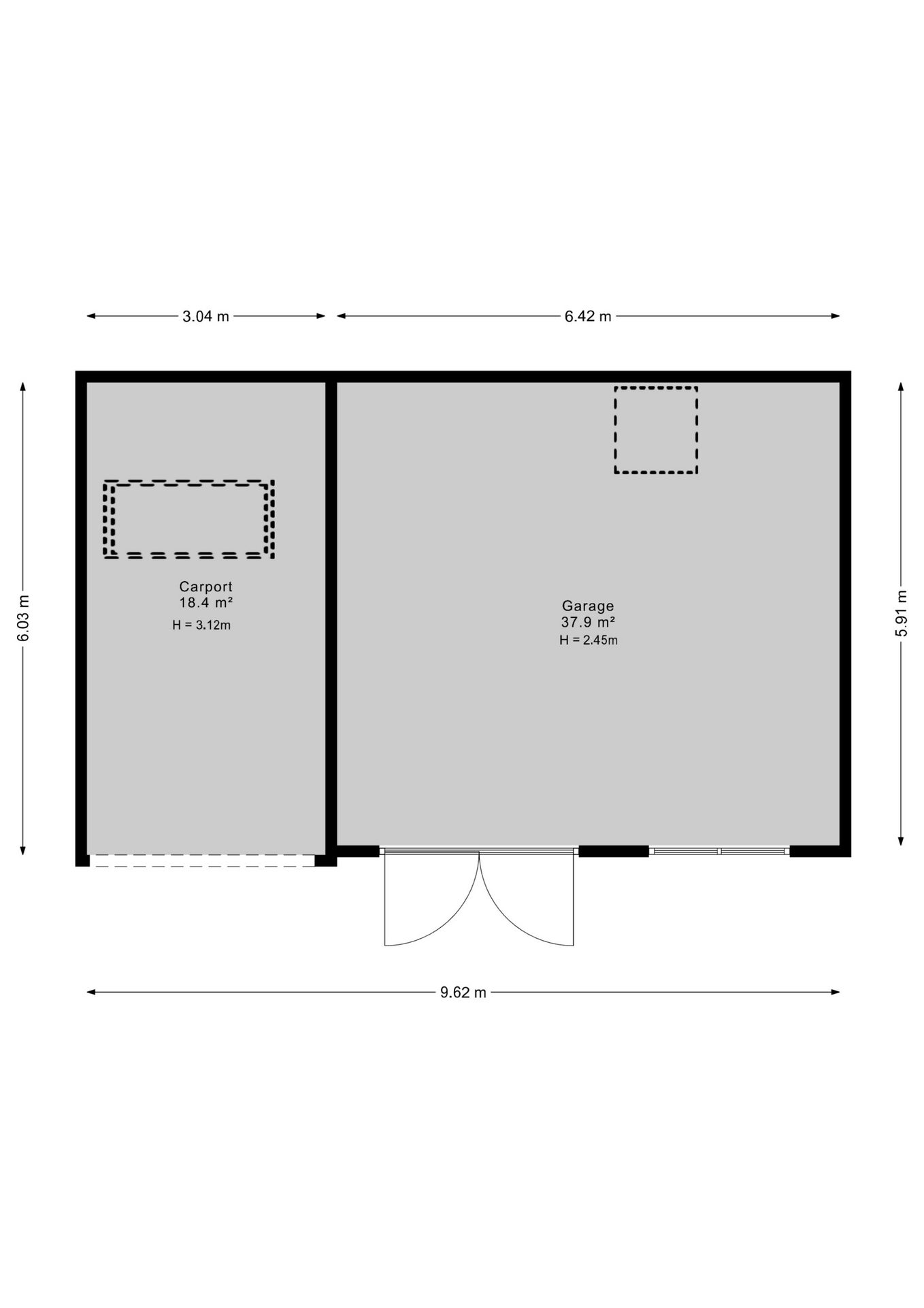
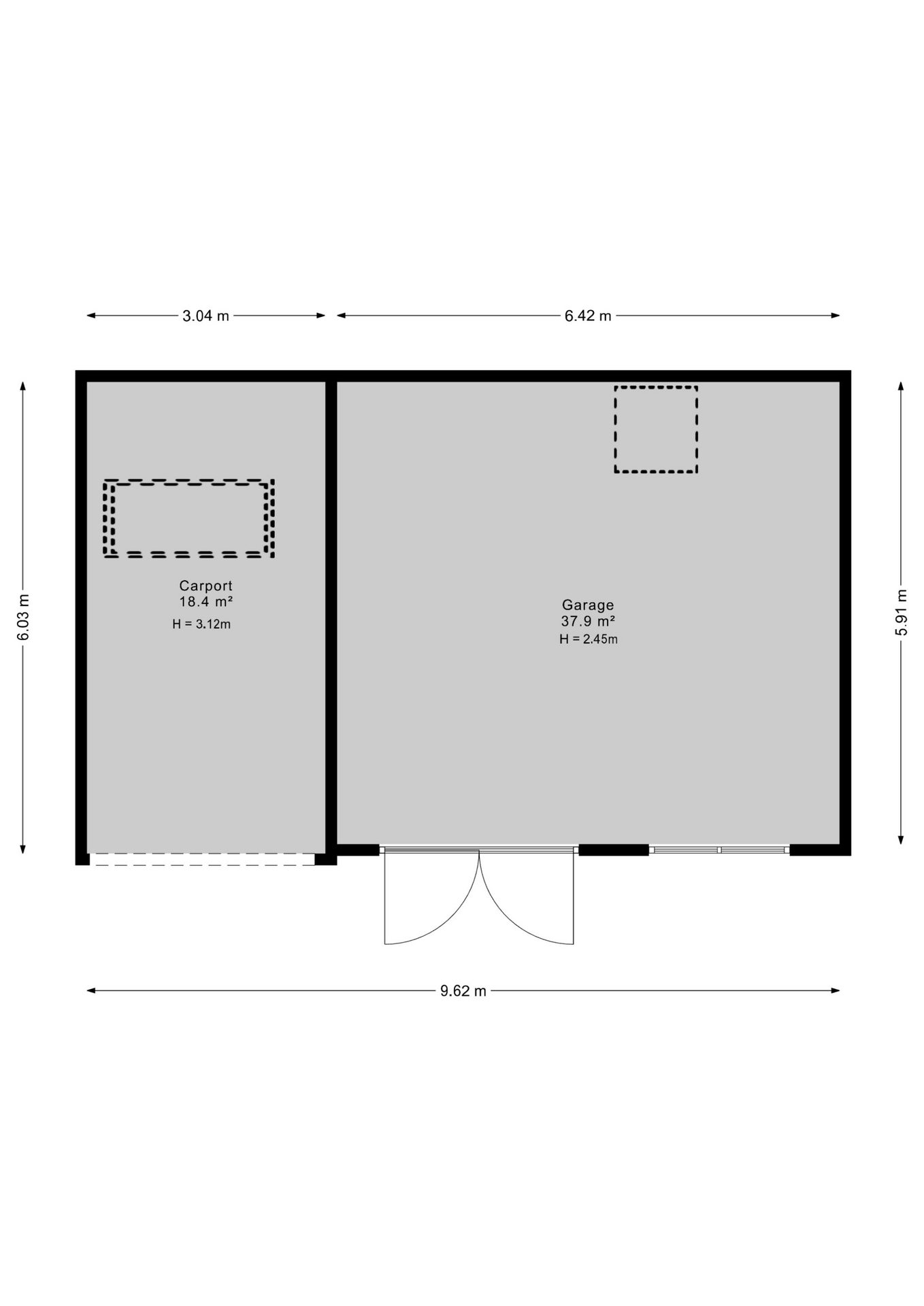
Vanuit de woonkamer kun je de tuin inlopen door de openslaande deuren of via de garage. De tuin is netjes aangelegd en omringt het hele huis, wat zorgt voor veel parkeerruimte aan de voor-, zij- en achterkant van het huis. Er is een overkapping aan de zijkant van het huis waar je lekker buiten kunt zitten, ook als het weer wat minder is. In de tuin staat een glazen tuinhuis, ideaal voor als je even wilt ontspannen tussen het groen. Achterin de tuin vind je de garage met een carport ervoor, handig voor extra overdekte parkeerruimte of opslag.

Afmetingen
Woonoppervlakte: 185 m²
Inhoud woning: 689 m³
Perceeloppervlakte: 1.300 m²

Bijzonderheden
Verwarming: Vloerverwarming gedeeltelijk, CV-installatie, Nefit;
Warm water: CV-installatie Nefit;
Isolatie: Muur-, vloer-, dakisolatie, HR-glas;
Bouwjaar: 1998;
Tuinligging: Noordoosten;
Aanvaarding: In overleg.

Koopovereenkomst:
Bij de verkoop zal er een standaard NVM koopovereenkomst worden gehanteerd. Bij woningen welke ouder zijn dan 20 jaar, worden de volgende clausules opgenomen in de koopovereenkomst:
- Asbestclausule;
- Ouderdomsclausule.

Koop je de woning zonder voorbehoud van financiering? Dan zullen wij een termijn hanteren van 14 dagen na het opstellen van de koopovereenkomst voor het storten van de bankgarantie/waarborgsom.

Deze informatie is door ons met de nodige zorgvuldigheid samengesteld. Onzerzijds wordt echter geen enkele aansprakelijkheid aanvaard voor enige onvolledigheid, onjuistheid of anderszins, dan wel de gevolgen daarvan. Alle opgegeven maten en oppervlakten zijn indicatief.
+ toon meer
deze woning is Verkocht

Lunterseweg 86 Ede

Lunterseweg 86

6718 WH, Ede
Ditters open huis: 5 april 2025 10:00 - 12:00 uur
Landelijke Open Huizen Route NVM: 5 april 2025 11:00 uur - 15:00 uur
Vanaf€ 995.000 k.k.

Schakel een aankoopmakelaar in.

Snel handelen helpt je jouw droomhuis te bemachtigen. Zo vergroot je de kans dat je er op tijd bij bent.
Ede
verkocht

Of maak vrijblijvend een zoekprofiel aan.

Vergelijkbare woningen

Hypotheken

Onafhankelijk hypotheekadvies

  • Ligt jouw droomhuis binnen handbereik?
  • Wil je jouw huidige hypotheek verhogen?
  • Is er hypotheekruimte voor verduurzaming?

Blijf op de hoogte

Ontvang als eerste updates over nieuw aanbod en mis geen enkele kans om jouw droomwoning te vinden.

Gratis waardebepaling of verkoopgesprek

Met de vrijblijvende waardecheck weet je snel waar je aan toe bent. Onze makelaars kijken naar de lokale markt en vergelijkbare woningen in jouw buurt om een goede schatting te geven.

Realiseer al jouw woondromen met Ditters

Wij zijn een team van gedreven vastgoedexperts met een passie voor het maken van verbindingen – tussen kopers en verkopers, huurders en verhuurders. Met een frisse kijk op de makelaardij combineren we expertise met creativiteit. Onze makelaars luisteren écht en nemen de tijd om jouw wensen te begrijpen.


Bij Ditters sta je er niet alleen voor. We denken met je mee, begeleiden je in elke stap en zijn altijd bereikbaar voor vragen. Neem gerust contact met ons op – we helpen je graag verder!