Omschrijving

Prachtige, royale en zeer goed afgewerkte woning met veel mogelijkheden aan de Markiezenhof 39 te Ede.

Deze woning ligt op een fantastisch ruim perceel van maar liefst 268 m², met eigen oprit waar je meerdere auto's kunt parkeren in een rustig hofje. Omringd door groen en gezellige parkjes, biedt het de perfecte balans tussen rust en gemak. Je hebt allerlei voorzieningen binnen handbereik, zoals het winkelcentrum Bellestein, sportcentra, sportvelden en het proosdijpark.

De woning is gelegen in een groene omgeving en op korte afstand van het centrum van Ede met al haar voorzieningen, NS station Ede-Centrum op 11 minuten fietsafstand en intercitystation Ede-Wageningen op 16 minuten fietsafstand. De bossen en de heide kunnen op deze locatie niet ontbreken. Hier fiets je met enkele minuten naar toe om een heerlijke wandeling te maken.

Qua infrastructuur is de woning gunstig gelegen, nabij de snelwegen A12 en A30 (7 autominuten afstand). Via intercity station Ede-Wageningen ben je met 25 minuten op Utrecht centraal, 50 minuten in hartje Amsterdam en 11 minuten in Arnhem.

De pluspunten van de woning op een rij:

+ Ruime woning op een perceel van maar liefst 268 m²;
+ Gelegen in een rustig hofje met veel speelvoorzieningen nabij;
+ Maar liefst 5 slaapkamers met fantastische thuiswerkplek;
+ Vernieuwde keuken (2021);
+ Badkamer van ca. 5 jaar jong;
+ Veranda achter in de tuin en nieuw aangelegde tuin (2022);
+ Nieuwe dakkapel aan de achterzijde (2021);
+ Garage van binnenuit te bereiken;
+ Eigen oprit voor meerdere auto's;
+ Zeer goed onderhouden woning met onder andere kunststof kozijnen.

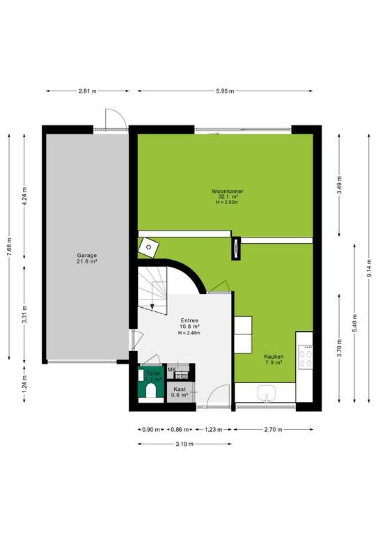
Indeling van de woning
Begane grond

Entree met ruime hal en toegang tot de nieuwe meterkast, toiletruimte, de garage, trap naar de eerste verdieping en de woonkamer.

De zeer ruime woonkamer met stukje split level heeft een sfeervolle houtkachel. Doordat het zitgedeelte twee treden lager is gelegen dan de keuken geeft dit een speelse en ruimtelijke uitstraling. Vanuit het ruime zitgedeelte is er middels een schuifpui toegang tot de achtertuin.

De vernieuwde keuken (2021) bevindt zich aan de voorzijde van de woning en is voorzien van diverse inbouwapparatuur waaronder begrepen:
+ Koelkast;
+ Vaatwasser;
+ Oven;
+ Inductiekookplaat;
+ Afzuigkap.

Uitgevoerd in zwarte kleurstelling en greeploze kasten met soft closing. De gootsteen en de inductiekookplaat zijn keurig verwerkt in het aanrechtblad waardoor het mooi in elkaar overloopt.

De begane grond is uitgerust met een houten vloer.

Eerste verdieping
Vanaf de overloop heb je toegang tot vier slaapkamers en de badkamer. Drie slaapkamers zijn aan de achterzijde gelegen. De vierde slaapkamer is aan de voorzijde gelegen naast de badkamer, de badkamer is voorzien van:
+ Bad/douchecombinatie met mengkraan;
+ Tweede zwevend toilet;
+ Designradiator;
+ Wastafelmeubel;
+ Kolomkast voor opbergruimte.

De dakkapel aan de achterzijde is in 2021 nieuw geplaatst waarmee de overloop aanzienlijk is vergroot. Hierdoor is er ruimte ontstaan een extra kamer te realiseren wat momenteel dient als werkkamer. Het lichtinval wordt niet geblokkeerd doordat slim gebruik is gemaakt van een stalen frame met glas.

Tweede verdieping
Op de overloop van de zolder vind je de aansluiting voor de wasmachine en droger, daar staat ook de cv-ketel (Nefit, 2018). Aan beide kanten zijn knieschotten, dus je hebt genoeg ruimte om spullen op te bergen. Ook is hier de vijfde slaapkamer met wastafel aanwezig.

Buiten
Vanuit de woonkamer en garage is er toegang tot de ruime achtertuin, gelegen op het oosten. De achtertuin is een perfecte mix van klinkers, groen en een mooi stukje gras. Achterin de tuin vind je een gezellige veranda, ideaal om van het buitenleven te genieten. De tuin is middels een achterom te bereiken.

Afmetingen
Woonoppervlakte 134 m²
Perceeloppervlakte 268 m²
Inhoud woning 538 m³

Bijzonderheden
Verwarming: C.V.-ketel (2018);
Energielabel: D;
Bouwjaar: 1981;
Aanvaarding: In overleg;

Koopovereenkomst:
Bij de verkoop zal er een standaard NVM koopovereenkomst worden gehanteerd. Bij woningen welke ouder zijn dan 20 jaar, worden de volgende clausules opgenomen in de koopovereenkomst:
- Asbestclausule;
- Ouderdomsclausule.

Koop je de woning zonder voorbehoud van financiering? Dan zullen wij een termijn hanteren van 14 dagen na het opstellen van de koopovereenkomst voor het storten van de bankgarantie/waarborgsom.

Deze informatie is door ons met de nodige zorgvuldigheid samengesteld. Onzerzijds wordt echter geen enkele aansprakelijkheid aanvaard voor enige onvolledigheid, onjuistheid of anderszins, dan wel de gevolgen daarvan. Alle opgegeven maten en oppervlakten zijn indicatief.
+ toon meer
deze woning is Verkocht

Markiezenhof 39 Ede

Markiezenhof 39

6715 LL, Ede
Ditters open huis: 5 april 2025 10:00 - 12:00 uur
Landelijke Open Huizen Route NVM: 5 april 2025 11:00 uur - 15:00 uur
Vanaf€ 569.000 k.k.

Schakel een aankoopmakelaar in.

Snel handelen helpt je jouw droomhuis te bemachtigen. Zo vergroot je de kans dat je er op tijd bij bent.
Ede
verkocht

Of maak vrijblijvend een zoekprofiel aan.

Vergelijkbare woningen

Hypotheken

Onafhankelijk hypotheekadvies

  • Ligt jouw droomhuis binnen handbereik?
  • Wil je jouw huidige hypotheek verhogen?
  • Is er hypotheekruimte voor verduurzaming?

Blijf op de hoogte

Ontvang als eerste updates over nieuw aanbod en mis geen enkele kans om jouw droomwoning te vinden.

Gratis waardebepaling of verkoopgesprek

Met de vrijblijvende waardecheck weet je snel waar je aan toe bent. Onze makelaars kijken naar de lokale markt en vergelijkbare woningen in jouw buurt om een goede schatting te geven.

Realiseer al jouw woondromen met Ditters

Wij zijn een team van gedreven vastgoedexperts met een passie voor het maken van verbindingen – tussen kopers en verkopers, huurders en verhuurders. Met een frisse kijk op de makelaardij combineren we expertise met creativiteit. Onze makelaars luisteren écht en nemen de tijd om jouw wensen te begrijpen.


Bij Ditters sta je er niet alleen voor. We denken met je mee, begeleiden je in elke stap en zijn altijd bereikbaar voor vragen. Neem gerust contact met ons op – we helpen je graag verder!