Omschrijving

Moreelsestraat 40 in Ede is gelegen in de rustige en kindvriendelijke wijk Maandereng. Deze wijk staat bekend om zijn gezinsvriendelijke karakter en biedt een veilige en aangename leefomgeving voor gezinnen.

Een van de voordelen van deze locatie is de aanwezigheid van een speeltuin nabij de woning, wat ideaal is voor gezinnen met kinderen. De omgeving biedt een breed scala aan voorzieningen die het dagelijks leven vergemakkelijken. Diverse scholen liggen in de directe nabijheid, waardoor het voor gezinnen eenvoudig is om onderwijsfaciliteiten te bereiken.

Voor uw dagelijkse boodschappen en winkelen is winkelcentrum De Stadspoort snel en gemakkelijk bereikbaar, met een verscheidenheid aan winkels en eetgelegenheden. Daarnaast is de bereikbaarheid van de wijk uitstekend. De snelweg A12 ligt op korte afstand, wat zorgt voor een goede verbinding met omliggende steden en regio's. Dit maakt het een aantrekkelijke locatie voor zowel forenzen als mensen die graag de rust van een woonwijk combineren met de nabijheid van stedelijke voorzieningen.

Het centrum van Ede, met nog meer winkels, restaurants en culturele voorzieningen, is ook op korte afstand te vinden. Hier worden regelmatig evenementen en markten georganiseerd, wat bijdraagt aan een levendige gemeenschapssfeer.

Met de nabijheid van de Veluwe biedt de omgeving ook volop mogelijkheden voor buitenactiviteiten zoals wandelen en fietsen. Kortom, de omgeving van de Moreelsestraat in de wijk Maandereng combineert het beste van stedelijk gemak en natuurlijke schoonheid, waardoor het een aantrekkelijke plek is om te wonen.

Enkele pluspunten van de woning:
+ Acht zonnepanelen aanwezig
+ Moderne keuken
+ Drie slaapkamers
+ Eigentijdse badkamer
+ Fraai aangelegde tuin met veranda

Indeling
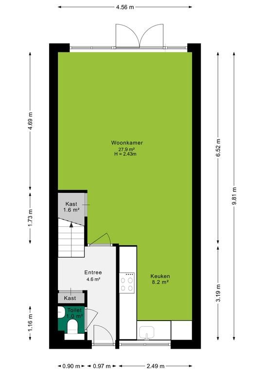
Begane grond
Bij binnenkomst in de woning kom je in de entree, die toegang biedt tot verschillende vertrekken. Hier vind je een keurig afgewerkt toilet met fonteintje en een praktische berging voor extra opbergruimte.

De woonkamer, met een oppervlakte van ongeveer 28 m², is een lichte en uitnodigende ruimte. Dankzij de grote raampartijen stroomt er volop natuurlijk licht naar binnen, wat bijdraagt aan een aangename sfeer. Via de openslaande deur heb je direct toegang tot de tuin, waardoor je gemakkelijk van het buitenleven kunt genieten.

De moderne keuken is uitgevoerd in een lichte kleurstelling, met een stijlvol donker werkblad. Deze keuken is voorzien van alle benodigde inbouwapparatuur, waaronder een inductiekookplaat, afzuigkap, oven, vaatwasser en een koelkast met vriescombinatie. Hierdoor is de keuken niet alleen functioneel, maar ook een plezierige plek om te koken.

Eerste verdieping
Op de overloop vind je toegang tot drie ruime slaapkamers, elk met voldoende ruimte en mogelijkheden voor persoonlijke inrichting. De moderne badkamer is stijlvol en praktisch ingericht, voorzien van een douche, toilet, wastafelmeubel en een designradiator voor extra comfort.

Tweede verdieping
Op zolder vind je de aansluiting voor de wasmachine en de CV-installatie. Daarnaast is er extra bergruimte beschikbaar achter de schuine kanten, ideaal voor het opbergen van seizoensgebonden spullen en andere benodigdheden.

Tuin
Via de deur in de woonkamer stap je de verzorgde tuin in. Deze is netjes aangelegd en biedt direct achter de woning een terras waar je kunt ontspannen. Verder naar achteren in de tuin vind je de veranda, een beschutte plek om te zitten. Achter de veranda is de berging, perfect voor het opbergen van tuingereedschap en fietsen. Bovendien is de woning ook bereikbaar via een achterom.

Afmetingen
Perceeloppervlakte: 125 m²
Inhoud woning: 313 m³
Woonoppervlakte: 93 m²

Bijzonderheden
Verwarming: Vloerverwarming gedeeltelijk, CV-installatie, Intergas hre 30/36A+;
Warm water: CV-installatie Intergas hre 30/36A+;
Isolatie: Muur-, vloerisolatie, dubbel glas, HR-glas;
Bouwjaar: 1987;
Tuinligging: Oosten;
Aanvaarding: In overleg.

Koopovereenkomst:
Bij de verkoop zal er een standaard NVM koopovereenkomst worden gehanteerd. Bij woningen welke ouder zijn dan 20 jaar, worden de volgende clausules opgenomen in de koopovereenkomst:
- Asbestclausule;
- Ouderdomsclausule.

Koop je de woning zonder voorbehoud van financiering? Dan zullen wij een termijn hanteren van 14 dagen na het opstellen van de koopovereenkomst voor het storten van de bankgarantie/waarborgsom.

Deze informatie is door ons met de nodige zorgvuldigheid samengesteld. Onzerzijds wordt echter geen enkele aansprakelijkheid aanvaard voor enige onvolledigheid, onjuistheid of anderszins, dan wel de gevolgen daarvan. Alle opgegeven maten en oppervlakten zijn indicatief.
+ toon meer
deze woning is Verkocht

Moreelsestraat 40 Ede

Moreelsestraat 40

6717 TR, Ede
Ditters open huis: 5 april 2025 10:00 - 12:00 uur
Landelijke Open Huizen Route NVM: 5 april 2025 11:00 uur - 15:00 uur
Vanaf€ 395.000 k.k.

Schakel een aankoopmakelaar in.

Snel handelen helpt je jouw droomhuis te bemachtigen. Zo vergroot je de kans dat je er op tijd bij bent.
Ede
verkocht

Of maak vrijblijvend een zoekprofiel aan.

Vergelijkbare woningen

Hypotheken

Onafhankelijk hypotheekadvies

  • Ligt jouw droomhuis binnen handbereik?
  • Wil je jouw huidige hypotheek verhogen?
  • Is er hypotheekruimte voor verduurzaming?

Blijf op de hoogte

Ontvang als eerste updates over nieuw aanbod en mis geen enkele kans om jouw droomwoning te vinden.

Gratis waardebepaling of verkoopgesprek

Met de vrijblijvende waardecheck weet je snel waar je aan toe bent. Onze makelaars kijken naar de lokale markt en vergelijkbare woningen in jouw buurt om een goede schatting te geven.

Realiseer al jouw woondromen met Ditters

Wij zijn een team van gedreven vastgoedexperts met een passie voor het maken van verbindingen – tussen kopers en verkopers, huurders en verhuurders. Met een frisse kijk op de makelaardij combineren we expertise met creativiteit. Onze makelaars luisteren écht en nemen de tijd om jouw wensen te begrijpen.


Bij Ditters sta je er niet alleen voor. We denken met je mee, begeleiden je in elke stap en zijn altijd bereikbaar voor vragen. Neem gerust contact met ons op – we helpen je graag verder!