Omschrijving

Deze geschakelde 2-onder-1 kapwoning uit 2001 biedt met 142 m² woonoppervlakte, vier slaapkamers en een inpandige berging veel ruimte en comfort. Dankzij de zonnige tuin op het zuidoosten, de lichte woonkamer met lichtkoepel en de aanwezigheid van 11 zonnepanelen woon je hier energiezuinig en toekomstbestendig.

De woning ligt op korte afstand van het Proosdijpark en de kinderboerderij, ideaal voor gezinnen met kinderen. Ook winkelcentrum Rozenplein ligt op loopafstand en biedt dagelijkse voorzieningen. Binnen 5 minuten fietsen ben je bij zwembad De Peppel en dankzij de nabijheid van de A30 en A12 zijn omliggende steden eenvoudig bereikbaar.

Pluspunten van deze woning
- Ruime geschakelde 2-onder-1 kapwoning;
- 4 slaapkamers en inpandige berging;
- Tuin op het zuidoosten van circa 12 meter diep;
- 11 zonnepanelen en energielabel A;
- Parkeren op eigen terrein voor 2 auto’s.

Indeling
Begane grond
Bij binnenkomst in de entree vind je de meterkast en de toegang tot zowel de inpandige berging als de woonkamer. De woonkamer is ruim en licht, mede door de grote ramen en de lichtkoepel. Aansluitend bevindt zich de eetkamer, waar je heerlijk uitkijkt op de tuin, die via de schuifpui eenvoudig bereikbaar is. De keuken is opgesteld in een L-vorm en voorzien van diverse inbouwapparatuur, waaronder een keramische kookplaat, afzuigkap, oven, koel-vriescombinatie en vaatwasser. Hier is ook ruimte om een eethoek te plaatsen. Vanuit de hal tussen keuken en eetkamer bereik je het toilet en de trap naar de eerste verdieping.

Eerste verdieping
Op de eerste verdieping bevinden zich twee slaapkamers van circa 11 m² en 9 m², beide met een inbouwkast. De badkamer is uitgerust met een ligbad, douche, wastafel en toilet.

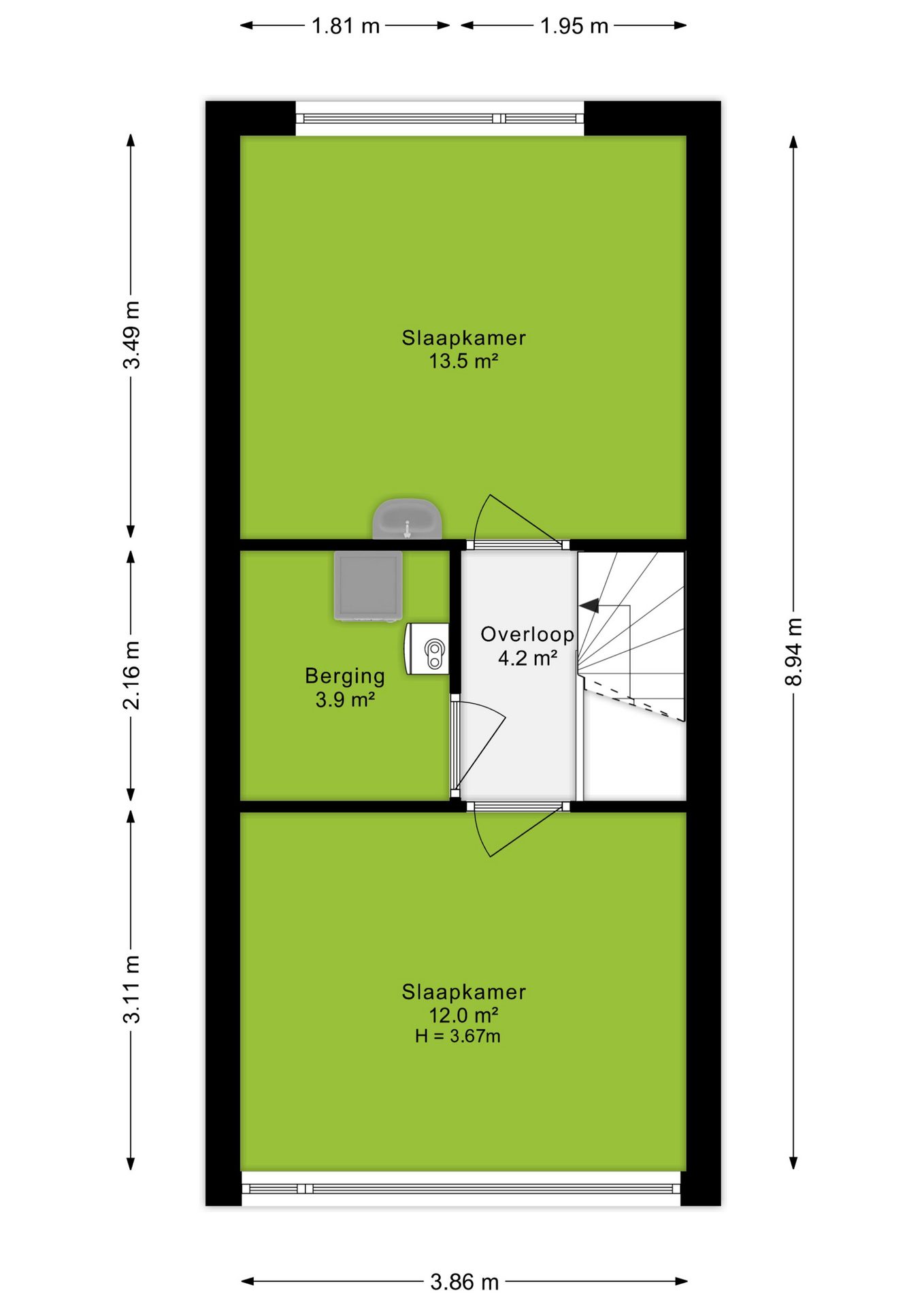
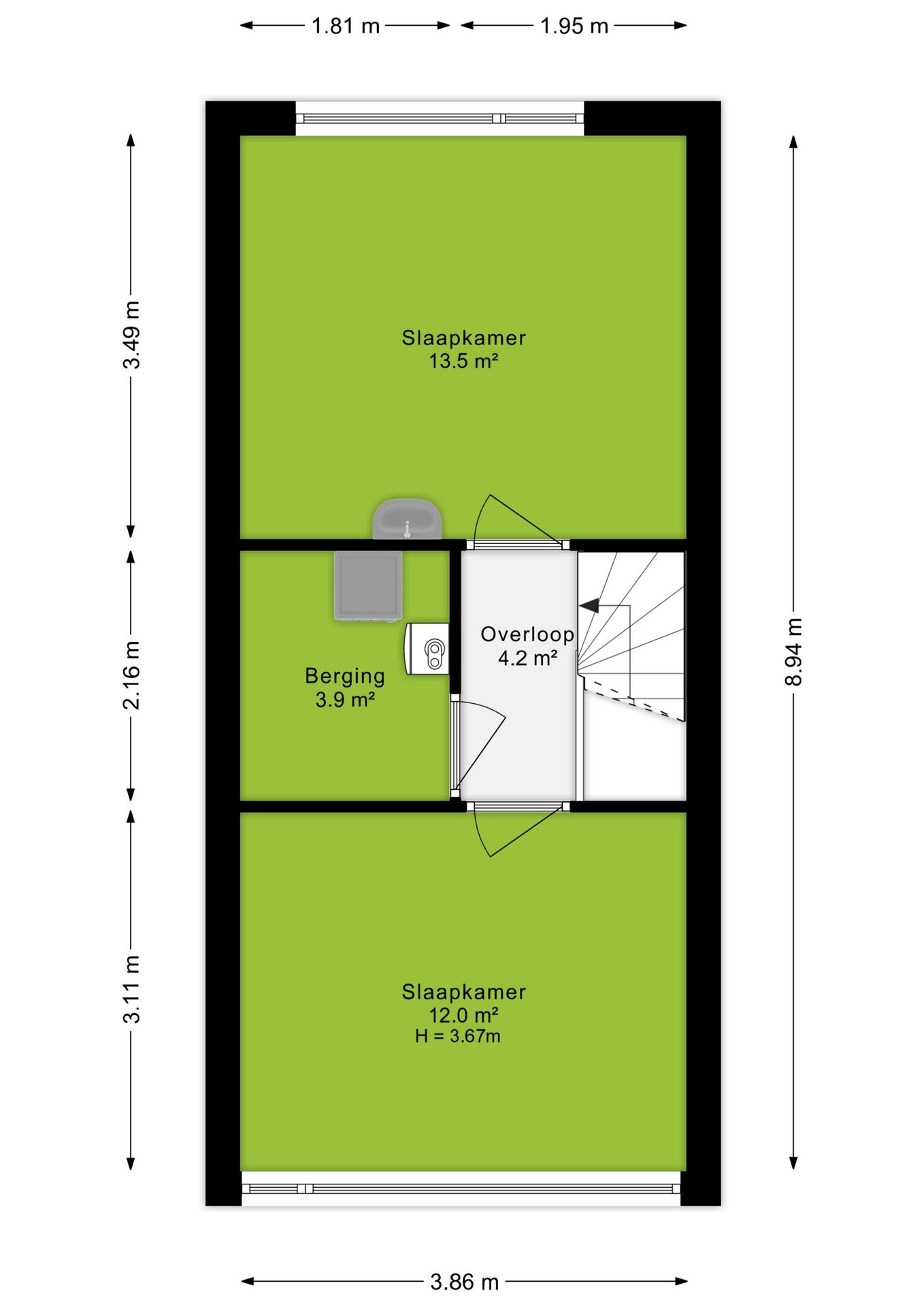
Tweede verdieping
De vaste trap leidt naar de tweede verdieping met nog twee slaapkamers van circa 14 m² en 12 m² groot. Verder is er een berging met een wasmachineaansluiting.

Buitenruimte
Zowel vanuit de woonkamer als de eetkamer bereik je de tuin. De achtertuin van circa 12 meter diep ligt op het zuidoosten en biedt volop zon. Er zijn meerdere zitplekjes te creëren en achterin de tuin staat een houten berging, ideaal voor tuingereedschap.

Bijzonderheden
Bij deze woning hoort een mandelig perceel waarvoor jaarlijks €50,- in rekening wordt gebracht.

Koopovereenkomst:
Bij de verkoop zal er een standaard NVM koopovereenkomst worden gehanteerd.
Bij woningen welke ouder zijn dan 20 jaar, worden de volgende clausules opgenomen in de koopovereenkomst:
- Ouderdomsclausule.

Koop je de woning zonder voorbehoud van financiering? Dan zullen wij een termijn hanteren van 6 weken na het opstellen van de koopovereenkomst voor het storten van de bankgarantie/waarborgsom.
+ toon meer
deze woning is Verkocht

Nimrodlaan 13 Ede

Nimrodlaan 13

6713 HP, Ede
Ditters open huis: 5 april 2025 10:00 - 12:00 uur
Landelijke Open Huizen Route NVM: 5 april 2025 11:00 uur - 15:00 uur
Vanaf€ 550.000 k.k.

Schakel een aankoopmakelaar in.

Snel handelen helpt je jouw droomhuis te bemachtigen. Zo vergroot je de kans dat je er op tijd bij bent.
Ede
verkocht

Of maak vrijblijvend een zoekprofiel aan.

Vergelijkbare woningen

Hypotheken

Onafhankelijk hypotheekadvies

  • Ligt jouw droomhuis binnen handbereik?
  • Wil je jouw huidige hypotheek verhogen?
  • Is er hypotheekruimte voor verduurzaming?

Blijf op de hoogte

Ontvang als eerste updates over nieuw aanbod en mis geen enkele kans om jouw droomwoning te vinden.

Gratis waardebepaling of verkoopgesprek

Met de vrijblijvende waardecheck weet je snel waar je aan toe bent. Onze makelaars kijken naar de lokale markt en vergelijkbare woningen in jouw buurt om een goede schatting te geven.

Realiseer al jouw woondromen met Ditters

Wij zijn een team van gedreven vastgoedexperts met een passie voor het maken van verbindingen – tussen kopers en verkopers, huurders en verhuurders. Met een frisse kijk op de makelaardij combineren we expertise met creativiteit. Onze makelaars luisteren écht en nemen de tijd om jouw wensen te begrijpen.


Bij Ditters sta je er niet alleen voor. We denken met je mee, begeleiden je in elke stap en zijn altijd bereikbaar voor vragen. Neem gerust contact met ons op – we helpen je graag verder!