Omschrijving

Bent u op zoek naar een royaal Herenhuis (twee-onder-een kap woning) met aangebouwde praktijkruimte, vijf ruime slaapkamers en vrij uitzicht richting de Concordiamolen, gelegen nabij het winkelhart van Ede met zijn voorzieningen? Neem dan telefonisch contact op om een vrijblijvende bezichtiging in te plannen.

Vanuit de woning Notaris van Puttenstraat 19 te Ede is de gezellige Concordiamolen te zien en op steenworp afstand van diverse voorzieningen. Het winkelhart van Ede, bibliotheek en diverse culturele instellingen zijn op korte afstand gelegen. Scholen, sportaccommodaties en de Hoge Veluwe waar men kan genieten van de rust en de natuur is een fijne combinatie van het centrale wonen in Ede. De woning ligt aan een rustige weg waar alleen bestemmingsverkeer komt.

Tevens is er een goede aansluiting op diverse uitvalswegen zoals A12, N224 en A30. Maar ook Intercitystation Ede-Wageningen is binnen handbereik aanwezig.

Enkele pluspunten van de woning:
+ Woonkamer met sfeervolle hoek haard en veel lichtinval;
+ Gehele begane grond voorzien van vloerverwarming met antraciet vloertegel;
+ Royale moderne keuken met onder- en bovenkastjes en diverse inbouwapparatuur te weten: oven, vaatwasser, gaskookplaat, afzuigkap;
+ 5 ruime slaapkamers, eventueel een 6de kamer door de praktijkruime om te bouwen naar slaapkamer;
+ Openslaande tuindeuren met aan beide zijden een raampartij wat zorgt voor veel lichtinval;
+ Ruime oprit met plek voor meerdere auto's;
+ Aangebouwde praktijkruimte die zelfstandig te betreden is, tevens vanuit huis bereikbaar;
+ 14 Zonnepanelen;
+ Rolluiken aanwezig.

Indeling
Begane grond:
Ruime entree/hal, meterkast, garderobe, toiletruimte met zwevend toilet, fonteintje en licht tegelwerk, trapopgang naar de 1e verdieping. Vanuit de hal komt men in de L-vormige woonkamer met sfeervolle gashaard, veel lichtinval en gezellige living. Grenzend aan de woonkamer de ruime moderne woonkeuken, diverse inbouwapparatuur en veel natuurlijk lichtinval door de openslaande tuindeuren en de raampartij. De gehele benedenverdieping is voorzien van vloerverwarming met uitzondering van het toilet en berging.

Vanuit de woonkeuken kan men naar de praktische bijkeuken/berging en vanuit daar naar de praktijkruimte.

Ideale aangebouwde praktijkruimte die zowel vanuit de woning als zelfstandig bereikbaar is. Deze ruimte heeft een wachtruimte en eigen toiletvoorziening.

Heerlijke overkapping om zo nog meer te genieten van de onderhoudsarme tuin en het buitenleven.

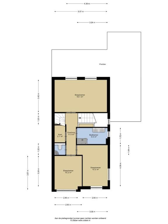
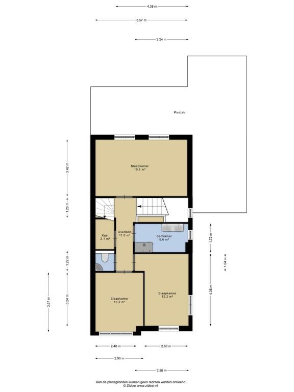
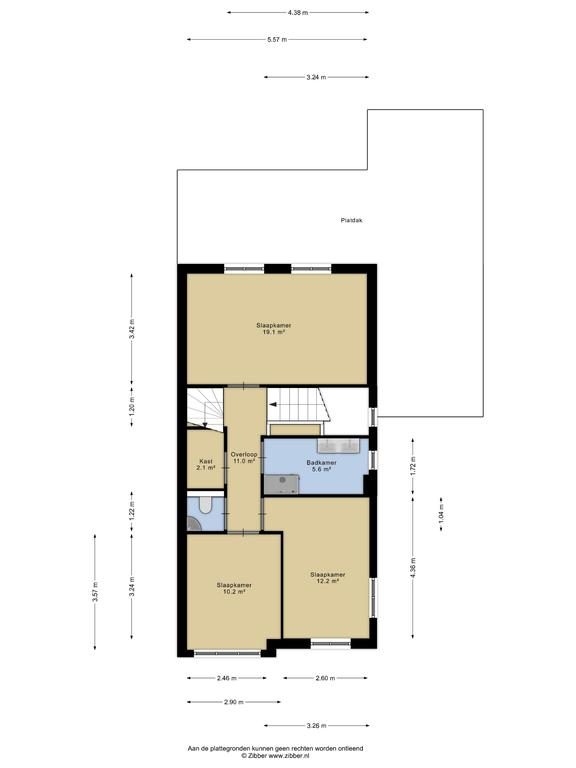
1e verdieping:
Ruime overloop met toegang naar de overige 2 slaapkamers en een ruime master bedroom. De moderne volledig betegelde badkamer is uitgerust met inloopdouche, wastafel, designradiator en tegelwerk tot plafond. Separaat toiletruimte met fonteintje. Separaat toiletruimte met fonteintje.

2e verdieping:
Overloop, veel ruimte aanwezig op deze verdieping door o.a. het grote dakkapel. Tevens 2 slaapkamer/studeerkamer en extra ruimte met wasmachine-, drogeraansluiting en CV-opstelling. Op deze verdieping is ook veel kastruimte en bergruimte achter de knieschotten aanwezig.

3e verdieping:
Via vlizotrap is de praktische vliering te bereiken.

Exterieur:
Onderhoudsarme tuin met diverse bordes. De overkapping met ingebouwde ledverlichting geeft echt een meerwaarde aan de woning. De woning heeft een achterom en een keurig verzorgd hekwerk. Praktische berging voor het opbergen van fietsen en tuingereedschap.

Woonoppervlakte: 195 m²
Inhoud: 716 m³
Perceeloppervlakte: 218 m²

Bijzonderheden
Verwarming: CV-installatie Intergas Kompakt HRE 2010
Warmwater: CV-installatie, Intergas Kompakt HRE 2010
Bouwjaar: 2010;
Tuinligging: Zuidoost;
Aanvaarding: In overleg.

Koopovereenkomst:
Koopt u de woning zonder voorbehoud van financiering? Dan zullen wij een termijn hanteren van 14 dagen na het opstellen van de koopovereenkomst voor het storten van de bankgarantie/waarborgsom.

Deze informatie is door ons met de nodige zorgvuldigheid samengesteld. Onzerzijds wordt echter geen enkele aansprakelijkheid aanvaard voor enige onvolledigheid, onjuistheid of anderszins, dan wel de gevolgen daarvan. Alle opgegeven maten en oppervlakten zijn indicatief.
+ toon meer
deze woning is Verkocht

Notaris van Puttenstraat 19 Ede

Notaris van Puttenstraat 19

6712 EK, Ede
Ditters open huis: 5 april 2025 10:00 - 12:00 uur
Landelijke Open Huizen Route NVM: 5 april 2025 11:00 uur - 15:00 uur
Vanaf€ 735.000 k.k.

Schakel een aankoopmakelaar in.

Snel handelen helpt je jouw droomhuis te bemachtigen. Zo vergroot je de kans dat je er op tijd bij bent.
Ede
verkocht

Of maak vrijblijvend een zoekprofiel aan.

Vergelijkbare woningen

Hypotheken

Onafhankelijk hypotheekadvies

  • Ligt jouw droomhuis binnen handbereik?
  • Wil je jouw huidige hypotheek verhogen?
  • Is er hypotheekruimte voor verduurzaming?

Blijf op de hoogte

Ontvang als eerste updates over nieuw aanbod en mis geen enkele kans om jouw droomwoning te vinden.

Gratis waardebepaling of verkoopgesprek

Met de vrijblijvende waardecheck weet je snel waar je aan toe bent. Onze makelaars kijken naar de lokale markt en vergelijkbare woningen in jouw buurt om een goede schatting te geven.

Realiseer al jouw woondromen met Ditters

Wij zijn een team van gedreven vastgoedexperts met een passie voor het maken van verbindingen – tussen kopers en verkopers, huurders en verhuurders. Met een frisse kijk op de makelaardij combineren we expertise met creativiteit. Onze makelaars luisteren écht en nemen de tijd om jouw wensen te begrijpen.


Bij Ditters sta je er niet alleen voor. We denken met je mee, begeleiden je in elke stap en zijn altijd bereikbaar voor vragen. Neem gerust contact met ons op – we helpen je graag verder!