Omschrijving

Ben je op zoek naar een ruime tussenwoning met een verrassende hoeveelheid licht, een sfeervolle tuin en een praktische indeling? Dan is Palmedreef 25 in Ede absoluut een bezichtiging waard.
Deze goed onderhouden woning uit 1991 biedt maar liefst vier slaapkamers, een moderne badkamer, een lichte woonkamer met gezellige houtkachel, 12 zonnepanelen én een zonnige tuin op het noordwesten. Dankzij de grote raampartijen en de lichtkoepel in het eetgedeelte geniet je van een fijne, lichte leefruimte.

De woning ligt in een rustige, kindvriendelijke woonwijk met veel voorzieningen op loopafstand. Zo bereik je binnen enkele minuten het winkelcentrum Stadspoort, een bioscoop en diverse sportvoorzieningen. Ook het treinstation Ede-Wageningen, de uitvalswegen A12 en A30 en natuurgebieden zoals de Ginkelse Heide zijn eenvoudig bereikbaar.

Pluspunten van deze woning:
+ Woonoppervlakte ca. 117 m², goed ingedeeld over drie verdiepingen;
+ Sfeervolle, verzorgde tuin op het noordwesten met zonnescherm, overkapping, berging en achterom;
+ Moderne badkamer (2019) met inloopdouche, wastafelmeubel en toilet;
+ Vier volwaardige slaapkamers, ideaal voor gezinnen of thuiswerken;
+ Lichte woonkamer met gezellige houtkachel en Solatube;
+ Woonkeuken voorzien van inbouwapparatuur;
+ Maar liefst 12 zonnepanelen, die zorgen voor lagere energiekosten;
+ Rustige en kindvriendelijke ligging met veel groen in de directe omgeving;
+ Nabij winkelcentrum Stadspoort, bioscoop, scholen, OV en sportfaciliteiten;
+ Goede bereikbaarheid van de A12, A30 en station Ede-Wageningen.

Indeling:
Begane grond
Je betreedt de woning via de hal met meterkast, toilet en trapopgang. De woonkamer is uitgebouwd en opvallend licht dankzij de grote raampartij en lichtkoepel (Solatube) aan de achterzijde. De sfeervolle houtkachel zorgt voor extra warmte en gezelligheid in de wintermaanden. Zowel via de achterdeur als de tussen hal is de achtertuin te bereiken.

Aan de voorzijde bevindt zich de woonkeuken, voorzien van vaatwasser, koel/vriescombinatie, oven met magnetron functie, gaskookplaat en afzuigkap. Tevens is er een elektrisch screen aanwezig.

Eerste verdieping
Op deze verdieping vind je drie slaapkamers. Een ruime slaapkamer van ca. 13 m² is aan de voorzijde gelegen. Aan de achterzijde zijn nog 2 slaapkamers waarvan de ene een Velux dakraam en de ander een dakkapel heeft. Deze laatste beschikt over een rolluik.

De luxe, moderne badkamer (vernieuwd in 2019) beschikt over een ruime inloopdouche, een dubbele wastafel met meubel, spiegel met verwarming en verlichting, zwevend toilet en een designradiator.

Tweede verdieping
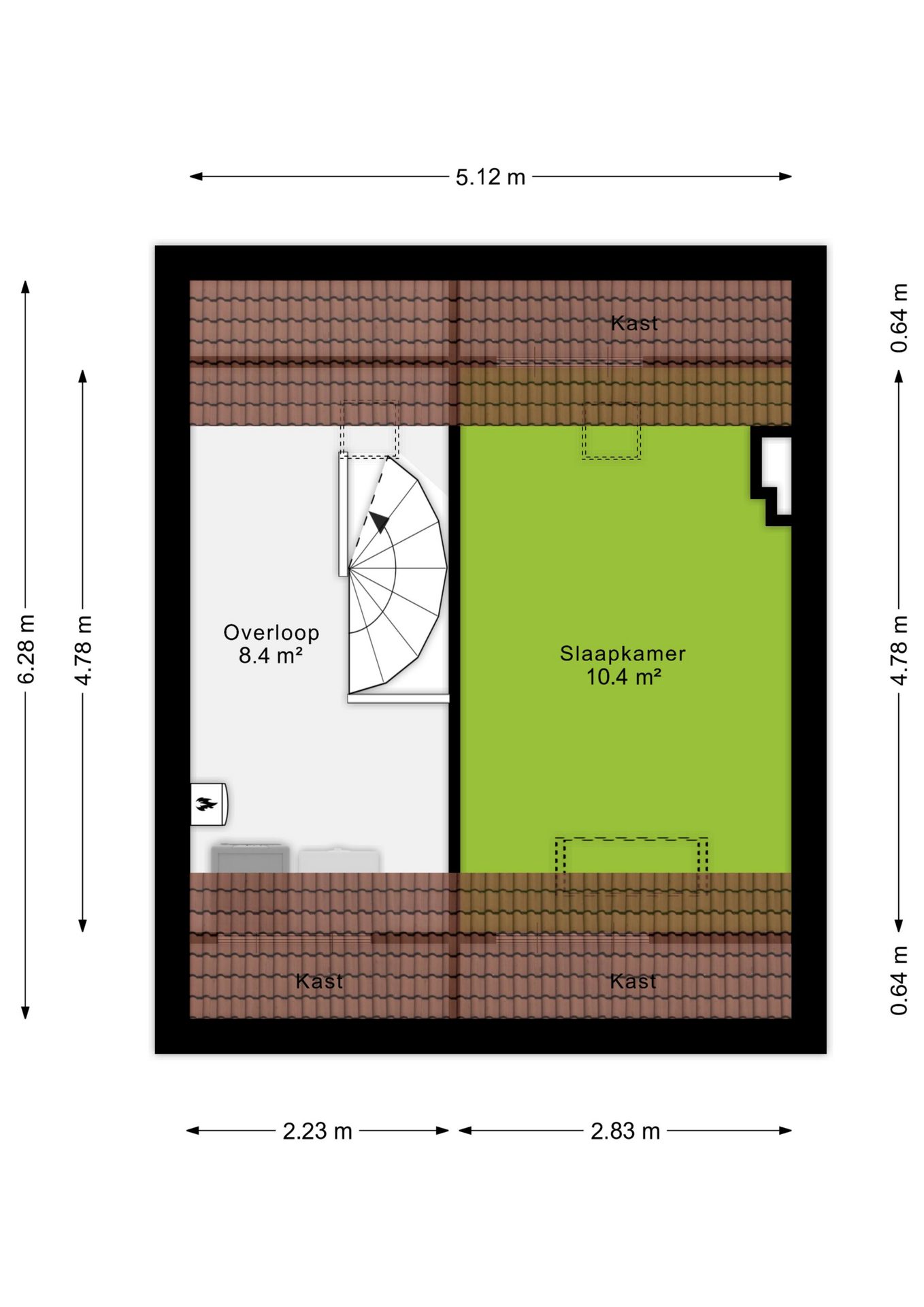
De zolderverdieping is praktisch ingericht met een vierde slaapkamer van ca. 10 m² met laminaatvloer, ideaal als werk-, hobby- of logeerkamer. Daarnaast is er de voorzolder met Velux dakraam, CV ketel opstelling (Remeha, 2023) en de aansluiting voor de wasmachine.

Buitenruimte
De achtertuin is gelegen op het noordwesten en biedt veel privacy. Dankzij de gunstige ligging geniet je vanaf de middag tot in de avond van de zon. De tuin is fraai aangelegd, beschikt over een zonnescherm en heeft een achterom. Achter in de tuin staat een vrijstaande berging, ideaal voor fietsen en opslag. Tevens is er een sfeervolle overkapping aanwezig.

Koopovereenkomst:
- Bij de verkoop zal er een standaard NVM koopovereenkomst worden gehanteerd. Bij woningen welke ouder zijn dan 20 jaar, worden de volgende clausules opgenomen in de koopovereenkomst:
- Asbestclausule;
- Ouderdomsclausule.

Koop je de woning zonder voorbehoud van financiering? Dan zullen wij een termijn hanteren van 14 dagen na het opstellen van de koopovereenkomst voor het storten van de bankgarantie/waarborgsom.

Deze informatie is door ons met de nodige zorgvuldigheid samengesteld. Onzerzijds wordt echter geen enkele aansprakelijkheid aanvaard voor enige onvolledigheid, onjuistheid of anderszins, dan wel de gevolgen daarvan. Alle opgegeven maten en oppervlakten zijn indicatief.
+ toon meer
deze woning is Verkocht

Palmedreef 25 Ede

Palmedreef 25

6716 HA, Ede
Ditters open huis: 5 april 2025 10:00 - 12:00 uur
Landelijke Open Huizen Route NVM: 5 april 2025 11:00 uur - 15:00 uur
Vanaf€ 425.000 k.k.

Schakel een aankoopmakelaar in.

Snel handelen helpt je jouw droomhuis te bemachtigen. Zo vergroot je de kans dat je er op tijd bij bent.
Ede
verkocht

Of maak vrijblijvend een zoekprofiel aan.

Vergelijkbare woningen

Hypotheken

Onafhankelijk hypotheekadvies

  • Ligt jouw droomhuis binnen handbereik?
  • Wil je jouw huidige hypotheek verhogen?
  • Is er hypotheekruimte voor verduurzaming?

Blijf op de hoogte

Ontvang als eerste updates over nieuw aanbod en mis geen enkele kans om jouw droomwoning te vinden.

Gratis waardebepaling of verkoopgesprek

Met de vrijblijvende waardecheck weet je snel waar je aan toe bent. Onze makelaars kijken naar de lokale markt en vergelijkbare woningen in jouw buurt om een goede schatting te geven.

Realiseer al jouw woondromen met Ditters

Wij zijn een team van gedreven vastgoedexperts met een passie voor het maken van verbindingen – tussen kopers en verkopers, huurders en verhuurders. Met een frisse kijk op de makelaardij combineren we expertise met creativiteit. Onze makelaars luisteren écht en nemen de tijd om jouw wensen te begrijpen.


Bij Ditters sta je er niet alleen voor. We denken met je mee, begeleiden je in elke stap en zijn altijd bereikbaar voor vragen. Neem gerust contact met ons op – we helpen je graag verder!