Omschrijving

Deze goed onderhouden woning beschikt over drie slaapkamers, negen zonnepanelen en een zonnige tuin op het zuiden, wat garant staat voor comfortabel en energiezuinig wonen. Dankzij de lichte woonkamer, praktische indeling en parkeergelegenheid op eigen terrein is dit een ideale gezinswoning op een centrale locatie in Ede.

De woning bevindt zich op slechts enkele minuten fietsen van winkelcentrum Spindop, winkelcentrum Stadspoort en station Ede-Wageningen. Bovendien bevinden diverse basisscholen, scholen voor voortgezet onderwijs, MBO- en HBO-instellingen, sportfaciliteiten en belangrijke uitvalswegen zich in de directe omgeving. Zo woon je centraal en toch in een rustige woonomgeving.

Pluspunten van deze woning
+ Tussenwoning met 3 slaapkamers
+ Zolder aanwezig voor extra opslagruimte
+ Tuin op het zuiden met handige achterom
+ Parkeren op eigen terrein
+ Twee bergingen aanwezig
+ Energielabel A en voorzien van 9 zonnepanelen

Indeling
Begane grond
Bij binnenkomst in de entree bevinden zich de meterkast, het toilet en de toegang tot de berging aan de voorzijde van de woning. De woonkamer is licht met een fijne overgang naar de open keuken. De keuken is opgesteld in een L-vorm en voorzien van diverse inbouwapparatuur, waaronder een gasfornuis, afzuigkap, combi-oven, koelkast en vaatwasser. De praktische trapkast biedt extra opbergruimte voor huishoudelijke spullen of voorraad.

Eerste verdieping
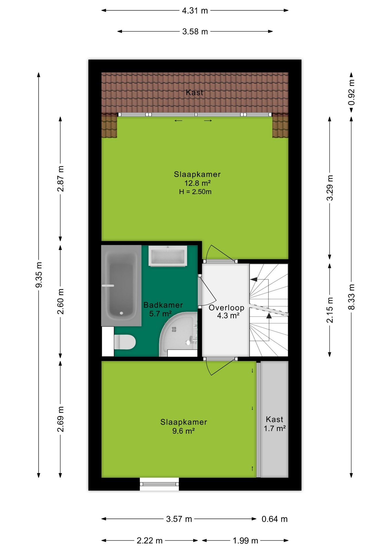
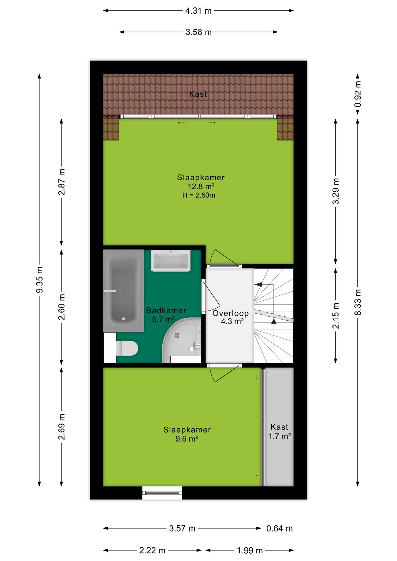
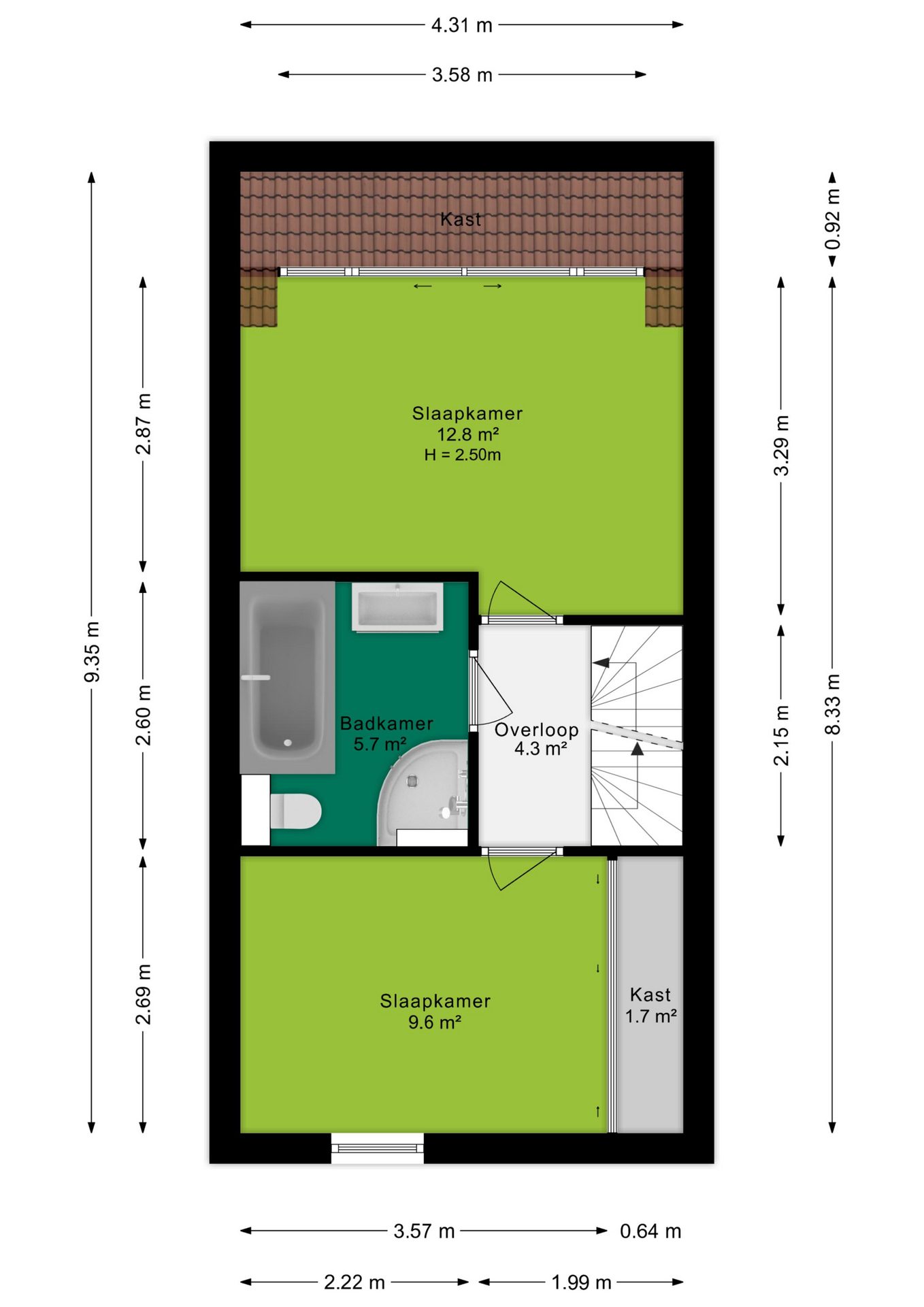
Op de eerste verdieping bevinden zich twee slaapkamers van ongeveer 10 m² en 13 m². De slaapkamer aan de voorzijde is voorzien van een vaste inbouwkast, terwijl de slaapkamer aan de achterzijde dankzij een dakkapel extra ruimtelijk is.
De badkamer is compleet uitgerust met een ligbad, douche, toilet, wastafel met meubel en designradiator.

Tweede verdieping
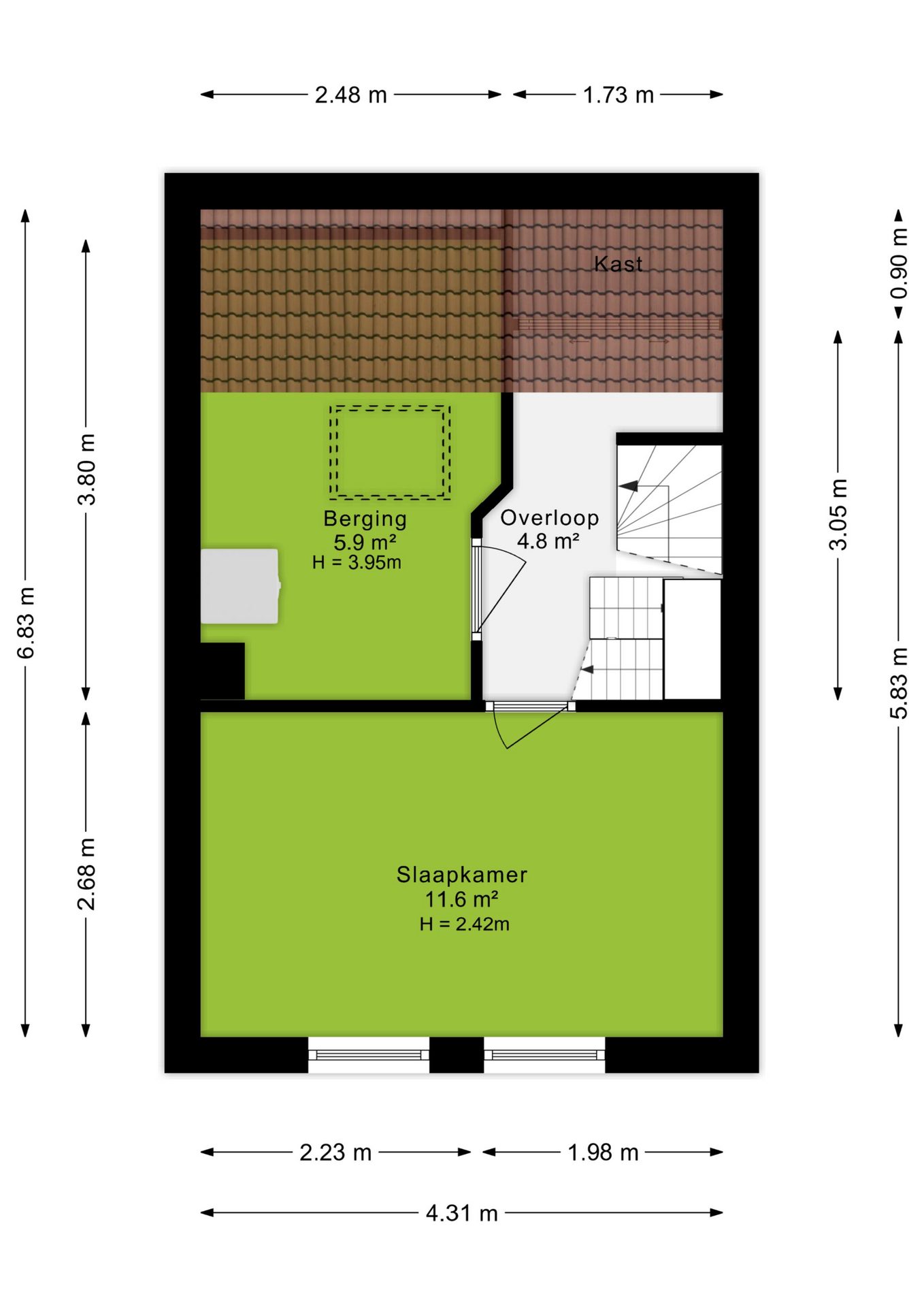
Via de vaste trap bereik je de tweede verdieping met een ruime overloop en toegang tot een derde slaapkamer. Hier bevindt zich ook een berging met wasmachineaansluiting. en vaste trap leidt naar de zolder, waar je gemakkelijk kunt staan. Hier is extra bergruimte aanwezig, waardoor het een functionele ruimte vormt.

Buitenruimte
De zonnige achtertuin ligt op het zuiden en beschikt over een achterom en een stenen berging van circa 6 m². Dankzij de gunstige ligging geniet je hier de hele dag door van de zon.

Koopovereenkomst:
Bij de verkoop zal er een standaard NVM koopovereenkomst worden gehanteerd. Bij woningen welke ouder zijn dan 20 jaar, worden de volgende clausules opgenomen in de koopovereenkomst:
- Asbestclausule;
- Ouderdomsclausule.

Koop je de woning zonder voorbehoud van financiering? Dan zullen wij een termijn hanteren van 6 weken na het opstellen van de koopovereenkomst voor het storten van de bankgarantie/waarborgsom.

Deze informatie is door ons met de nodige zorgvuldigheid samengesteld. Onzerzijds wordt echter geen enkele aansprakelijkheid aanvaard voor enige onvolledigheid, onjuistheid of anderszins, dan wel de gevolgen daarvan. Alle opgegeven maten en oppervlakten zijn indicatief.
+ toon meer
deze woning is Verkocht

Pieter de Hooghstraat 68 Ede

Pieter de Hooghstraat 68

6717 PX, Ede
Ditters open huis: 5 april 2025 10:00 - 12:00 uur
Landelijke Open Huizen Route NVM: 5 april 2025 11:00 uur - 15:00 uur
Vanaf€ 400.000 k.k.

Schakel een aankoopmakelaar in.

Snel handelen helpt je jouw droomhuis te bemachtigen. Zo vergroot je de kans dat je er op tijd bij bent.
Ede
verkocht

Of maak vrijblijvend een zoekprofiel aan.

Vergelijkbare woningen

Hypotheken

Onafhankelijk hypotheekadvies

  • Ligt jouw droomhuis binnen handbereik?
  • Wil je jouw huidige hypotheek verhogen?
  • Is er hypotheekruimte voor verduurzaming?

Blijf op de hoogte

Ontvang als eerste updates over nieuw aanbod en mis geen enkele kans om jouw droomwoning te vinden.

Gratis waardebepaling of verkoopgesprek

Met de vrijblijvende waardecheck weet je snel waar je aan toe bent. Onze makelaars kijken naar de lokale markt en vergelijkbare woningen in jouw buurt om een goede schatting te geven.

Realiseer al jouw woondromen met Ditters

Wij zijn een team van gedreven vastgoedexperts met een passie voor het maken van verbindingen – tussen kopers en verkopers, huurders en verhuurders. Met een frisse kijk op de makelaardij combineren we expertise met creativiteit. Onze makelaars luisteren écht en nemen de tijd om jouw wensen te begrijpen.


Bij Ditters sta je er niet alleen voor. We denken met je mee, begeleiden je in elke stap en zijn altijd bereikbaar voor vragen. Neem gerust contact met ons op – we helpen je graag verder!