Omschrijving

Ontdek de ultieme levensloopbestendige vrijstaande woning aan de Proosdijweg 12 in Ede, met een praktische slaapkamer op de begane grond en een royale oprit met parkeergelegenheid!

Levensloopbestendige woning, wat betekent dat alle voorzieningen zoals wonen, wassen, koken, slapen en baden zich op de begane grond bevinden. Stap de keuken binnen en ontdek de moderne inbouwapparatuur die koken tot een plezier maakt. In de woonkamer zorgt een sfeervolle pelletkachel voor warmte en gezelligheid, terwijl de erker met zijn overvloedige lichtinval een uitnodigende en open sfeer creëert. Een perfecte combinatie van comfort en stijl!

De lange oprit en overkapping bieden de mogelijkheid om je auto droog te parkeren. De ruime tuin rondom het huis geeft een gevoel van vrijheid. Vanuit de woonkamer, keuken en slaapkamer biedt het uitzicht op de verzorgde tuin. Bovendien ligt de achtertuin op het zuidwesten, wat betekent dat je altijd wel een zonnig plekje kunt vinden.

Fijn wonen zo dichtbij het Proosdijpark, de kinderboerderij, winkelcentrum Bellestein, Rozenplein en Parkweide. Een rustige wandeling door het park of de wekelijkse boodschappen halen, alles op korte afstand van elkaar. De woning is gelegen aan een rustige weg in een aangename woonomgeving. Er zijn diverse speeltuinen, scholen en sportgelegenheden in de directe omgeving. Voor de dagelijkse boodschappen kun je goed terecht bij winkelcentrum 'Bellestein', met o.a. 2 supermarkten, drogist, bakker, slager, bloemist en een kapper, apotheek en een gezondheidscentrum. Maar ook het winkelcentrum Rozenplein en Parkweide, beiden met een Albert Heijn, bieden diverse winkels. Het centrum van Ede is gemakkelijk te bereiken met de fiets.

Alle feiten op een rij:
* Levensloopbestendige woning
* Vrijstaande woning met 3 (slaap)kamers
* Lange oprit voor parkeerplaats op eigen terrein
* Overkapping biedt de mogelijkheid om de auto droog te parkeren
* Ruime stenen garage voor opslag
* Slaapkamer en badkamer op de begane grond voor extra comfort
* Gelegen nabij dagelijkse voorzieningen en winkelcentrum Bellestein, Rozenplein en Parkweide

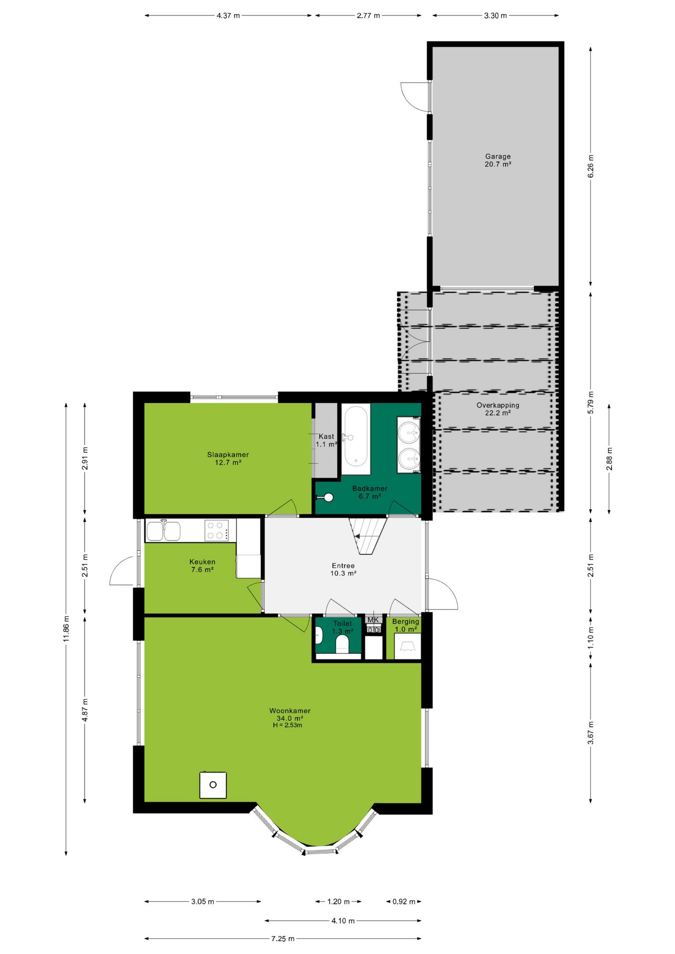
Indeling
Begane grond
Bij binnenkomst stap je in de ruime hal, uitgerust met een meterkast, berging, trap naar de eerste verdieping en een toiletruimte, die als het centrale deel van het huis toegang biedt tot de keuken, woonkamer, slaapkamer en badkamer. De woonkamer, gelegen aan de voorkant van het huis, heeft een grote erker die voor veel lichtinval zorgt. En nog zo'n pluspunt is de mooie houten vloer.
Via de hal betreed je de lichte keuken, die is uitgerust met diverse inbouwapparatuur zoals een koelkast, inductiekookplaat, combi oven en vaatwasser, en vanuit de keukendeur stap je direct de fraaie tuin in.
Deze woning is absoluut levensloopbestendig, met een slaapkamer en badkamer op de begane grond heb je alle gemakken binnen handbereik. Dat is pas comfortabel wonen!

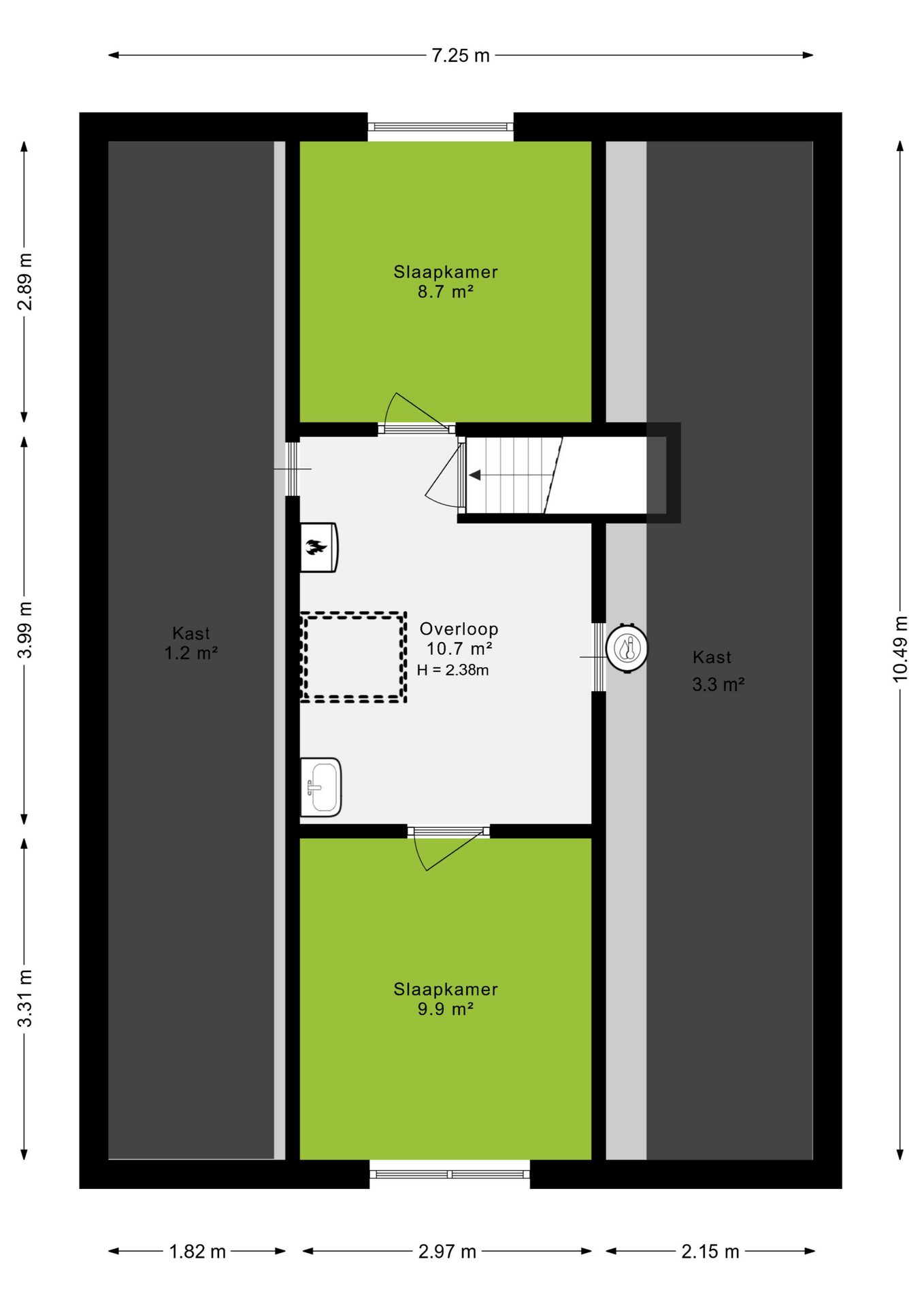
Verdieping
Via de vaste trap bereik je de overloop op de eerste verdieping, die toegang biedt tot twee slaapkamers. De slaapkamers beschikken over fijn daglicht door de aanwezige ramen en zijn circa 9m² en 10m². Op de overloop tref je een wastafel met meubel en toegang naar de bergruimte achter de knieschotten aan beide kanten van de woning.

Buiten
Een diepe en brede tuin op het zonnige zuidwesten, perfect voor lange zomerdagen vol ontspanning. In de stenen garage kun je gereedschap, fietsen en de auto stallen. Daarnaast is er een charmante houten berging, ideaal om te toveren tot een inspirerende hobbyruimte. Een plek waar je creativiteit en praktische behoeften moeiteloos samenkomen.

Extra artikel in de verkooptekst
Koopovereenkomst:
Bij de verkoop zal er een standaard NVM koopovereenkomst worden gehanteerd. Bij woningen welke ouder zijn dan 20 jaar, worden de volgende clausules opgenomen in de koopovereenkomst:
- Asbestclausule
- Ouderdomsclausule

Koopt u de woning zonder voorbehoud van financiering? Dan zullen wij een termijn hanteren van 14 dagen na het opstellen van de koopovereenkomst voor het storten van de bankgarantie/waarborgsom.

DISCLAIMER!
Deze informatie is door ons met de nodige zorgvuldigheid samengesteld. Onzerzijds wordt echter geen enkele aansprakelijkheid aanvaard voor enige onvolledigheid, onjuistheid of anderszins, dan wel de gevolgen daarvan. Alle opgegeven maten en oppervlakten zijn indicatief.
+ toon meer
deze woning is Verkocht

Proosdijweg 12 Ede

Proosdijweg 12

6714 AL, Ede
Ditters open huis: 5 april 2025 10:00 - 12:00 uur
Landelijke Open Huizen Route NVM: 5 april 2025 11:00 uur - 15:00 uur
Vanaf€ 575.000 k.k.

Schakel een aankoopmakelaar in.

Snel handelen helpt je jouw droomhuis te bemachtigen. Zo vergroot je de kans dat je er op tijd bij bent.
Ede
verkocht

Of maak vrijblijvend een zoekprofiel aan.

Vergelijkbare woningen

Hypotheken

Onafhankelijk hypotheekadvies

  • Ligt jouw droomhuis binnen handbereik?
  • Wil je jouw huidige hypotheek verhogen?
  • Is er hypotheekruimte voor verduurzaming?

Blijf op de hoogte

Ontvang als eerste updates over nieuw aanbod en mis geen enkele kans om jouw droomwoning te vinden.

Gratis waardebepaling of verkoopgesprek

Met de vrijblijvende waardecheck weet je snel waar je aan toe bent. Onze makelaars kijken naar de lokale markt en vergelijkbare woningen in jouw buurt om een goede schatting te geven.

Realiseer al jouw woondromen met Ditters

Wij zijn een team van gedreven vastgoedexperts met een passie voor het maken van verbindingen – tussen kopers en verkopers, huurders en verhuurders. Met een frisse kijk op de makelaardij combineren we expertise met creativiteit. Onze makelaars luisteren écht en nemen de tijd om jouw wensen te begrijpen.


Bij Ditters sta je er niet alleen voor. We denken met je mee, begeleiden je in elke stap en zijn altijd bereikbaar voor vragen. Neem gerust contact met ons op – we helpen je graag verder!