Omschrijving

Charmante twee-onder-een-kapwoning met moderne keuken, zonnige tuin en eigen oprit — wonen in het groene Leersum

Ben jij op zoek naar een sfeervolle en praktisch ingedeelde woning met moderne voorzieningen, veel privacy en een fijne ligging nabij natuur en dagelijkse voorzieningen? Dan is Koningin-Julianalaan 20 in Leersum precies wat je zoekt.
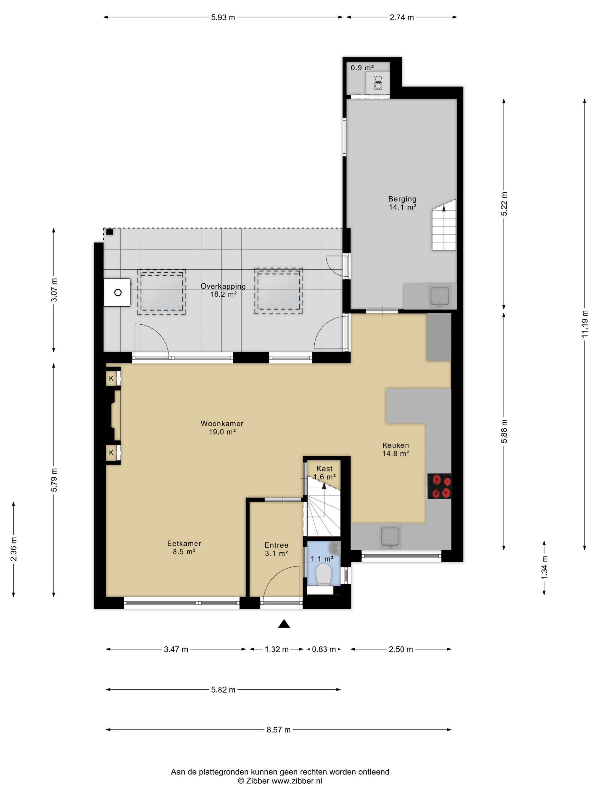
Bij de woning zit een praktische bijkeuken van 14m², met enige ingrepen kan dit gemakkelijk bij de woning betrokken worden en als extra woonruimte gebruikt worden.

Deze twee-onder-een-kapwoning uit 1975 is verrassend ruim, beschikt over drie slaapkamers, een uitgebouwde keuken uit 2023 en een zonnige tuin met overkapping. De woning ligt op een perceel van ca. 195 m², biedt parkeergelegenheid op eigen terrein en heeft zowel binnen als buiten fijne leefruimte.

Je woont hier in een rustige woonomgeving met sportvelden, supermarkten, BSO, openbaar vervoer en prachtige wandelgebieden in de directe omgeving. De Utrechtse Heuvelrug en bossen van Leersum liggen praktisch om de hoek, ideaal voor natuurliefhebbers. Je woont hier landelijk en groen, maar toch met alle dagelijkse voorzieningen binnen handbereik.

Interesse?
Koningin-Julianalaan 20 biedt een comfortabele gezinswoning met veel privacy, moderne voorzieningen en een fijne ligging. Benieuwd naar de mogelijkheden? Plan snel een bezichtiging, wij laten je deze woning graag persoonlijk ervaren!

Wat maakt deze woning aantrekkelijk:
+ Twee-onder-een-kapwoning met veel privacy
+ Woonoppervlakte ca. 82 m², perceel ca. 195 m²
+ Uitgebouwde, moderne keuken (2023) met eigentijdse afwerking
+ Gehele benedenverdieping voorzien van elektrische screens
+ Drie slaapkamers, elektrische rolluiken op de eerste verdieping aanwezig
+ Zonnige tuin op het noordoosten met overkapping en terras
+ Grote berging met witgoedaansluiting, ideaal voor opslag
+ Parkeren op eigen terrein
+ 2 Airco's aanwezig voor extra comfort
+ Rustige ligging nabij winkels, sportvoorzieningen en natuur

Indeling
Begane grond:
Via de ruime eigen oprit kom je bij de entree met toilet, lichte woonkamer en de uitgebouwde keuken, welke vernieuwd is in 2023. De woonkamer beschikt over heerlijk veel lichtinval en een fijne mogelijkheid voor om een grote eettafel te plaatsen en lekker te borrelen met vrienden. De keuken beschikt over moderne apparatuur en biedt veel werkruimte. Vanuit de keuken is er toegang tot de tuin met overkapping. Aansluitend vind je een grote berging met witgoedaansluiting.

Eerste verdieping:
Via de vaste trap kom je bij de overloop met toegang tot drie fijne slaapkamers en de badkamer. De ouderslaapkamer beschikt over een airco en is aan de achterzijde gelegen, samen met de 2de slaapkamer. De derde (slaap) kamer ligt aan de voorzijde van de woning. De (slaap)kamers, en overloop, zijn voorzien van elektrische rolluiken, wat zorgt voor extra privacy en comfort.
De badkamer is aan de voorzijde van de woning gelegen en is volledig betegeld en een fijn raam voor daglicht toetreding en natuurlijke ventilatie. De badkamer is uitgerust met een wastafel en een douchecabine.

Tweede verdieping:
Via een vlizotrap is de praktische vliering bereikbaar, ideaal voor extra opslag.

Exterieur:
De zonnige achtertuin is gelegen op het noordoosten en biedt dankzij de overkapping een fijne, beschutte plek om buiten te zitten, ongeacht het weer. Er is ruimte voor een terras, een zitje en groen. Een heerlijke plek om te genieten na een lange (werk) dag! Aan de voorzijde van de woning bevindt zich de ruime oprit, waar je parkeert op eigen terrein.

Koopovereenkomst:
- Bij de verkoop zal er een standaard NVM koopovereenkomst worden gehanteerd.
Bij woningen welke ouder zijn dan 20 jaar, worden de volgende clausules opgenomen in de koopovereenkomst:
- Asbestclausule;
- Ouderdomsclausule.

Koop je de woning zonder voorbehoud van financiering? Dan zullen wij een termijn hanteren van 14 dagen na het opstellen van de koopovereenkomst voor het storten van de bankgarantie/waarborgsom.

Deze informatie is door ons met de nodige zorgvuldigheid samengesteld. Onzerzijds wordt echter geen enkele aansprakelijkheid aanvaard voor enige onvolledigheid, onjuistheid of anderszins, dan wel de gevolgen daarvan. Alle opgegeven maten en oppervlakten zijn indicatief.
+ toon meer
deze woning is Verkocht

Koningin-Julianalaan 20 Leersum

Koningin-Julianalaan 20

3956 XM, Leersum
Ditters open huis: 5 april 2025 10:00 - 12:00 uur
Landelijke Open Huizen Route NVM: 5 april 2025 11:00 uur - 15:00 uur
Vanaf€ 449.500 k.k.

Schakel een aankoopmakelaar in.

Snel handelen helpt je jouw droomhuis te bemachtigen. Zo vergroot je de kans dat je er op tijd bij bent.
Leersum
verkocht

Of maak vrijblijvend een zoekprofiel aan.

Vergelijkbare woningen

Hypotheken

Onafhankelijk hypotheekadvies

  • Ligt jouw droomhuis binnen handbereik?
  • Wil je jouw huidige hypotheek verhogen?
  • Is er hypotheekruimte voor verduurzaming?

Blijf op de hoogte

Ontvang als eerste updates over nieuw aanbod en mis geen enkele kans om jouw droomwoning te vinden.

Gratis waardebepaling of verkoopgesprek

Met de vrijblijvende waardecheck weet je snel waar je aan toe bent. Onze makelaars kijken naar de lokale markt en vergelijkbare woningen in jouw buurt om een goede schatting te geven.

Realiseer al jouw woondromen met Ditters

Wij zijn een team van gedreven vastgoedexperts met een passie voor het maken van verbindingen – tussen kopers en verkopers, huurders en verhuurders. Met een frisse kijk op de makelaardij combineren we expertise met creativiteit. Onze makelaars luisteren écht en nemen de tijd om jouw wensen te begrijpen.


Bij Ditters sta je er niet alleen voor. We denken met je mee, begeleiden je in elke stap en zijn altijd bereikbaar voor vragen. Neem gerust contact met ons op – we helpen je graag verder!