Omschrijving

Te Koop: charmante, sfeervolle en karakteristieke benedenwoning met energielabel C, veel authentieke details en een royale zonnige (stads)tuin met veel privacy!

Zoek jij een benedenwoning die zowel van binnen als van buiten goed afgewerkte is en die ook nog eens ligt in een van de geliefdste straten van Lombok, de brede en groene J.P. Coenstraat? Vind jij verduurzaming belangrijk en staan goede isolatie en zonnepanelen hoog op jouw wensenlijstje?

Plan dan snel een bezichtiging bij Jan Pieter Coenstraat 129 te Utrecht!

Belangrijkste kenmerken:
- Energielabel C – o.a. voorzien van zonnepanelen en vloerisolatie
- Voorzien van authentieke details (o.a. hoge plafonds, ornamenten, schouw, glas-in-lood )
- Zonnige (stads)tuin met privacy
- Nette keuken en badkamer
- Gelegen op een absolute toplocatie

Omgeving:
De wijk Lombok kenmerkt zich met name door de gezelligheid, vele restaurantjes en winkeltjes op de Kanaalstraat, aan het eind van de straat ligt de Muntkade waar het in de zomer heerlijk vertoeven is.
De ligging t.o.v. openbaar vervoer en de uitvalwegen is ook bijzonder goed en last but not least, het bruisende centrum ligt op loopafstand!

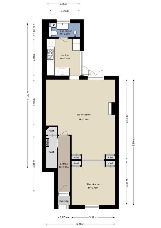
Indeling
Begane grond
Stap binnen en laat het gevoel van ruimtelijkheid je verwelkomen in deze charmante en prachtig afgewerkte woning, waar het indrukwekkende hoge plafond van de entreehal direct aandacht trekt. In deze welkomstruimte vind je niet alleen een handige voorraadkast, maar ook extra bergruimte!

Vanaf het moment dat je de drempel overstapt, word je omhuld door de aangename ambiance die deze woning zo uniek maakt. Elegante hoge plafonds trekken je blik omhoog, terwijl de stijlvolle schouw en de op maat gemaakte kasten zowel in de woonkamer als in de slaapkamer karakter en klasse toevoegen aan het interieur. Dubbele deuren openen naar een verzorgde tuin, waardoor binnen en buiten naadloos met elkaar verbonden worden.

De riante hoofdslaapkamer aan de voorzijde is een echt pronkstuk met een oogstrelend ornament dat direct in het zicht valt. En wat te denken over de en-suite deuren met glas-in-lood. Wat een karakter heeft deze benedenwoning!

De moderne keuken is ideaal gepositioneerd aan de achterzijde van de woning en geniet van alle gemakken die u van een hedendaagse culinaire ruimte mag verwachten, inclusief een vaatwasser, een combi-oven, een gaskookplaat, een wasmachine en een koelkast.

De aansluitende badkamer is met neutrale tinten uitgevoerd en uitgerust met een zwevend toilet, een ruime douche, een wastafelmeubel en een raam dat open kan voor frisse lucht en natuurlijk licht.

Deze woning is met zorg ingericht en wacht erop om uw nieuwe thuis te worden. Elk detail is bedacht om comfort en stijl uit te stralen, en maakt dit tot een plek waar u trots kunt zijn om gasten te ontvangen en te genieten van elk moment van uw dagelijkse leven. Welkom thuis

Kenmerken:
- Energielabel C
- Voorzien van zonnepanelen (2025)
- Voorzien van vloerisolatie (2025)
- Voorzien van karakteristieke details
- Aanvaarding in overleg, kan snel

Koopovereenkomst:
Bij de verkoop zal er een standaard NVM koopovereenkomst worden gehanteerd. Bij woningen welke ouder zijn dan 20 jaar, worden de volgende clausules opgenomen in de koopovereenkomst:
- Asbestclausule;
- Ouderdomsclausule.

Daarnaast zullen onderstaande clausules/artikelen toegevoegd worden aan de koopovereenkomst:
- Niet zelfbewoners clausule

Koopt u de woning zonder voorbehoud van financiering? Dan zullen wij een termijn hanteren van 14 dagen na het opstellen van de koopovereenkomst voor het storten van de bankgarantie/waarborgsom.

Deze informatie is door ons met de nodige zorgvuldigheid samengesteld. Onzerzijds wordt echter geen enkele aansprakelijkheid aanvaard voor enige onvolledigheid, onjuistheid of anderszins, dan wel de gevolgen daarvan. Alle opgegeven maten en oppervlakten zijn indicatief.
+ toon meer
deze woning is Verkocht

Jan Pieterszoon Coenstraat 129 Utrecht

Jan Pieterszoon Coenstraat 129

3531 ES, Utrecht
Ditters open huis: 5 april 2025 10:00 - 12:00 uur
Landelijke Open Huizen Route NVM: 5 april 2025 11:00 uur - 15:00 uur
Vanaf€ 425.000 k.k.

Schakel een aankoopmakelaar in.

Snel handelen helpt je jouw droomhuis te bemachtigen. Zo vergroot je de kans dat je er op tijd bij bent.
Utrecht
verkocht

Of maak vrijblijvend een zoekprofiel aan.

Vergelijkbare woningen

Hypotheken

Onafhankelijk hypotheekadvies

  • Ligt jouw droomhuis binnen handbereik?
  • Wil je jouw huidige hypotheek verhogen?
  • Is er hypotheekruimte voor verduurzaming?

Blijf op de hoogte

Ontvang als eerste updates over nieuw aanbod en mis geen enkele kans om jouw droomwoning te vinden.

Gratis waardebepaling of verkoopgesprek

Met de vrijblijvende waardecheck weet je snel waar je aan toe bent. Onze makelaars kijken naar de lokale markt en vergelijkbare woningen in jouw buurt om een goede schatting te geven.

Realiseer al jouw woondromen met Ditters

Wij zijn een team van gedreven vastgoedexperts met een passie voor het maken van verbindingen – tussen kopers en verkopers, huurders en verhuurders. Met een frisse kijk op de makelaardij combineren we expertise met creativiteit. Onze makelaars luisteren écht en nemen de tijd om jouw wensen te begrijpen.


Bij Ditters sta je er niet alleen voor. We denken met je mee, begeleiden je in elke stap en zijn altijd bereikbaar voor vragen. Neem gerust contact met ons op – we helpen je graag verder!