Omschrijving

Te koop: 2-onder-1-kapwoning met garage en meerdere bijgebouwen aan de Anjerstraat 1 in Veenendaal!

Sfeervol wonen op een centrale plek in Veenendaal. Deze 2-onder-1-kapwoning biedt een lichte living, drie slaapkamers, een praktische bijkeuken, een riante garage met smeerput, meerdere bergingen/bijgebouwen én een diepe achtertuin op het westen. Daarnaast beschikt de woning over een eigen oprit en uitbreidingsmogelijkheden!

Met een centrale ligging nabij winkels, scholen, sportfaciliteiten en het centrum van Veenendaal is alles binnen handbereik. De Utrechtse Heuvelrug ligt om de hoek en is perfect voor mooie wandel- en fietstochten.

Indeling:
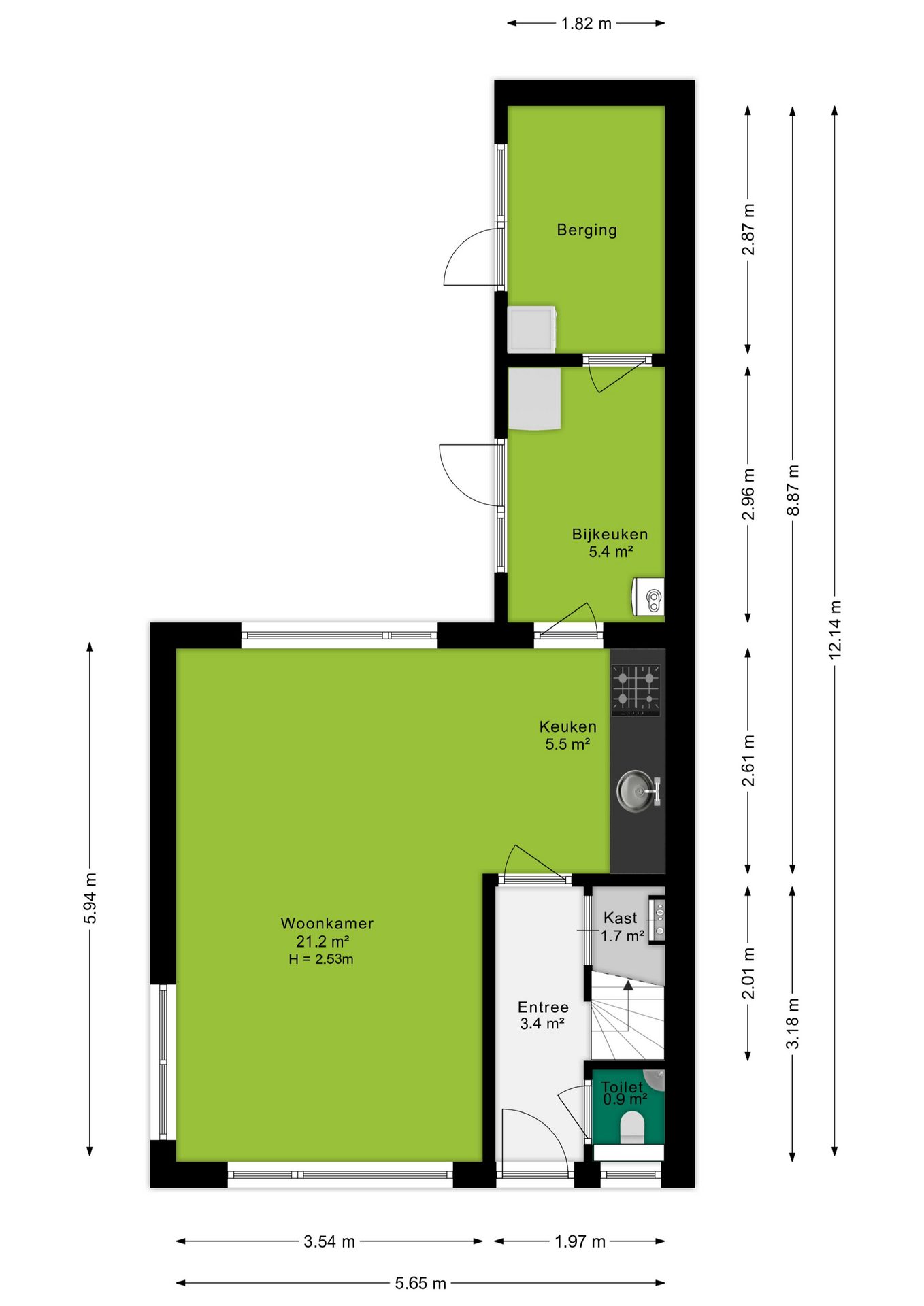
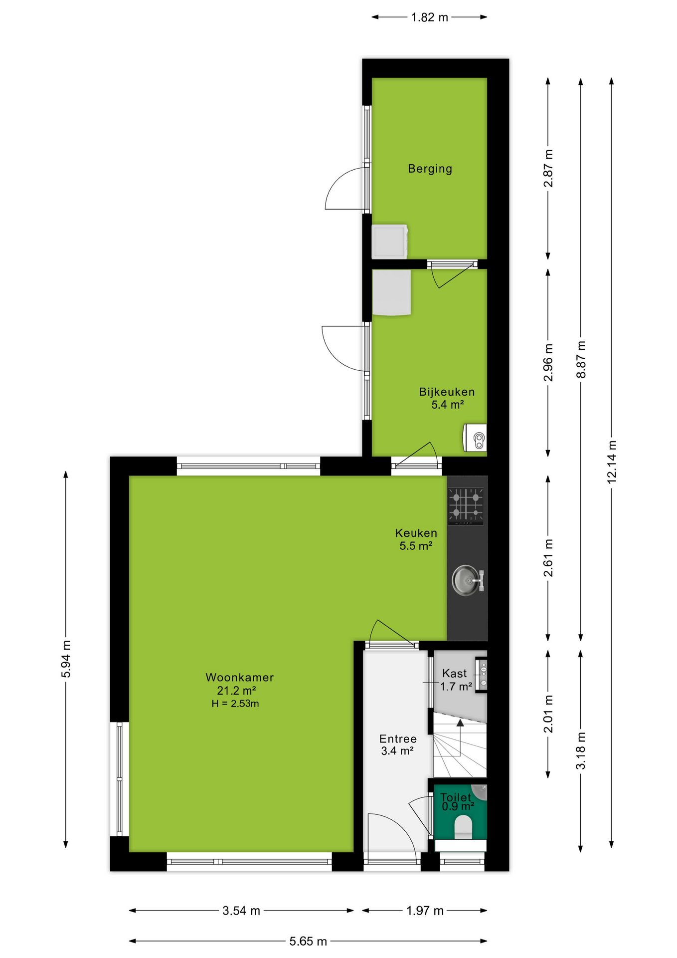
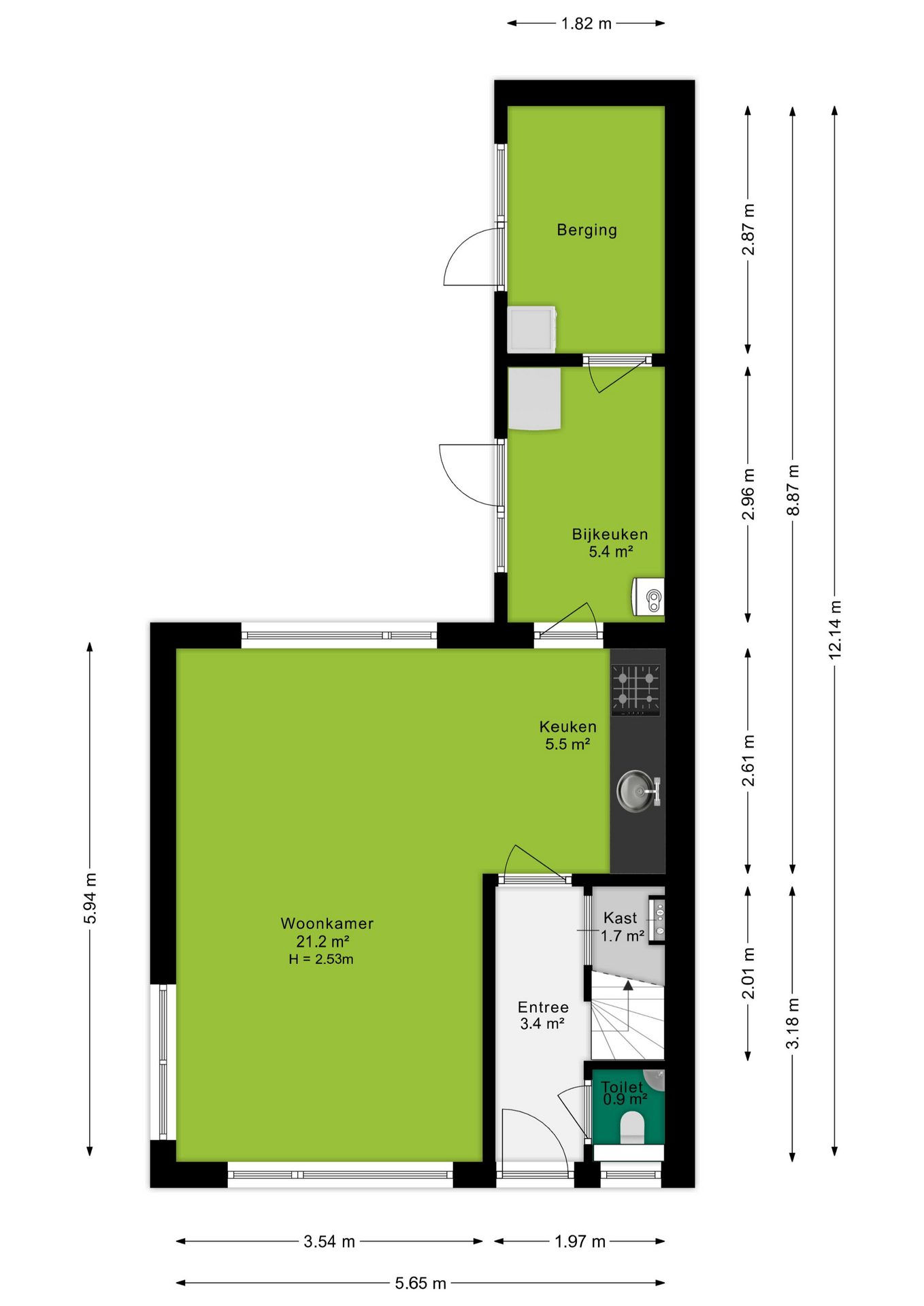
Begane grond:
Via de entree, waar het toilet, de trapopgang naar de 1e verdieping en de meterkast zich bevinden, kom je in de lichte woonkamer met royale raampartijen (kunststof kozijnen met HR++ beglazing) aan zowel de voorkant, zijkant als achterkant. Er is plek voor een ruime hoekbank en een gezellig zithoek. Aansluitend vind je het eetgedeelte met de keuken, voorzien van inbouwapparatuur zoals o.a. een kookplaat met afzuigkap, een oven en een koelkast. Vanuit de keuken loop je door naar de bijkeuken met ruimte voor opbergkasten om vervolgens naar de achtergelegen 2e bijkeuken/berging met aansluitingen voor wasmachine en/of droger.

1e verdieping:
Via de vaste trap bereik je de overloop die toegang geeft tot alle vertrekken. Er zijn drie goed ingedeelde slaapkamers van 11,2 m², 7,6 m² en 6,3 m², allemaal voorzien van grote raampartijen met kunststof kozijnen en HR++ beglazing. De badkamer (2 m²) is voorzien van een wastafel en inloopdouche. Dankzij het raam is er daglicht en de gewenste natuurlijke ventilatie.

Vliering:
De vliering van 6 m² biedt ruime bergruimte voor bijvoorbeeld seizoensspullen en koffers. De vliering is te bereiken middels een vlizotrap.

Tuin:
Een riante diepe en brede achtertuin en gelegen op het westen. Een ideale combinatie om van vele zonuren te genieten. Er is tevens meer dan voldoende ruimte voor kinderen om heerlijk te spelen. De tuin verleent toegang tot de garage en meerdere bijgebouwen/bergingen—ideaal voor extra opslag of het uitoefenen van een hobby.

Bijzonderheden:
Verwarming: Nefit Proline NxT HRC 24 CW4 (2019)
Warmwater: Nefit Proline NxT HRC 24 CW4 (2019)
Isolatie: o.a. voorzien van kunststof kozijnen met HR++-glas
Bouwjaar: 1960
Tuinligging: West
Aanvaarding: In overleg

Koopovereenkomst:
Bij de verkoop zal er een standaard NVM koopovereenkomst worden gehanteerd. Bij woningen welke ouder zijn dan 20 jaar, worden de volgende clausules opgenomen in de koopovereenkomst:
- Asbestclausule;
- Ouderdomsclausule.

Koopt u de woning zonder voorbehoud van financiering? Dan zullen wij een termijn hanteren van 6 weken na het opstellen van de koopovereenkomst voor het storten van de bankgarantie/waarborgsom.

Deze informatie is door ons met de nodige zorgvuldigheid samengesteld. Onzerzijds wordt echter geen enkele aansprakelijkheid aanvaard voor enige onvolledigheid, onjuistheid of anderszins, dan wel de gevolgen daarvan. Alle opgegeven maten en oppervlakten zijn indicatief.
+ toon meer
deze woning is Verkocht

Anjerstraat 1 Veenendaal

Anjerstraat 1

3905 ZB, Veenendaal
Ditters open huis: 5 april 2025 10:00 - 12:00 uur
Landelijke Open Huizen Route NVM: 5 april 2025 11:00 uur - 15:00 uur
Vanaf€ 419.000 k.k.

Schakel een aankoopmakelaar in.

Snel handelen helpt je jouw droomhuis te bemachtigen. Zo vergroot je de kans dat je er op tijd bij bent.
Veenendaal
verkocht

Of maak vrijblijvend een zoekprofiel aan.

Vergelijkbare woningen

Hypotheken

Onafhankelijk hypotheekadvies

  • Ligt jouw droomhuis binnen handbereik?
  • Wil je jouw huidige hypotheek verhogen?
  • Is er hypotheekruimte voor verduurzaming?

Blijf op de hoogte

Ontvang als eerste updates over nieuw aanbod en mis geen enkele kans om jouw droomwoning te vinden.

Gratis waardebepaling of verkoopgesprek

Met de vrijblijvende waardecheck weet je snel waar je aan toe bent. Onze makelaars kijken naar de lokale markt en vergelijkbare woningen in jouw buurt om een goede schatting te geven.

Realiseer al jouw woondromen met Ditters

Wij zijn een team van gedreven vastgoedexperts met een passie voor het maken van verbindingen – tussen kopers en verkopers, huurders en verhuurders. Met een frisse kijk op de makelaardij combineren we expertise met creativiteit. Onze makelaars luisteren écht en nemen de tijd om jouw wensen te begrijpen.


Bij Ditters sta je er niet alleen voor. We denken met je mee, begeleiden je in elke stap en zijn altijd bereikbaar voor vragen. Neem gerust contact met ons op – we helpen je graag verder!