Omschrijving

Ruimte, comfort én energiezuinig wonen in een jonge, populaire wijk van Veenendaal

Ben jij op zoek naar een instapklare, moderne hoekwoning met veel leefruimte, een zonnige tuin, eigen parkeergelegenheid én uitstekende energiezuinigheid? Dan is Beginstraat 12 in Veenendaal een kans die je niet mag missen.

Deze ruime en uitgebouwde hoekwoning is gebouwd in 2007 en kenmerkt zich door een moderne uitstraling, een praktische indeling en veel lichtinval dankzij de grote raampartijen en de ligging op de hoek. De woning is volledig geïsoleerd en voorzien van energielabel A+, 10 zonnepanelen en hoogwaardige afwerking, wat zorgt voor lage energielasten en een duurzaam wooncomfort.

Met een woonoppervlakte van ca. 122 m², drie volwaardige slaapkamers én een royale tweede verdieping met dakkapel biedt deze woning alle ruimte die een gezin nodig heeft. De tweede verdieping kan eenvoudig ingedeeld worden als vierde slaapkamer, hobbyruimte of thuiswerkplek. Daarnaast beschikt de woning over een zonnige, fraai aangelegde tuin op het zuiden met veel privacy, een praktische berging en een eigen parkeerplaats op de oprit. Ook de ligging is ideaal: in een rustige, kindvriendelijke woonomgeving met scholen, winkels, sportvoorzieningen en uitvalswegen richting Utrecht, Arnhem en Nijmegen binnen handbereik.

Interesse?
Wil jij wonen in een moderne, energiezuinige en uitstekend onderhouden hoekwoning op een fijne locatie in Veenendaal? Plan dan snel een bezichtiging bij Beginstraat 12 — we laten je deze woning graag persoonlijk ervaren.

Wat deze woning extra aantrekkelijk maakt:
+ Uitgebouwde woonkamer met veel licht en ruimte
+ Moderne keuken met inbouwapparatuur en luxe badkamer met ligbad
+ Fraai aangelegde, zonnige tuin op het zuiden
+ Parkeren op eigen terrein
+ Dakkapel op de tweede verdieping voor extra ruimte
+ Energielabel A+, volledig geïsoleerd en 10 zonnepanelen
+ Gelegen in een kindvriendelijke, groene woonwijk met voorzieningen op loopafstand
+ Goede bereikbaarheid richting A12 en A15

Indeling
Begane grond:
Via de entree kom je bij de ruime hal met toilet, meterkast en de trapopgang naar de eerste verdieping. Vanuit de hal kom je bij de ruime, uitgebouwde woonkamer. Wat gelijk opvalt is dat de woonkamer beschikt over heerlijk veel lichtinval en het goede afwerkingsniveau van de woning. Je hebt een fijn uitzicht door de openslaande deuren naar de achtertuin welke gelegen is op het zuiden. Centraal tussen de woonkamer en keuken bevindt zich het eetgedeelte. Hier is meer dan voldoende ruimte voor een grote eettafel met stoelen. Een fijne plek om met familie en/of vrienden te genieten van een hapje, drankje en spelletje! De moderne en open keuken is gelegen aan de voorzijde van de woning en is voorzien van diverse inbouwapparatuur zoals: kookplaat, afzuigkap en combi-oven / combimagnetron, koel-vriescombinatie en vaatwasser. De fijne keuken beschikt over veel werk- en kastruimte.

Eerste verdieping:
Door de vaste trap kom je bij de ruime overloop, vanuit hier heb je toegang tot de twee ruime slaapkamers en de moderne badkamer. De (slaap)kamers zijn licht en netjes afgewerkt en beschikken over mooie afmetingen van circa 16.5m² en circa 12m² en veel lichtinval. De moderne badkamer beschikt over een inloopdouche, ligbad, wastafelmeubel en een toilet.

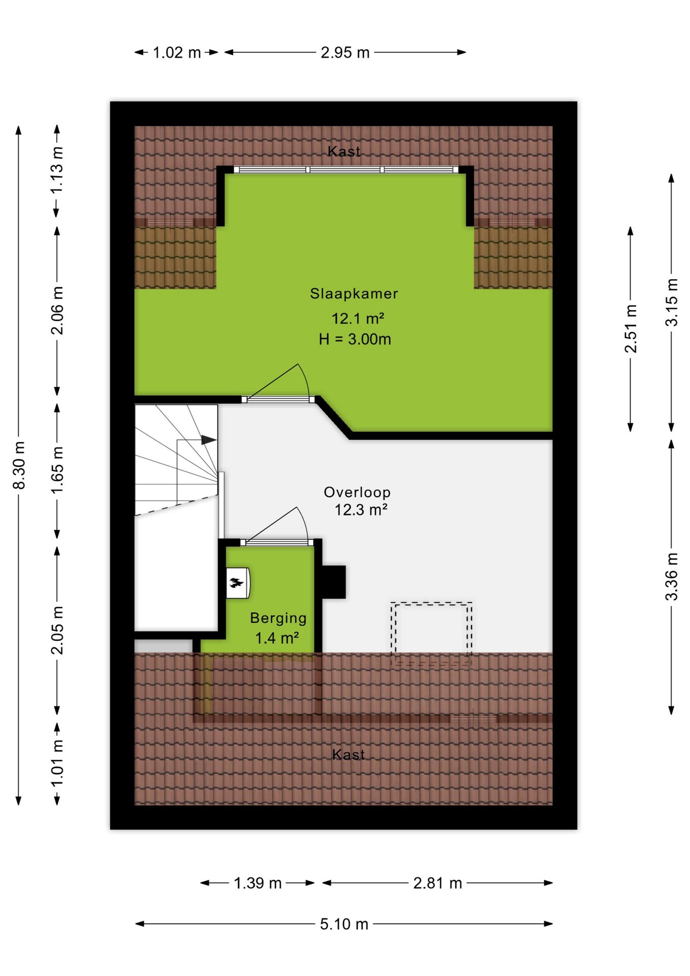
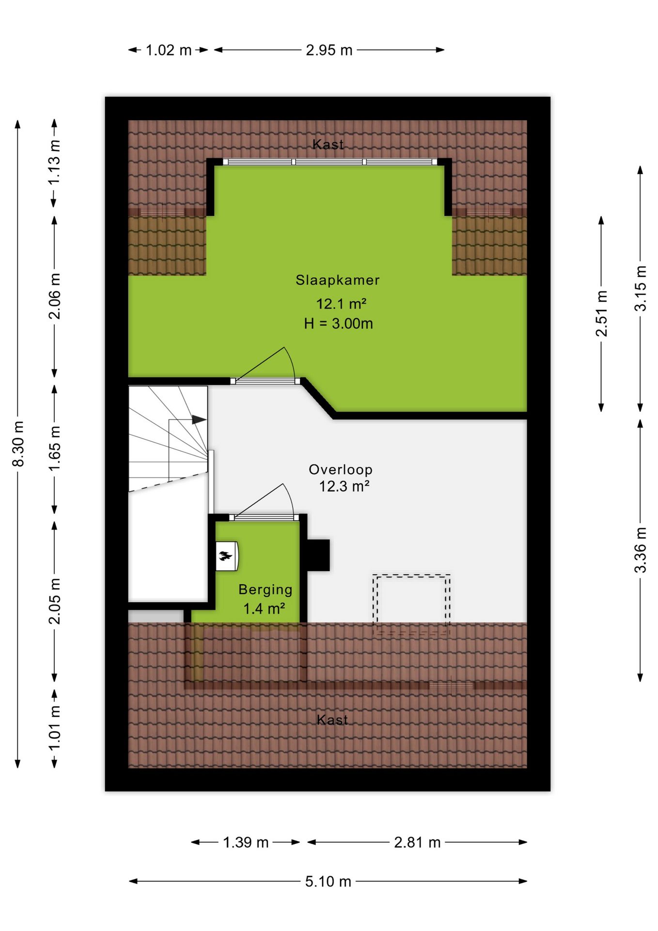
Tweede verdieping:
Door de trap kom je bij de ruime overloop op de tweede verdieping. Deze verdieping heeft veel bergruimte en hier bevinden zich tevens de witgoedaanlsuiting en de cv-combiketel. Aan de achterzijde is een royale derde slaapkamer gerealiseerd, voorzien van een dakkapel waardoor extra ruimte en licht is ontstaan.

Exterieur:
De fraai aangelegde tuin ligt op het zonnige zuiden, waardoor je hier vanaf de middag tot in de avond optimaal van de zon kunt genieten. De tuin beschikt over een terras, een sfeervolle overkapping en een achterom. Daarnaast kun je parkeren op eigen terrein, wat extra gemak biedt, naast de carport beschikt de woning ook over een berging. Ideaal voor het plaatsen van de fietsen en het opslaan van spullen.

Koopovereenkomst:
- Bij de verkoop zal er een standaard NVM koopovereenkomst worden gehanteerd.

Koop je de woning zonder voorbehoud van financiering? Dan zullen wij een termijn hanteren van 14 dagen na het opstellen van de koopovereenkomst voor het storten van de bankgarantie/waarborgsom.

Deze informatie is door ons met de nodige zorgvuldigheid samengesteld. Onzerzijds wordt echter geen enkele aansprakelijkheid aanvaard voor enige onvolledigheid, onjuistheid of anderszins, dan wel de gevolgen daarvan. Alle opgegeven maten en oppervlakten zijn indicatief.
+ toon meer
deze woning is Verkocht

Beginstraat 12 Veenendaal

Beginstraat 12

3902 KN, Veenendaal
Ditters open huis: 5 april 2025 10:00 - 12:00 uur
Landelijke Open Huizen Route NVM: 5 april 2025 11:00 uur - 15:00 uur
Vanaf€ 550.000 k.k.

Schakel een aankoopmakelaar in.

Snel handelen helpt je jouw droomhuis te bemachtigen. Zo vergroot je de kans dat je er op tijd bij bent.
Veenendaal
verkocht

Of maak vrijblijvend een zoekprofiel aan.

Vergelijkbare woningen

Hypotheken

Onafhankelijk hypotheekadvies

  • Ligt jouw droomhuis binnen handbereik?
  • Wil je jouw huidige hypotheek verhogen?
  • Is er hypotheekruimte voor verduurzaming?

Blijf op de hoogte

Ontvang als eerste updates over nieuw aanbod en mis geen enkele kans om jouw droomwoning te vinden.

Gratis waardebepaling of verkoopgesprek

Met de vrijblijvende waardecheck weet je snel waar je aan toe bent. Onze makelaars kijken naar de lokale markt en vergelijkbare woningen in jouw buurt om een goede schatting te geven.

Realiseer al jouw woondromen met Ditters

Wij zijn een team van gedreven vastgoedexperts met een passie voor het maken van verbindingen – tussen kopers en verkopers, huurders en verhuurders. Met een frisse kijk op de makelaardij combineren we expertise met creativiteit. Onze makelaars luisteren écht en nemen de tijd om jouw wensen te begrijpen.


Bij Ditters sta je er niet alleen voor. We denken met je mee, begeleiden je in elke stap en zijn altijd bereikbaar voor vragen. Neem gerust contact met ons op – we helpen je graag verder!