Omschrijving

Op een prachtige locatie, aan een rustige doodlopende straat, tref je deze 2-onder-1 kapwoning met garage, eigen parkeerplaats, 5 slaapkamers en een heerlijke diepe achtertuin op het zonnige zuiden! Deze fraaie woning is gelegen op een perceel van 386m² en de locatie is bijna perfect te noemen: op korte afstand van het levendige winkelcentrum van Veenendaal, met veel groen en water en op korte afstand van het Winkelcentrum Het Ronde Erf en Dragonderpark.

De volgende aspecten van deze fraaie woning zullen je vast aanspreken: royale woonkamer met een tuingerichte open keuken voorzien van diverse inbouwapparatuur, maar liefst 5 volwaardige slaapkamers, veel bergruimte en een zeer diepe (27,5m!) tuin op het zonnige zuiden met veel privacy en een achterom zelfs voor een aanhangwagen.

Gelegen in Dragonder Noord, in een prettige kindvriendelijke woonomgeving, omringd door groen bevindt zich deze ruime gezinswoning. Verder is de woning gelegen nabij scholen, bossen, Dragonderpark, en buurtwinkelcentrum 'Het Ronde Erf'. Mede door de ruime opzet van dit gedeelte van de wijk maken dit tot een gewilde woonomgeving. De woning is zeer centraal gelegen, dichtbij station Veenendaal-De Klomp en nabij diverse belangrijke uitvalswegen zoals de A15, A30 en de A12.

Alle feiten op een rij:
- Royale 2-onder-1 kapwoning met 5 slaapkamers
- Fantastisch aangelegde diepe tuin op het zonnige westen
- Tuingerichte keuken voorzien van inbouwapparatuur
- De woning beschikt over energielabel B en 10 stuks zonnepanelen
- Complete badkamer met douche en ligbad
- Tuin achterom bereikbaar zelfs met aanhangwagen
- Ligging nabij Het Ronde Erf, Dragonderpark, Dierenkamp Dragonderpark en Centrum van Veenendaal

Indeling:
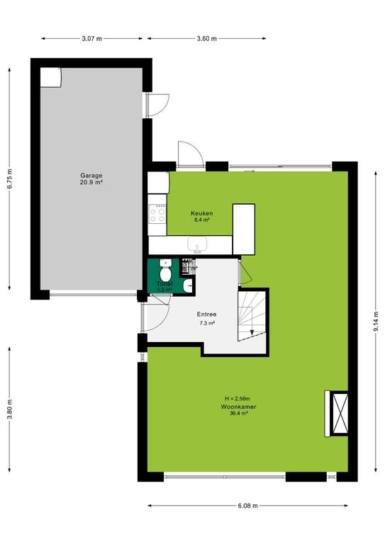
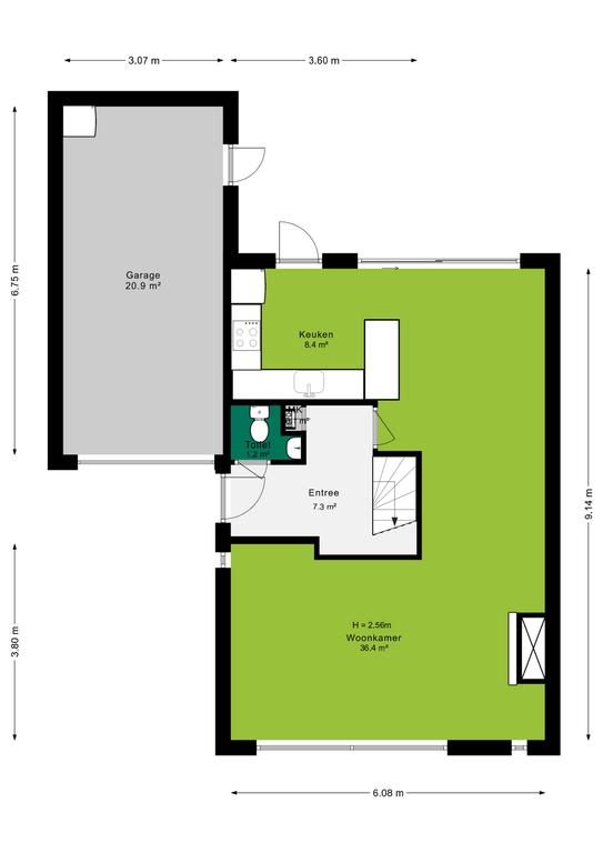
Begane grond:
De woonkamer is gelegen aan de voorzijde van de woning en beschikt over een houten vloer en een inbouwhaard (hoog rendement en met 2 ventilatoren). Aan de achterzijde tref je het eetgedeelte, waar een gezellige verbinding tussen de eetkamer en de keuken ontstaat. De open keuken heeft een hoekkeuken in lichte kleurstelling en is voorzien van een vaatwasser, kookplaat, afzuigkap, combi-oven en koelkast. Door de grote raampartijen is de woning aan beiden zijde voorzien van veel lichtinval en aan de achterzijde beschik je over een fantastisch uitzicht in de tuin.
Vanuit de schuifpui en de deur is er toegang naar de achtertuin. Via de entree hal, met meterkast en toilet, bereik je de trapopgang naar de verdieping.

1e verdieping:
Via de overloop is er toegang naar 3 volwaardige slaapkamers en de badkamer. De slaapkamers hebben een afmeting van circa 16m², 13m² en 8m². De slaapkamers zijn voorzien van een doorlopende laminaatvloer, neutrale wanden en voldoende lichtinval. De badkamer is volledig betegeld in een lichte kleurstelling en beschikt over een ligbad, douche, toilet, handdoek radiator, wastafelmeubel en spiegel met verlichting.

2e verdieping:
Via de vaste trap is de 2e verdieping bereikbaar. Deze verdieping telt de 4e en 5e slaapkamer. De kamers hebben een afmeting van circa 11m² en 10m² en zijn voorzien van een nette vloer en voldoende lichtinval door de aanwezige dakramen. Door deze ruime indeling kan de 2e verdieping multifunctioneel gebruikt worden, te denken valt aan een werkruimte, sportplek of slaapkamer. Verder bevindt zich op de ruime overloop de witgoedaansluiting en is hier ook veel opbergruimte.

Tuin:
Wat een heerlijke diepe tuin! Hier sta je echt versteld van. De tuin is ook nog eens gelegen op het zonnige zuiden en door de indeling is er altijd wel een plekje in de zon of in de schaduw te vinden. De tuin biedt ruimte genoeg voor een gezellig terras, speelplekjes of groenstroken. Hier kom je helemaal tot rust en kan je echt van het buitenleven genieten. Met de beschikking van een overkapping, houten berging en een stenen garage is er genoeg ruimte voor tuingereedschap en het opbergen van de tuinkussens.

Bijzonderheden:
Verwarming: C.V.-combiketel (bouwjaar 2016)
Warm water: C.V.-combiketel (bouwjaar 2016)
Isolatie: dakisolatie, muurisolatie, vloerisolatie en grotendeels dubbel glas
Bouwjaar: 1975
Tuinligging: zuiden
Aanvaarding: in overleg

Koopovereenkomst:
Bij de verkoop zal er een standaard NVM koopovereenkomst worden gehanteerd. Bij woningen welke ouder zijn dan 20 jaar, worden de volgende clausules opgenomen in de koopovereenkomst:
- Asbestclausule
- Ouderdomsclausule

Koop je de woning zonder voorbehoud van financiering? Dan zullen wij een termijn hanteren van 14 dagen na het opstellen van de koopovereenkomst voor het storten van de bankgarantie/waarborgsom.

Deze informatie is door ons met de nodige zorgvuldigheid samengesteld. Onzerzijds wordt echter geen enkele aansprakelijkheid aanvaard voor enige onvolledigheid, onjuistheid of anderszins, dan wel de gevolgen daarvan. Alle opgegeven maten en oppervlakten zijn indicatief.
+ toon meer
deze woning is Verkocht

Dissel 40 Veenendaal

Dissel 40

3902 GM, Veenendaal
Ditters open huis: 5 april 2025 10:00 - 12:00 uur
Landelijke Open Huizen Route NVM: 5 april 2025 11:00 uur - 15:00 uur
Vanaf€ 669.000 k.k.

Schakel een aankoopmakelaar in.

Snel handelen helpt je jouw droomhuis te bemachtigen. Zo vergroot je de kans dat je er op tijd bij bent.
Veenendaal
verkocht

Of maak vrijblijvend een zoekprofiel aan.

Vergelijkbare woningen

Hypotheken

Onafhankelijk hypotheekadvies

  • Ligt jouw droomhuis binnen handbereik?
  • Wil je jouw huidige hypotheek verhogen?
  • Is er hypotheekruimte voor verduurzaming?

Blijf op de hoogte

Ontvang als eerste updates over nieuw aanbod en mis geen enkele kans om jouw droomwoning te vinden.

Gratis waardebepaling of verkoopgesprek

Met de vrijblijvende waardecheck weet je snel waar je aan toe bent. Onze makelaars kijken naar de lokale markt en vergelijkbare woningen in jouw buurt om een goede schatting te geven.

Realiseer al jouw woondromen met Ditters

Wij zijn een team van gedreven vastgoedexperts met een passie voor het maken van verbindingen – tussen kopers en verkopers, huurders en verhuurders. Met een frisse kijk op de makelaardij combineren we expertise met creativiteit. Onze makelaars luisteren écht en nemen de tijd om jouw wensen te begrijpen.


Bij Ditters sta je er niet alleen voor. We denken met je mee, begeleiden je in elke stap en zijn altijd bereikbaar voor vragen. Neem gerust contact met ons op – we helpen je graag verder!