Omschrijving

Gelegen in de charmante en karaktervolle woonstraat de Gortstraat in Veenendaal, bevindt zich deze leuk en prima onderhouden hoekwoning. Deze woning straalt authenticiteit en sfeer uit, en biedt een ideale leefomgeving voor starters die op zoek zijn naar een fijne woonplek. De woning beschikt over een vrijstaande stenen schuur, perfect voor opslag en de fietsen, en een zonnige tuin op het zuidwesten waar u heerlijk kunt ontspannen en genieten van de middag- en avondzon.

De Gortstraat is een rustige en vriendelijke straat, omgeven door een warme gemeenschap en groene omgeving. De woning zelf is met zorg onderhouden, met aandacht voor detail en kwaliteit, waardoor het een fijne woning is voor de nieuwe bewoners.

Een van de grote voordelen van deze locatie is de nabijheid van het bruisende centrum van Veenendaal. Binnen enkele minuten bent u te voet of met de fiets in het hart van de stad, waar u een breed scala aan voorzieningen vindt. Van gezellige cafés en restaurants tot diverse winkels, supermarkten en culturele voorzieningen, alles is binnen handbereik. Bovendien zijn er uitstekende verbindingen met het openbaar vervoer en de belangrijkste uitvalswegen, waardoor u gemakkelijk toegang heeft tot de omliggende steden en regio's.

Kortom, deze hoekwoning aan de Gortstraat biedt een unieke combinatie van rust, comfort en gemak in een van de meest gewilde buurten van Veenendaal. Het is de perfecte plek om een nieuw hoofdstuk te beginnen en te genieten van alles wat deze prachtige omgeving te bieden heeft.

Indeling:
Begane grond:
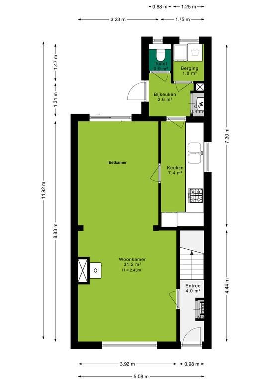
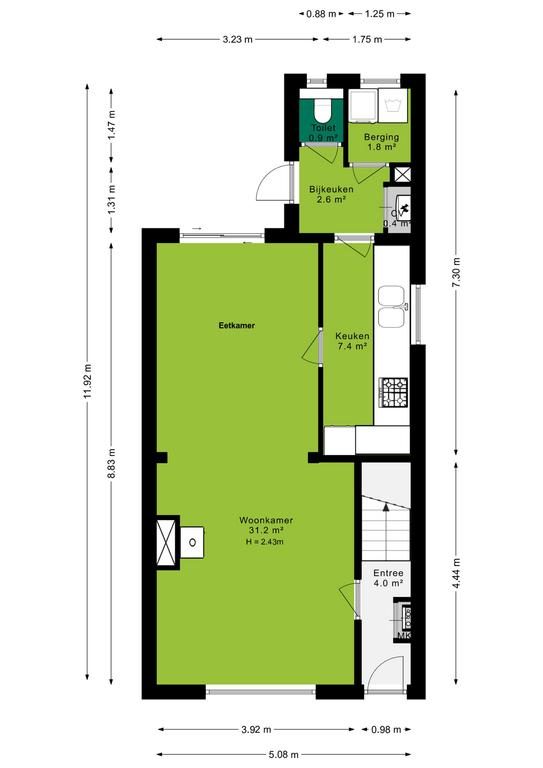
Hal/entree met de meterkast, de trapopgang naar de eerste verdieping en een deur naar de woonkamer. De sfeervolle woonkamer beschikt over een balkenplafon en een schouw met houtkachel, de vloer is afgewerkt met een houten vloer.

Het eetkamergedeelte is aan de tuinzijde gelegen en van daaruit is via een schuifpui de achtertuin te betreden. Vanuit het eetkamergedeelte is via een deur de keuken bereikbaar. In de keuken is een recent vernieuwde luxe in hoek geplaatste inbouwkeuken geplaatst. De inbouwkeuken beschikt over een gaskookplaat, afzuigkap, combi-oven, koelkast, dubbele spoelbak en een vaatwasser.

In een uitbouw is een bijkeuken met de opstelling van de wasmachine- en droger en de Remeha cv-combiketel. Verder is er een separate volledig betegelde toiletruimte voorzien van een wandcloset.

De fijne, beperkte tuin is op het zonnige zuidwesten gelegen en biedt enorm veel mogelijkheden. Achter in de tuin is een stenen schuur geplaatst.

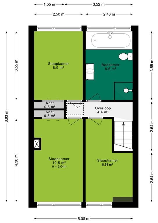
Eerste verdieping:
Overloop met toegang met toegang tot de drie mooie slaapkamers en de badkamer. De van originele mansarde kap is aan de achterzijde van de woning gewijzigd door een brede dakkapel, waardoor vel meer bruikbare woonruimte is ontstaan. Twee slaapkamers beschikken over vaste kasten met schuifdeuren. De ruime badkamer is uitgerust met een ligbad, douchecabine, toilet en een wastafel in een meubel met praktische bergruimte.

Tweede verdieping:
Middels een luik met steektrap bereikbare bergzolder.

Afmetingen:
Woon- eetkamer 31.2 m²
Keuken 7.4 m²
Bijkeuken 2.6 m²
Slaapkamer 10.5 m²
Slaapkamer 8.9 m²
Slaapkamer 8.3 m²
Badkamer 8.6 m²
Externe schuur 13.4 m²

Perceel oppervlakte 143 m²
Woonoppervlakte 96 m²

Bijzonderheden:
Verwarming: Remeha Avanta Combiketel (eigendom 2012)
Warmwater: Remeha Avanta Combiketel (eigendom 2012)
Bouwjaar: 1904
Tuinligging: Zuidwest
Aanvaarding: In overleg

Extra’s:
- Recent vernieuwde keuken inclusief: gaskookplaat, combi-oven, koelkast, vaatwasser en afzuigkap;
- 6 zonnepanelen (huurpanelen, er is een mogelijkheid om deze te kopen);
- Schoorsteen momenteel buiten gebruik (zie vragenlijst B);
- Ideale starterwoning;
- Gunstige ligging ten opzichte van diverse voorzieningen en uitvalswegen.

Koopovereenkomst:
Bij de verkoop zal er een standaard NVM koopovereenkomst worden gehanteerd. Bij woningen welke ouder zijn dan 20 jaar, worden de volgende clausules opgenomen in de koopovereenkomst:
- Asbestclausule;
- Ouderdomsclausule.

Koop je de woning zonder voorbehoud van financiering? Dan zullen wij een termijn hanteren van 14 dagen na het opstellen van de koopovereenkomst voor het storten van de bankgarantie/waarborgsom.

Deze informatie is door ons met de nodige zorgvuldigheid samengesteld. Onzerzijds wordt echter geen enkele aansprakelijkheid aanvaard voor enige onvolledigheid, onjuistheid of anderszins, dan wel de gevolgen daarvan. Alle opgegeven maten en oppervlakten zijn indicatief.
+ toon meer
deze woning is Verkocht

Gortstraat 75 Veenendaal

Gortstraat 75

3905 BC, Veenendaal
Ditters open huis: 5 april 2025 10:00 - 12:00 uur
Landelijke Open Huizen Route NVM: 5 april 2025 11:00 uur - 15:00 uur
Vanaf€ 365.000 k.k.

Schakel een aankoopmakelaar in.

Snel handelen helpt je jouw droomhuis te bemachtigen. Zo vergroot je de kans dat je er op tijd bij bent.
Veenendaal
verkocht

Of maak vrijblijvend een zoekprofiel aan.

Vergelijkbare woningen

Hypotheken

Onafhankelijk hypotheekadvies

  • Ligt jouw droomhuis binnen handbereik?
  • Wil je jouw huidige hypotheek verhogen?
  • Is er hypotheekruimte voor verduurzaming?

Blijf op de hoogte

Ontvang als eerste updates over nieuw aanbod en mis geen enkele kans om jouw droomwoning te vinden.

Gratis waardebepaling of verkoopgesprek

Met de vrijblijvende waardecheck weet je snel waar je aan toe bent. Onze makelaars kijken naar de lokale markt en vergelijkbare woningen in jouw buurt om een goede schatting te geven.

Realiseer al jouw woondromen met Ditters

Wij zijn een team van gedreven vastgoedexperts met een passie voor het maken van verbindingen – tussen kopers en verkopers, huurders en verhuurders. Met een frisse kijk op de makelaardij combineren we expertise met creativiteit. Onze makelaars luisteren écht en nemen de tijd om jouw wensen te begrijpen.


Bij Ditters sta je er niet alleen voor. We denken met je mee, begeleiden je in elke stap en zijn altijd bereikbaar voor vragen. Neem gerust contact met ons op – we helpen je graag verder!