Omschrijving

Wonen aan het water in Veenendaal – Haverveld 4

Ontdek deze ruime en sfeervolle tussenwoning aan het Haverveld 4 in Veenendaal, prachtig gelegen aan het water in de rustige en kindvriendelijke wijk Dragonder-Noord. Een heerlijk huis met veel leefruimte, een eigen carport, vier royale slaapkamers en een zonnige tuin met uitzicht op het water. Hier geniet je elke dag van rust, ruimte én comfort!

Wat maakt deze woning bijzonder:

• Fraai gelegen aan het water
• Eigen oprit met carport
• Gezellige woonkamer met open haard
• Moderne keuken met complete inbouwapparatuur
• Vier ruime slaapkamers
• Zonnige tuin op het oosten met prachtig uitzicht
• Kindvriendelijke buurt met winkels en voorzieningen dichtbij


Indeling
Begane grond
Via de ruime oprit met carport bereik je de entree. De hal biedt toegang tot de meterkast en het toilet. Vervolgens stap je de lichte, royale woonkamer binnen. Dankzij de grote raampartijen komt er veel daglicht naar binnen en heb je een prachtig uitzicht op de tuin en het water. De sfeervolle open haard maakt het helemaal af.

De woonkamer is bovendien voorzien van een airconditioning, die op warme zomerdagen zorgt voor een aangename koelte en in de winter juist heerlijk kan verwarmen. Een comfortabel en energiezuinig systeem dat bijdraagt aan het woongenot het hele jaar door.

Aan de achterzijde vind je het eetgedeelte en de moderne L-vormige keuken met strakke witte kastjes, een donker marmer werkblad en hoogwaardige inbouwapparatuur, zoals een inductiekookplaat, oven, afzuigkap, koel-vriescombinatie en vaatwasser. Een heerlijke plek om te koken en samen te eten!

Eerste verdieping
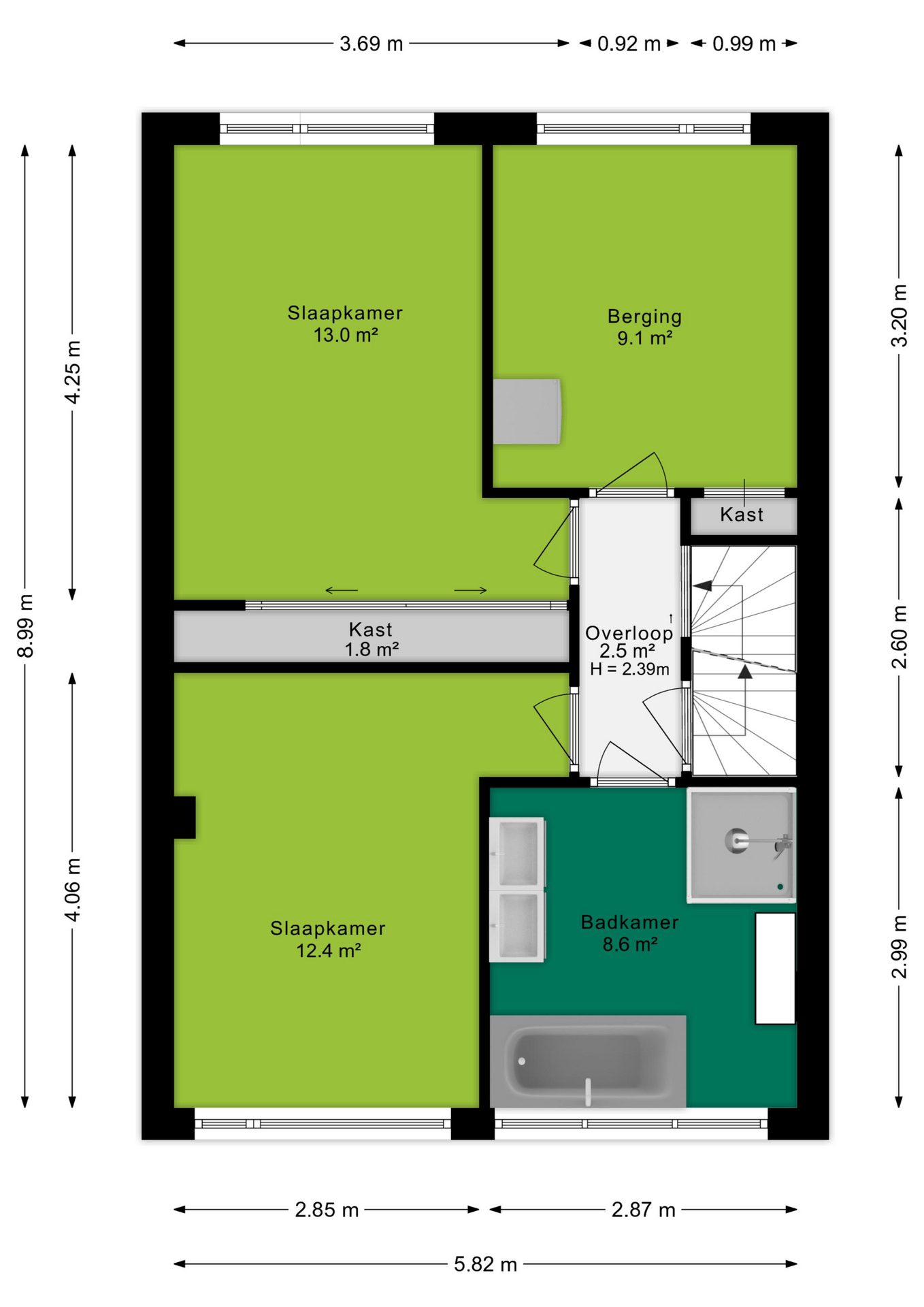
De open trap in de woonkamer leidt naar de overloop met toegang tot drie ruime slaapkamers van 13 m², 12,4 m² en 9,1 m². De kamers aan de achterzijde beschikken over handige ingebouwde kasten en de grootste slaapkamer is extra uitgerust met airconditioning, waardoor je zelfs tijdens warme zomernachten heerlijk koel in slaap kunt vallen.

De moderne badkamer (8,6 m²) is compleet ingericht met een wastafelmeubel, tweede toilet, inloopdouche en ligbad. Dankzij het te openen raam geniet je van natuurlijke ventilatie en daglicht.


Tweede verdieping
Via een vaste trap bereik je de zolderverdieping. Hier bevindt zich een ruime vierde slaapkamer (10,6 m²), ideaal als logeerkamer, werkruimte of hobbykamer. Op de overloop zijn de aansluitingen voor wasmachine en droger aanwezig en de beide grote dakramen zorgen voor veel lichtinval.

Tuin
De fraai aangelegde tuin (58 m²) ligt op het oosten en grenst direct aan het water – een heerlijke plek om te ontspannen en te genieten van de zon. Er is voldoende ruimte voor een loungehoek en een eettafel om gezellig buiten te zitten. Hier ervaar je iedere dag het vakantiegevoel aan huis.


Locatie
De woning ligt in het rustige en gewilde Dragonder-Noord, een kindvriendelijke buurt met veel groen, speeltuintjes en wandelpaden. Op loopafstand vind je winkelcentrum ’t Ronde Erf voor de dagelijkse boodschappen. Ook scholen, sportvoorzieningen en het bruisende centrum van Veenendaal zijn dichtbij. Dankzij de gunstige ligging zijn uitvalswegen richting de A12 en openbaar vervoer snel bereikbaar.

Kortom
Een ruime en instapklare woning met veel comfort, sfeer en een prachtige ligging aan het water. De ideale plek voor wie houdt van comfortabel wonen met alle voorzieningen binnen handbereik.


Kom kijken en laat je verrassen door de ruimte, het licht en de rust aan het Haverveld 4!


Koopovereenkomst:
Bij de verkoop zal er een standaard NVM koopovereenkomst worden gehanteerd. Bij woningen welke ouder zijn dan 20 jaar, worden de volgende clausules opgenomen in de koopovereenkomst:
- Asbestclausule;
- Ouderdomsclausule.

Koop je de woning zonder voorbehoud van financiering? Dan zullen wij een termijn hanteren van 14 dagen na het opstellen van de koopovereenkomst voor het storten van de bankgarantie/waarborgsom.

Deze informatie is door ons met de nodige zorgvuldigheid samengesteld. Onzerzijds wordt echter geen enkele aansprakelijkheid aanvaard voor enige onvolledigheid, onjuistheid of anderszins, dan wel de gevolgen daarvan. Alle opgegeven maten en oppervlakten zijn indicatief.
+ toon meer
deze woning is Verkocht

Haverveld 4 Veenendaal

Haverveld 4

3902 EB, Veenendaal
Ditters open huis: 5 april 2025 10:00 - 12:00 uur
Landelijke Open Huizen Route NVM: 5 april 2025 11:00 uur - 15:00 uur
Vanaf€ 469.000 k.k.

Schakel een aankoopmakelaar in.

Snel handelen helpt je jouw droomhuis te bemachtigen. Zo vergroot je de kans dat je er op tijd bij bent.
Veenendaal
verkocht

Of maak vrijblijvend een zoekprofiel aan.

Vergelijkbare woningen

Hypotheken

Onafhankelijk hypotheekadvies

  • Ligt jouw droomhuis binnen handbereik?
  • Wil je jouw huidige hypotheek verhogen?
  • Is er hypotheekruimte voor verduurzaming?

Blijf op de hoogte

Ontvang als eerste updates over nieuw aanbod en mis geen enkele kans om jouw droomwoning te vinden.

Gratis waardebepaling of verkoopgesprek

Met de vrijblijvende waardecheck weet je snel waar je aan toe bent. Onze makelaars kijken naar de lokale markt en vergelijkbare woningen in jouw buurt om een goede schatting te geven.

Realiseer al jouw woondromen met Ditters

Wij zijn een team van gedreven vastgoedexperts met een passie voor het maken van verbindingen – tussen kopers en verkopers, huurders en verhuurders. Met een frisse kijk op de makelaardij combineren we expertise met creativiteit. Onze makelaars luisteren écht en nemen de tijd om jouw wensen te begrijpen.


Bij Ditters sta je er niet alleen voor. We denken met je mee, begeleiden je in elke stap en zijn altijd bereikbaar voor vragen. Neem gerust contact met ons op – we helpen je graag verder!