Omschrijving

Deze hoekwoning aan de Kamgras 33 in Veenendaal biedt een sfeervolle woonkamer, een moderne keuken met complete inbouwapparatuur (vernieuwd in 2023), vijf ruime slaapkamers, een royale badkamer en een zonnige tuin aan de westzijde (vernieuwd in 2025). Bovendien dragen de aanwezige zonnepanelen bij aan een duurzame energievoorziening.

Op loopafstand vind je het buurtwinkelcentrum “Aller Erf”, waar je voor al je dagelijkse benodigdheden terecht kunt. Daarnaast is het centrum van Veenendaal met de fiets snel bereikbaar; hier vind je een scala aan voorzieningen, zoals supermarkten, diverse eetgelegenheden en kledingwinkels en nog veel meer. Ook het nabijgelegen Dragonderpark is ideaal voor een ontspannen wandeling.

Indeling
Begane grond:
Vanaf de entree, waar je tevens de meterkast en een ruime garderobe aantreft, kom je in de lichte en royale woonkamer van bijna 42 m². Grote ramen aan de voorzijde zorgen voor overvloedig natuurlijk licht, en er is voldoende plaats voor zowel een comfortabele hoekbank als diverse zithoekjes.

Aan de achterzijde, welke is voorzien van een riante uitbouw, vindt je het eetgedeelte. Dankzij de tuindeuren met grote raampartijen en 2 solatubes in het plafond wordt ook deze ruimte voorzien van veel daglicht. Daarnaast biedt de ruimte genoeg plek voor een grote eettafel. Een aangrenzende hal geeft toegang tot een separaat toilet en de tuin. Centraal in de woning bevindt zich de open keuken, vernieuwd in 2023 en afgewerkt lichte kastjes en een donker werkblad. Deze keuken is volledig uitgerust met alle noodzakelijke inbouwapparatuur, waaronder een inductiekookplaat, afzuigkap, combi-magnetron, steamer, koelkast, vaatwasser en een Quooker.

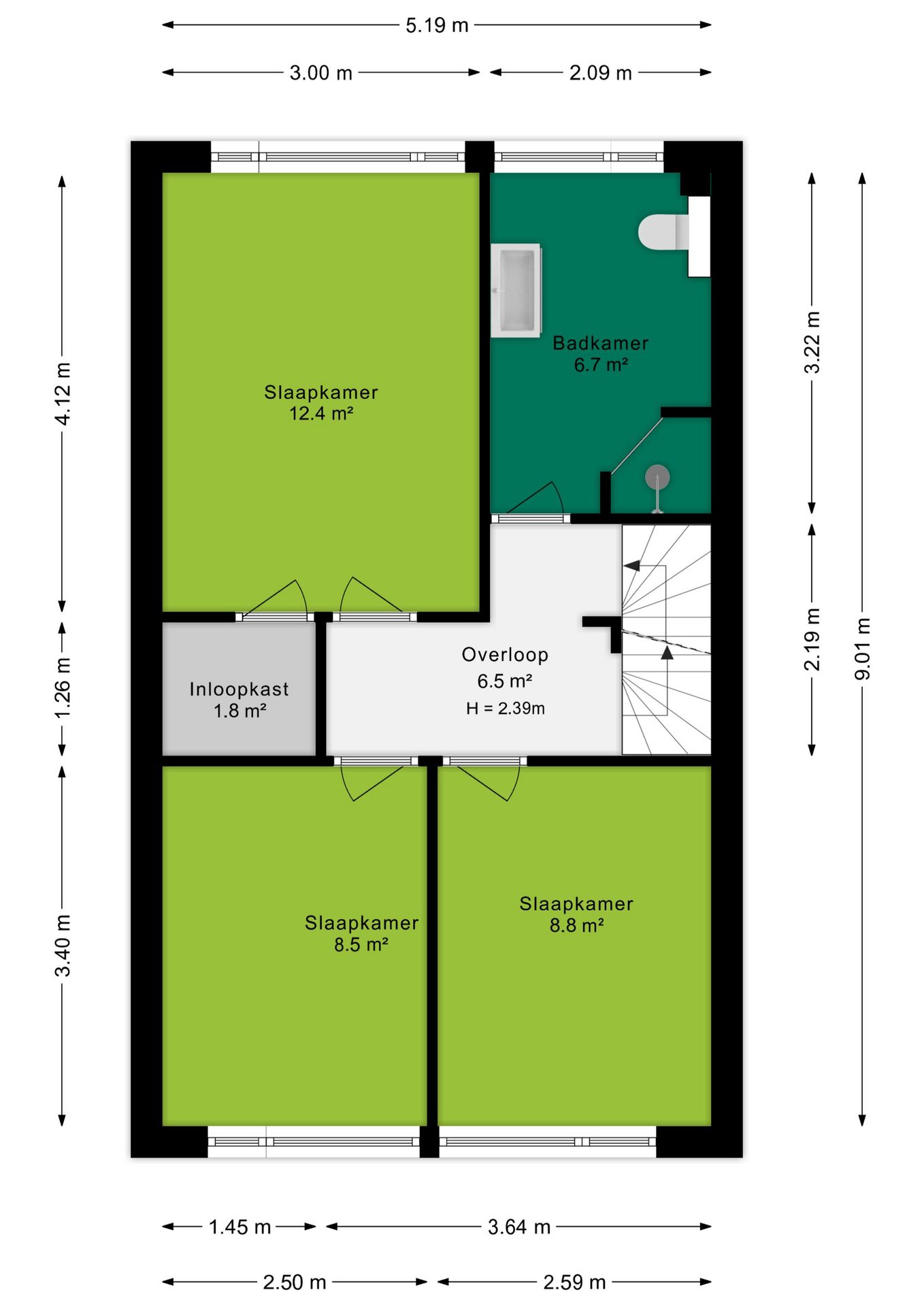
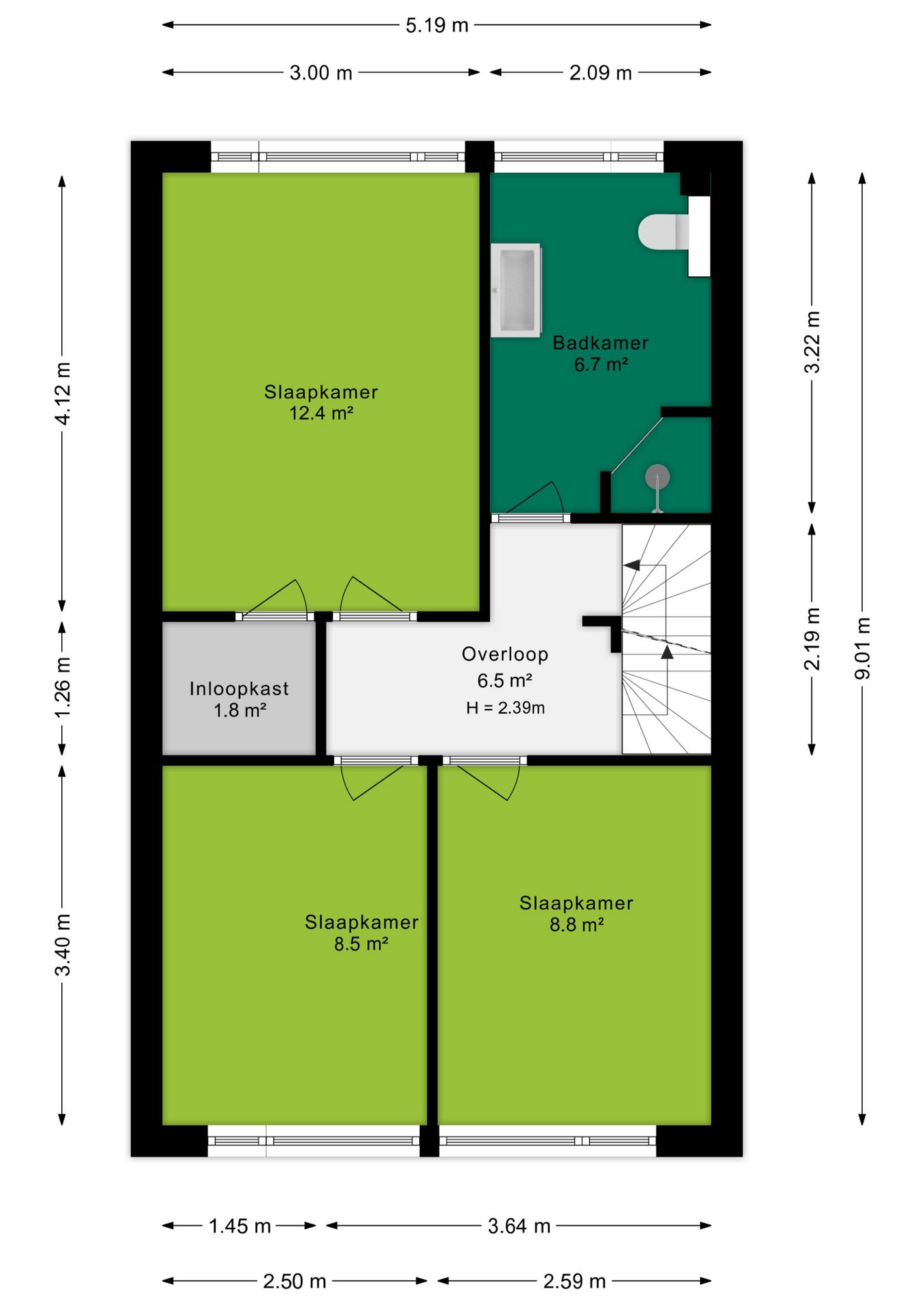
1e Verdieping:
Via de trap kom je op de eerste verdieping waar de overloop toegang verleent tot drie slaapkamers met een oppervlakte van 12,4 m², 8,8 m² en 8,5 m². Alle kamers zijn aangenaam licht en de grootste slaapkamer beschikt tevens over een inloopkast van 1,8 m² en airconditioning. De badkamer, met een oppervlakte van 6,7 m², is uitgerust met een inloopdouche, een wastafel met wastafelmeubel en een toilet. Naast mechanische ventilatie zorgt een te openen raam zorgt voor de benodigde ventilatie.

2e Verdieping:
De vaste trap brengt je naar de tweede verdieping. Vanuit de overloop kom je in twee slaapkamers, waarvan de een 9,5 m² meet en de ander 5,6 m². De grotere kamer is voorzien van een dakkapel met een airco, terwijl de kleinere kamer profiteert van een dakraam. Tevens is er een handige wasruimte aanwezig, compleet met aansluitpunten voor zowel wasmachine als droger, en dankzij het aanwezige dakkapel geniet ook deze ruimte van veel daglicht.

Tuin:
De tuin aan de westzijde is vernieuwd in 2025 en te bereiken via de woning of via een aparte zijingang. Hier is genoeg ruimte gecreëerd voor een gezellige buitenzitplek, zowel direct onder de overkapping als buiten daarvan, naast een speelhoek voor de kinderen. Bovendien is er een berging van 6,7 m² aanwezig, ideaal voor het veilig opbergen van fietsen en gereedschap.

Bijzonderheden:,
Verwarming: C.V.-combiketel Nefit trendline (2024)
Warm water: C.V.-combiketel Nefit trendline (2024)
Isolatie: volledig geïsoleerd
Energielabel: B
Bouwjaar: 1975
Tuinligging: west
Aanvaarding: in overleg

Koopovereenkomst:
Bij de verkoop zal er een standaard NVM koopovereenkomst worden gehanteerd. Bij woningen welke ouder zijn dan 20 jaar, worden de volgende clausules opgenomen in de koopovereenkomst:
- Asbestclausule
- Ouderdomsclausule

Koop je de woning zonder voorbehoud van financiering? Dan zullen wij een termijn hanteren van 14 dagen na het opstellen van de koopovereenkomst voor het storten van de bankgarantie/waarborgsom.

Deze informatie is door ons met de nodige zorgvuldigheid samengesteld. Onzerzijds wordt echter geen enkele aansprakelijkheid aanvaard voor enige onvolledigheid, onjuistheid of anderszins, dan wel de gevolgen daarvan. Alle opgegeven maten en oppervlakten zijn indicatief.
+ toon meer
deze woning is Verkocht

Kamgras 33 Veenendaal

Kamgras 33

3902 BA, Veenendaal
Ditters open huis: 5 april 2025 10:00 - 12:00 uur
Landelijke Open Huizen Route NVM: 5 april 2025 11:00 uur - 15:00 uur
Vanaf€ 499.000 k.k.

Schakel een aankoopmakelaar in.

Snel handelen helpt je jouw droomhuis te bemachtigen. Zo vergroot je de kans dat je er op tijd bij bent.
Veenendaal
verkocht

Of maak vrijblijvend een zoekprofiel aan.

Vergelijkbare woningen

Hypotheken

Onafhankelijk hypotheekadvies

  • Ligt jouw droomhuis binnen handbereik?
  • Wil je jouw huidige hypotheek verhogen?
  • Is er hypotheekruimte voor verduurzaming?

Blijf op de hoogte

Ontvang als eerste updates over nieuw aanbod en mis geen enkele kans om jouw droomwoning te vinden.

Gratis waardebepaling of verkoopgesprek

Met de vrijblijvende waardecheck weet je snel waar je aan toe bent. Onze makelaars kijken naar de lokale markt en vergelijkbare woningen in jouw buurt om een goede schatting te geven.

Realiseer al jouw woondromen met Ditters

Wij zijn een team van gedreven vastgoedexperts met een passie voor het maken van verbindingen – tussen kopers en verkopers, huurders en verhuurders. Met een frisse kijk op de makelaardij combineren we expertise met creativiteit. Onze makelaars luisteren écht en nemen de tijd om jouw wensen te begrijpen.


Bij Ditters sta je er niet alleen voor. We denken met je mee, begeleiden je in elke stap en zijn altijd bereikbaar voor vragen. Neem gerust contact met ons op – we helpen je graag verder!