Omschrijving

Te Koop: Ruime tussenwoning met 5 slaapkamers, 2 dakkapellen, 11 zonnepanelen, HR++ beglazing en een diepe en zonnige tuin op het westen!

Gelegen in het mooie, kindvriendelijke en groene Veenendaal-West, om precies te zijn in de Schepenbuurt, staat deze in 1978 gebouwde tussenwoning. Het betreft een ruim woonhuis met 5 slaapkamers en een heerlijke diepe tuin op het westen. Aan verduurzaming is uiteraard ook gedacht. De woning is namelijk gedeeltelijk voorzien van HR++ beglazing en in 2019 zijn er 11 zonnepanelen geplaatst. De ligging van de woning is zeer gunstig, aan de rand van de woonwijk, nabij Rondweg-West en met alle voorzieningen binnen handbereik. Zo zijn basisscholen, wijkwinkelcentrum De Ellekoot en meerdere sportfaciliteiten allemaal op korte afstand te vinden.

Kortom: een fijn en ruim woonhuis, bouwkundig in goede staat en die, indien gewenst, naar smaak gemoderniseerd kan worden.

Belangrijkste kenmerken:
- Energielabel B – geldig tot 10-03-2035
- HR++ beglazing (gedeeltelijk) en 11 zonnepanelen á 315 Wp (2019)
- Vijf slaapkamers en 2 dakkapellen
- Zonnige achtertuin op het westen
- Gelegen nabij voorzieningen

Indeling
Begane grond:
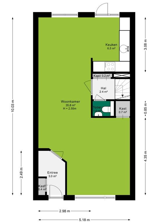
Je betreedt de woning via de fijne voortuin. In de compacte welkomsthal vind je de meterkast en de garderoberuimte. Door een tussendeur betreed je de U-vormige leefruimte. De woonkamer is aan de voorkant van het huis geplaatst en profiteert van natuurlijk licht dankzij een groot voorraam. Vanuit de woonkamer is de trapkast te bereiken.

Centraal tussen de woonkamer en keuken bevindt zich het eetgedeelte. Hier is meer dan voldoende ruimte voor een grote eettafel met stoelen. Een fijne plek om met familie en/of vrienden te genieten van een hapje, drankje en spelletje!

Aan de achterzijde van de woning bevindt zich de keuken met L-opstelling. Het betreft een gedateerde, maar goed onderhouden keuken waarbij de inbouwapparatuur in 2002, 2014 en 2019 is vernieuwd. De keuken is voorzien van elektrische kookplaat met ingebouwde afzuigkap, een combi-oven, vaatwasser en een koel-vriescombinatie.

De hal tussen de woonkamer en de keuken geeft toegang tot de toiletruimte en de trap naar de bovenverdieping. Het toilet is deels betegeld in een lichte kleur en voorzien van een hangend toilet en een handwasbakje.

1e verdieping:
De 1e verdieping is te bereiken via een solide trap, die uitkomt op een ruime overloop. Hier bevinden zich drie slaapkamers en de badkamer. De afmetingen van de slaapkamers zijn respectievelijk 12,1 m², 9,3 m² en 6,6 m². Twee van deze kamers zijn gelegen aan de voorzijde van de woning en hebben uitzicht op de rustige en autoluwe staat. De 3e slaapkamer is samen met de badkamer gelegen aan de achterzijde van de woning en geeft je zicht op de verzorgde achtertuin. De badkamer, met een oppervlakte van circa 4 m², is volledig betegeld met witte tegels en voorzien van een douchecabine, 2e toilet, een wastafelmeubel met enkele wastafel en een te openen raam voor de gewenste natuurlijke ventilatie en daglichttoetreding.

2e verdieping:
Door de vaste trap kom je op de 2e verdieping. Je komt bij de voorzolder welke toegang geeft tot de wasruimte, Cv-ketel en nog eens 2 slaapkamers. De kamers meten 8,1 m² en 5,8 m² en door de aanwezigheid van 2 dakkapellen zijn de kamers ideaal te gebruiken als slaap-/werkkamer.

Tuin:
De achtertuin van de woning is royaal en biedt veel ruimte voor ontspanning, spel en heerlijke BBQ tijdens de zonnige dagen. Met sierbestrating en plantenbakken is de tuin zowel praktisch als esthetisch aangelegd. Er is volop privacy, wat zorgt voor een ongestoorde beleving. Voor opbergruimte is er een berging met vliering van 7,8 m² met daarachter een berging van 2,5 m². Achter deze berging is er ruimte voor de containers zodat ze niet in het zicht staan.

Bijzonderheden
- Verwarming en warm water via Intergas Kombi Kompakt HR28 Cv-ketel;
- Warm water keuken middels elektrische close-in boiler;
- Energielabel B;
- 11 zonnepanelen á 315 Wp (2019);
- 2 dakkapellen met kunststof kozijnen;
- Kunststof gevelbekleding;
- Zonnige achtertuin op het westen;
- Aanvaarding: in overleg.

Koopovereenkomst:
Bij de verkoop zal er een standaard NVM koopovereenkomst worden gehanteerd. Bij woningen welke ouder zijn dan 20 jaar, worden de volgende clausules opgenomen in de koopovereenkomst:
- Asbestclausule
- Ouderdomsclausule

Koopt u de woning zonder voorbehoud van financiering? Dan zullen wij een termijn hanteren van 14 dagen na het opstellen van de koopovereenkomst voor het storten van de bankgarantie/waarborgsom.

Deze informatie is door ons met de nodige zorgvuldigheid samengesteld. Onzerzijds wordt echter geen enkele aansprakelijkheid aanvaard voor enige onvolledigheid, onjuistheid of anderszins, dan wel de gevolgen daarvan. Alle opgegeven maten en oppervlakten zijn indicatief.
+ toon meer
deze woning is Verkocht

Kruiser 8 Veenendaal

Kruiser 8

3904 ZR, Veenendaal
Ditters open huis: 5 april 2025 10:00 - 12:00 uur
Landelijke Open Huizen Route NVM: 5 april 2025 11:00 uur - 15:00 uur
Vanaf€ 425.000 k.k.

Schakel een aankoopmakelaar in.

Snel handelen helpt je jouw droomhuis te bemachtigen. Zo vergroot je de kans dat je er op tijd bij bent.
Veenendaal
verkocht

Of maak vrijblijvend een zoekprofiel aan.

Vergelijkbare woningen

Hypotheken

Onafhankelijk hypotheekadvies

  • Ligt jouw droomhuis binnen handbereik?
  • Wil je jouw huidige hypotheek verhogen?
  • Is er hypotheekruimte voor verduurzaming?

Blijf op de hoogte

Ontvang als eerste updates over nieuw aanbod en mis geen enkele kans om jouw droomwoning te vinden.

Gratis waardebepaling of verkoopgesprek

Met de vrijblijvende waardecheck weet je snel waar je aan toe bent. Onze makelaars kijken naar de lokale markt en vergelijkbare woningen in jouw buurt om een goede schatting te geven.

Realiseer al jouw woondromen met Ditters

Wij zijn een team van gedreven vastgoedexperts met een passie voor het maken van verbindingen – tussen kopers en verkopers, huurders en verhuurders. Met een frisse kijk op de makelaardij combineren we expertise met creativiteit. Onze makelaars luisteren écht en nemen de tijd om jouw wensen te begrijpen.


Bij Ditters sta je er niet alleen voor. We denken met je mee, begeleiden je in elke stap en zijn altijd bereikbaar voor vragen. Neem gerust contact met ons op – we helpen je graag verder!