Omschrijving

Zoek jij een ruime en zeer goed onderhouden 2-onder-1-kapwoning met o.a. 4 tot 5 slaapkamers, een zonnige tuin op het westen, een eigen oprit en een ruime garage met bovengelegen hobbyruimte/werkplaats of mogelijk master bedroom? Is jouw wens een royale woonkamer, een moderne en luxe keuken en wil je graag wonen op loopafstand van dagelijkse voorzieningen?

Dan is Sparrenlaan 22 te Veenendaal jouw nieuwe plek!

Locatie:
Sparrenlaan 22 is gelegen in een kindvriendelijke en groene woonwijk met belangrijke voorzieningen op loop- of fietsafstand. Winkelcentrum Bruïneplein is gelegen op enkele minuten fietsen en beschikt o.a. over supermarkten JUMBO en ALDI, drogisterij Kruidvat en ambachtelijk winkels. Elke vrijdag wordt het parkeerterrein ingewisseld voor de vrijdagmarkt. Daarnaast is het centrum van Veenendaal ook gemakkelijk te bereiken, compleet met allerlei voorzieningen. De wijk is zeer kindvriendelijk. Op korte afstand bevindt zich een speeltuin, meerdere basisscholen en meerdere middelbare scholen.

Laat je verrassen door de veelzijdigheid van deze twee-onder-een-kapwoning, die talloze mogelijkheden biedt!

Begane grond:
Via een ruime oprit met plek voor meerdere auto's bereik je de voordeur. Via de entree, waar de meterkast, trapopgang en een toilet gesitueerd zijn, betreed je de ruime woonkamer. Aan de voorzijde zorgt een grote raampartij voor een overvloed aan natuurlijk licht, waardoor de kamer een warme en uitnodigende sfeer krijgt. Hier is voldoende plaats voor een gezellige zitbank en er bevindt zich een knusse elektrische haard/kachel, ideaal voor sfeervolle winteravonden.

Aan de achterzijde van de woning bevindt zich het eetgedeelte dat direct aansluit op de luxe landelijke keuken. Deze moderne keuken is voorzien van verschillende inbouwapparatuur zoals: een inductiekookplaat met afzuigkap, combi-oven, koelkast en vaatwasser zodat je altijd kunt genieten van een optimale kookervaring.

Vanuit de keuken is er tevens toegang tot een praktische bijkeuken/hal met aansluitingen voor de wasmachine en droger, aangevuld met een inbouwkast. De verzorgd aangelegde achtertuin is vanuit de bijkeuken/hal bereikbaar via een loopdeur en vanuit het eetgedeelte via een riante schuifpui

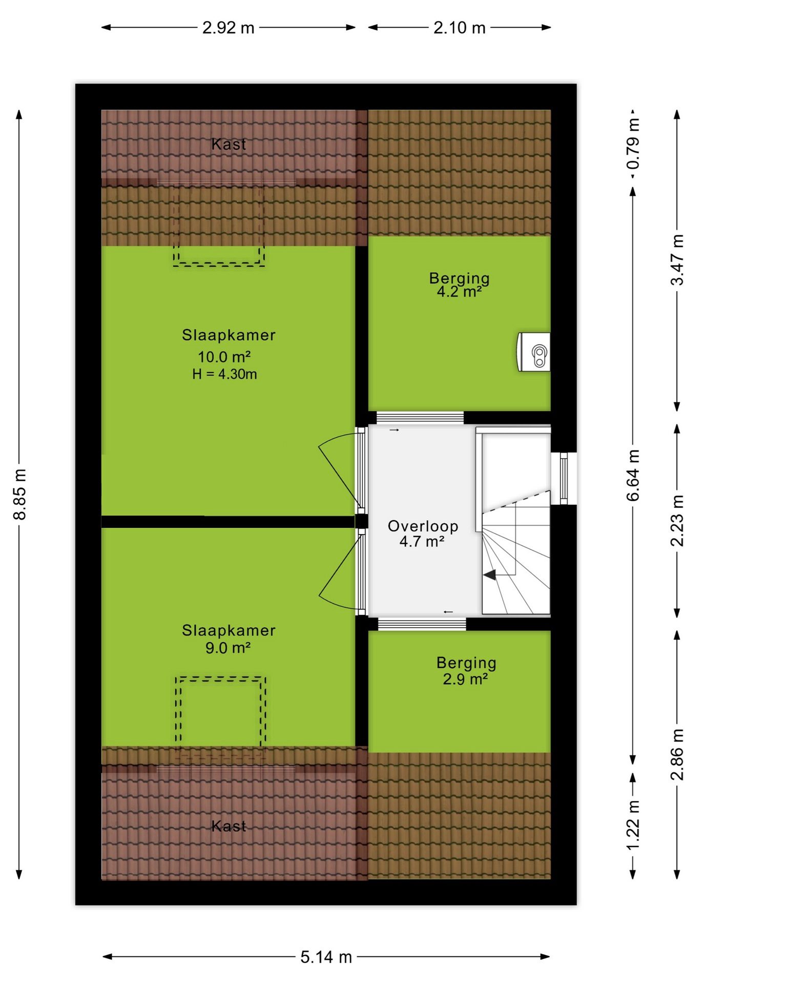
1e verdieping:
Via de overloop, die toegang biedt tot alle ruimtes, bereik je drie slaapkamers met een oppervlakte van 13,4 m², 11,8 m² en 5,6 m². Elke kamer beschikt over grote raampartijen, dat zorgt voor veel natuurlijk licht. De royale badkamer van 7,2 m² is ingericht met een dubbel wastafelmeubel, een ligbad, een tweede toilet en een douche. Daarnaast is er naast mechanische ventilatie ook een te openen raam voor de gewenste natuurlijke ventilatie.

Het is mogelijk om de garagezolder bij de woning te betrekken door een doorbraak te maken vanuit de overloop. Het is dan mogelijk om hier extra slaapkamer(s) te realiseren. Om een beter beeld hiervan te krijgen hebben we een optie plattegrond toegevoegd. Daarnaast hebben we een Artist Impression laten maken hoe de garagezolder omgetoverd kan worden tot master bedroom.

2e verdieping:
Met de vaste trap kom je op de zolder, deze verdieping beschikt over fijne bergruimten en de vierde slaapkamer. Deze kamer heeft een afmeting van maar liefst 16,8 m² en zou met een kleine verbouwing eenvoudig opgesplitst kunnen worden zodat er een 5e slaapkamer ontstaat. Zie optieplattegrond voor de mogelijkheden. Deze ruimte kan tevens dienst doen als werk-, hobby- of sportkamer.

Tuin:
De tuin, gelegen op het westen, is zowel vanuit de woning als via de aangebouwde garage toegankelijk. Deze ruime buitenruimte biedt volop mogelijkheden voor verschillende zithoekjes en een speelhoek voor kinderen. De vrijstaande houten berging van 12,3 m² is ideaal voor het opbergen van bijvoorbeeld gereedschap of fietsen. Tevens is de tuin ook via de zijingang te bereiken.

Garage:
De aangebouwde en stenen garage biedt plannen om een auto binnen te parkeren of voor het opbergen van spullen. Via een vaste trap bereik je de garagezolder van 24,2 m², die voorzien is van diverse raampartijen en talloze mogelijkheden biedt. Denk hierbij aan praktijk-/bedrijfs- en/of hobbyruimte of wellicht als atelier! Mocht de garagezolder als werkplaats blijven dienen, dan is er in de vloer een luik aanwezig met daarboven een elektrische takel voor het tillen van zware items zoals een fiets en/of motor.

Belangrijke kenmerken:
- Bouwjaar: 1993
- Woonoppervlakte: 142 m²
- Perceeloppervlakte: 260 m²
- Inhoud: 781m3
- Tuinligging: west
- Energielabel: B
- Verwarming en warm water middels Cv-ketel
- Eigen oprit voor meerdere auto's
- Ruime garage met zolder/werkplaats

Koopovereenkomst:
Bij de verkoop zal er een standaard NVM koopovereenkomst worden gehanteerd. Bij
woningen welke ouder zijn dan 20 jaar, worden de volgende clausules opgenomen in de koopovereenkomst:
- Asbestclausule
- Ouderdomsclausule

Koopt u de woning zonder voorbehoud van financiering? Dan zullen wij een termijn hanteren van 6 weken na het opstellen van de koopovereenkomst voor het storten van de bankgarantie/waarborgsom.

Deze informatie is door ons met de nodige zorgvuldigheid samengesteld. Onzerzijds wordt echter geen enkele aansprakelijkheid aanvaard voor enige onvolledigheid, onjuistheid of anderszins, dan wel de gevolgen daarvan. Alle opgegeven maten en oppervlakten zijn indicatief.
+ toon meer
deze woning is Verkocht

Sparrenlaan 22 Veenendaal

Sparrenlaan 22

3904 KB, Veenendaal
Ditters open huis: 5 april 2025 10:00 - 12:00 uur
Landelijke Open Huizen Route NVM: 5 april 2025 11:00 uur - 15:00 uur
Vanaf€ 675.000 k.k.

Schakel een aankoopmakelaar in.

Snel handelen helpt je jouw droomhuis te bemachtigen. Zo vergroot je de kans dat je er op tijd bij bent.
Veenendaal
verkocht

Of maak vrijblijvend een zoekprofiel aan.

Vergelijkbare woningen

Hypotheken

Onafhankelijk hypotheekadvies

  • Ligt jouw droomhuis binnen handbereik?
  • Wil je jouw huidige hypotheek verhogen?
  • Is er hypotheekruimte voor verduurzaming?

Blijf op de hoogte

Ontvang als eerste updates over nieuw aanbod en mis geen enkele kans om jouw droomwoning te vinden.

Gratis waardebepaling of verkoopgesprek

Met de vrijblijvende waardecheck weet je snel waar je aan toe bent. Onze makelaars kijken naar de lokale markt en vergelijkbare woningen in jouw buurt om een goede schatting te geven.

Realiseer al jouw woondromen met Ditters

Wij zijn een team van gedreven vastgoedexperts met een passie voor het maken van verbindingen – tussen kopers en verkopers, huurders en verhuurders. Met een frisse kijk op de makelaardij combineren we expertise met creativiteit. Onze makelaars luisteren écht en nemen de tijd om jouw wensen te begrijpen.


Bij Ditters sta je er niet alleen voor. We denken met je mee, begeleiden je in elke stap en zijn altijd bereikbaar voor vragen. Neem gerust contact met ons op – we helpen je graag verder!