Omschrijving

Zin in een huis met flink wat meters en nog meer mogelijkheden? Aan Varenmos 4 in Veenendaal staat een royale 2-onder-1-kapwoning met 159 m² woonoppervlakte, vijf slaapkamers, een gemoderniseerde badkamer, een neutrale en moderne leefkeuken, een lichte woonkamer en een zonnige, ruime achtertuin op het westen. De woning is goed onderhouden en beschikt over energielabel B. Een compleet gezinshuis met ruimte om nú prettig te wonen én door te groeien.

Gelegen in een geliefde, kindvriendelijke wijk op zo'n 10 minuten fietsen van het centrum met winkels, horeca en voorzieningen. Scholen, sportclubs en supermarkten zijn dichtbij. Het openbaar vervoer is uitstekend met bushaltes op loopafstand en het station op korte afstand. Via de A12 en andere uitvalswegen rijd je vlot richting Utrecht, Arnhem en Amersfoort. Bovendien woon je hier in een bosrijke omgeving: de Utrechtse Heuvelrug ligt om de hoek. Rustig wonen met uitstekende bereikbaarheid.

Alle kenmerken op een rij:
+ Royale twee-onder-een-kapwoning met 5 slaapkamers
+ Vloerverwarming op de begane grond
+ Lichte woonkamer met sfeervolle houtkachel
+ Moderne leefkeuken (nieuw geplaatst in 2016)
+ Badkamer gemoderniseerd in 2019
+ Garage- en bijkeukendak vernieuwd in 2020 en lichtkoepel geplaatst
+ Zonnige achtertuin op het westen
+ Garage met eigen oprit
+ Op eigen terrein is plaats voor drie auto’s; daarnaast is er ruim voldoende openbare parkeergelegenheid
+ Volledig geïsoleerd voorzien van energielabel B *
* Na afgifte van het label is in de woonkamer nieuwe beglazing geplaatst en vloerisolatie aangebracht

Indeling
Begane grond:
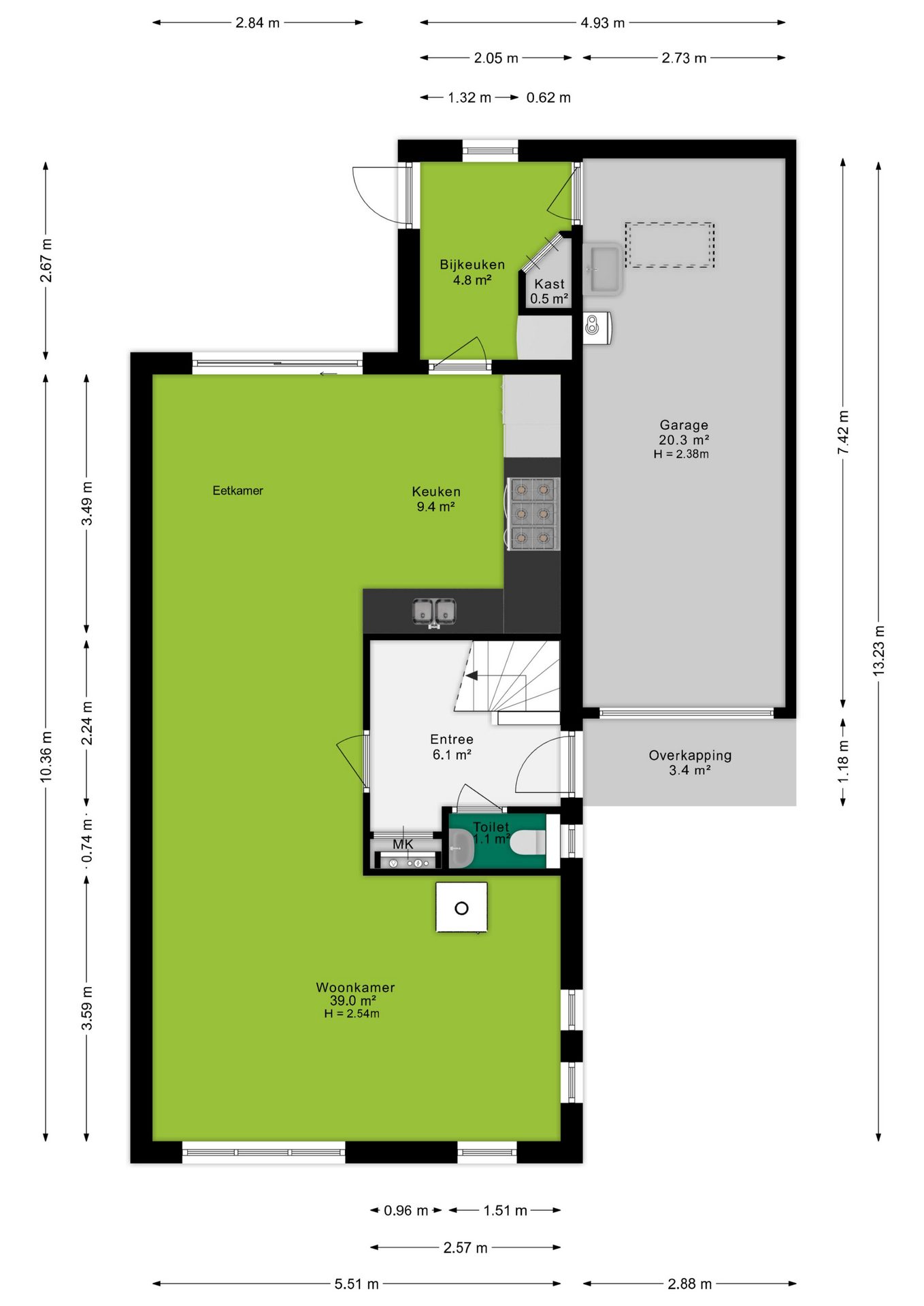
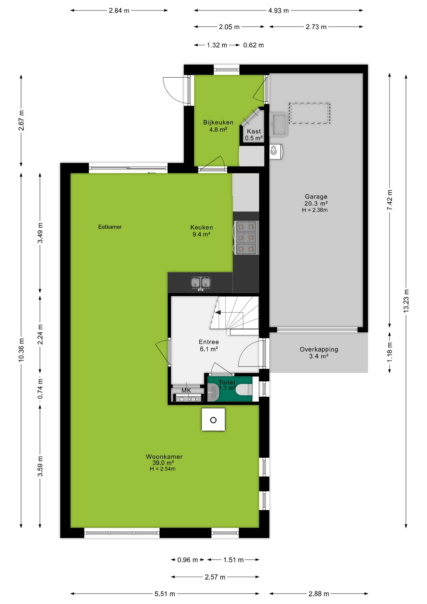
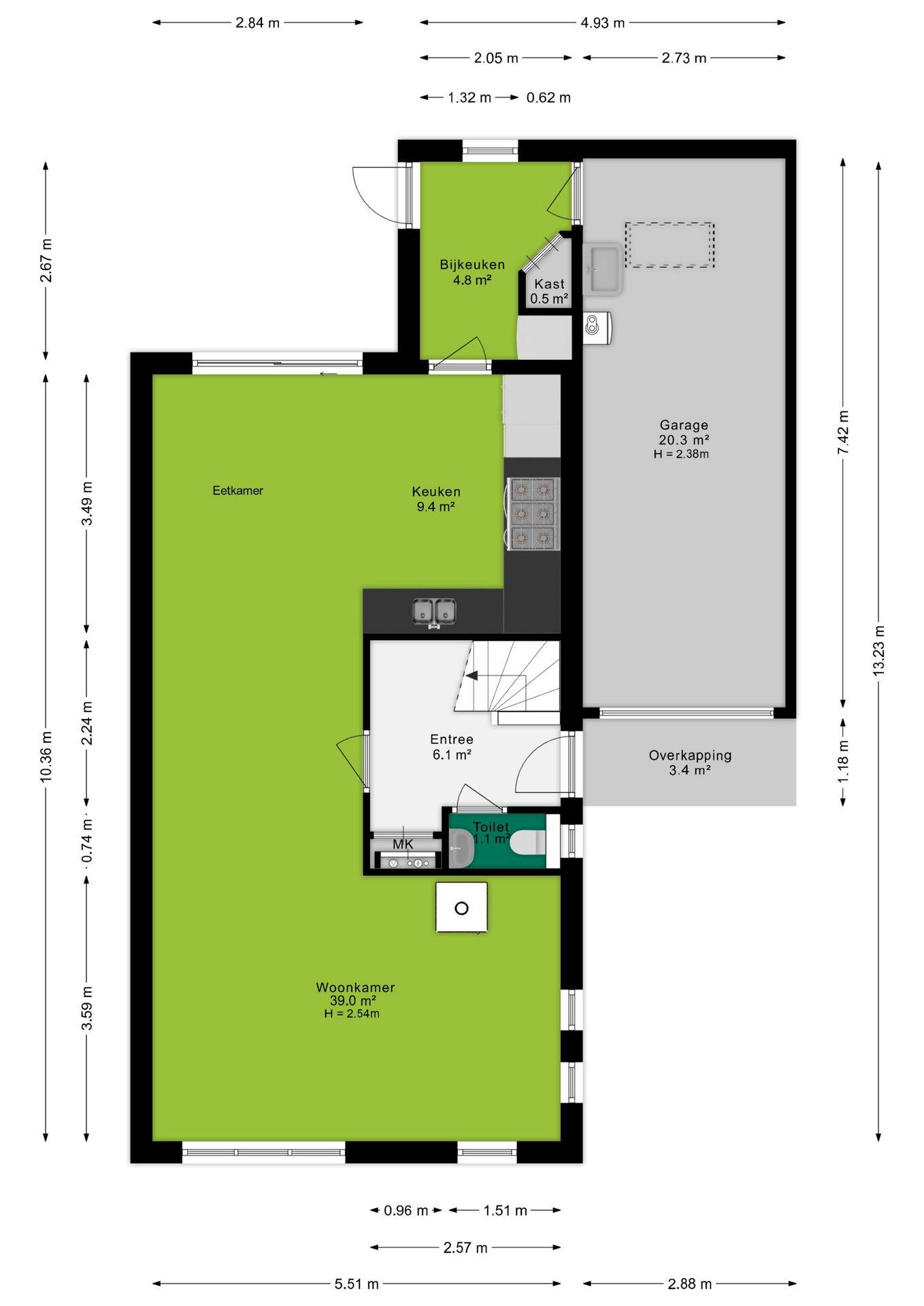
Bij binnenkomst in de hal vind je de meterkast, het toilet en de trap naar de eerste verdieping. Loop je door naar de leefruimte, dan vind je aan de voorzijde de woonkamer met een sfeervolle houtkachel. De grote raampartijen laten veel natuurlijk daglicht binnen.

Aan de achterzijde ligt de open leefkeuken met een grote schuifpui naar de op het westen gelegen achtertuin en toegang tot de bijkeuken. De keuken is in 2016 nieuw geplaatst, uitgevoerd in Lopstelling met veel werk- en kastruimte, en voorzien van een gasfornuis met afzuigkap, combi-oven, vaatwasser, koelkast en spoelbak. Aangrenzend bevindt zich het eetgedeelte met volop ruimte voor een grote eettafel.

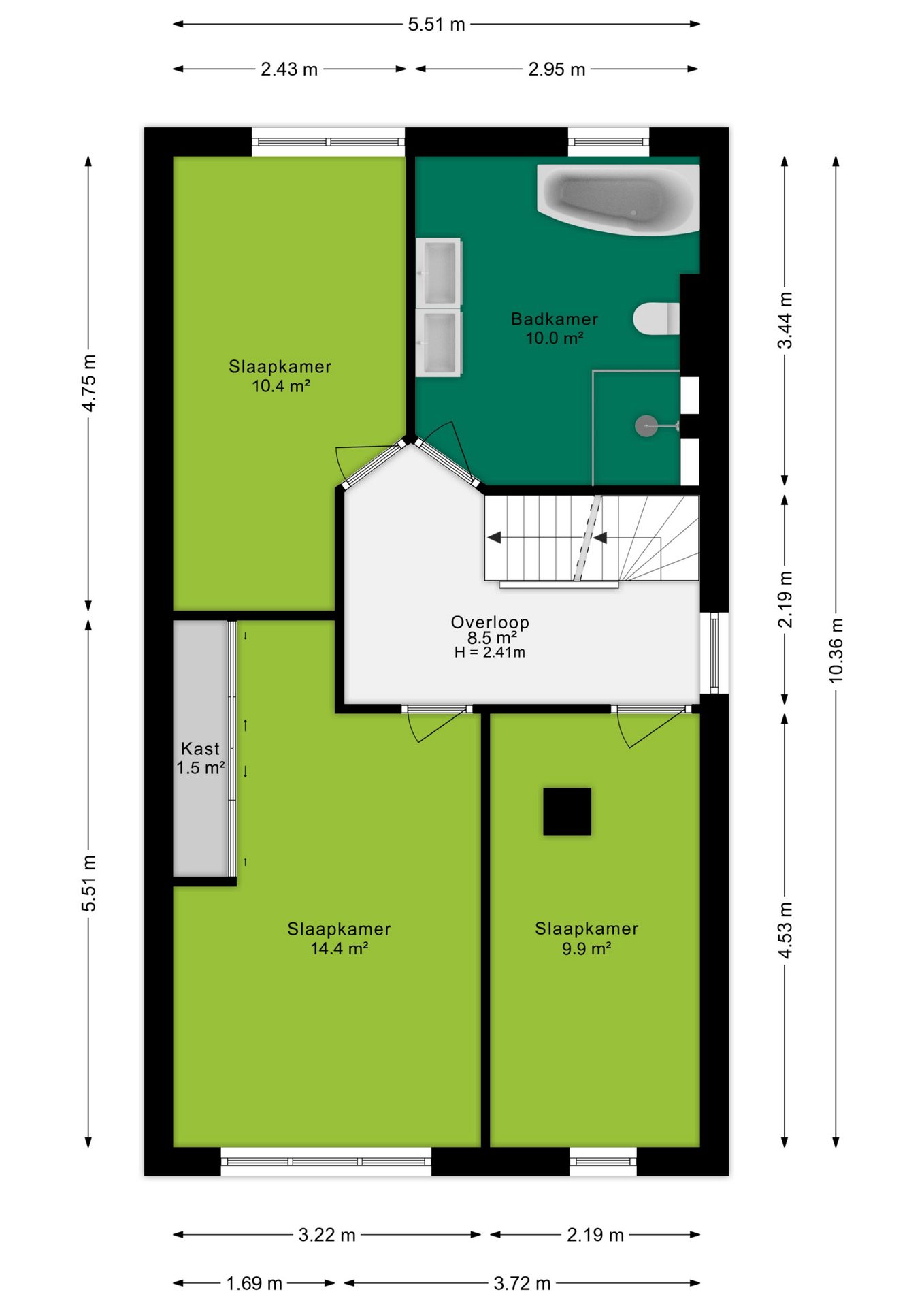
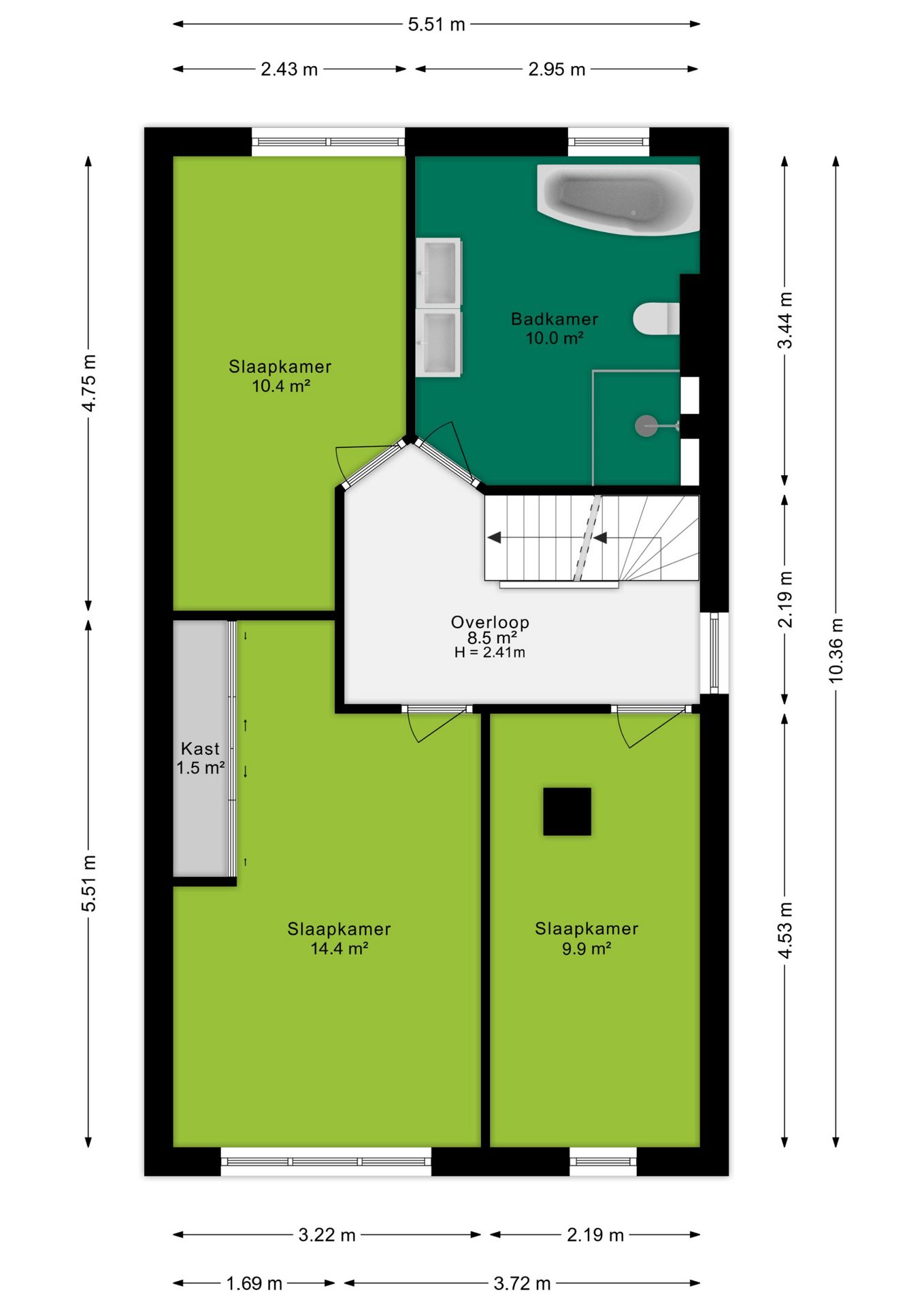
Eerste verdieping
Op de eerste verdieping vind je drie ruime slaapkamers: één van circa 14 m² en twee van circa 10 m². De grote kamer aan de voorzijde is voorzien van een inbouwkast.
De royale badkamer is in 2019 gemoderniseerd en uitgerust met een ligbad, inloopdouche, dubbel wastafelmeubel, tweede toilet en designradiator. Naast mechanische ventilatie is er natuurlijke ventilatie via een te openen raam.

Tweede verdieping
De zolder is via een vaste trap bereikbaar en ingedeeld in twee slaapkamers van circa 11 m² en 9 m², plus een separate wasruimte van circa 11 m².
Het dak heeft aan beide zijden dakramen. Dankzij knieschotten zijn er ruime opbergmogelijkheden in alle zolderruimtes. Via een vlizotrap is de vliering bereikbaar; deze loopt over de volledige breedte van de woning en is daardoor zeer ruim.

Buiten
Zonnige, ruime en privacy rijke achtertuin op het westen, deels bestraat, deels voorzien van gras en deels voorzien van planten en bomen. Een zeer verzorgde achtertuin met plek voor een loungeset en/of grote eettafel. Een heerlijke tuin om te genieten van de vele zonuren.

Bijzonderheden:
Verwarming: Nefit cv-ketel, gedeeltelijke vloerverwarming en houtkachel
Warmwater: Nefit cv-ketel
Isolatie: volledig geïsoleerd
Bouwjaar: 1994
Aanvaarding: in overleg

Koopovereenkomst:
Bij de verkoop zal er een standaard NVM koopovereenkomst worden gehanteerd.
Bij woningen welke ouder zijn dan 20 jaar, worden de volgende clausules opgenomen in de koopovereenkomst:
- Asbestclausule;
- Ouderdomsclausule.

Koop je de woning zonder voorbehoud van financiering? Dan zullen wij een termijn hanteren van 6 weken na het opstellen van de koopovereenkomst voor het storten van de bankgarantie/waarborgsom.
+ toon meer
deze woning is Verkocht

Varenmos 4 Veenendaal

Varenmos 4

3904 JX, Veenendaal
Ditters open huis: 5 april 2025 10:00 - 12:00 uur
Landelijke Open Huizen Route NVM: 5 april 2025 11:00 uur - 15:00 uur
Vanaf€ 695.000 k.k.

Schakel een aankoopmakelaar in.

Snel handelen helpt je jouw droomhuis te bemachtigen. Zo vergroot je de kans dat je er op tijd bij bent.
Veenendaal
verkocht

Of maak vrijblijvend een zoekprofiel aan.

Vergelijkbare woningen

Hypotheken

Onafhankelijk hypotheekadvies

  • Ligt jouw droomhuis binnen handbereik?
  • Wil je jouw huidige hypotheek verhogen?
  • Is er hypotheekruimte voor verduurzaming?

Blijf op de hoogte

Ontvang als eerste updates over nieuw aanbod en mis geen enkele kans om jouw droomwoning te vinden.

Gratis waardebepaling of verkoopgesprek

Met de vrijblijvende waardecheck weet je snel waar je aan toe bent. Onze makelaars kijken naar de lokale markt en vergelijkbare woningen in jouw buurt om een goede schatting te geven.

Realiseer al jouw woondromen met Ditters

Wij zijn een team van gedreven vastgoedexperts met een passie voor het maken van verbindingen – tussen kopers en verkopers, huurders en verhuurders. Met een frisse kijk op de makelaardij combineren we expertise met creativiteit. Onze makelaars luisteren écht en nemen de tijd om jouw wensen te begrijpen.


Bij Ditters sta je er niet alleen voor. We denken met je mee, begeleiden je in elke stap en zijn altijd bereikbaar voor vragen. Neem gerust contact met ons op – we helpen je graag verder!