Omschrijving

Ben je op zoek naar een ruime gezinswoning, met energielabel A, en een diepe tuin in een geliefde en kindvriendelijke wijk? Leonard Roggeveenstraat 46 is precies wat je zoekt! Deze tussenwoning van circa 119 m², gelegen aan een rustige weg, biedt alle ruimte en comfort die je voor jouw gezin wenst.

Bij binnenkomst stap je in een lichte en ruime woonkamer met openslaande deuren die een directe verbinding geven naar de diepe achtertuin. Aan de voorzijde bevindt zich de open keuken, uitgerust met diverse inbouwapparatuur zoals een kookplaat, afzuigkap, oven, combi-oven, koelkast en vriezer. Tussen de keuken en de woonkamer is volop ruimte voor een 6-persoons eettafel, perfect voor gezellige etentjes met familie en vrienden. Met maar liefst 5 slaapkamers, een balkon en een diepe achtertuin is er geen gebrek aan leefruimte. De tuin biedt een combinatie van een terras, grasstrook, berging en een praktische achterom.

De woonwijk staat bekend als een kindvriendelijke rustige woonomgeving, nabij de binnenvelden. In de directe nabijheid vind je diverse scholen, kinderopvangfaciliteiten en speeltuinen. Het is een veilige en plezierige omgeving voor je kinderen om op te groeien. Daarnaast is er een winkelcentrum in de buurt, met onder andere een supermarkt voor al je dagelijkse boodschappen. Op fietsafstand ligt de Campus van Wageningen University & Research (WUR), een wereldberoemde instelling die bekend staat om haar bijdragen aan wetenschap en duurzaamheid. Ook sportcentrum De Bongerd is gemakkelijk bereikbaar, waar je kunt genieten van een breed scala aan sportfaciliteiten. Voor een gezellige middag of avond uit, biedt het nabijgelegen stadscentrum van Wageningen tal van winkels, restaurants en cafés.

Ben je een natuurliefhebber? Dan zit je hier goed! De omgeving biedt prachtige wandel- en fietsroutes langs de Rijn en door de Veluwe, waar je kunt genieten van de rust en schoonheid van het Nederlandse landschap. Voor de dagelijkse ontspanning kun je terecht in de nabijgelegen parken en groene zones die de wijk rijk is. Wacht niet langer en maak vandaag nog een afspraak voor een bezichtiging. Jouw nieuwe thuis wacht op je aan de Leonard Roggeveenstraat 46!

Alle feiten op een rij:
- Ruime woonkamer met openslaande deuren naar de tuin
- Maar liefst 5 slaapkamers en een balkon op het zonnige zuiden
- Met 119m2 is er een fijn woonoppervlakte
- Balkon gelegen op de tweede verdieping
- De woning is voorzien van energielabel A
- Diepe achtertuin waar je altijd een plekje in de zon of schaduw kan vinden
- Rustige en kindvriendelijke woonwijk nabij dagelijkse voorzieningen

Begane grond
Bij binnenkomst kom je in de hal, waar je direct toegang hebt tot de meterkast en het toilet met fonteintje. Vanuit de hal loop je door naar de ruime woonkamer van ongeveer 26 m². Deze biedt volop ruimte voor een comfortabele zithoek en een gezellige eethoek. De openslaande deuren naar de achtertuin laten veel natuurlijk licht binnen en creëren een lichte, ruimtelijke sfeer. Op zonnige dagen fungeert de tuin als een verlengstuk van de woonkamer, ideaal om het binnen- en buitenleven naadloos in elkaar over te laten lopen.

Aan de voorzijde van de woning bevindt zich de open keuken, uitgevoerd in een lichte kleurstelling. De keuken is voorzien van diverse inbouwapparatuur, zoals een kookplaat, afzuigkap, oven, combi-oven, koelkast en vriezer.

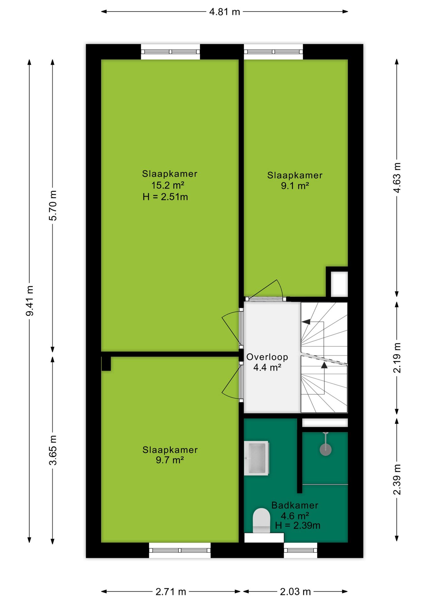
Eerste verdieping
Overloop met toegang tot drie slaapkamers, badkamer en vaste trap naar de tweede verdieping. Doordat alle kamers recht zijn opgetrokken, kun je optimaal gebruikmaken van de kamers. De ramen in elke slaapkamer zorgen bovendien voor een fijn daglicht. De badkamer is voorzien van een douche, wastafel en toilet. Dankzij het aanwezige raam profiteer je niet alleen van natuurlijk licht, maar kun je, naast de mechanische ventilatie, ook op een natuurlijke manier de ruimte ventileren.

Tweede verdieping
Op deze verdieping vind je een vierde en vijfde slaapkamer, die voor diverse doeleinden gebruikt kunnen worden. Denk bijvoorbeeld aan een extra slaapkamer, een thuiswerkplek of een hobbyruimte. Daarnaast biedt deze verdieping toegang tot het balkon, dat op het zonnige zuiden is gelegen. Hier kun je heerlijk van de zon genieten of de was ophangen. Extra praktisch is dat de aansluiting voor de wasmachine zich ook op deze verdieping bevindt.

Tuin
Via de openslaande deuren in de woonkamer stap je de verzorgde achtertuin in, gelegen op het noorden. De tuin is praktisch ingedeeld met zowel een terras als een groenstrook. Ondanks de noordelijke ligging kun je door de diepe tuin hier genieten van een plekje in de zon of schaduw. Dit maakt de tuin een ideale plek voor een ontspannen kopje koffie of een gezellige barbecue met vrienden en familie. De betegelde terrassen bieden genoeg ruimte voor tuinmeubilair, een eettafel of een knusse loungehoek, terwijl de groenstrook tevens een leuke speelplek biedt voor kinderen.

Achterin de tuin bevindt zich een berging, perfect om tuingereedschap, fietsen en andere spullen op te bergen. Zo blijft je tuin overzichtelijk en opgeruimd. Daarnaast is de tuin voorzien van een achterom, wat zorgt voor extra gemak.

Bijzonderheden:
Verwarming: stadsverwarming
Warmwater: centrale voorziening
Isolatie: volledig geïsoleerd
Bouwjaar: 1997
Tuinligging: noorden
Aanvaarding: In overleg

Koopovereenkomst:
Bij de verkoop zal er een standaard NVM koopovereenkomst worden gehanteerd. Bij woningen welke ouder zijn dan 20 jaar, worden de volgende clausules opgenomen in de koopovereenkomst:
- Asbestclausule
- Ouderdomsclausule

Koopt u de woning zonder voorbehoud van financiering? Dan zullen wij een termijn hanteren van 14 dagen na het opstellen van de koopovereenkomst voor het storten van de bankgarantie/waarborgsom.

Deze informatie is door ons met de nodige zorgvuldigheid samengesteld. Onzerzijds wordt echter geen enkele aansprakelijkheid aanvaard voor enige onvolledigheid, onjuistheid of anderszins, dan wel de gevolgen daarvan. Alle opgegeven maten en oppervlakten zijn indicatief.
+ toon meer
deze woning is Verkocht

Leonard Roggeveenstraat 46 Wageningen

Leonard Roggeveenstraat 46

6708 SL, Wageningen
Ditters open huis: 5 april 2025 10:00 - 12:00 uur
Landelijke Open Huizen Route NVM: 5 april 2025 11:00 uur - 15:00 uur
Vanaf€ 479.500 k.k.

Schakel een aankoopmakelaar in.

Snel handelen helpt je jouw droomhuis te bemachtigen. Zo vergroot je de kans dat je er op tijd bij bent.
Wageningen
verkocht

Of maak vrijblijvend een zoekprofiel aan.

Vergelijkbare woningen

Hypotheken

Onafhankelijk hypotheekadvies

  • Ligt jouw droomhuis binnen handbereik?
  • Wil je jouw huidige hypotheek verhogen?
  • Is er hypotheekruimte voor verduurzaming?

Blijf op de hoogte

Ontvang als eerste updates over nieuw aanbod en mis geen enkele kans om jouw droomwoning te vinden.

Gratis waardebepaling of verkoopgesprek

Met de vrijblijvende waardecheck weet je snel waar je aan toe bent. Onze makelaars kijken naar de lokale markt en vergelijkbare woningen in jouw buurt om een goede schatting te geven.

Realiseer al jouw woondromen met Ditters

Wij zijn een team van gedreven vastgoedexperts met een passie voor het maken van verbindingen – tussen kopers en verkopers, huurders en verhuurders. Met een frisse kijk op de makelaardij combineren we expertise met creativiteit. Onze makelaars luisteren écht en nemen de tijd om jouw wensen te begrijpen.


Bij Ditters sta je er niet alleen voor. We denken met je mee, begeleiden je in elke stap en zijn altijd bereikbaar voor vragen. Neem gerust contact met ons op – we helpen je graag verder!