Omschrijving

Gelegen op geliefde locatie nabij het centrum van Zevenaar bevindt zich deze fantastische twee-onder-een-kapwoning met garage op een groot perceel van 300m². De woning heeft een ruim woonoppervlakte van 130m², is voorzien van 4 (slaap)kamers en heeft een heerlijke achtertuin gelegen op het zonnige zuidoosten.

De volgende aspecten van deze woning spreken je ook vast aan: een ruime woonkamer met heerlijk veel lichtinval, open keuken voorzien van diverse inbouwapparatuur, voorzien van 4 (slaap)kamers, een complete badkamer, een eigen oprit met garage, een heerlijke achtertuin en er zijn 8 zonnepanelen aanwezig. Daarnaast is de ligging van de woning ook nog eens bijna perfect te noemen: aan de voorzijde uitzicht over een groenstrook en alle voorzieningen zijn op korte afstand te bereiken.

Zevenaar is een historisch stadje in de provincie Gelderland, gelegen aan de rivier de Oude IJssel. Het is een plek met een rijke geschiedenis, die teruggaat tot de Romeinse tijd. In de middeleeuwen was Zevenaar een belangrijke handelsstad, wat nog altijd te zien is aan de vele prachtige oude panden en gebouwen. Naast de talloze historische gebouwen en monumenten biedt Zevenaar ook meer dan genoeg plekken om lekker te winkelen, te eten en te drinken. Het stadje heeft een gezellig centrum met een scala aan gezellige restaurantjes, cafeetjes en terrasjes. Daarnaast zijn er tal van leuke winkeltjes te vinden waar je kunt snuffelen naar bijzondere cadeautjes of kleding. Kortom, Zevenaar is een fraaie historische stad met veel karakter en charme. Het is een perfecte bestemming voor wie op zoek is naar een dagje uit in een mooie omgeving en wilt genieten van cultuur, geschiedenis en gezelligheid.

Pluspunten van de woning:
+ Fantastische twee-onder-een-kapwoning op een groot perceel;
+ Met 130m² beschik je over veel leefruimte;
+ Woonkamer met veel lichtinval;
+ Open keuken voorzien van diverse inbouwapparatuur;
+ Voorzien van 4 (slaap)kamers en een complete badkamer;
+ Royale achtertuin op het zuidoosten;
+ Eigen oprit en garage;
+ Voorzien van 8 zonnepanelen en een airco (2021);
+ Het platte dak van de garage is vernieuwd in juli 2024;
+ Gelegen nabij diverse voorzieningen;

Indeling

Begane grond
Via een eigen oprit, waar je gemakkelijk de auto kunt parkeren, bereik je de woning. De entree met ruime hal, meterkast en toilet geven toegang tot alle vertrekken. De woonkamer is in de gehele lengte van de woning en is daardoor goed bemeten. Door de grote raampartijen is er heerlijk veel lichtinval aanwezig. De open keuken is opgesteld in een lichte kleurstelling en voorzien van diverse inbouwapparatuur, te weten: een gasfornuis, afzuigkap, combi-oven/magnetron, koelkast en een vaatwasser. In de keuken is airconditioning aanwezig. Vanuit de keuken is de achtertuin te bereiken en is er toegang naar de garage.

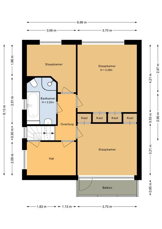
Eerste verdieping
De overloop geeft toegang naar 3 slaapkamers, de badkamer en tussenhal met trapopgang naar de tweede verdieping. De slaapkamers zijn goed bemeten, voorzien van nette vloeren en voldoende lichtinval. De grootste slaapkamer is voorzien van vaste kasten en airconditioning. De slaapkamer aan de voorzijde is eveneens voorzien van vaste kasten en geeft toegang tot een fijn balkon. De tussenhal is erg ruim waardoor deze thans in gebruik is als werkruimte. De badkamer is opgesteld in een moderne kleurstelling en is voorzien van een ligbad, inloopdouche, wastafel met wastafelmeubel, toilet, handdoekradiator en een raam om te kunnen ventileren.

Tweede verdieping
Via een vaste trap bereik je de volwaardig tweede verdieping waar zich de 4e (slaap)kamer zich bevindt. Deze (slaap)kamer is eveneens goed bemeten en voorzien van voldoende daglicht. Er is hier tevens veel opbergruimte aanwezig.

Tuin/ garage
De heerlijk royale achtertuin is gelegen op het zonnige zuidoosten waardoor je hier optimaal van het zonnetje en het buitenleven kunt genieten. Door de fijne afmeting kan je hier eventueel meerdere terrasjes en/of speelplekjes creëren. Achterin de tuin bevindt zich nog een handige berging. De ideale garage is zowel van buiten als binnen te bereiken en heeft een afmeting van 20m² waardoor je hier eventueel de auto kunt parkeren. In de garage is een keukenblok met wastafel en de wasmachine-aansluiting aanwezig.

Kenmerken:
Verwarming: C.V.-combiketel (bouwjaar 2019)
Warm water: C.V.-combiketel (bouwjaar 2019)
Bouwjaar: 1969
Isolatie: Vloerisolatie, dakisolatie en dubbel glas (HR)
Tuinligging: Zuidoosten
Aanvaarding: In overleg

Koopovereenkomst:
Bij de verkoop zal er een standaard NVM koopovereenkomst worden gehanteerd. Bij woningen welke ouder zijn dan 20 jaar, worden de volgende clausules opgenomen in de koopovereenkomst:
- Asbestclausule;
- Ouderdomsclausule.

Koop je de woning zonder voorbehoud van financiering? Dan zullen wij een termijn hanteren van 14 dagen na het opstellen van de koopovereenkomst voor het storten van de bankgarantie/waarborgsom.

Deze informatie is door ons met de nodige zorgvuldigheid samengesteld. Onzerzijds wordt echter geen enkele aansprakelijkheid aanvaard voor enige onvolledigheid, onjuistheid of anderszins, dan wel de gevolgen daarvan. Alle opgegeven maten en oppervlakten zijn indicatief.
+ toon meer
deze woning is Verkocht

Vondellaan 196 Zevenaar

Vondellaan 196

6901 MR, Zevenaar
Ditters open huis: 5 april 2025 10:00 - 12:00 uur
Landelijke Open Huizen Route NVM: 5 april 2025 11:00 uur - 15:00 uur
Vanaf€ 439.500 k.k.

Schakel een aankoopmakelaar in.

Snel handelen helpt je jouw droomhuis te bemachtigen. Zo vergroot je de kans dat je er op tijd bij bent.
Zevenaar
verkocht

Of maak vrijblijvend een zoekprofiel aan.

Vergelijkbare woningen

Hypotheken

Onafhankelijk hypotheekadvies

  • Ligt jouw droomhuis binnen handbereik?
  • Wil je jouw huidige hypotheek verhogen?
  • Is er hypotheekruimte voor verduurzaming?

Blijf op de hoogte

Ontvang als eerste updates over nieuw aanbod en mis geen enkele kans om jouw droomwoning te vinden.

Gratis waardebepaling of verkoopgesprek

Met de vrijblijvende waardecheck weet je snel waar je aan toe bent. Onze makelaars kijken naar de lokale markt en vergelijkbare woningen in jouw buurt om een goede schatting te geven.

Realiseer al jouw woondromen met Ditters

Wij zijn een team van gedreven vastgoedexperts met een passie voor het maken van verbindingen – tussen kopers en verkopers, huurders en verhuurders. Met een frisse kijk op de makelaardij combineren we expertise met creativiteit. Onze makelaars luisteren écht en nemen de tijd om jouw wensen te begrijpen.


Bij Ditters sta je er niet alleen voor. We denken met je mee, begeleiden je in elke stap en zijn altijd bereikbaar voor vragen. Neem gerust contact met ons op – we helpen je graag verder!