Omschrijving

Hoekwoning met vier slaapkamers, zonnepanelen en tuin op het zuidwesten!

Deze ruime hoekwoning uit 1986 combineert licht, ruimte en energiezuinig wonen. Met een woonoppervlakte van circa 102 m², vier slaapkamers, zonnepanelen en een zonnige tuin met achterom biedt deze woning alles wat een gezin nodig heeft. De tuingerichte woonkamer, lichte ruimtes en gunstige ligging in een groene omgeving maken dit een prettige en praktische gezinswoning.

Ligging
De woning ligt op een centrale en groene locatie aan de singel in Schothorst. Dankzij de vele bomen en het water heb je vanuit de woonkamer een fraai uitzicht en woon je in een rustige straat met volop privacy. Winkelcentrum Schothorst ligt om de hoek, NS-station Schothorst en diverse scholen liggen op korte loopafstand. Daarnaast zijn er meerdere speelvelden, wandelroutes in het Stadspark en sportvoorzieningen in de buurt. De uitvalswegen A1 en A28 zijn binnen enkele minuten bereikbaar, wat de locatie ideaal maakt voor forenzen.

Pluspunten
+ Hoekwoning met zonnige tuin op het zuidwesten
+ Vier slaapkamers, waaronder een ruime zolderkamer
+ Zonnepanelen (10 stuks) en laadpunt voor elektrische auto
+ Tuingerichte woonkamer met veel lichtinval
+ Keuken (vernieuwd in 2023)
+ Achterom en stenen berging
+ Openbaar parkeren voor de deur

Indeling

Begane grond
De hal geeft toegang tot de meterkast (vernieuwd in 2025), trapopgang, toiletruimte met fonteintje en de woonkamer. De keuken met inductiekookplaat, afzuigkap, combi-oven, koelkast, vriezer en vaatwasser ligt aan de voorzijde en is praktisch ingedeeld, terwijl de tuingerichte woonkamer veel lichtinval heeft dankzij de grote ramen en de schuifpui naar de tuin. Hier geniet je van een prettige woonruimte die direct in verbinding staat met buiten.

Eerste verdieping
De overloop biedt toegang tot drie slaapkamers van respectievelijk circa 14,1 m², 11,4 m² en 9,5 m². De badkamer is compleet ingericht met een bad (douche in bad), toilet en wastafelmeubel.

Tweede verdieping
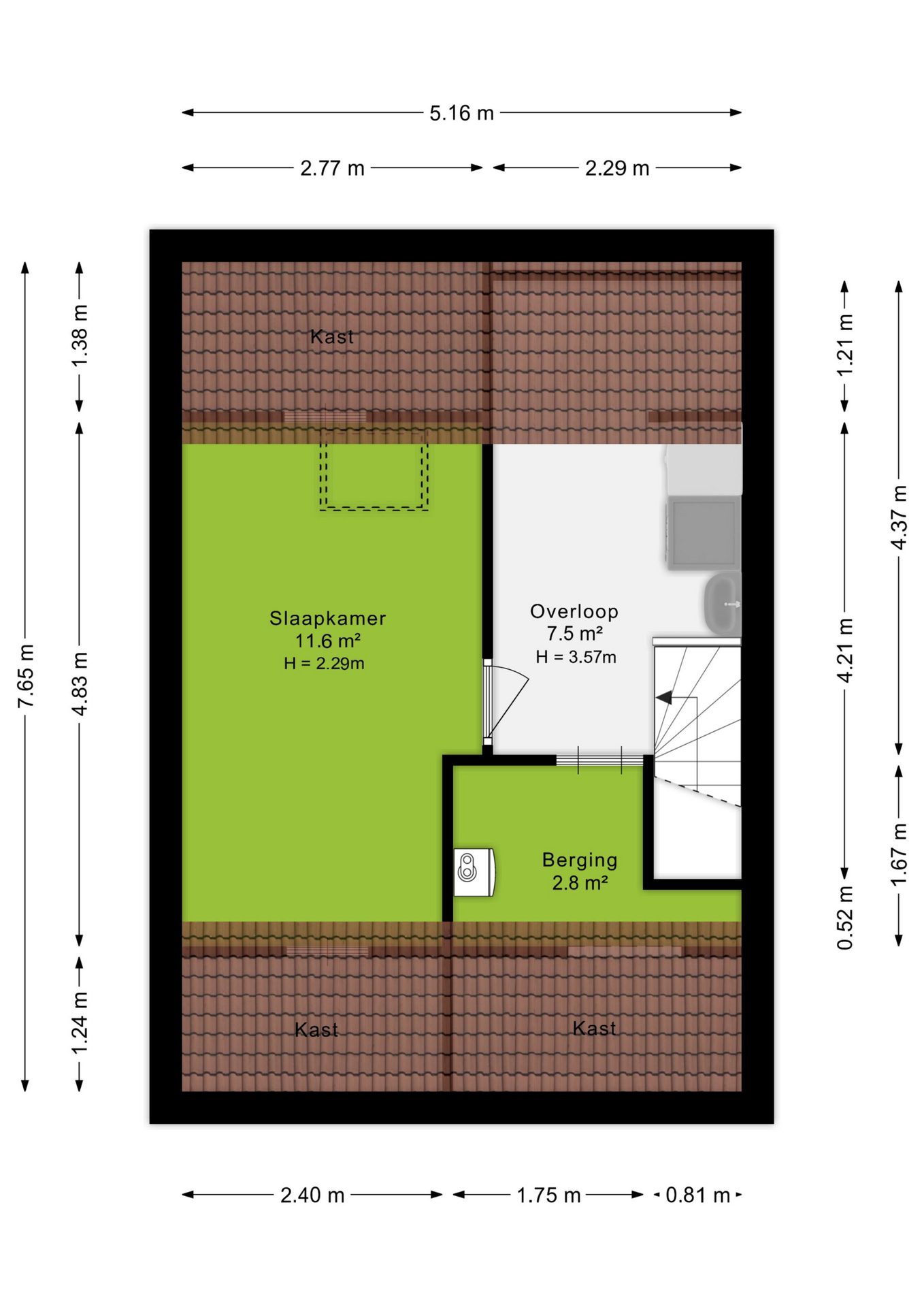
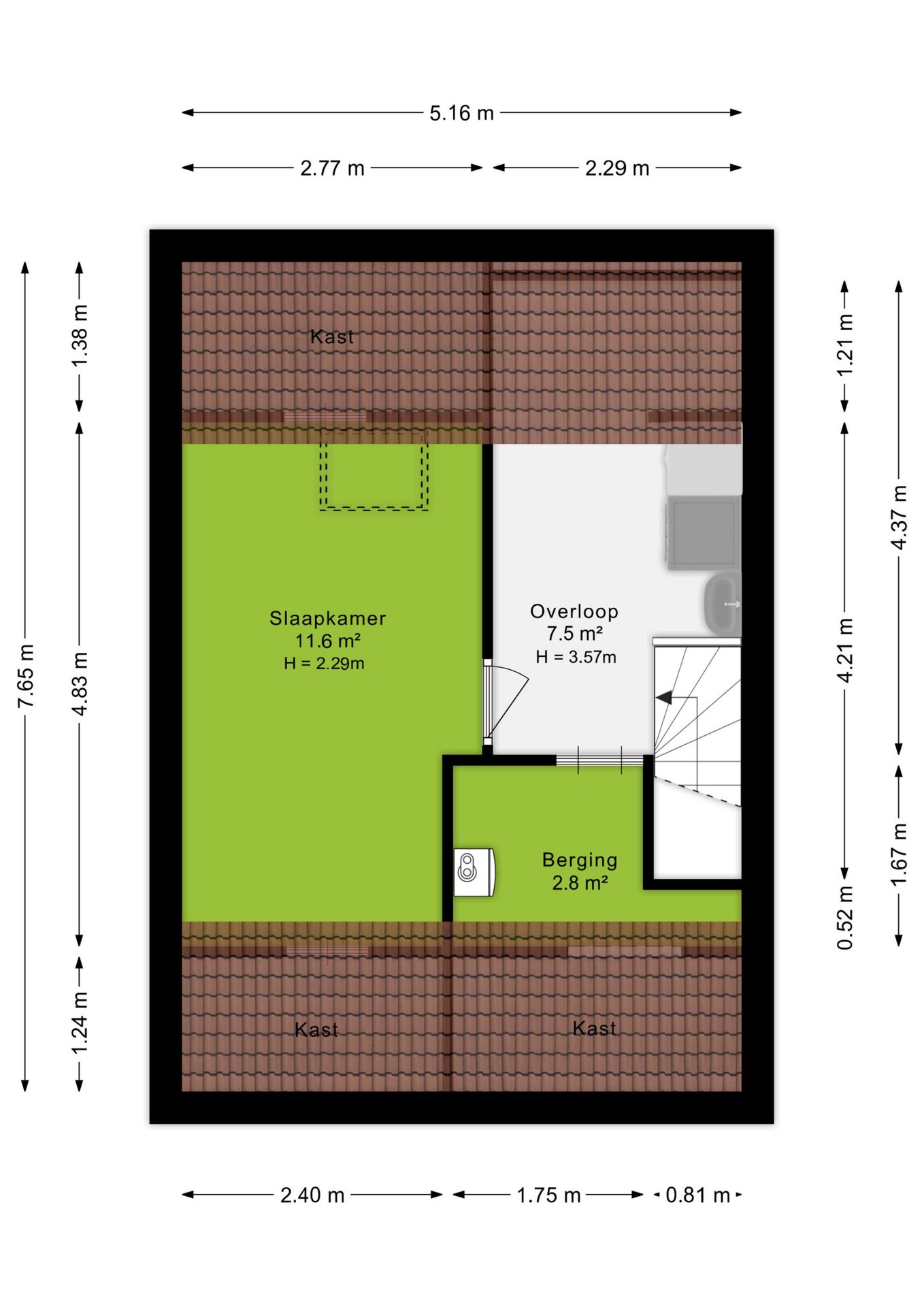
De tweede verdieping bestaat uit een ruime overloop met knieschotten, opslagruimte met C.V.-installatie, WTW en aansluiting voor wasmachine en droger. Daarnaast bevindt zich hier een vierde slaapkamer met ramen aan beide zijden, wat zorgt voor veel licht en ventilatie.

Buitenruimte
De zonnige achtertuin ligt op het zuidwesten en is voorzien van een stenen berging, achterom en zonnescherm. Geniet van het buitenleven onder de veranda met optionele voorluifel. Dankzij de gunstige oriëntatie van de tuin geniet je hier de hele dag van de zon.

Bijzonderheden
- Bouwjaar 1986
- Woonoppervlakte circa 102 m²
- Perceeloppervlakte 139 m²
- Energielabel A
- Verwarming middels warme lucht
- 10 zonnepanelen aanwezig
- Laadpunt elektrische auto
- Tuin op het zuidwesten met achterom
- Stenen berging
- Openbaar parkeren

Samenvatting
Een lichte en energiezuinige hoekwoning met vier slaapkamers, zonnepanelen, een laadpunt voor een elektrische auto en een zonnige tuin op het zuidwesten. De ligging aan de singel in Schothorst biedt een groene en rustige woonomgeving met winkels, scholen en het station op loopafstand — ideaal voor gezinnen die centraal en comfortabel willen wonen in Amersfoort.

Nieuwsgierig geworden? Kom dan vooral kijken! Neem contact op met ons kantoor voor het inplannen van een bezichtiging. We vertellen je graag alles over deze verrassende woning.

Koopovereenkomst:
Bij de verkoop zal er een standaard NVM koopovereenkomst worden gehanteerd. Bij woningen welke ouder zijn dan 20 jaar, worden de volgende clausules opgenomen in de koopovereenkomst:
Asbestclausule;
Ouderdomsclausule.

Koop je de woning zonder voorbehoud van financiering? Dan zullen wij een termijn hanteren van 6 weken na het opstellen van de koopovereenkomst voor het storten van de bankgarantie/waarborgsom. Deze informatie is door ons met de nodige zorgvuldigheid samengesteld. Onzerzijds wordt echter geen enkele aansprakelijkheid aanvaard voor enige onvolledigheid, onjuistheid of anderszins, dan wel de gevolgen daarvan. Alle opgegeven maten en oppervlakten zijn indicatief.
+ toon meer
deze woning is Verkocht

Abraham Blankaartsingel 169 Amersfoort

Abraham Blankaartsingel 169

3813 PA, Amersfoort
Ditters open huis: 5 april 2025 10:00 - 12:00 uur
Landelijke Open Huizen Route NVM: 5 april 2025 11:00 uur - 15:00 uur
Vanaf€ 500.000 k.k.

Schakel een aankoopmakelaar in.

Snel handelen helpt je jouw droomhuis te bemachtigen. Zo vergroot je de kans dat je er op tijd bij bent.
Amersfoort
verkocht

Of maak vrijblijvend een zoekprofiel aan.

Vergelijkbare woningen

Hypotheken

Onafhankelijk hypotheekadvies

  • Ligt jouw droomhuis binnen handbereik?
  • Wil je jouw huidige hypotheek verhogen?
  • Is er hypotheekruimte voor verduurzaming?

Blijf op de hoogte

Ontvang als eerste updates over nieuw aanbod en mis geen enkele kans om jouw droomwoning te vinden.

Gratis waardebepaling of verkoopgesprek

Met de vrijblijvende waardecheck weet je snel waar je aan toe bent. Onze makelaars kijken naar de lokale markt en vergelijkbare woningen in jouw buurt om een goede schatting te geven.

Realiseer al jouw woondromen met Ditters

Wij zijn een team van gedreven vastgoedexperts met een passie voor het maken van verbindingen – tussen kopers en verkopers, huurders en verhuurders. Met een frisse kijk op de makelaardij combineren we expertise met creativiteit. Onze makelaars luisteren écht en nemen de tijd om jouw wensen te begrijpen.


Bij Ditters sta je er niet alleen voor. We denken met je mee, begeleiden je in elke stap en zijn altijd bereikbaar voor vragen. Neem gerust contact met ons op – we helpen je graag verder!