Omschrijving

Welkom in de Berkelstraat 20, een prachtige jaren '30 eindwoning gelegen in de geliefde Rivierenbuurt van het Soesterkwartier. Deze instapklare, karakteristieke woning combineert de charme van het verleden met het comfort van nu. Met een uitgebouwde keuken, vier ruime slaapkamers en een zonnige tuin met stenen berging en achterom, biedt deze woning alles wat je nodig hebt voor een fijn thuis.

De Berkelstraat is een rustige, groene straat met een ideale ligging. Op slechts een steenworp afstand vind je de levendige Noordewierweg, waar je terecht kunt voor al je dagelijkse boodschappen bij onder andere de Albert Heijn en een kop koffie om de hoek. Of je nu naar het historische centrum van Amersfoort wilt, het intercity station Amersfoort Centraal, of even wilt ontsnappen in het nabijgelegen bos, alles is binnen 5 minuten fietsen te bereiken.

Gezinnen met kinderen zullen de nabijheid van diverse basis- en middelbare scholen waarderen, evenals de verschillende speeltuinverenigingen en sportclubs in de buurt. De Rivierenbuurt biedt een levendige en kindvriendelijke omgeving waar je je direct thuis zult voelen.

Bovendien wordt de Noordewierweg de komende jaren heringericht om nog aantrekkelijker en veiliger te worden, met een focus op duurzaamheid en leefbaarheid. Dit maakt de locatie van deze woning niet alleen prettig voor nu, maar ook een geweldige investering voor de toekomst.

Kom langs en ervaar zelf de unieke sfeer van de Berkelstraat 20!

Hieronder tref je de pluspunten van de woning op een rij:

+ Vlakbij de historische binnenstad en de natuur;
+ Dagelijkse voorzieningen, station Amersfoort Centraal en de uitvalswegen A1 en A28 zijn dichtbij;
+ Ideale ligging in de populaire, kindvriendelijke Rivierenbuurt met dierentuin en bosbad om de hoek;
+ Lichte en sfeervolle erker op de begane grond;
+ Maar liefst 4 slaapkamers, mede door de twee dakkapellen op zolder;
+ Nette keuken en recent gerenoveerde badkamer en toilet (2022);
+ Dakterras aanwezig;
+ Deels kunststof kozijnen (kozijn begane grond achterzijde en beide dakkapellen op zolder);
+ Vrijstaande stenen berging in de achtertuin en achterom.

Indeling
Begane grond

Hal/entree met toegang tot de meterkast en de tot aan de voorzijde gelegen sfeervolle eetkamer, waar je heerlijk kunt tafelen. De erker aan de voorzijde van de woning zorgt voor een prettige lichtinval door het vele glas en biedt een vrij uitzicht naar de Waalstraat. De woonkamer is licht en uitnodigend, hier bevindt zich de trap naar de eerste verdieping en een luik naar de kelderruimte. Vanuit de woonkamer is er toegang tot de keuken die uitgevoerd is in een lichte kleurstelling en is uitgerust met diverse inbouwapparatuur, zoals een gaskookplaat, afzuigkap, vaatwasmachine, oven, magnetron en koel-vriescombinatie. Achterin de keuken vind je een moderne toiletruimte (2022) met fonteintje en daarnaast een praktische bergkast.

Eerste verdieping
De overloop op de eerste verdieping biedt toegang tot twee ruime slaapkamers en de badkamer. De slaapkamer gelegen aan de voorzijde heeft een royale inbouwkast met paneeldeuren. De tweede slaapkamer ligt aan de achterzijde en kijkt uit over de tuin. De badkamer, eveneens gelegen aan de achterzijde, is modern (2022) en uitgerust met een toilet, regendouche, wastafel en wastafelmeubel. Vanuit de badkamer stap je zo het recent aangelegde dakterras op, gelegen op het zonnige westen.

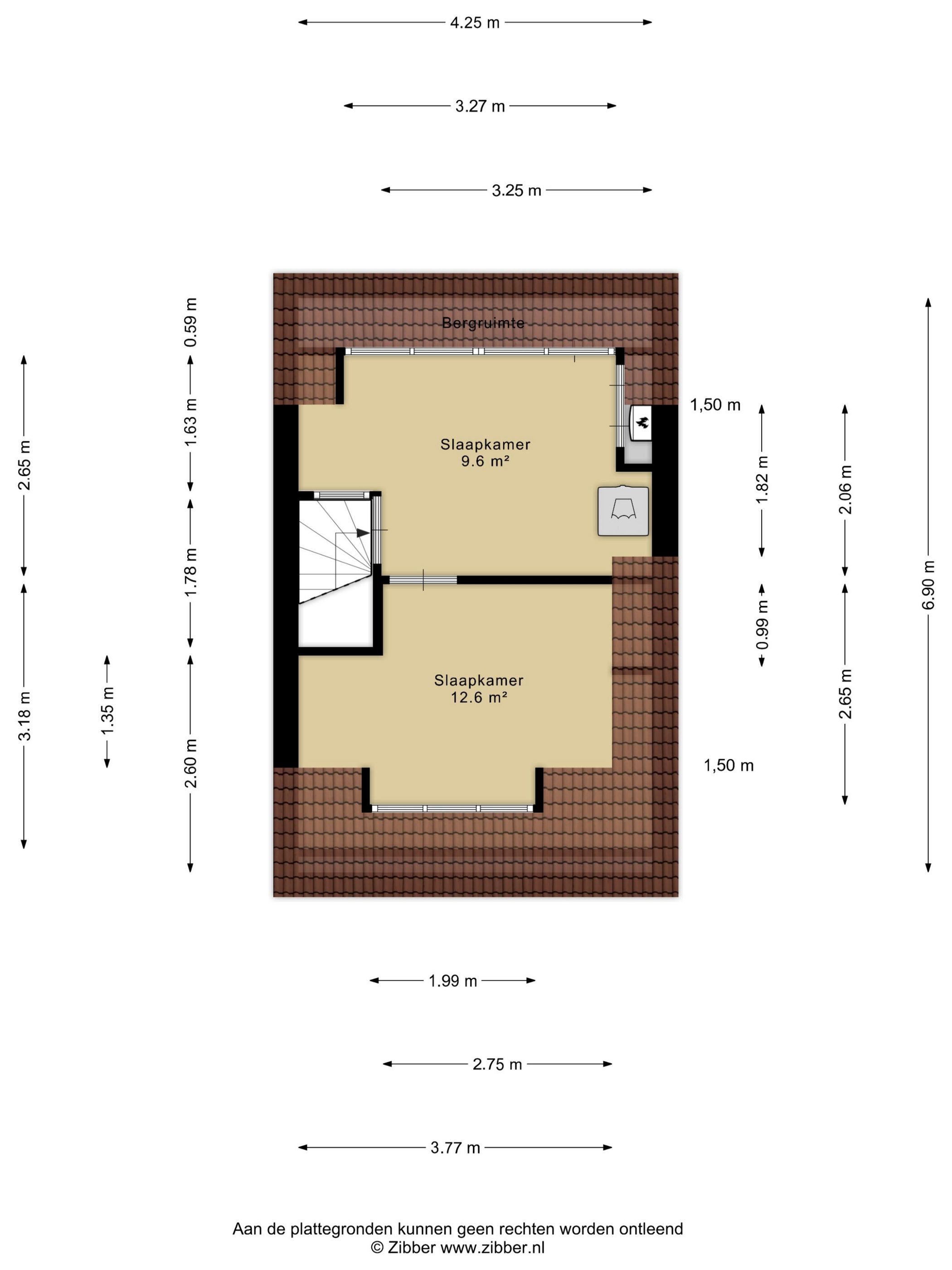
Tweede verdieping
Via een vaste trap kom je op de overloop van de zolderverdieping uit. Deze is verrassend ruim dankzij de kunststof dakkapellen aan de voor- en achterzijde. Deze aanpassing heeft geresulteerd in twee ruime slaap- dan wel werkkamers. Ook de aansluiting voor de wasmachine en droger bevindt zich hier. Achter de knieschotten is extra bergruimte en boven de deur bevindt zich een kleine vliering.

Tuin
De achtertuin is gelegen op het westen en heeft een achterom. Achterin de tuin staat een vrijstaande stenen berging, voorzien van elektra.

Woonoppervlakte 89 m²
Perceeloppervlakte 112 m²
Inhoud woning 333 m³

Bijzonderheden
Verwarming CV ketel, Remeha (2011)
Warm water CV ketel, Remeha (2011)
Isolatie Dak- en spouwmuurisolatie, grotendeels dubbel glas;
Energielabel C
Bouwjaar 1935
Tuinligging West
Aanvaarding In overleg

Koopovereenkomst:
Bij de verkoop zal er een standaard NVM koopovereenkomst worden gehanteerd. Bij woningen welke ouder zijn dan 20 jaar, worden de volgende clausules opgenomen in de koopovereenkomst:
- Asbestclausule;
- Ouderdomsclausule.

Koopt u de woning zonder voorbehoud van financiering? Dan zullen wij een termijn hanteren van 14 dagen na het opstellen van de koopovereenkomst voor het storten van de bankgarantie/waarborgsom.

Deze informatie is door ons met de nodige zorgvuldigheid samengesteld. Onzerzijds wordt echter geen enkele aansprakelijkheid aanvaard voor enige onvolledigheid, onjuistheid of anderszins, dan wel de gevolgen daarvan. Alle opgegeven maten en oppervlakten zijn indicatief.
+ toon meer
deze woning is Verkocht

Berkelstraat 20 Amersfoort

Berkelstraat 20

3812 KC, Amersfoort
Ditters open huis: 5 april 2025 10:00 - 12:00 uur
Landelijke Open Huizen Route NVM: 5 april 2025 11:00 uur - 15:00 uur
Vanaf€ 525.000 k.k.

Schakel een aankoopmakelaar in.

Snel handelen helpt je jouw droomhuis te bemachtigen. Zo vergroot je de kans dat je er op tijd bij bent.
Amersfoort
verkocht

Of maak vrijblijvend een zoekprofiel aan.

Vergelijkbare woningen

Hypotheken

Onafhankelijk hypotheekadvies

  • Ligt jouw droomhuis binnen handbereik?
  • Wil je jouw huidige hypotheek verhogen?
  • Is er hypotheekruimte voor verduurzaming?

Blijf op de hoogte

Ontvang als eerste updates over nieuw aanbod en mis geen enkele kans om jouw droomwoning te vinden.

Gratis waardebepaling of verkoopgesprek

Met de vrijblijvende waardecheck weet je snel waar je aan toe bent. Onze makelaars kijken naar de lokale markt en vergelijkbare woningen in jouw buurt om een goede schatting te geven.

Realiseer al jouw woondromen met Ditters

Wij zijn een team van gedreven vastgoedexperts met een passie voor het maken van verbindingen – tussen kopers en verkopers, huurders en verhuurders. Met een frisse kijk op de makelaardij combineren we expertise met creativiteit. Onze makelaars luisteren écht en nemen de tijd om jouw wensen te begrijpen.


Bij Ditters sta je er niet alleen voor. We denken met je mee, begeleiden je in elke stap en zijn altijd bereikbaar voor vragen. Neem gerust contact met ons op – we helpen je graag verder!