Omschrijving

Binnen de Veste 63, wonen op hoog niveau in hartje Amersfoort.

Ben je op zoek naar een luxe afgewerkt appartement in het bruisende centrum van Amersfoort, met het comfort van een woning én het gemak van een lift en een eigen garage? Dan is dit jouw kans! Binnen de Veste 63 vind je een royaal, instapklaar appartement van maar liefst 108 m², verdeeld over drie woonlagen. De woning beschikt over drie slaapkamers, een luxe inloopkast, een zonnig balkon op het zuidoosten en een privégarage in de onderbouw. Perfect voor wie stijlvol wil wonen en waarde hecht aan ruimte, comfort én een toplocatie.

Met een nieuwe keuken, strak gestucte wanden, vernieuwd glas en een eigentijdse afwerking is deze woning helemaal van nu. Daarbij is de indeling bijzonder praktisch, met een riante living, luxe badkamer en maar liefst drie slaapkamers.

De omgeving – het stadsleven binnen handbereik
Wonen in Binnen de Veste betekent wonen midden in het historische centrum van Amersfoort, met alles wat je nodig hebt op loopafstand: gezellige koffietentjes, boetieks, supermarkten en de dagelijkse voorzieningen. Het Centraal Station ligt op korte afstand, net als de uitvalswegen A1 en A28 — ideaal voor wie regelmatig reist. En heb je behoefte aan rust en natuur? De groene stadsparken en wandelroutes langs de grachten liggen letterlijk om de hoek.

Pluspunten van deze woning op een rij:
+ Zeer hoogwaardig afgewerkt appartement verdeeld over 3 verdiepingen
+ Nieuwe keuken en sanitair (2018)
+ Nieuw elektra en meterkast (2018)
+ Gestucte wanden (2018)
+ Nieuwe MV en CV (2018)
+ Overal nieuwe vloerafwerking (2018)
+ Balkon op het zuidoosten
+ Grote privégarage in de onderbouw
+ Toegang via lift: ideaal voor comfort op alle leeftijden
+ Midden in het historische centrum van Amersfoort
+ Nieuwe coating op de galerij en het balkon
+ VvE bijdrage is € 238,91 (€ 211,91 appartement en € 27 garage) per maand
+ Energielabel A

Indeling
Begane grond
Ruime entree met op maat gemaakte garderobekast. De entree geeft toegang tot een ruime, lichte woonkamer met houten vloer en strak gestucte wanden. Via de openslaande deur stap je zo het balkon op, gelegen op het zonnige zuidoosten — een heerlijke plek om de dag te beginnen met een kop koffie.

De moderne open keuken is compleet vernieuwd en voorzien van alle denkbare luxe: een 4-pits gasfornuis met wokbrander, vaatwasser, stoomoven, oven/magnetron, , warmhoud lade, koelkast, vriezer (3 lades), Quooker en een stijlvolle afzuigkap. Daarnaast vind je op deze verdieping een zwevend toilet met fonteintje en een vernieuwde meterkast (2018).

Eerste verdieping
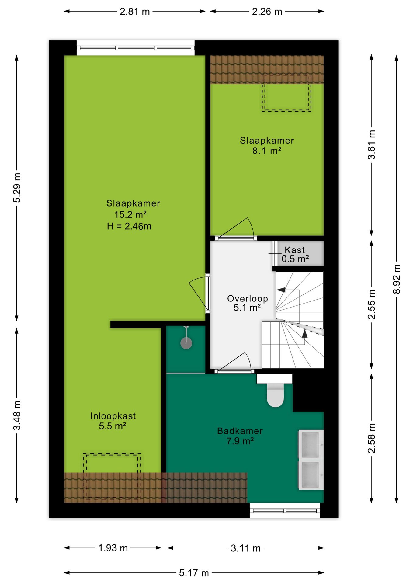
De overloop biedt toegang tot twee ruime slaapkamers. De eerste is maar liefst 15 m² groot en beschikt over een luxe inloopkast (5.5 m² groot), perfect voor het opbergen van kleding en accessoires. De tweede slaapkamer heeft een royale afmeting van 8 m² en biedt veel mogelijkheden voor inrichting. Daarnaast beschikt de eerste verdieping over een extra bergruimte, ideaal voor het opbergen van spullen.

De moderne badkamer is voorzien van een inloopdouche, dubbele wastafel, moderne verlichte spiegel en een tweede toilet. Alles is stijlvol en strak afgewerkt, waardoor de ruimte een luxe uitstraling heeft en voorzien is van alle gemakken.

Ook deze verdieping is voorzien van een houten vloer.

Tweede verdieping
Op de tweede verdieping vind je een royale derde slaapkamer, die uitstekend geschikt is voor gezinnen, thuiswerkers of gasten. De veelzijdigheid van deze kamer biedt talloze mogelijkheden om het volledig naar eigen wens in te richten. Over de volle breedte van de slaapkamer is ruim voldoende opbergruimte aanwezig. Op de overloop is er de mogelijkheid voor het opstellen van de wasmachine en droger.

Daarnaast beschikt het appartement over een garage van maar liefst 17 m², ideaal voor het opbergen van spullen, het creëren van extra bergruimte of het stallen van de auto.

Wil je wonen in het hart van de stad, zonder in te leveren op ruimte, luxe en comfort? Dan is Binnen de Veste 63 jouw droomwoning. Maak snel een afspraak voor een bezichtiging en ervaar het zelf!

Koopovereenkomst:
- Bij de verkoop zal er een standaard NVM koopovereenkomst worden gehanteerd.
Bij woningen welke ouder zijn dan 20 jaar, worden de volgende clausules opgenomen in de koopovereenkomst:
- Asbestclausule;
- Ouderdomsclausule.

Koop je de woning zonder voorbehoud van financiering? Dan zullen wij een termijn hanteren van 14 dagen na het opstellen van de koopovereenkomst voor het storten van de bankgarantie/waarborgsom.

Deze informatie is door ons met de nodige zorgvuldigheid samengesteld. Onzerzijds wordt echter geen enkele aansprakelijkheid aanvaard voor enige onvolledigheid, onjuistheid of anderszins, dan wel de gevolgen daarvan. Alle opgegeven maten en oppervlakten zijn indicatief.
+ toon meer
deze woning is Verkocht

Binnen de Veste 63 Amersfoort

Binnen de Veste 63

3811 PG, Amersfoort
Ditters open huis: 5 april 2025 10:00 - 12:00 uur
Landelijke Open Huizen Route NVM: 5 april 2025 11:00 uur - 15:00 uur
Vanaf€ 539.000 k.k.

Schakel een aankoopmakelaar in.

Snel handelen helpt je jouw droomhuis te bemachtigen. Zo vergroot je de kans dat je er op tijd bij bent.
Amersfoort
verkocht

Of maak vrijblijvend een zoekprofiel aan.

Vergelijkbare woningen

Hypotheken

Onafhankelijk hypotheekadvies

  • Ligt jouw droomhuis binnen handbereik?
  • Wil je jouw huidige hypotheek verhogen?
  • Is er hypotheekruimte voor verduurzaming?

Blijf op de hoogte

Ontvang als eerste updates over nieuw aanbod en mis geen enkele kans om jouw droomwoning te vinden.

Gratis waardebepaling of verkoopgesprek

Met de vrijblijvende waardecheck weet je snel waar je aan toe bent. Onze makelaars kijken naar de lokale markt en vergelijkbare woningen in jouw buurt om een goede schatting te geven.

Realiseer al jouw woondromen met Ditters

Wij zijn een team van gedreven vastgoedexperts met een passie voor het maken van verbindingen – tussen kopers en verkopers, huurders en verhuurders. Met een frisse kijk op de makelaardij combineren we expertise met creativiteit. Onze makelaars luisteren écht en nemen de tijd om jouw wensen te begrijpen.


Bij Ditters sta je er niet alleen voor. We denken met je mee, begeleiden je in elke stap en zijn altijd bereikbaar voor vragen. Neem gerust contact met ons op – we helpen je graag verder!