Omschrijving

Laan naar Emiclaer 66 – Amersfoort
Ruime tussenwoning met 3 slaapkamers en tuin op het zuidoosten.

In de geliefde wijk Kattenbroek, vlak bij winkelcentrum Emiclaer, ligt deze ruime tussenwoning met een woonoppervlakte van 100 m². De woning beschikt over een lichte woonkamer met openslaande deuren naar de tuin, drie slaapkamers en een moderne badkamer. Met energielabel B, een zonnige tuin op het zuidoosten en een afgesloten park direct achter de woning is dit een fijne gezinswoning op een centrale locatie in Amersfoort.

De woning ligt in de wijk Kattenbroek, een rustige en kindvriendelijke omgeving met alle voorzieningen binnen handbereik. Op loop- en fietsafstand vind je supermarkten, scholen, openbaar vervoer en recreatieplekken. Voor ontspanning ligt park Schothorst in de directe nabijheid. De wijk is uitstekend bereikbaar via de uitvalswegen A1 en A28, en ook het stadscentrum van Amersfoort is snel te bereiken.

Laan naar Emiclaer 66 is een ruime en lichte tussenwoning met drie slaapkamers, een moderne badkamer en een zonnige tuin op het zuidoosten. Dankzij de ligging in de wijk Kattenbroek, vlak bij winkelcentrum Emiclaer en park Schothorst, woon je hier rustig, centraal en met alle voorzieningen binnen handbereik.

Hieronder tref je de pluspunten van de woning op een rij:
+ Centrale ligging dicht bij winkelcentrum Emiclaer, openbaar vervoer en uitvalswegen;
+ Lichte woonkamer met openslaande deuren naar de tuin;
+ 3 slaapkamers;
+ Moderne badkamer met ligbad, douche en wastafelmeubel;
+ Tuin op het zuidoosten met zonnescherm op de achtergevel;
+ Energielabel B;
+ Vernieuwde meterkast.
+ Het dak van de woning is in 2024 vernieuwd;
+ Gelegen aan een afgesloten park dat wordt beheerd door een VvE.
+ Vernieuwde meterkast.

Indeling
Begane grond
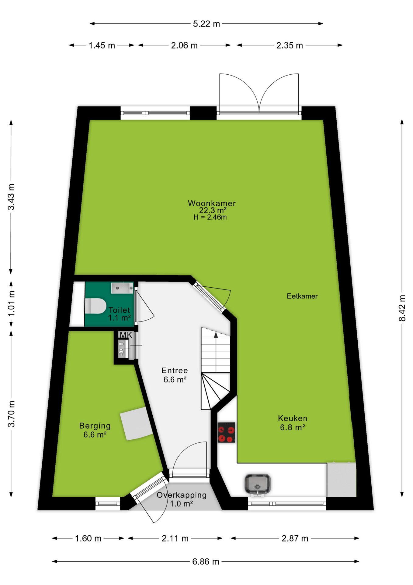
Entree met meterkast, toilet met fonteintje en trapopgang naar de eerste verdieping. De woonkamer is ruim en licht, met openslaande deuren naar de achtertuin. De open keuken is voorzien van een kookplaat, afzuigkap, vaatwasser, stoomoven en koelkast. De begane grond is afgewerkt met een nette laminaatvloer.

Via de voorzijde van de woning is er toegang tot een separate bergruimte.

Eerste verdieping
De overloop biedt toegang tot drie slaapkamers, een bergruimte en de badkamer. De badkamer is grotendeels vernieuwd waaronder de vloer, wastafel en de tegels en is ingericht met een ligbad met douchegelegenheid, toilet, wastafel en wastafelmeubel. In de afgelopen jaren is er een nieuw toilet geplaatst en de vloer is voorzien van een nieuwe PVC vloer.
In de bergruimte die is gelegen naast de badkamer zijn aansluitingen voor de wasmachine en droger aanwezig.

De overloop is heerlijk licht door het grote raam aan de voorzijde.

Buiten
De verzorgde achtertuin ligt op het zuidoosten en is bereikbaar via de openslaande deuren in de woonkamer. Aan de achtergevel bevindt zich een zonnescherm voor extra comfort.
Direct achter de woning ligt een afgesloten parkje, onderdeel van Park Meander, dat wordt beheerd door een VvE. Privacy is wat je hier gaat ervaren. Geen woningen die direct achter de tuin zijn gelegen maar een ruim opgezet geheel.

De voortuin biedt de gelegenheid tot het opstellen van bijvoorbeeld een bakfiets door het afdakje dat is gerealiseerd. Via buiten is ook directe toegang tot de bergruimte om de fietsen in op te bergen.

Opbouw 2e verdieping
Er is een vergunning aanwezig voor het realiseren van een dakopbouw. Deze is afgegeven in juli 2021. Indien gewenst is deze op te vragen bij de makelaar.

Afmetingen
Woonoppervlakte 100 m²
Perceeloppervlakte 136 m²
Inhoud woning 334 m³

Bijzonderheden
- Verwarming: C.V.-ketel Remeha;
- Warm water: C.V.-ketel Remeha;
- Bouwjaar 1992;
- Energielabel B;
- Tuinligging: op het zuidoosten;
- Aanvaarding in overleg.

Koopovereenkomst:
Bij de verkoop zal er een standaard NVM koopovereenkomst worden gehanteerd.
Bij woningen welke ouder zijn dan 20 jaar, worden de volgende clausules opgenomen in de koopovereenkomst:
- Asbestclausule;
- Ouderdomsclausule.

Koop je de woning zonder voorbehoud van financiering? Dan zullen wij een termijn hanteren van 6 weken na het opstellen van de koopovereenkomst voor het storten van de bankgarantie/waarborgsom.

Deze informatie is door ons met de nodige zorgvuldigheid samengesteld. Onzerzijds wordt echter geen enkele aansprakelijkheid aanvaard voor enige onvolledigheid, onjuistheid of anderszins, dan wel de gevolgen daarvan. Alle opgegeven maten en oppervlakten zijn indicatief.
+ toon meer
deze woning is Verkocht

Laan naar Emiclaer 66 Amersfoort

Laan naar Emiclaer 66

3823 EH, Amersfoort
Ditters open huis: 5 april 2025 10:00 - 12:00 uur
Landelijke Open Huizen Route NVM: 5 april 2025 11:00 uur - 15:00 uur
Vanaf€ 435.000 k.k.

Schakel een aankoopmakelaar in.

Snel handelen helpt je jouw droomhuis te bemachtigen. Zo vergroot je de kans dat je er op tijd bij bent.
Amersfoort
verkocht

Of maak vrijblijvend een zoekprofiel aan.

Vergelijkbare woningen

Hypotheken

Onafhankelijk hypotheekadvies

  • Ligt jouw droomhuis binnen handbereik?
  • Wil je jouw huidige hypotheek verhogen?
  • Is er hypotheekruimte voor verduurzaming?

Blijf op de hoogte

Ontvang als eerste updates over nieuw aanbod en mis geen enkele kans om jouw droomwoning te vinden.

Gratis waardebepaling of verkoopgesprek

Met de vrijblijvende waardecheck weet je snel waar je aan toe bent. Onze makelaars kijken naar de lokale markt en vergelijkbare woningen in jouw buurt om een goede schatting te geven.

Realiseer al jouw woondromen met Ditters

Wij zijn een team van gedreven vastgoedexperts met een passie voor het maken van verbindingen – tussen kopers en verkopers, huurders en verhuurders. Met een frisse kijk op de makelaardij combineren we expertise met creativiteit. Onze makelaars luisteren écht en nemen de tijd om jouw wensen te begrijpen.


Bij Ditters sta je er niet alleen voor. We denken met je mee, begeleiden je in elke stap en zijn altijd bereikbaar voor vragen. Neem gerust contact met ons op – we helpen je graag verder!