Omschrijving

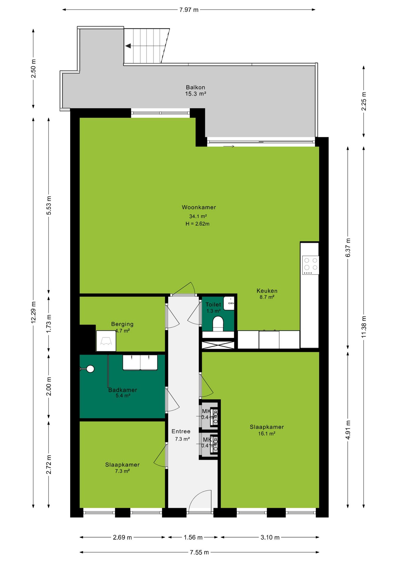
Ben je op zoek naar een luxe appartement dat van alle gemakken is voorzien. Dan is dit appartement zeker een kans! Dit 3-kamer appartement op de eerste woonlaag van 88 m2 met eigen parkeerplaats en ruim balkon op het zuiden met uitzicht over het groene waterwingebied. Het appartement is gelegen op de eerste woonlaag en is volledig gelijkvloers.

Dit appartement is gelegen aan het groene Waterwingebied, maar ook naast station Schothorst en nabij uitvalswegen richting Utrecht, Amsterdam en Arnhem. De bereikbaarheid is uitstekend. Met 5 minuten lopen sta je op station Schothorst. Vanaf hier ben je binnen 20 minuten op Utrecht Centraal en binnen 40 minuten op Amsterdam. De A1 en de A28 bereik je binnen 5 minuten.

Wil je het centrum van Amersfoort opzoeken? Binnen 7 minuten fietsen sta je in hartje Amersfoort. Voor de dagelijkse boodschappen hoef je echter niet ver van het appartement te zoeken, op slechts 10 minuten loopafstand is een supermarkt gelegen.

Met het uitzicht op het groene waterwingebied heb je de natuur binnen handbereik.
Hier komen wonen, werken, leren en ontspannen samen! Ook met het oog op de toekomst is dit appartement een fijne plek om te wonen. Het appartement is gelijkvloers en aangesloten op het duurzame warmtenet van Warmtebedrijf Amersfoort. Het appartement is gasloos en beschikt over energielabel A++.

Belangrijke punten van deze woning:
+ Groene omgeving;
+ Open keuken;
+ Nabij station Schothorst;
+ Volledig geïsoleerd en gasloos;
+ Berging in de kelder;
+ Eigen parkeerplaats in de parkeerkelder;
+ Vloerverwarming aanwezig in het gehele appartement;
+ Mogelijkheid om gebruik te maken van de deelauto's en deelfietsen;

Centrale entree op begane grond:
Op de eerste woonlaag is de hoofd entree met bellentableau, trapopgang en de liftinstallatie. In de kelder is de eigen berging gelegen. Er is ook een gemeenschappelijke binnentuin deze is aangelegd op een deel van de stallingsgarage en is semi-openbaar.

Het appartement:
Vanuit de hal zijn de woonkamer, de twee slaapkamers, badkamer en het aparte toilet te bereiken. De brede woonkamer heeft een prachtige lichtinval vanwege de grote raampartijen en de schuifpui. Er is ruimte genoeg voor een heerlijke eettafel en ruime zithoek. De woonkamer geeft tevens toegang tot het ruime balkon. Vanuit de woonkamer bereik je ook de inpandige berging waar plaats is voor de wasmachine en droger.

De open keuken heeft een L-opstelling en geeft een ruimtelijk gevoel. De keuken is voorzien van diverse inbouwapparatuur, waaronder:
+ Combi-magnetron;
+ Inductiekookplaat;
+ Afzuigkap;
+ Koel/vriescombinatie;
+ Vaatwasser.
Alle apparatuur is van het merk Siemens.

Het balkon is gelegen op het zuiden waardoor je in een groot deel van de dag kunt genieten van de zon. Daarnaast heb je vanaf het balkon een mooi uitzicht over het groene waterwingebied waardoor het voelt alsof je midden in de natuur zit. Via de trap die toegankelijk is vanaf het balkon loop je gemakkelijk naar buiten en kun je gelijk aan je wandeling beginnen.

In de parkeerkelder van het complex vind je je eigen parkeerplaats die hoort bij het appartement. Hierdoor staat je auto altijd droog en zijn parkeerproblemen verleden tijd.

Afmetingen
Woonoppervlakte 89 m²
Inhoud woning 286 m³

Bijzonderheden
Verwarming: Vloerverwarming;
Isolatie: Volledig;
Energielabel: A++;
Bouwjaar: 2024;
Bijdrage VVE: € 235,00 per maand
Aanvaarding: In overleg.

Koopovereenkomst:
Bij de verkoop zal er een standaard NVM koopovereenkomst worden gehanteerd. Bij woningen welke ouder zijn dan 20 jaar, worden de volgende clausules opgenomen in de koopovereenkomst:
- Asbestclausule;
- Ouderdomsclausule.

Koopt u de woning zonder voorbehoud van financiering? Dan zullen wij een termijn hanteren van 14 dagen na het opstellen van de koopovereenkomst voor het storten van de bankgarantie/waarborgsom.

Deze informatie is door ons met de nodige zorgvuldigheid samengesteld. Onzerzijds wordt echter geen enkele aansprakelijkheid aanvaard voor enige onvolledigheid, onjuistheid of anderszins, dan wel de gevolgen daarvan. Alle opgegeven maten en oppervlakten zijn indicatief.
+ toon meer
deze woning is Verkocht

Lichtpenweg 140 Amersfoort

Lichtpenweg 140

3821 BA, Amersfoort
Ditters open huis: 5 april 2025 10:00 - 12:00 uur
Landelijke Open Huizen Route NVM: 5 april 2025 11:00 uur - 15:00 uur
Vanaf€ 495.000 k.k.

Schakel een aankoopmakelaar in.

Snel handelen helpt je jouw droomhuis te bemachtigen. Zo vergroot je de kans dat je er op tijd bij bent.
Amersfoort
verkocht

Of maak vrijblijvend een zoekprofiel aan.

Vergelijkbare woningen

Hypotheken

Onafhankelijk hypotheekadvies

  • Ligt jouw droomhuis binnen handbereik?
  • Wil je jouw huidige hypotheek verhogen?
  • Is er hypotheekruimte voor verduurzaming?

Blijf op de hoogte

Ontvang als eerste updates over nieuw aanbod en mis geen enkele kans om jouw droomwoning te vinden.

Gratis waardebepaling of verkoopgesprek

Met de vrijblijvende waardecheck weet je snel waar je aan toe bent. Onze makelaars kijken naar de lokale markt en vergelijkbare woningen in jouw buurt om een goede schatting te geven.

Realiseer al jouw woondromen met Ditters

Wij zijn een team van gedreven vastgoedexperts met een passie voor het maken van verbindingen – tussen kopers en verkopers, huurders en verhuurders. Met een frisse kijk op de makelaardij combineren we expertise met creativiteit. Onze makelaars luisteren écht en nemen de tijd om jouw wensen te begrijpen.


Bij Ditters sta je er niet alleen voor. We denken met je mee, begeleiden je in elke stap en zijn altijd bereikbaar voor vragen. Neem gerust contact met ons op – we helpen je graag verder!