Omschrijving

Wil je graag wonen in een instapklare, energiezuinige tussenwoning in een geliefde woonwijk? Dan is deze woning, gelegen aan een kindvriendelijk hofje met speeltuin, wellicht jullie nieuwe (t)huis!

De woning is voorzien van een woonkamer met open keuken, moderne keuken en – badkamer, maar liefst vijf slaapkamers en een aparte was-/bergruimte. De heerlijke achtertuin is gelegen op het westen, waar je na een werkdag nog heerlijk van het buitenleven kan genieten én met privacy. Met airconditioning, zonnepanelen en een thuisbatterij is de woning ook nog eens energiezuinig en ben je voorbereid op de toekomst. Kortom, een ideale gezinswoning die aan alle wensen voldoet.

Daarnaast is de ligging ook nog eens ideaal te noemen. Zo vind je op loopafstand diverse voorzieningen zoals scholen en winkels, maar ook het recreatiegebied de Rijkerswoerdse Plassen voor een lekkere wandeling. Voor de kinderen ligt er een leuke speeltuin in het hofje voor de deur. Op loopafstand, circa 300 meter, tref je de bushalte. En ook uitvalswegen zijn in korte tijd bereikbaar.

Alle feiten op een rij:
- Instapklare tussenwoning met 124m² woonoppervlakte
- Airconditioning te gebruiken voor zowel verkoeling als verwarming
- Met zonnepanelen en een thuisbatterij is de woning energiezuinig
- Moderne keuken, badkamer en toilet zijn allen vernieuwd in 2021
- De woning beschikt over maar liefst vijf slaapkamers en een aparte was-/ bergruimte
- Ligging aan een kindvriendelijk groen hofje met speeltuin
- Een heerlijke achtertuin gelegen op het westen met middag en avondzon

Indeling
Begane grond:
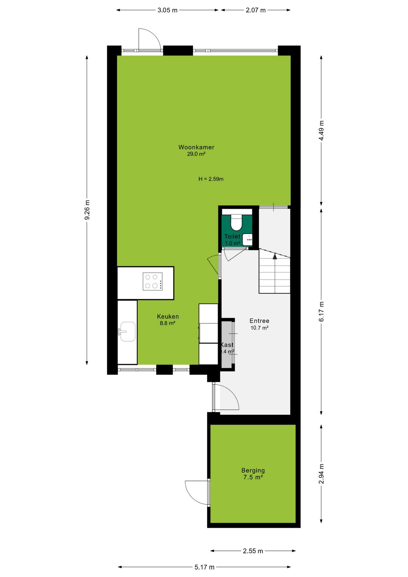
Bij binnenkomst in de ruime hal voel je direct de fijne afwerking. De hal is voorzien van een toiletruimte, trapopgang naar de verdieping en biedt toegang naar de woonkamer met open keuken. De tuingerichte woonkamer is sfeervol ingericht met een houten vloer en voldoende ruimte voor een gezellige zithoek, speelhoek voor de kinderen en het plaatsen van een 6-persoons eettafel. Vanuit de woonkamer is er toegang naar de achtertuin. Daarnaast is de praktische trapkast is ideaal voor extra voorraad en opbergruimte. De keuken, geplaatst in 2021, is opgesteld in een lichte kleuropstelling met een kastenwand en keukenblok met geïntegreerde kookplaat met afzuiging en diverse inbouwapparatuur zoals o.a. een koel-/vriescombinatie, combi-oven, vaatwasser en een kokend waterkraan. Door deze opstelling heb je tijdens het koken een open verbinding met de woonkamer, ideaal voor als er visite is om gezellig te tafelen, of om een oogje in het zeil te houden naar de kinderen. De kasten bieden voldoende opslagruimte voor het kookgerei.

Eerste verdieping:
De overloop geeft toegang tot drie slaapkamers, de badkamer en de trapopgang naar de tweede verdieping. Alle slaapkamers zijn licht en netjes afgewerkt met een houtlook laminaatvloer. De dakkapel aan de achterzijde zorgt voor nog meer ruimte in de slaapkamers en voorziet ze van een fijne lichtinval. De badkamer is opgesteld in een mooie kleurstelling, vernieuwd in 2021 en uitgerust met een inloopdouche, een wastafelmeubel, handdoekradiator en een tweede toilet. Het raam biedt een fijn daglicht en de mogelijkheid om de badkamer op een natuurlijke manier te ventileren.

Tweede verdieping:
Via de vaste trap bereik je de tweede verdieping met toegang naar twee slaapkamers en een aparte was-/bergruimte. Beiden slaap-/werkkamers zijn voorzien van een dakraam en geven de mogelijkheid om hier een werk-/ logeer of hobbykamer te realiseren. In de was-/ bergruimte tref je de witgoedaansluiting, C.V. opstelling en extra bergruimte. Ook de thuisbatterij tref je in het washok, ideaal dat hiermee de opgewekte stroom vanuit de zonnepanelen wordt opgeslagen.

Tuin:
Zowel de voortuin als achtertuin zijn fraai aangelegd met groene beplanting en een terras. Ook fijn is de privacy die je ervaart in de achtertuin, hier kan je echt genieten van het buitenleven! Daarnaast is de achtertuin onderhoudsvriendelijk aangelegd, gelegen op het westen en voorzien van een achterom. De berging aan de voorzijde van de woning is ideaal voor extra opslag en het stallen van de fiets.

Koopovereenkomst:
Bij de verkoop zal er een standaard NVM koopovereenkomst worden gehanteerd. Bij woningen welke ouder zijn dan 20 jaar, worden de volgende clausules opgenomen in de koopovereenkomst:
- Asbestclausule
- Ouderdomsclausule

Koop je de woning zonder voorbehoud van financiering? Dan zullen wij een termijn hanteren van 14 dagen na het opstellen van de koopovereenkomst voor het storten van de bankgarantie/waarborgsom.

Deze informatie is door ons met de nodige zorgvuldigheid samengesteld. Onzerzijds wordt echter geen enkele aansprakelijkheid aanvaard voor enige onvolledigheid, onjuistheid of anderszins, dan wel de gevolgen daarvan. Alle opgegeven maten en oppervlakten zijn indicatief.
+ toon meer
deze woning is Verkocht

Bleijenbeekhof 5 Arnhem

Bleijenbeekhof 5

6845 GV, Arnhem
Ditters open huis: 5 april 2025 10:00 - 12:00 uur
Landelijke Open Huizen Route NVM: 5 april 2025 11:00 uur - 15:00 uur
Vanaf€ 385.000 k.k.

Schakel een aankoopmakelaar in.

Snel handelen helpt je jouw droomhuis te bemachtigen. Zo vergroot je de kans dat je er op tijd bij bent.
Arnhem
verkocht

Of maak vrijblijvend een zoekprofiel aan.

Vergelijkbare woningen

Hypotheken

Onafhankelijk hypotheekadvies

  • Ligt jouw droomhuis binnen handbereik?
  • Wil je jouw huidige hypotheek verhogen?
  • Is er hypotheekruimte voor verduurzaming?

Blijf op de hoogte

Ontvang als eerste updates over nieuw aanbod en mis geen enkele kans om jouw droomwoning te vinden.

Gratis waardebepaling of verkoopgesprek

Met de vrijblijvende waardecheck weet je snel waar je aan toe bent. Onze makelaars kijken naar de lokale markt en vergelijkbare woningen in jouw buurt om een goede schatting te geven.

Realiseer al jouw woondromen met Ditters

Wij zijn een team van gedreven vastgoedexperts met een passie voor het maken van verbindingen – tussen kopers en verkopers, huurders en verhuurders. Met een frisse kijk op de makelaardij combineren we expertise met creativiteit. Onze makelaars luisteren écht en nemen de tijd om jouw wensen te begrijpen.


Bij Ditters sta je er niet alleen voor. We denken met je mee, begeleiden je in elke stap en zijn altijd bereikbaar voor vragen. Neem gerust contact met ons op – we helpen je graag verder!