Omschrijving

Gelegen in de geliefde wijk 'Paasberg' vind je deze karakteristieke hoekwoning. Deze woning biedt veel ruimte en comfort met een perceel van 180 m². Een van de voordelen is de vrijstaande garage, die extra opslagruimte biedt. Op de eerste verdieping van de woning zijn drie ruime slaapkamers en een moderne badkamer, die in 2022 is vernieuwd. De zolderverdieping voegt nog eens twee slaapkamers toe, wat perfect is voor een groter gezin of voor het creëren van werk- of hobbyruimtes. Daarnaast beschikt de woning over een handige kelder, ideaal voor extra opslag.

De woning is gelegen aan de Brederostraat, een straat met voornamelijk 20e-eeuwse huizen, wat bijdraagt aan de charmante uitstraling van de buurt. Op korte afstand bevinden zich de prachtige parken Angerenstein en Klarenbeek, ideaal voor ontspanning en recreatie. Voor de dagelijkse boodschappen ligt winkelcentrum Klarendal binnen handbereik.

Alle feiten op een rij:
* Karakteristieke hoekwoning met vijf slaapkamers;
* Gelegen in de geliefde wijk 'Paasberg';
* Moderne badkamer uit 2022;
* Vloerverwarming in de badkamer en toilet beneden;
* Airconditioning op de eerste verdieping aanwezig;
* Vrijstaande garage.

Indeling
Begane grond
Wanneer je via de hal binnenkomt, word je meteen verwelkomd door de lichte en ruime woonkamer, waar een sfeervolle houtkachel centraal staat. Deze ruimte straalt warmte en gezelligheid uit, perfect voor ontspanning. Als je verder loopt richting de keuken, kom je langs de eethoek, die uitnodigt tot gezellige maaltijden en lange gesprekken. De openslaande deuren naar de tuin zorgen voor een naadloze overgang tussen binnen en buiten, waardoor je op zonnige dagen eenvoudig de frisse lucht naar binnen kunt laten. De keuken, verbonden met de eethoek, biedt een praktische en aangename plek om te koken en te genieten van culinaire creaties. Het geheel vormt een harmonieuze leefruimte waar comfort en functionaliteit hand in hand gaan.

Eerste verdieping
Op de sfeervolle overloop, verlicht door prachtige glas-in-lood ramen die een uniek en kleurrijk accent geven, heb je toegang tot drie slaapkamers en de moderne badkamer. Deze badkamer is in 2022 volledig vernieuwd en biedt een frisse, eigentijdse uitstraling met alle gemakken van nu. Aan de voorzijde van de woning bevindt zich een ruime slaapkamer van 14 m², compleet met een praktische inbouwkast voor al je opbergbehoeften. Aan de achterzijde ligt een tweede slaapkamer van 12 m², eveneens voorzien van een handige inbouwkast. Daarnaast is er een derde slaapkamer die veelzijdig inzetbaar is en perfect kan dienen als thuiswerkruimte. Deze ruimtes zijn ontworpen met oog voor functionaliteit en comfort, waardoor ze ideaal zijn voor zowel rust als opslag. Tevens is er vloerverwarming aanwezig in de badkamer. Op deze verdieping is airconditioning aanwezig.

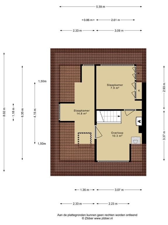
Tweede verdieping
Op de tweede verdieping vind je een overvloed aan ruimte, waar nog eens twee (slaap)kamers zijn gesitueerd. Deze verdieping wordt gekenmerkt door een uitstekende lichtinval, dankzij de dakkapellen die zowel aan de voorzijde, achterzijde als zijkant van het huis zijn geplaatst. Deze toevoeging zorgt niet alleen voor extra ruimte, maar laat ook het natuurlijke licht rijkelijk binnenstromen.. Deze veelzijdige verdieping biedt tal van mogelijkheden om aan je woonwensen te voldoen.

Tuin/garage
De tuin is gelegen op het noordwesten, wat betekent dat je kunt genieten van de middag- en avondzon, ideaal voor ontspannen buitenactiviteiten na een lange dag. Wanneer de hoge bomen in bloei staan, bieden ze volledige privacy, waardoor je in alle rust en beslotenheid van je buitenruimte kunt genieten. Deze natuurlijke afscherming maakt de tuin tot een perfecte plek om te ontspannen, te tuinieren of gezellig buiten te eten, zonder gestoord te worden door nieuwsgierige blikken.

Kenmerken:
Verwarming: C.V-combiketel (bouwjaar 2022)
Warm water: C.V-combiketel (bouwjaar 2022)
Bouwjaar: 1931
Tuinligging: noordwest
Isolatie: Dakisolatie en dubbel glas (m.u.v. schuifdeuren op de benedenverdieping (originele deuren))
Aanvaarding: in overleg

Koopovereenkomst:
Bij de verkoop zal er een standaard NVM koopovereenkomst worden gehanteerd. Bij woningen welke ouder zijn dan 20 jaar, worden de volgende clausules opgenomen in de koopovereenkomst:
- Asbestclausule;
- Ouderdomsclausule.

Koop je de woning zonder voorbehoud van financiering? Dan zullen wij een termijn hanteren van 14 dagen na het opstellen van de koopovereenkomst voor het storten van de bankgarantie/waarborgsom.

Deze informatie is door ons met de nodige zorgvuldigheid samengesteld. Onzerzijds wordt echter geen enkele aansprakelijkheid aanvaard voor enige onvolledigheid, onjuistheid of anderszins, dan wel de gevolgen daarvan. Alle opgegeven maten en oppervlakten zijn indicatief.
+ toon meer
deze woning is Verkocht

Brederostraat 18 Arnhem

Brederostraat 18

6824 PA, Arnhem
Ditters open huis: 5 april 2025 10:00 - 12:00 uur
Landelijke Open Huizen Route NVM: 5 april 2025 11:00 uur - 15:00 uur
Vanaf€ 639.500 k.k.

Schakel een aankoopmakelaar in.

Snel handelen helpt je jouw droomhuis te bemachtigen. Zo vergroot je de kans dat je er op tijd bij bent.
Arnhem
verkocht

Of maak vrijblijvend een zoekprofiel aan.

Vergelijkbare woningen

Hypotheken

Onafhankelijk hypotheekadvies

  • Ligt jouw droomhuis binnen handbereik?
  • Wil je jouw huidige hypotheek verhogen?
  • Is er hypotheekruimte voor verduurzaming?

Blijf op de hoogte

Ontvang als eerste updates over nieuw aanbod en mis geen enkele kans om jouw droomwoning te vinden.

Gratis waardebepaling of verkoopgesprek

Met de vrijblijvende waardecheck weet je snel waar je aan toe bent. Onze makelaars kijken naar de lokale markt en vergelijkbare woningen in jouw buurt om een goede schatting te geven.

Realiseer al jouw woondromen met Ditters

Wij zijn een team van gedreven vastgoedexperts met een passie voor het maken van verbindingen – tussen kopers en verkopers, huurders en verhuurders. Met een frisse kijk op de makelaardij combineren we expertise met creativiteit. Onze makelaars luisteren écht en nemen de tijd om jouw wensen te begrijpen.


Bij Ditters sta je er niet alleen voor. We denken met je mee, begeleiden je in elke stap en zijn altijd bereikbaar voor vragen. Neem gerust contact met ons op – we helpen je graag verder!