Omschrijving

Ben je op zoek naar een ruime gezinswoning met 120m² woonoppervlakte, 4 slaapkamers en een tuin op het westen? En het liefst gelegen in de geliefde wijk De Laar-West? Dan is deze eindwoning met 16 stuks zonnepanelen gelegen in een kindvriendelijke wijk wellicht jouw nieuwe droomwoning.

De lichte woonkamer, met aan de achterzijde een ruime leefkeuken voorzien van diverse ingebouwde apparatuur, zorgt ervoor dat het hele gezin hier volop kan genieten. Op de verdiepingen tref je in totaal vier slaapkamers en een badkamer uit 2020. Maak snel een afspraak om de woning te bezichtigen!

De woning is gelegen in de kindvriendelijke woonwijk De Laar-West (Arnhem-Zuid). Een centrale ligging ten opzichte van (internationale) scholen, kinderopvang, sportvoorzieningen, busverbindingen, dichtbij NS-station Arnhem-Zuid, het bruisende winkelcentrum en diverse uitvalswegen zoals de A325, A12, A15 en A50. Kortom, een ideale rustige ligging met alle voorzieningen, meerdere parken en wandelgebieden in de nabije omgeving.

Alle kenmerken op een rij:
- Lichte eindwoning in de geliefde woonwijk De Laar- West
- Moderne keuken uit 2017 met diverse inbouwapparatuur
- Voorzien van 4 slaapkamers
- Moderne badkamer uit 2020 met vloerverwarming
- Heerlijke tuin gelegen op het westen, met achterom en berging
- Op korte afstand van diverse winkels en voorzieningen

Indeling
Begane grond
Bij binnenkomst in de woning kom je eerst de meterkast, berging en het toilet tegen, waarna er toegang is tot de woonkamer. Deze ruime woonkamer ontvangt een prachtige lichtinval dankzij de grote ramen aan beide zijden van de woning en beschikt over een laminaatvloer. Aan de achterzijde bevindt zich een gezellige leef keuken van bijna 5 meter breed, compleet met ruimte voor een ruime eettafel waardoor de keuken het middelpunt van de woning vormt. De toegang naar de achtertuin maakt het mogelijk om in de zomer heerlijk buiten te dineren en te genieten van gezellige BBQ's. De keuken is uitgerust met een apparatenwand die is voorzien van een koelkast, vriezer en combimagnetron, en een rechte opstelling inclusief een 5-pits Belling fornuis, afzuigkap en vaatwasser.

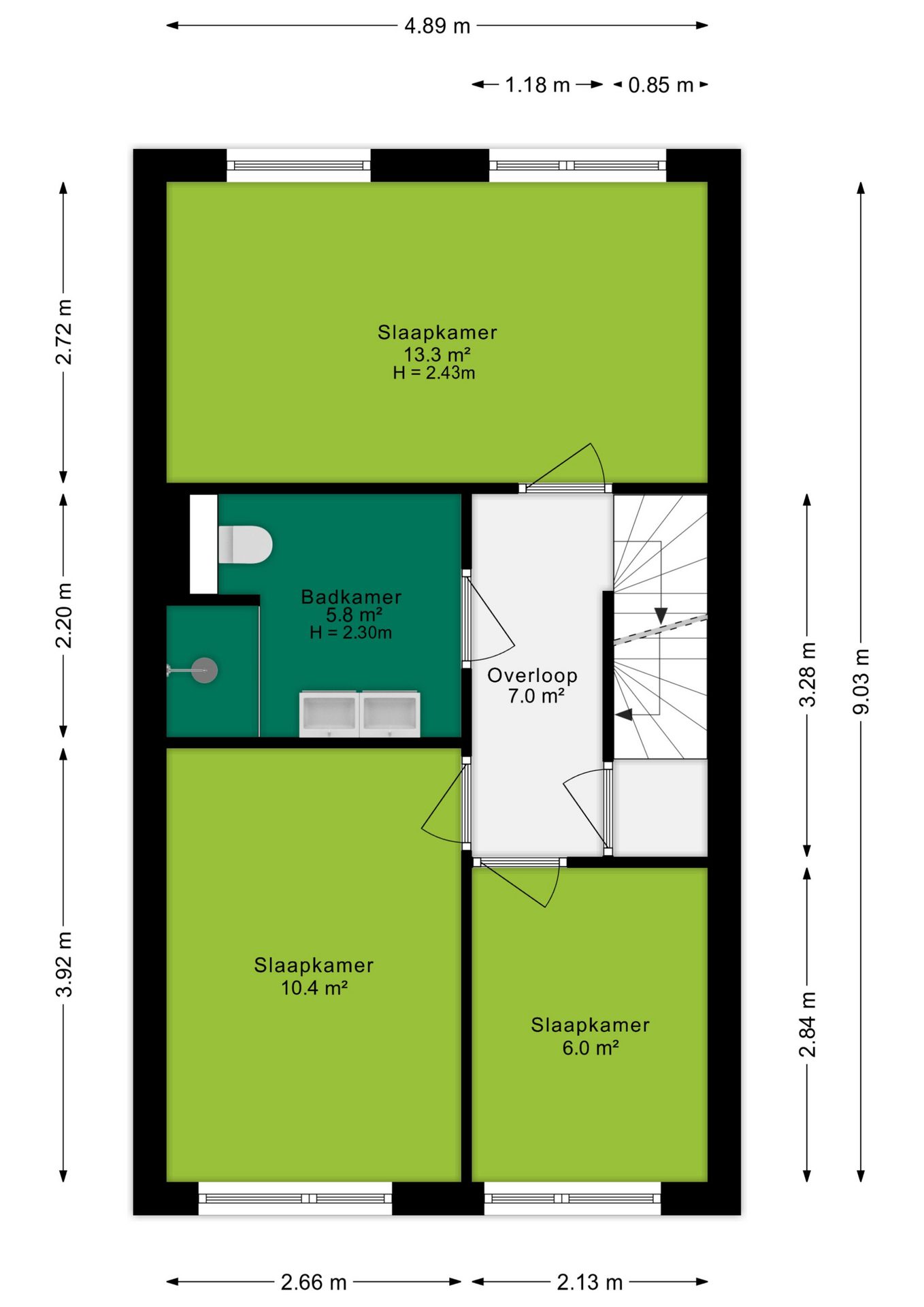
Eerste verdieping
De overloop geeft toegang tot drie slaapkamers en de badkamer. De slaapkamers hebben goede afmetingen van circa 13m², 10m² en 6m² en zijn eveneens voorzien van een laminaatvloer. De grootste slaapkamer is gelegen aan de achterzijde van de woning en over de gehele breedte van de woning. De moderne badkamer uit 2020 is voorzien van een douche, dubbel wastafelmeubel, toilet en comfortabele vloerverwarming.

Tweede verdieping
Via een vaste trap bereik je de volwaardig tweede verdieping. Deze verdieping is voorzien van een ruime slaapkamer van circa 17m 2 en een berging-/ wasruimte met witgoed aansluiting.

Buitenleven
De ruime tuin, gelegen op het westen, is voorzien van tegelwerk en een groene border. Dankzij de ligging en de privacy kun je hier na een lange dag werken optimaal ontspannen. Bovendien beschikt de tuin over een berging en is er een achterom aanwezig.

Kenmerken:
Verwarming: C.V.-combiketel (bouwjaar 2017)
Warm water: C.V.-combiketel (bouwjaar 2017)
Isolatie: dakisolatie, vloerisolatie, muurisolatie, en grotendeels dubbel glas
Bouwjaar: 1976
Tuinligging: westen
Aanvaarding: in overleg

Koopovereenkomst:
Bij de verkoop zal er een standaard NVM koopovereenkomst worden gehanteerd. Bij woningen welke ouder zijn dan 20 jaar, worden de volgende clausules opgenomen in de koopovereenkomst:
- Asbestclausule
- Ouderdomsclausule

Koopt u de woning zonder voorbehoud van financiering? Dan zullen wij een termijn hanteren van 14 dagen na het opstellen van de koopovereenkomst voor het storten van de bankgarantie/waarborgsom.

Deze informatie is door ons met de nodige zorgvuldigheid samengesteld. Onzerzijds wordt echter geen enkele aansprakelijkheid aanvaard voor enige onvolledigheid, onjuistheid of anderszins, dan wel de gevolgen daarvan. Alle opgegeven maten en oppervlakten zijn indicatief.
+ toon meer
deze woning is Verkocht

Helmondstraat 28 Arnhem

Helmondstraat 28

6843 SG, Arnhem
Ditters open huis: 5 april 2025 10:00 - 12:00 uur
Landelijke Open Huizen Route NVM: 5 april 2025 11:00 uur - 15:00 uur
Vanaf€ 395.000 k.k.

Schakel een aankoopmakelaar in.

Snel handelen helpt je jouw droomhuis te bemachtigen. Zo vergroot je de kans dat je er op tijd bij bent.
Arnhem
verkocht

Of maak vrijblijvend een zoekprofiel aan.

Vergelijkbare woningen

Hypotheken

Onafhankelijk hypotheekadvies

  • Ligt jouw droomhuis binnen handbereik?
  • Wil je jouw huidige hypotheek verhogen?
  • Is er hypotheekruimte voor verduurzaming?

Blijf op de hoogte

Ontvang als eerste updates over nieuw aanbod en mis geen enkele kans om jouw droomwoning te vinden.

Gratis waardebepaling of verkoopgesprek

Met de vrijblijvende waardecheck weet je snel waar je aan toe bent. Onze makelaars kijken naar de lokale markt en vergelijkbare woningen in jouw buurt om een goede schatting te geven.

Realiseer al jouw woondromen met Ditters

Wij zijn een team van gedreven vastgoedexperts met een passie voor het maken van verbindingen – tussen kopers en verkopers, huurders en verhuurders. Met een frisse kijk op de makelaardij combineren we expertise met creativiteit. Onze makelaars luisteren écht en nemen de tijd om jouw wensen te begrijpen.


Bij Ditters sta je er niet alleen voor. We denken met je mee, begeleiden je in elke stap en zijn altijd bereikbaar voor vragen. Neem gerust contact met ons op – we helpen je graag verder!