Omschrijving

Ontdek deze sfeervolle hoekwoning, gelegen in een groene wijk, met drie slaapkamers. Deze doorzonwoning beschikt over een zonnige tuin op het zuidoosten, waardoor de ruimtes volop natuurlijk licht ontvangen. Binnen tref je een moderne keuken, een luxe badkamer (2024) en een praktische bergvliering.

De woonkamer, met grote raampartijen, zorgt voor een lichte en uitnodigende sfeer. De drie slaapkamers hebben een oppervlakte van circa 12 m², 11 m² en 5 m². De huidige bewoners hebben het gasverbruik verminderd door een voorzetwand in de woonkamer te plaatsen, dakisolatie van binnenuit aan te brengen en middels airconditioning kan de woning zowel verwarmd als gekoeld worden. Bovendien geniet de woning van een kindvriendelijke en verkeersvrije omgeving. Op korte afstand tref je winkels, scholen, een speeltuintje en prachtige wandelgebieden, terwijl het openbaar vervoer gemakkelijk bereikbaar is. Ook de snelwegen A50 en A12 liggen nabij, waardoor de verbinding met de regio uitstekend is.

Wil je deze prettige woning zelf ervaren? Neem dan snel contact met ons op voor een bezichtiging!

Indeling
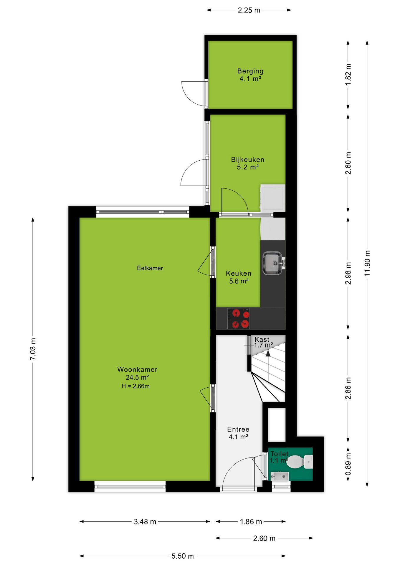
Begane grond
Via de entree met hal, toilet en trapkast bereik je de woonkamer. De woonkamer heeft een fijne afmeting van circa 24,5m² en is voorzien van een laminaatvloer en een fijn daglicht. In de woonkamer is een voorzetwand geplaatst en beschik je over airconditioning. De moderne keuken (2020) is opgesteld in een lichte kleurstelling en voorzien van diverse inbouwapparatuur, te weten: een kookplaat, afzuigkap en oven. In de praktische bijkeuken beschik je over witgoed aansluitingen. Het toilet in de hal is uitgerust met een Japans bidet, waardoor je extra comfort en hygiëne ervaart dankzij een verwarmde wc-bril, een sproeier met warm water, en een föhn functie zodat je na het gebruik van het met water gewassen gebied kunt drogen.

Eerste verdieping
De overloop geeft toegang tot de slaapkamers en de badkamer. De slaapkamers zijn circa 12m², 11m² en 5m² en zijn voorzien van een laminaatvloer en voldoende lichtinval. De badkamer (2024) is modern en beschikt over een inloopdouche en wastafelmeubel. Via de vlizotrap is er toegang naar de bergzolder, ideaal voor het opbergen van seizoensgebonden spullen.

Tuin
De achtertuin ligt op het zuidoosten en hier kun je heerlijk genieten van de zon en het buitenleven. Ook is er een achterom en (fietsen)berging.

Pluspunten van de woning:
+ Sfeervolle hoekwoning met drie slaapkamers
+ Luxe badkamer uit 2024
+ Doorzonwoning met fijn daglicht
+ Grotendeels onderhoudsvrije kunststofkozijnen
+ Moderne keuken uit 2020 voorzien van diverse inbouwapparatuur
+ Praktische bergvliering voor het opbergen van seizoensgebonden spullen
+ Met diverse maatregelen is het gasverbruik van de woning verminderd
+ Door de aanwezige airconditioning is de woning te koelen en te verwarmen
+ Gelegen nabij diverse voorzieningen en uitvalswegen

Kenmerken:
Verwarming: C.V.-combiketel (bouwjaar 2024)
Warm water: C.V.-combiketel (bouwjaar 2024)
Isolatie: dubbel glas, HR++ glas en dakisolatie
Bouwjaar: 1924
Aanvaarding: in overleg

Koopovereenkomst:
Bij de verkoop zal er een standaard NVM koopovereenkomst worden gehanteerd.

Koop je de woning zonder voorbehoud van financiering? Dan zullen wij een termijn hanteren van 14 dagen na het opstellen van de koopovereenkomst voor het storten van de bankgarantie/waarborgsom.

Deze informatie is door ons met de nodige zorgvuldigheid samengesteld. Onzerzijds wordt echter geen enkele aansprakelijkheid aanvaard voor enige onvolledigheid, onjuistheid of anderszins, dan wel de gevolgen daarvan. Alle opgegeven maten en oppervlakten zijn indicatief.
+ toon meer
deze woning is Verkocht

Hertenlaan 24 Arnhem

Hertenlaan 24

6823 LE, Arnhem
Ditters open huis: 5 april 2025 10:00 - 12:00 uur
Landelijke Open Huizen Route NVM: 5 april 2025 11:00 uur - 15:00 uur
Vanaf€ 325.000 k.k.

Schakel een aankoopmakelaar in.

Snel handelen helpt je jouw droomhuis te bemachtigen. Zo vergroot je de kans dat je er op tijd bij bent.
Arnhem
verkocht

Of maak vrijblijvend een zoekprofiel aan.

Vergelijkbare woningen

Hypotheken

Onafhankelijk hypotheekadvies

  • Ligt jouw droomhuis binnen handbereik?
  • Wil je jouw huidige hypotheek verhogen?
  • Is er hypotheekruimte voor verduurzaming?

Blijf op de hoogte

Ontvang als eerste updates over nieuw aanbod en mis geen enkele kans om jouw droomwoning te vinden.

Gratis waardebepaling of verkoopgesprek

Met de vrijblijvende waardecheck weet je snel waar je aan toe bent. Onze makelaars kijken naar de lokale markt en vergelijkbare woningen in jouw buurt om een goede schatting te geven.

Realiseer al jouw woondromen met Ditters

Wij zijn een team van gedreven vastgoedexperts met een passie voor het maken van verbindingen – tussen kopers en verkopers, huurders en verhuurders. Met een frisse kijk op de makelaardij combineren we expertise met creativiteit. Onze makelaars luisteren écht en nemen de tijd om jouw wensen te begrijpen.


Bij Ditters sta je er niet alleen voor. We denken met je mee, begeleiden je in elke stap en zijn altijd bereikbaar voor vragen. Neem gerust contact met ons op – we helpen je graag verder!