Omschrijving

Gelegen op een fijne locatie dichtbij de uiterwaarden, het groen en de Rijn bevindt zich deze modern afgewerkte en volledig geïsoleerde eengezinswoning gelegen op een perceel van 228m². De woning is voorzien van energielabel B, heeft een goede indeling, is voorzien van 4 ruime (slaap)kamers, dakkapel en een heerlijke tuin op het zuidwesten.

De volgende kenmerken van deze woning spreken je ook vast aan: een sfeervolle woonkamer met heerlijk veel lichtinval, keuken (2020) voorzien van diverse inbouwapparatuur, voorzien van 4 (slaap)kamers, moderne badkamer met ligbad, heerlijk aangebouwde veranda en een heerlijke achtertuin gelegen op het zuidwesten. Plan gauw een bezichtiging in, wij leiden je graag rond!

De woning ligt in de wijk Malburgen, de straten zijn overzichtelijk en merendeels éénrichtingsverkeer. Scholen zijn op loopafstand gelegen en alle voorzieningen qua winkelaanbod en openbaar vervoer liggen op steenworp afstand. Ook het bruisende centrum van Arnhem is binnen 15 minuten te bereiken op de fiets. De woning is gelegen aan een straatje met weinig verkeer met genoeg parkeerruimte in de nabije omgeving.

Indeling

Begane grond
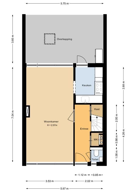
Via de entree met ruime hal, meterkast en modern zwevend toilet bereik je de woning. De sfeervolle woonkamer is voorzien van een laminaatvloer en heerlijk veel lichtinval door de grote raampartijen. Door de fijne afmeting is er ruimte genoeg voor een eettafel. De keuken (2020) is opgesteld in een hoekopstelling en voorzien van diverse inbouwapparatuur, te weten: een kookplaat (2024), afzuigkap, oven, koelkast en een vaatwasser.

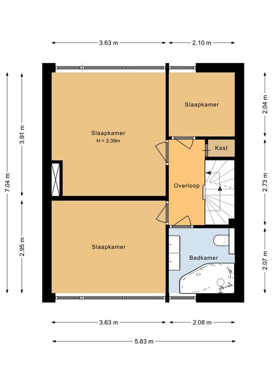
Eerste verdieping
De overloop geeft toegang tot 3 slaapkamers en de badkamer. De slaapkamers hebben een afmeting van ca. 14,2m², 10,7m² en 4,3m², zijn voorzien van een laminaatvloer en voldoende daglicht. De grootste slaapkamer is voorzien van airconditioning. De moderne badkamer (2021/2022) is opgesteld in een lichte kleurstelling en is voorzien van een ligbad/douche, wastafel met wastafelmeubel, toilet en een raam om te kunnen ventileren.

Tweede verdieping
Via een vaste trap bereik je de volwaardig 2e verdieping waar de 4e (slaap)kamer zich bevindt. Deze slaapkamer is goed bemeten en eveneens voorzien van een laminaatvloer en voldoende daglicht. Op de overloop bevindt zich de witgoed-aansluiting en de C.V.-ketel staat hier opgesteld. Tevens is er veel opbergruimte aanwezig.

Tuin/ berging
De heerlijke achtertuin is gelegen op het zonnige zuidwesten en hier kan je fijn van het zonnetje en het buitenleven genieten. Door de diepe afmeting kan je een leuk terrasje en/of speelplekje creëren. Aan de woning bevindt zich een gezellige veranda waar je heerlijk de zomeravonden kunt doorbrengen. Achterin de tuin is nog een handige berging aanwezig.

Kenmerken:
Verwarming: C.V. combiketel (bouwjaar 2013)
Warm water: C.V. combiketel (bouwjaar 2013)
Bouwjaar: 1966
Tuinligging: zuidwesten
Isolatie: volledig geïsoleerd
Aanvaarding: in overleg

Extra’s:
- Gelegen op fantastische locatie nabij de Uiterwaarden;
- Sfeervolle woonkamer met heerlijk veel lichtinval;
- Keuken (2020) voorzien van diverse inbouwapparatuur;
- Badkamer met ligbad (2021/2022);
- Voorzien van 4 (slaap)kamers;
- Mechanische ventilatie in 2024 vernieuwd;
- De kozijnen op de begane grond zijn in 2024 geschilderd, voorzien van HR++;
- Heerlijk diepe achtertuin gelegen op het zuidwesten;
- Op loopafstand van diverse voorzieningen (winkelcentrum, station en scholen).

Koopovereenkomst:
Bij de verkoop zal er een standaard NVM koopovereenkomst worden gehanteerd. Bij woningen welke ouder zijn dan 20 jaar, worden de volgende clausules opgenomen in de koopovereenkomst:
- Asbestclausule;
- Ouderdomsclausule.

Koopt u de woning zonder voorbehoud van financiering? Dan zullen wij een termijn hanteren van 14 dagen na het opstellen van de koopovereenkomst voor het storten van de bankgarantie/waarborgsom.

Deze informatie is door ons met de nodige zorgvuldigheid samengesteld. Onzerzijds wordt echter geen enkele aansprakelijkheid aanvaard voor enige onvolledigheid, onjuistheid of anderszins, dan wel de gevolgen daarvan. Alle opgegeven maten en oppervlakten zijn indicatief.
+ toon meer
deze woning is Verkocht

Kamillelaan 56 Arnhem

Kamillelaan 56

6833 GL, Arnhem
Ditters open huis: 5 april 2025 10:00 - 12:00 uur
Landelijke Open Huizen Route NVM: 5 april 2025 11:00 uur - 15:00 uur
Vanaf€ 300.000 k.k.

Schakel een aankoopmakelaar in.

Snel handelen helpt je jouw droomhuis te bemachtigen. Zo vergroot je de kans dat je er op tijd bij bent.
Arnhem
verkocht

Of maak vrijblijvend een zoekprofiel aan.

Vergelijkbare woningen

Hypotheken

Onafhankelijk hypotheekadvies

  • Ligt jouw droomhuis binnen handbereik?
  • Wil je jouw huidige hypotheek verhogen?
  • Is er hypotheekruimte voor verduurzaming?

Blijf op de hoogte

Ontvang als eerste updates over nieuw aanbod en mis geen enkele kans om jouw droomwoning te vinden.

Gratis waardebepaling of verkoopgesprek

Met de vrijblijvende waardecheck weet je snel waar je aan toe bent. Onze makelaars kijken naar de lokale markt en vergelijkbare woningen in jouw buurt om een goede schatting te geven.

Realiseer al jouw woondromen met Ditters

Wij zijn een team van gedreven vastgoedexperts met een passie voor het maken van verbindingen – tussen kopers en verkopers, huurders en verhuurders. Met een frisse kijk op de makelaardij combineren we expertise met creativiteit. Onze makelaars luisteren écht en nemen de tijd om jouw wensen te begrijpen.


Bij Ditters sta je er niet alleen voor. We denken met je mee, begeleiden je in elke stap en zijn altijd bereikbaar voor vragen. Neem gerust contact met ons op – we helpen je graag verder!