Omschrijving

Gelegen in de geliefde wijk Rijkerswoerd bevindt zich deze instapklare tussenwoning welke is voorzien van een brede dakkapel, 2 slaapkamers (4 mogelijk), een tuin op het zuidoosten, 10 zonnepanelen, volledige isolatie en energielabel A+!

De volgende kenmerken van deze woning spreken je vast aan: woonkamer met heerlijk veel lichtinval door de grote schuifpui, open keuken voorzien van diverse inbouwapparatuur en een gezellige bar, 2 royale slaapkamers, badkamer met toilet, ligbad/douche en een heerlijk tuin gelegen op het zuidoosten. Daarnaast beschik je in de tuin over een berging, overkapping en achterom.

De woning is gelegen aan de rand van Rijkerswoerd, een rustige en groene buurt die zeer geliefd is bij gezinnen. Diverse scholen en sportfaciliteiten in de directe omgeving, maar ook het overdekte winkelcentrum Kronenburg, de wijkwinkelcentra van Rijkerswoerd en Vredenburg zijn gelegen op loopafstand. De Huissensedijk en de parken in de omgeving nodigen uit voor een wandeling of een ontspannen middag in de natuur. Bovendien is de bereikbaarheid uitstekend: de bushalte bevindt zich op loopafstand en binnen 15 minuten ben je met de bus in het centrum van Arnhem. Ook met de fiets ben je zo - via de naastgelegen Huissensedijk - in de Arnhemse binnenstad. Uitvalswegen zoals de A325, A15 en de Pleijroute zijn eenvoudig en snel te bereiken. Kortom, een moderne en comfortabele woning op een uitstekende locatie. Plan snel een bezichtiging in!

Alle feiten op een rij:
- Instapklare onderhoudsarme tussenwoning met 105m² woonoppervlakte
- Woonkamer met heerlijk veel lichtinval door de grote schuifpui
- Open keuken met barretje en voorzien van diverse apparatuur
- Volledig betegelde moderne badkamer met ligbad
- 2 ruime slaapkamers (4 mogelijk)
- Volledig geïsoleerd en 10 zonnepanelen zorgen voor energielabel A+
- Gelegen in de geliefde kindvriendelijke wijk Rijkerswoerd
- Gelegen nabij diverse voorzieningen en uitvalswegen

Indeling
Begane grond
Via de entree met hal en toiletruimte bereik je de woonkamer met open keuken. De woonkamer heeft een oppervlakte van circa 25m² en is voorzien van veel lichtinval door de grote schuifpui. De royale schuifpui zorgt voor een naadloze overgang tussen binnen en buiten. De keuken bevindt zich aan de voorzijde van de woning en is opgesteld in een lichte kleurstelling. De keuken is voorzien van diverse inbouwapparatuur, te weten: een inductie kookplaat, afzuigkap, oven met stoomfunctie, koel-/vriescombinatie en een vaatwasser. En dankzij de sfeervolle bar blijf je altijd in contact met de chef in de keuken. Heel fijn is ook de mogelijkheid om extra voorraad, of spullen die je uit zicht wilt bewaren, kan opbergen in de ruime trapkast. De begane grond is voorzien van een laminaatvloer.

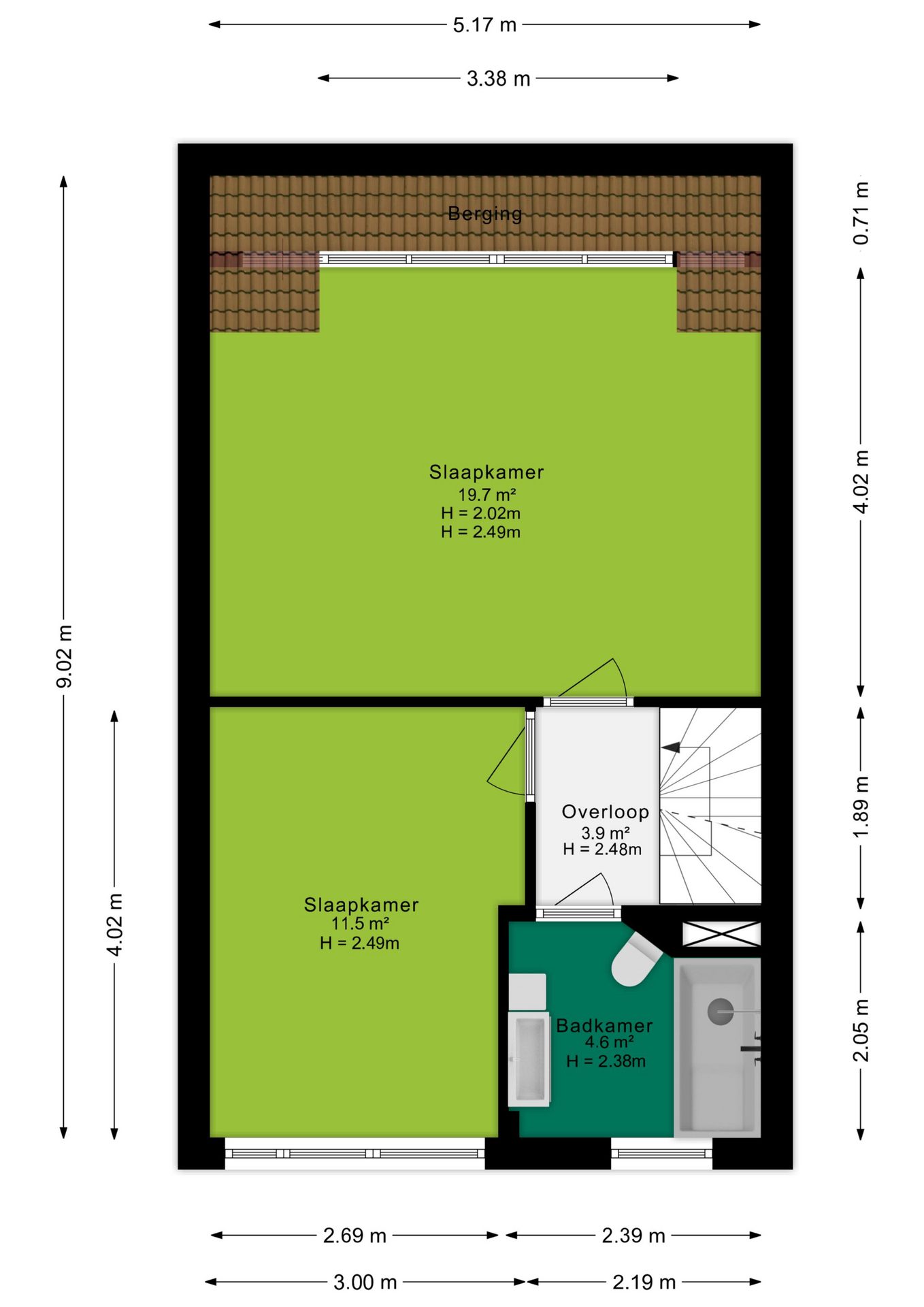
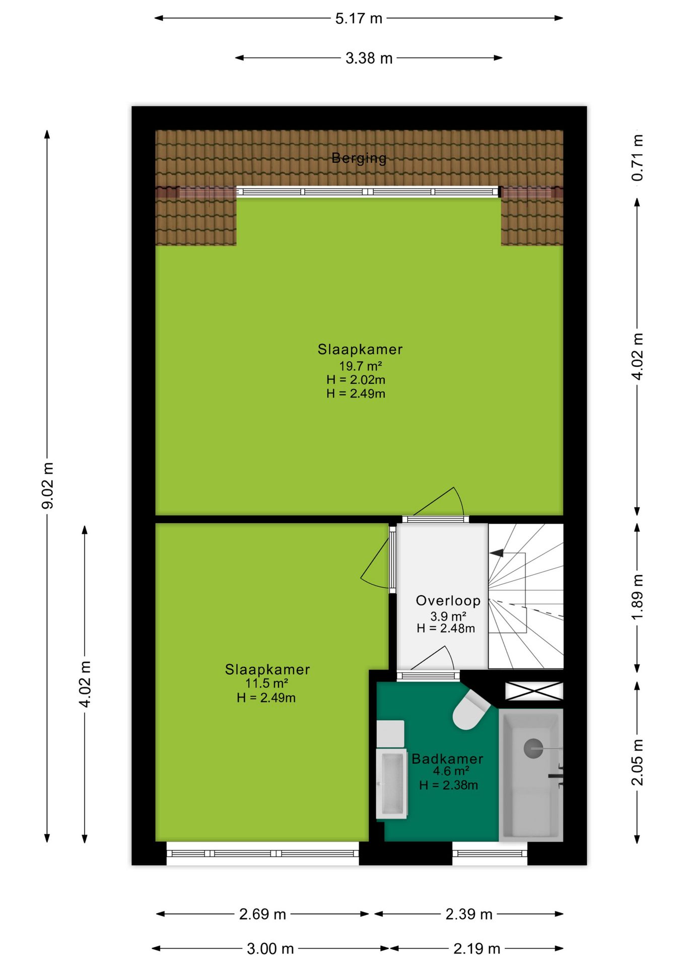
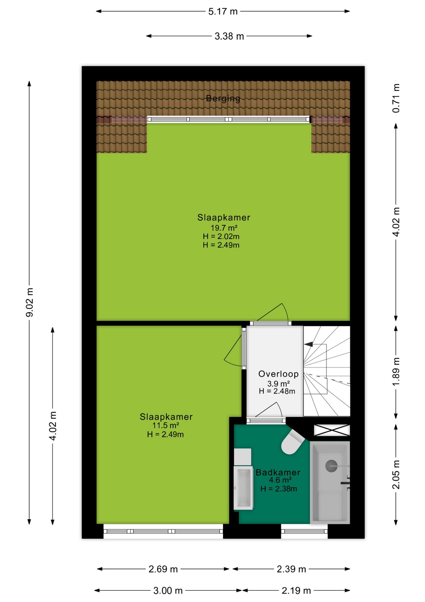
Eerste verdieping
Via de overloop bereik je de twee slaapkamers en de badkamer. De slaapkamers hebben royale afmetingen van 20m² en 12m² en zijn voorzien van een laminaatvloer De achterste, tevens grootste, slaapkamer is voorzien van een brede dakkapel. De volledig betegelde badkamer is opgesteld in een moderne kleurstelling en voorzien van een ligbad met douchefunctie, wastafelmeubel, toilet en handdoekradiator.

Tweede verdieping
Via een vaste trap bereik je de tweede verdieping. Deze - vrij in te delen - verdieping met 17m² herbergt een mogelijkheid tot slaapkamer, werkkamer en bergruimte. Tevens tref je hier de wasmachine aansluiting en C.V.-opstelling.

Tuin
De heerlijke tuin is gelegen op het zuidoosten en is voorzien van een terras en diverse beplanting. Hier kan je optimaal genieten van het buitenleven, het brede elektrisch bedienbare zonnescherm zorgt ervoor dat je op het terras ook in de schaduw kan genieten. Achterin is nog een praktische berging en overkapping aanwezig, handig voor het opslaan van je spullen of het stallen van je fiets. Ook is er een achterom aanwezig.

Kenmerken
Verwarming: C.V.-ketel (bouwjaar 2024)
Warm water: C.V.-ketel (bouwjaar 2024)
Bouwjaar: 1990
Isolatie: volledig geïsoleerd
Tuinligging: zuidoosten
Aanvaarding: in overleg

Koopovereenkomst:
Bij de verkoop zal er een standaard NVM koopovereenkomst worden gehanteerd. Bij woningen welke ouder zijn dan 20 jaar, worden de volgende clausules opgenomen in de koopovereenkomst:
- Asbestclausule;
- Ouderdomsclausule.

Koop je de woning zonder voorbehoud van financiering? Dan zullen wij een termijn hanteren van 14 dagen na het opstellen van de koopovereenkomst voor het storten van de bankgarantie/waarborgsom.

Deze informatie is door ons met de nodige zorgvuldigheid samengesteld. Onzerzijds wordt echter geen enkele aansprakelijkheid aanvaard voor enige onvolledigheid, onjuistheid of anderszins, dan wel de gevolgen daarvan. Alle opgegeven maten en oppervlakten zijn indicatief.
+ toon meer
deze woning is Verkocht

Martensbongerd 64 Arnhem

Martensbongerd 64

6836 EK, Arnhem
Ditters open huis: 5 april 2025 10:00 - 12:00 uur
Landelijke Open Huizen Route NVM: 5 april 2025 11:00 uur - 15:00 uur
Vanaf€ 389.500 k.k.

Schakel een aankoopmakelaar in.

Snel handelen helpt je jouw droomhuis te bemachtigen. Zo vergroot je de kans dat je er op tijd bij bent.
Arnhem
verkocht

Of maak vrijblijvend een zoekprofiel aan.

Vergelijkbare woningen

Hypotheken

Onafhankelijk hypotheekadvies

  • Ligt jouw droomhuis binnen handbereik?
  • Wil je jouw huidige hypotheek verhogen?
  • Is er hypotheekruimte voor verduurzaming?

Blijf op de hoogte

Ontvang als eerste updates over nieuw aanbod en mis geen enkele kans om jouw droomwoning te vinden.

Gratis waardebepaling of verkoopgesprek

Met de vrijblijvende waardecheck weet je snel waar je aan toe bent. Onze makelaars kijken naar de lokale markt en vergelijkbare woningen in jouw buurt om een goede schatting te geven.

Realiseer al jouw woondromen met Ditters

Wij zijn een team van gedreven vastgoedexperts met een passie voor het maken van verbindingen – tussen kopers en verkopers, huurders en verhuurders. Met een frisse kijk op de makelaardij combineren we expertise met creativiteit. Onze makelaars luisteren écht en nemen de tijd om jouw wensen te begrijpen.


Bij Ditters sta je er niet alleen voor. We denken met je mee, begeleiden je in elke stap en zijn altijd bereikbaar voor vragen. Neem gerust contact met ons op – we helpen je graag verder!