Omschrijving

Aan een prachtige straat met aan weerszijde kenmerkende karakteristieke gebouwen tref je deze compleet gerenoveerde bovenwoning met drie verdiepingen, bijzonder fraai afgewerkt met een balkon op het oosten en veel bergruimte. Het appartement beschikt over maar liefst 162m² woonoppervlakte en is voorzien van alle comfort met behoud van karakteristieke elementen. Hier is het feitelijk alleen nog maar je meubels uitzoeken en verhuizen!

De woning bevindt zich in Het Spijkerkwartier, een straat die uitstraalt dankzij haar historische allure. De meeste huizen in deze buurt ontstonden eind 19e eeuw in neorenaissancestijl, wat bijdraagt aan de rijke uitstraling van de straat. Het levendige centrum, vol met restaurants, theaters, winkels, boetiekjes en een bruisend nachtleven, ligt op slechts enkele minuten loopafstand via park Lauwersgracht en langs Musis. Ook de Rijnkade, de Uiterwaarden, het groengebied Meinerswijk en de bekende stadsparken Sonsbeek en Zijpendaal bevinden zich in de nabije omgeving. Bovendien zijn NS Station Arnhem Centraal en Velperpoort op loop- of fietsafstand, en met de auto rijd je zo de stad uit richting diverse uitvalswegen. De (snel)wegen A325, A15, A50 en de Pleijroute snel en makkelijk bereikbaar.

Dit is nu echt een woning met de 'wauw-factor': met trots laten we je de woning graag zien tijdens een bezichtiging!

Alle feiten op een rij:
- Onderdeel van statige straat met veel allure
- Maar liefst 162m² woonoppervlakte en 4 slaapkamers
- Uitstekende staat van onderhoud, volledig gerenoveerde complete bovenwoning
- Het appartement is op de eerste verdieping voorzien van een moderne visgraat vloer met donkere bies
- Grotendeels onderhoudsvrije kunststof kozijnen met HR++ glas
- Vloerverwarming en airconditioning op de eerste verdieping
- Betaald parkeren in de directe omgeving, parkeervergunning mogelijk
- Voorzieningen als restaurants, winkels, groen, scholen, kinderdagverblijven, theater en parken
- Nabij openbaar vervoer en uitvalswegen

Indeling:
Begane grond:
Een elegante karakteristieke trapentree biedt toegang naar de woning. Bij binnenkomst is er voldoende plaats voor het opbergen van je garderobe-items en geeft de trapopgang toegang naar de eerste verdieping.

Eerste verdieping:
Stap binnen in deze luxueuze en karaktervolle woonruimte. Vanaf de ruime overloop, met een trapopgang naar de eerste verdieping en een stijlvol ingericht toilet met urinoir, is er toegang tot de woonkamer. De eerste verdieping onthult een schitterend interieur met hoge plafonds die het subtiele licht benadrukken, waardoor een gevoel van ruimte en luxe ontstaat. De ruime leefruimte van circa 53m² biedt de perfecte setting om zowel een gezellige zithoek als een ruime eettafel te plaatsen. Hierbij valt direct de prachtige visgraatvloer met donkere bies op, die samen met de imposante hoge ramen een warme, uitnodigende atmosfeer schept. Via de brede schuifdeur is er toegang op het zonnige balkon van circa 10m², de ideale plek om te ontspannen met een kop koffie of thee terwijl je geniet van het buitenleven. Het culinaire hart van de verdieping wordt gevormd door de moderne keuken, compleet uitgerust met een inductiekookplaat, afzuigkap, combi-oven, vaatwasser en koel-vriescombinatie. Deze keuken nodigt uit tot het creëren van culinaire hoogtepunten, perfect voor onvergetelijke momenten met het gezin, vrienden of familie. Extra comfort wordt gewaarborgd door de aanwezigheid van vloerverwarming die in elk seizoen voor een behaaglijke temperatuur zorgt, en een moderne airconditioning die ook op warme dagen een optimale binnentemperatuur garandeert.

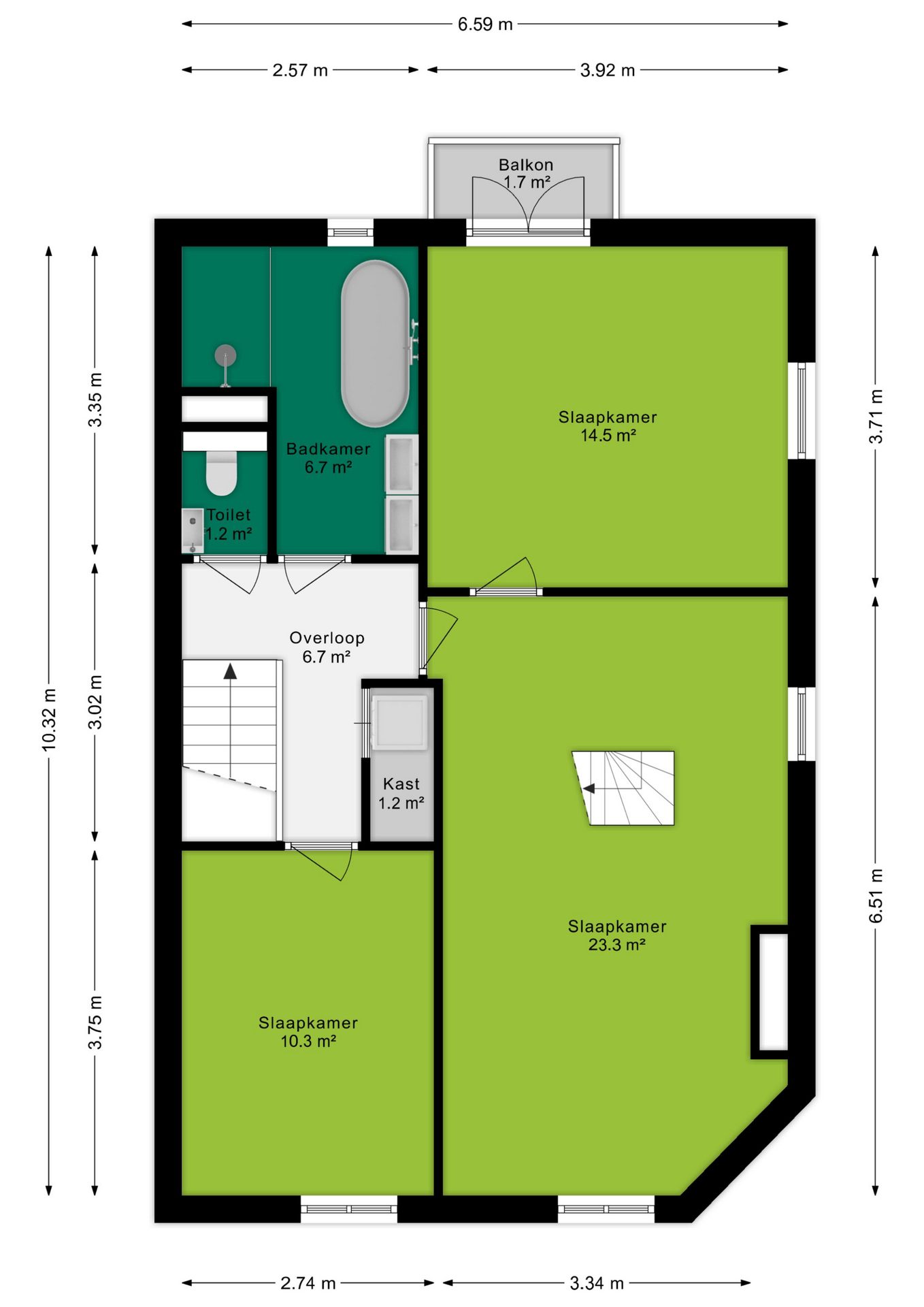
Tweede verdieping:
Op de overloop, waar zich een vaste kast met wasmachineaansluiting bevindt, vind je zowel de toegang tot de moderne badkamer als tot het separate toilet en de slaapkamers. De grootste slaapkamer van circa 23m², die momenteel als kinderkamer in gebruik is, biedt tal van mogelijkheden. Vanuit deze kamer leidt de toegang naar een andere slaapkamer aan de achterzijde en naar de trapopgang die je leidt naar de derde verdieping. Indien gewenst kan de 23m² slaapkamer opgesplitst worden, waardoor een extra hal met behoudt van daglicht ontstaat. Een perfecte hal die kan functioneren als ideale thuiswerkplek of als kastenkamer. De slaapkamer van circa 14,5m² met openslaande deuren naar het balkon, wordt gekenmerkt door een hoog plafond met zichtbare balken en een groot dakraam, dat zorgt voor een overvloed aan daglicht. Tevens is er airconditioning aanwezig in deze slaapkamer. De slaapkamer van circa 10,5m² is momenteel in gebruik als kastenkamer, maar ook uitermate geschikt als slaapkamer, werkkamer of hobbykamer. De badkamer is modern ingericht met marmerlook wandpanelen, een vrijstaand ligbad, een inloopdouche en een handdoekradiator. Bovendien beschikt de ruimte over een ruim wastafelmeubel met dubbele wastafels en een spiegel voorzien van LED-verlichting. Het toilet is in dezelfde stijl ingericht en bevindt zich apart.

Derde verdieping:
De overloop leidt naar twee ruime, multifunctionele vertrekken van circa 9m² en 8m². Dankzij de geplaatste dakramen in beide kamers stroomt er een fijn daglicht binnen. Deze kamers kunnen moeiteloos worden ingericht als slaapkamers, maar lenen zich ook uitstekend als hobbyruimte. Hiermee beschikt de woning over een overvloed aan leefruimte en is er volop ruimte om de inrichting volledig af te stemmen op jouw persoonlijke woonbehoeften.

Koopovereenkomst:
Bij de verkoop zal er een standaard NVM koopovereenkomst, met aanvullend een niet bewonersclausule, worden gehanteerd. Bij woningen welke ouder zijn dan 20 jaar, worden de volgende clausules opgenomen in de koopovereenkomst:
- Asbestclausule
- Ouderdomsclausule

Koop je de woning zonder voorbehoud van financiering? Dan zullen wij een termijn hanteren van 6 weken na het opstellen van de koopovereenkomst voor het storten van de bankgarantie/waarborgsom.

Deze informatie is door ons met de nodige zorgvuldigheid samengesteld. Onzerzijds wordt echter geen enkele aansprakelijkheid aanvaard voor enige onvolledigheid, onjuistheid of anderszins, dan wel de gevolgen daarvan. Alle opgegeven maten en oppervlakten zijn indicatief.
+ toon meer
deze woning is Verkocht

Rietgrachtstraat 35 Arnhem

Rietgrachtstraat 35

6828 KA, Arnhem
Ditters open huis: 5 april 2025 10:00 - 12:00 uur
Landelijke Open Huizen Route NVM: 5 april 2025 11:00 uur - 15:00 uur
Vanaf€ 619.500 k.k.

Schakel een aankoopmakelaar in.

Snel handelen helpt je jouw droomhuis te bemachtigen. Zo vergroot je de kans dat je er op tijd bij bent.
Arnhem
verkocht

Of maak vrijblijvend een zoekprofiel aan.

Vergelijkbare woningen

Hypotheken

Onafhankelijk hypotheekadvies

  • Ligt jouw droomhuis binnen handbereik?
  • Wil je jouw huidige hypotheek verhogen?
  • Is er hypotheekruimte voor verduurzaming?

Blijf op de hoogte

Ontvang als eerste updates over nieuw aanbod en mis geen enkele kans om jouw droomwoning te vinden.

Gratis waardebepaling of verkoopgesprek

Met de vrijblijvende waardecheck weet je snel waar je aan toe bent. Onze makelaars kijken naar de lokale markt en vergelijkbare woningen in jouw buurt om een goede schatting te geven.

Realiseer al jouw woondromen met Ditters

Wij zijn een team van gedreven vastgoedexperts met een passie voor het maken van verbindingen – tussen kopers en verkopers, huurders en verhuurders. Met een frisse kijk op de makelaardij combineren we expertise met creativiteit. Onze makelaars luisteren écht en nemen de tijd om jouw wensen te begrijpen.


Bij Ditters sta je er niet alleen voor. We denken met je mee, begeleiden je in elke stap en zijn altijd bereikbaar voor vragen. Neem gerust contact met ons op – we helpen je graag verder!