Omschrijving

Instapklaar, hier kun je direct wonen!

Laat deze lichte, moderne en uitnodigende geschakelde woning jouw nieuwe thuis zijn! Gelegen in de wijk Veldhuizen, biedt deze woning je een perfecte balans tussen privacy en gemak. Geniet in de woonkamer van natuurlijk licht in overvloed dankzij de serre.

Deze goed onderhouden woning telt vijf ruime slaapkamers waarvan elke kamer voldoende ruimte biedt voor rust en ontspanning. In de recent vernieuwde badkamer vind je een oase van comfort, uitgerust met alle voorzieningen voor je dagelijkse welzijn.
De vrijstaande garage in een naast gelegen garageblok biedt voldoende opslagruimte of ruimte om je auto te parkeren.
De woning is tevens perfect gesitueerd dicht bij het winkelcentrum Bellestein waar je terecht kunt voor de boodschappen. En naast de deur vind je ook het Proosdijpark en de kinderboerderij.

Alle feiten op een rij:
+ Woning met 5 (slaap)kamers;
+ Kunststof kozijnen;
+ Boeiborden vervangen;
+ Busch Jaeger schakelmateriaal;
+ Dak vernieuwd;
+ Voorgevel opnieuw gevoegd en geïmpregneerd;
+ Vernieuwde elektragroepen;
+ Recent schilderwerk (2024);
+ Nieuwe Itho ventilatie box met afstandsbediening;
+ Loodslabben vervangen;
+ Vaillant CV combiketel (2024);
+ Luxe vernieuwde toiletruimte en luxe vernieuwde badkamer;
+ Leiding van de verwarming zijn geïsoleerd;
+ Achtertuin op het oosten en voortuin op het westen (met berging);
+ Separate garage.

Indeling:
Begane grond:
Via de ruime hal loop je de verrassend lichte woonkamer in. Wat gelijk opvalt is dat er heerlijk veel lichtinval is.

Dankzij de serre, die naadloos aansluit op de woonruimte, wordt de eetkamer overspoeld met natuurlijk licht, waardoor elke maaltijd een zonnig moment wordt.
De lichte keuken in een praktische hoekopstelling is voorzien van diverse inbouwapparatuur zoals een oven, magnetron, inductieplaat, vaatwasser en een koelkast. Dit huis is ontworpen met oog voor licht en ruimte, waardoor elk moment in deze woning een genot is.

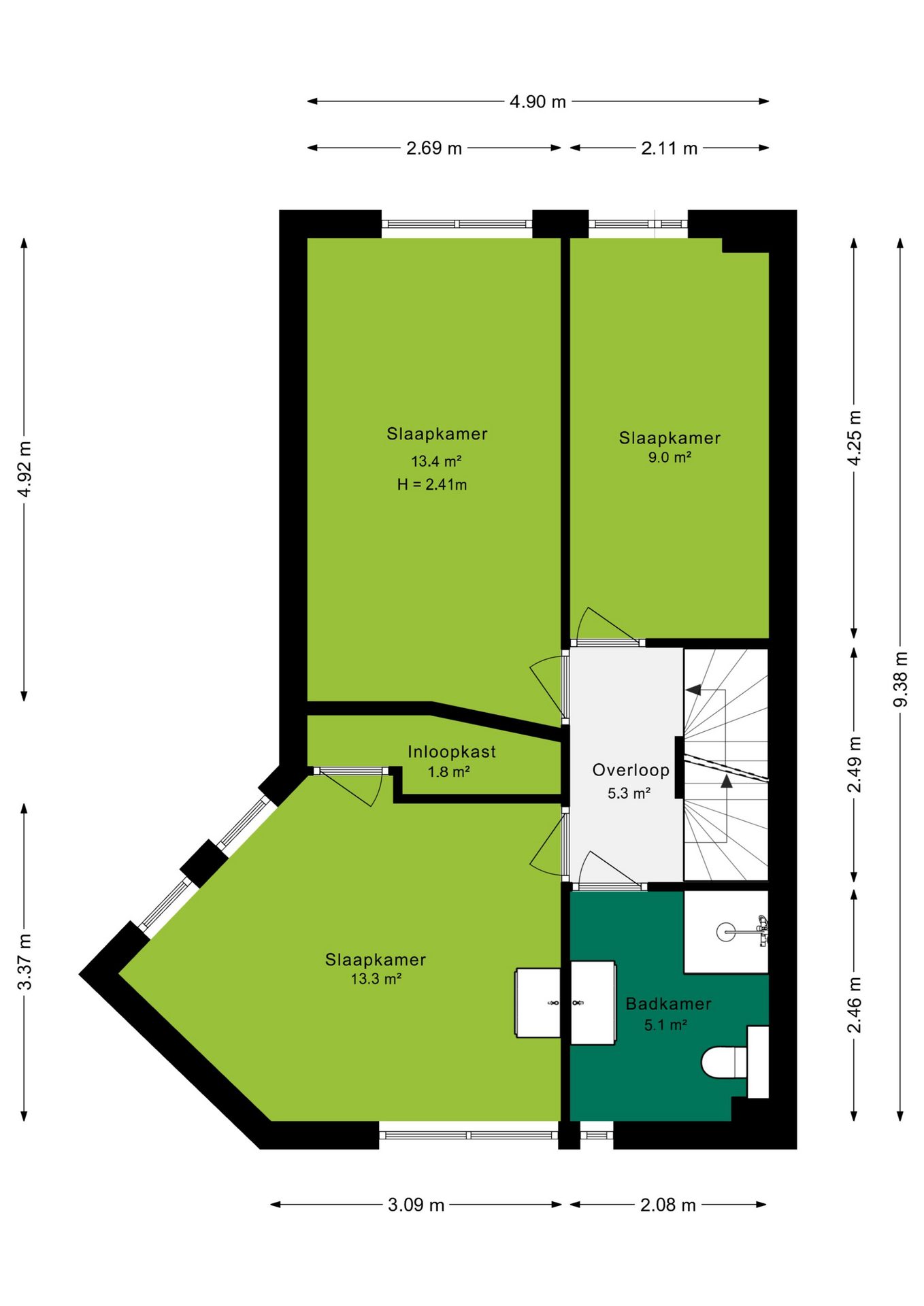
Eerste verdieping:
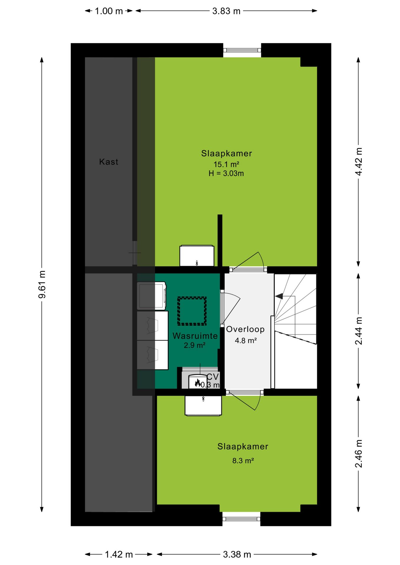
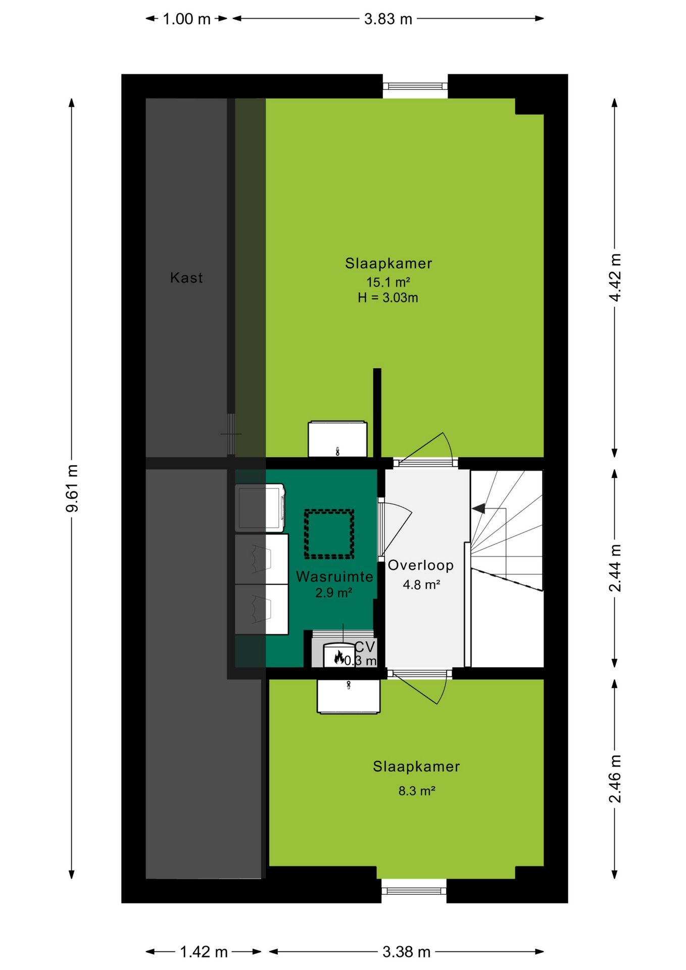
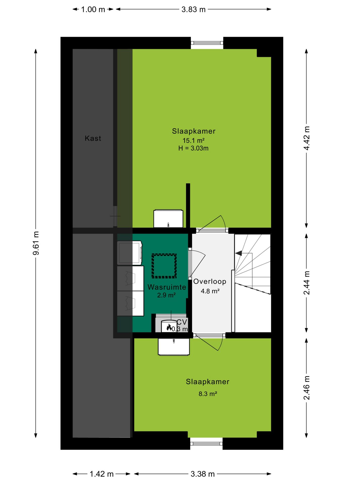
Via de vaste trap bereik je de eerste verdieping van dit huis en laat je verrassen door drie ruime (slaap)kamers.

In de slaapkamer aan de voorzijde wordt je verwelkomd door een wastafelmeubel en wat denk je van het luxe gemak van een inloopkast, perfect om al je kleding en accessoires in stijl te organiseren.

Ontdek daarnaast de recent vernieuwde badkamer met een designradiator, inloopdouche, ruim wastafelmeubel en het moderne toilet.
Hier is het telkens weer genieten van het comfort van je eigen huis!

Tweede verdieping:
Op de tweede verdieping vindt je nog eens twee veelzijdige (slaap)kamers.. Gemak dient de mens; in elk van deze kamers is een praktisch wastafelmeubel ingebouwd.
Maar dat is nog niet alles! Deze bovenste etage herbergt tevens een handige wasruimte. Hier kun je met gemak de was sorteren, behandelen en drogen. Deze efficiënte indeling schept orde in je huishouden en zorgt ervoor dat elk aspect van het dagelijks leven een eigen plekje heeft binnen deze woonruimte.

Exterieur
De woning is voorzien van zowel een voor- als achtertuin waar strak design en onderhoudsgemak samenkomen, dankzij de moderne antraciet tegels die beide tuinen sieren. De achtertuin, ideaal gelegen op het oosten, vangt de ochtendzon, terwijl de voortuin op het westen perfect is om van de middag- en avondzon te genieten. Beide buitenruimtes bieden privacy en zijn keurig omsloten door een stijlvolle erfafscheiding.

Voor extra gemak is er een vrijstaande garage in een nabijgelegen garageblok. Deze biedt niet alleen genoeg ruimte om je voertuig veilig te stallen, maar ook voldoende opslagplaats voor fietsen en gereedschap.

Afmetingen:
Woon- eetkamer. 41.5 m²
Keuken 9.8 m²
Slaapkamer 1 13.3m2
Inloopkast 1.8 m²
Slaapkamer 2 13.4 m²
Slaapkamer 3 9.0 m²
Badkamer 5.1 m²
Slaapkamer 4 15.1 m²
Slaapkamer 5 8.3 m²
Berging 8.9 m²
Garage 14.5 m²

Perceel oppervlakte 212 m²
Woonoppervlakte 145 m ²

Bijzonderheden:
Verwarming: Vaillant HR combiketel (2024)
Warmwater: Vaillant HR combiketel (2024)
Isolatie: Gehele woning v.v. dubbelglas en dakisolatie
Bouwjaar: 1978
Tuinligging: Oosten en westen
Aanvaarding: In overleg

Koopovereenkomst:
Bij de verkoop zal er een standaard NVM koopovereenkomst worden gehanteerd. Bij woningen welke ouder zijn dan 20 jaar, worden de volgende clausules opgenomen in de koopovereenkomst:
- Asbestclausule;
- Ouderdomsclausule.

Koop je de woning zonder voorbehoud van financiering? Dan zullen wij een termijn hanteren van 14 dagen na het opstellen van de koopovereenkomst voor het storten van de bankgarantie/waarborgsom.

Deze informatie is door ons met de nodige zorgvuldigheid samengesteld. Onzerzijds wordt echter geen enkele aansprakelijkheid aanvaard voor enige onvolledigheid, onjuistheid of anderszins, dan wel de gevolgen daarvan. Alle opgegeven maten en oppervlakten zijn indicatief.
+ toon meer
deze woning is Verkocht

Annadaal 77 Ede

Annadaal 77

6715 JC, Ede
Ditters open huis: 5 april 2025 10:00 - 12:00 uur
Landelijke Open Huizen Route NVM: 5 april 2025 11:00 uur - 15:00 uur
Vanaf€ 495.000 k.k.

Schakel een aankoopmakelaar in.

Snel handelen helpt je jouw droomhuis te bemachtigen. Zo vergroot je de kans dat je er op tijd bij bent.
Ede
verkocht

Of maak vrijblijvend een zoekprofiel aan.

Vergelijkbare woningen

Hypotheken

Onafhankelijk hypotheekadvies

  • Ligt jouw droomhuis binnen handbereik?
  • Wil je jouw huidige hypotheek verhogen?
  • Is er hypotheekruimte voor verduurzaming?

Blijf op de hoogte

Ontvang als eerste updates over nieuw aanbod en mis geen enkele kans om jouw droomwoning te vinden.

Gratis waardebepaling of verkoopgesprek

Met de vrijblijvende waardecheck weet je snel waar je aan toe bent. Onze makelaars kijken naar de lokale markt en vergelijkbare woningen in jouw buurt om een goede schatting te geven.

Realiseer al jouw woondromen met Ditters

Wij zijn een team van gedreven vastgoedexperts met een passie voor het maken van verbindingen – tussen kopers en verkopers, huurders en verhuurders. Met een frisse kijk op de makelaardij combineren we expertise met creativiteit. Onze makelaars luisteren écht en nemen de tijd om jouw wensen te begrijpen.


Bij Ditters sta je er niet alleen voor. We denken met je mee, begeleiden je in elke stap en zijn altijd bereikbaar voor vragen. Neem gerust contact met ons op – we helpen je graag verder!