Omschrijving

Wonen in De Dubbelhof – Ruimte (115m2), Comfort en Groen

Ben je op zoek naar een woning die de ruimte (115m2) en het comfort van een gezinswoning biedt, maar de voordelen heeft van een appartement? Maak kennis met deze prachtige maisonnettewoning aan De Dubbelhof 117 in Ede! Gelegen in een groene, kindvriendelijke wijk met uitstekende voorzieningen in de buurt, is dit appartement de perfecte keuze voor jonge stellen, gezinnen of iedereen die betaalbare ruimte en comfort zoekt.

Ligging en omgeving
De Dubbelhof bevindt zich aan de noordwestzijde van Ede, een rustige en groene omgeving waar je heerlijk kunt wonen. Vanuit de wijk sta je binnen een mum van tijd midden in de natuur, ideaal voor een wandeling of fietstocht. Daarnaast vind je in de directe omgeving speelvoorzieningen voor kinderen, diverse supermarkten, scholen en sportfaciliteiten. Ook de bereikbaarheid is uitstekend; met het openbaar vervoer of de auto ben je snel in het centrum van Ede en de omliggende steden.

Het appartementencomplex
Dit appartement maakt deel uit van een complex waarvan de woningen toekomstig worden verkocht. De Vereniging van Eigenaren (VvE) is onlangs opgericht en wordt professioneel beheerd. Het complex wordt nog voorzien van o.a. een frisse schilderbeurt waaronder de gemeenschappelijke ruimten zoals de entreehal en de trappenhuizen. Met een energielabel D, dubbele beglazing en een centrale blokverwarming woon je hier heerlijk comfortabel.

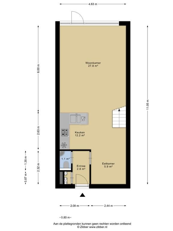
Indeling van de woning

Begane grond
Bij binnenkomst via de hal tref je een moderne toiletruimte met zwevend toilet en een stijlvolle combinatie van witte en antracietgrijze tegels. De ruime, tuingerichte woonkamer (28m2) met grote raampartijen is een heerlijke plek om te ontspannen. Vanuit de woonkamer is de tuin (ca. 40m2) te bereiken, welke op het zonnige westen gelegen is. Hier geniet je tot in de late uurtjes van de zon! De tuin is deels betegeld, heeft een achterom en biedt volop ruimte voor kinderen of een gezellige barbecue.

De halfopen keuken in hoekopstelling is strak afgewerkt en voorzien van alle gemakken: een vaatwasser, koelkast, vriezer, oven, afzuigkap en kookplaat. Naast de keuken is voldoende ruimte voor een eettafel, zodat je uitgebreid kunt tafelen met vrienden en familie.

Eerste verdieping
Via de trap in de woonkamer bereik je de bovenverdieping. Hier vind je maar liefst vier slaapkamers, met mooie oppervlaktes van 11,5 m², 11,4 m², 7,6 m² en 7,8 m². Twee slaapkamers bieden bovendien toegang tot een balkon: eentje op het oosten en de andere op het westen, zodat je altijd een plekje in de zon of schaduw hebt.

De overloop biedt extra mogelijkheden, zoals ruimte voor een kastenwand of thuiswerkplek. De badkamer is volledig licht betegeld en voorzien van een luxe antracietgrijze tegelvloer. Met een inloopdouche, tweede toilet en wastafel is dit een moderne, praktische ruimte. Separaat is er een wasmachineruimte, ideaal om al je witgoed netjes uit het zicht te plaatsen.

Vanuit de woonkamer is het balkon te bereiken, welke op het zonnige westen gelegen is.

Ook hoort er bij dit leuke appartement een eigen tuin. Hier geniet je tot in de late uurtjes van de zon! De tuin is deels betegeld, heeft een achterom en biedt volop ruimte voor kinderen of een gezellige barbecue.

Extra’s
Het appartement beschikt over een eigen berging van 8 m², perfect voor het stallen van fietsen en andere spullen. Dankzij de vernieuwde laminaatvloer en frisse afwerking kun je er direct in!

Waarom De Dubbelhof 117?
Dit appartement biedt het beste van twee werelden: de ruimte van een gezinswoning (ruim 115 m² woonoppervlak), inclusief een grote tuin en vier slaapkamers, gecombineerd met de voordelen van een appartement. Met energielabel C, een centrale ligging en alle voorzieningen binnen handbereik is dit dé plek waar je jouw woondromen waar kan maken.

Wees er snel bij, want dit is een populair project. Plan vandaag nog een bezichtiging en ontdek waarom De Dubbelhof 117 jouw ideale nieuwe thuis is!

Voorschot stookkosten: € 205 per maand
Voorschot water: € 12,50 per maand
Servicekosten VvE ca.: € 210 per maand
+ toon meer
deze woning is Verkocht

Dubbelhof 117 Ede

Dubbelhof 117

6715 EJ, Ede
Ditters open huis: 5 april 2025 10:00 - 12:00 uur
Landelijke Open Huizen Route NVM: 5 april 2025 11:00 uur - 15:00 uur
Vanaf€ 365.000 k.k.

Schakel een aankoopmakelaar in.

Snel handelen helpt je jouw droomhuis te bemachtigen. Zo vergroot je de kans dat je er op tijd bij bent.
Ede
verkocht

Of maak vrijblijvend een zoekprofiel aan.

Vergelijkbare woningen

Hypotheken

Onafhankelijk hypotheekadvies

  • Ligt jouw droomhuis binnen handbereik?
  • Wil je jouw huidige hypotheek verhogen?
  • Is er hypotheekruimte voor verduurzaming?

Blijf op de hoogte

Ontvang als eerste updates over nieuw aanbod en mis geen enkele kans om jouw droomwoning te vinden.

Gratis waardebepaling of verkoopgesprek

Met de vrijblijvende waardecheck weet je snel waar je aan toe bent. Onze makelaars kijken naar de lokale markt en vergelijkbare woningen in jouw buurt om een goede schatting te geven.

Realiseer al jouw woondromen met Ditters

Wij zijn een team van gedreven vastgoedexperts met een passie voor het maken van verbindingen – tussen kopers en verkopers, huurders en verhuurders. Met een frisse kijk op de makelaardij combineren we expertise met creativiteit. Onze makelaars luisteren écht en nemen de tijd om jouw wensen te begrijpen.


Bij Ditters sta je er niet alleen voor. We denken met je mee, begeleiden je in elke stap en zijn altijd bereikbaar voor vragen. Neem gerust contact met ons op – we helpen je graag verder!