Omschrijving

Royale en sfeervolle eengezinswoning met luxe afwerking, gelegen aan een rustig woonerf!

Deze ruime, geschakelde woning met carport en inpandige berging biedt volop comfort. Een groot pluspunt is de privéparkeerplaats direct voor de deur!

Binnen tref je bijzonder royale leefruimtes aan, waaronder een uitgebouwde woonkamer (vloerverwarming) met openslaande deuren naar de achtertuin. De ruime woonkeuken biedt volop plek voor een gezellige eethoek. Dankzij de afmetingen van de woonkamer zijn er diverse indelingsmogelijkheden.

De achterzijde van de woning is uitgebouwd en grenst aan een tuin op het oosten, ideaal voor ochtendzon. De ligging aan de Hoflaan is zeer gunstig: nabij scholen, een speeltuin, uitvalswegen zoals de A12 en A30, en op loopafstand van winkelcentrum 'Bellestein'.

Kortom, een ideale locatie voor gezinnen!

Pluspunten
+ Royale leefruimtes en uitgebouwde woonkamer met vloerverwarming;
+ Vloerverwarming begane grond;
+ Eigen parkeergelegenheid voor de woning en carport;
+ Tuingerichte uitgebouwde woonkamer met openslaande deuren;
+ Vloerverwarming in de woonkamer met daarop een PVC vloer gelegd in visgraat motief;
+ Gezellige eetkeuken;
+ Ruime berging / bijkeuken;
+ Airco aanwezig;
+ Bovenverdieping voorzien van kunststof kozijnen;
+ In 2022 is de voorzijde van de woning gereinigd, hersteld en geïmpregneerd;
+ Autoluwe straat, met onder andere veel speelgelenheden voor kinderen.

Indeling
Begane grond
Via de carport en de beschutte binnenplaats bereik je de entree van de woning. In de hal is ruimte voor een garderobe, tref je de vernieuwde meterkast (2023), een moderne toiletruimte met hangend toilet en de trapopgang naar de eerste verdieping.

De royale en lichte woonkamer is toegankelijk via een stijlvolle stalen taatsdeur. De ruimte is afgewerkt met een PVC-vloer met vloerverwarming en strak gestucte wanden. In de uitbouw aan de achterzijde zorgen sfeervolle inbouwspots en openslaande deuren naar de tuin voor een prettige ambiance.

De halfopen keuken is uitgevoerd in een lichte kleurstelling met een donker werkblad en voorzien van diverse inbouwapparatuur, waaronder een 4-pits kookplaat, afzuigkap, oven en vaatwasser. Vanuit de keuken is er directe toegang tot de inpandige berging, ideaal voor extra opslagruimte.

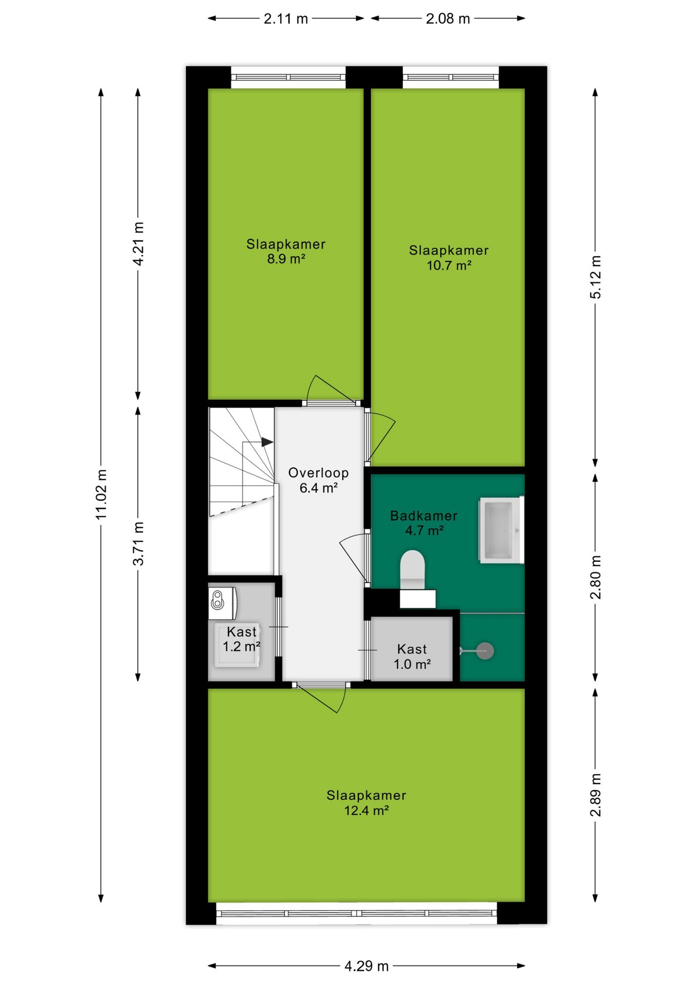
Eerste verdieping
De overloop biedt toegang tot drie slaapkamers, de badkamer, een kast met aansluitingen voor wasmachine en droger, en een aparte kast met de C.V.-installatie (Bosch 30 HRC uit 2007). De ouderslaapkamer bevindt zich aan de voorzijde en beslaat de volledige breedte van de woning. Aan de achterzijde zijn nog twee slaapkamers gesitueerd.

De volledig betegelde badkamer is uitgerust met een douchecabine, een vaste wastafel en een hangend toilet.

De wanden zijn zeer strak afgewerkt. Dit is onder andere gerealiseerd door het toepassen van gipsplaten.

Buitenruimte
De achterzijde van de woning is uitgebouwd en grenst aan een tuin op het oosten met gezellige veranda. Er is een mogelijkheid om de woning via een achterom te bereiken (deze is niet vastgelegd middels een erfdienstbaarheid). Aan de voorzijde van de woning is een royale carport aanwezig. Hier parkeer je op eigen terrein je auto en is er ruimte voor bijvoorbeeld een bakfiets. Het dak van de carport lekt bij regen en dient hersteld of vervangen te worden.

Bijzonderheden
Verwarming C.V.-ketel Bosch 30 HRC (2007) en vloerverwarming (2023)
Airco (2023)
Warm water C.V.-ketel Bosch 30 HRC (2007)
Isolatie Gedeeltelijk geïsoleerd
Bouwjaar 1973
Tuinligging Oosten
Aanvaarding In overleg

Koopovereenkomst:
Bij de verkoop zal er een standaard NVM koopovereenkomst worden gehanteerd. Bij woningen welke ouder zijn dan 20 jaar, worden de volgende clausules opgenomen in de koopovereenkomst:
Asbestclausule;
Ouderdomsclausule.

Koop je de woning zonder voorbehoud van financiering? Dan zullen wij een termijn hanteren van 6 weken na het opstellen van de koopovereenkomst voor het storten van de bankgarantie/waarborgsom. Deze informatie is door ons met de nodige zorgvuldigheid samengesteld. Onzerzijds wordt echter geen enkele aansprakelijkheid aanvaard voor enige onvolledigheid, onjuistheid of anderszins, dan wel de gevolgen daarvan. Alle opgegeven maten en oppervlakten zijn indicatief.
+ toon meer
deze woning is Verkocht

Hoflaan 32 Ede

Hoflaan 32

6715 AJ, Ede
Ditters open huis: 5 april 2025 10:00 - 12:00 uur
Landelijke Open Huizen Route NVM: 5 april 2025 11:00 uur - 15:00 uur
Vanaf€ 395.000 k.k.

Schakel een aankoopmakelaar in.

Snel handelen helpt je jouw droomhuis te bemachtigen. Zo vergroot je de kans dat je er op tijd bij bent.
Ede
verkocht

Of maak vrijblijvend een zoekprofiel aan.

Vergelijkbare woningen

Hypotheken

Onafhankelijk hypotheekadvies

  • Ligt jouw droomhuis binnen handbereik?
  • Wil je jouw huidige hypotheek verhogen?
  • Is er hypotheekruimte voor verduurzaming?

Blijf op de hoogte

Ontvang als eerste updates over nieuw aanbod en mis geen enkele kans om jouw droomwoning te vinden.

Gratis waardebepaling of verkoopgesprek

Met de vrijblijvende waardecheck weet je snel waar je aan toe bent. Onze makelaars kijken naar de lokale markt en vergelijkbare woningen in jouw buurt om een goede schatting te geven.

Realiseer al jouw woondromen met Ditters

Wij zijn een team van gedreven vastgoedexperts met een passie voor het maken van verbindingen – tussen kopers en verkopers, huurders en verhuurders. Met een frisse kijk op de makelaardij combineren we expertise met creativiteit. Onze makelaars luisteren écht en nemen de tijd om jouw wensen te begrijpen.


Bij Ditters sta je er niet alleen voor. We denken met je mee, begeleiden je in elke stap en zijn altijd bereikbaar voor vragen. Neem gerust contact met ons op – we helpen je graag verder!