Omschrijving

Duurzame hoekwoning met ruimte en modern comfort!

Op zoek naar de perfecte woning die ruimte, comfort en duurzaamheid combineert? Deze royale hoekwoning in een gezellige wijk heeft het allemaal! Met parkeergelegenheid voor twee auto's op eigen terrein, hoef je nooit meer te zoeken naar een plekje. De woning beschikt over vier ruime slaapkamers. Daarnaast is er een vijfde kamer op de begane grond: ideaal voor een thuiskantoor of hobbyruimte.

Met 17 zonnepanelen en een energielabel A ben je helemaal klaar voor een duurzame toekomst. Het groene dak op het platte dak zorgt niet alleen voor extra isolatie, maar ook voor een prachtige uitstraling. Dankzij de vele ramen is er veel natuurlijke daglicht in het huis, waardoor elke kamer warm en ruim aanvoelt. Mis deze kans niet om jouw droomhuis te bemachtigen!

De woning is gelegen in een geliefd gedeelte van de woonwijk ‘Maandereng’. In de nabije omgeving vind je diverse voorzieningen die het dagelijks leven vergemakkelijken. Zo is er het winkelcentrum ‘De Stadspoort’, waar je een breed scala aan winkels vindt, van supermarkten tot speciaalzaken. Dit maakt het gemakkelijk om boodschappen te doen of even gezellig te winkelen.

Voor gezinnen met kinderen zijn er meerdere scholen in de buurt, wat zorgt voor een korte en veilige route naar school. Daarnaast zijn er speelplekken en parken waar kinderen veilig kunnen spelen en waar je kunt genieten van een wandeling of een picknick. Het ziekenhuis ‘De Gelderse Vallei’ ligt ook in de nabijheid.
Bovendien zijn er diverse sportfaciliteiten in de buurt, zoals sportvelden en een zwembad, waardoor je gemakkelijk een actieve levensstijl kunt onderhouden.

Met goede uitvalswegen in de buurt, zoals de A12 en de A30, is de bereikbaarheid van de woning uitstekend. Dit maakt het ideaal voor forenzen of voor uitstapjes naar nabijgelegen steden. Het intercity station Ede-Wageningen is binnen 5 minuten met de fiets te bereiken.
Kortom, de Jan Lievensstraat 36 biedt niet alleen een comfortabele woning, maar ook een omgeving die van alle gemakken is voorzien.

Enkele pluspunten van de woning:
+ Laadpaal aan voorzijde oprit;
+ Zeventien zonnepanelen aanwezig (390Wp);
+ Energielabel A
+ Veel lichtinval
+ Royale woonkamer met aparte eetkamer;
+ Vier slaapkamers;
+ Zonnescherm vervangen in 2023;
+ Groen dak op de uitbouw (2022)
+ Zeer kindvriendelijke wijk met veel dagelijkse voorzieningen in de directe omgeving.

Indeling
Begane grond
Bij binnenkomst betreed je de entree, waar zich de meterkast, een toilet met fonteintje en de trap naar de eerste verdieping bevinden. Vanuit hier stap je de lichte woonkamer binnen, die dankzij de openslaande deuren aan de achterzijde een aangename sfeer heeft en een oppervlakte van ongeveer 23 m² biedt.

De keuken, die je vanuit de woonkamer bereikt, is uitgevoerd in een lichte kleurstelling met een stijlvol donker werkblad. Deze is uitgerust met moderne gemakken, waaronder een vierpits gasfornuis, afzuigkap, koelkast, diepvries (2021) combioven (2023) en vaatwasser. Daarnaast is er voldoende ruimte voor een eettafel, waar je kunt genieten van het uitzicht op de straatzijde.

Aansluitend aan de woonkamer bevindt zich de eetkamer. Hier kun je tijdens het dineren genieten van het uitzicht op de achtertuin. Vanuit de eetkamer is er ook toegang tot het kantoor, dat aan de voorzijde van de woning gelegen is.

Eerste verdieping
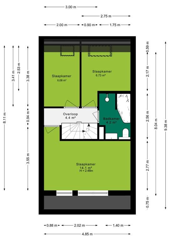
Op de overloop vind je toegang tot twee ruime slaapkamers, die flexibel in te richten zijn als kinder-, logeer- of studeerkamers. Beide kamers bieden voldoende ruimte voor een bed, kledingkast en eventueel een bureau, waardoor ze ideaal zijn voor opgroeiende kinderen of gasten.
Daarnaast is er een derde royale ouderslaapkamer, die extra comfort biedt met voldoende ruimte voor een groot bed en een kledingkast.

De badkamer op deze verdieping is uitgevoerd in een lichte kleurstelling. De badkamer is voorzien van een moderne douche, een comfortabel ligbad voor ontspannen momenten, een wastafel met opbergruimte en een toilet. Deze goed uitgeruste badkamer biedt alles wat je nodig hebt voor je dagelijkse routine en momenten van ontspanning.

Tweede verdieping
Op de overloop vind je toegang tot handige bergruimte achter de schuine kanten, ideaal voor het opbergen van seizoensspullen of andere items. Er is een vierde slaapkamer, die perfect kan dienen als extra slaapruimte, hobbykamer of thuiskantoor. Daarnaast is er een aparte berging waar de cv-installatie en de aansluiting voor de wasmachine zich bevinden.

Tuin
Vanuit de woonkamer en via een pad aan de zijkant van de woning stap je zo de tuin in, die op het zuidwesten is gelegen. Dit zorgt ervoor dat je volop kunt genieten van de zon in de middag en avond. in 2023 is er een nieuw zonnescherm geplaatst, waardoor je ook, indien gewenst, in de schaduw kunt zitten. De tuin is verzorgd aangelegd, met een mooi grasveld aan de achterkant. Daar vind je ook een compacte berging.

Perceeloppervlakte: 237 m²
Inhoud woning: 452 m³
Woonoppervlakte: 123 m²

Bijzonderheden
Verwarming: CV ketel, Remeha Avanta, warmte terugwininstallatie;
Warm water: CV ketel, Remeha Avanta;
Isolatie: Dak,- muur-, vloerisolatie, HR-glas;
Tuinligging: Zuidwesten;
Aanvaarding: In overleg.

Koopovereenkomst:
Bij de verkoop zal er een standaard NVM koopovereenkomst worden gehanteerd. Bij woningen welke ouder zijn dan 20 jaar, worden de volgende clausules opgenomen in de koopovereenkomst:
- Asbestclausule;
- Ouderdomsclausule.

Koop je de woning zonder voorbehoud van financiering? Dan zullen wij een termijn hanteren van 14 dagen na het opstellen van de koopovereenkomst voor het storten van de bankgarantie/waarborgsom.

Deze informatie is door ons met de nodige zorgvuldigheid samengesteld. Onzerzijds wordt echter geen enkele aansprakelijkheid aanvaard voor enige onvolledigheid, onjuistheid of anderszins, dan wel de gevolgen daarvan. Alle opgegeven maten en oppervlakten zijn indicatief.
+ toon meer
deze woning is Verkocht

Jan Lievensstraat 36 Ede

Jan Lievensstraat 36

6717 SP, Ede
Ditters open huis: 5 april 2025 10:00 - 12:00 uur
Landelijke Open Huizen Route NVM: 5 april 2025 11:00 uur - 15:00 uur
Vanaf€ 475.000 k.k.

Schakel een aankoopmakelaar in.

Snel handelen helpt je jouw droomhuis te bemachtigen. Zo vergroot je de kans dat je er op tijd bij bent.
Ede
verkocht

Of maak vrijblijvend een zoekprofiel aan.

Vergelijkbare woningen

Hypotheken

Onafhankelijk hypotheekadvies

  • Ligt jouw droomhuis binnen handbereik?
  • Wil je jouw huidige hypotheek verhogen?
  • Is er hypotheekruimte voor verduurzaming?

Blijf op de hoogte

Ontvang als eerste updates over nieuw aanbod en mis geen enkele kans om jouw droomwoning te vinden.

Gratis waardebepaling of verkoopgesprek

Met de vrijblijvende waardecheck weet je snel waar je aan toe bent. Onze makelaars kijken naar de lokale markt en vergelijkbare woningen in jouw buurt om een goede schatting te geven.

Realiseer al jouw woondromen met Ditters

Wij zijn een team van gedreven vastgoedexperts met een passie voor het maken van verbindingen – tussen kopers en verkopers, huurders en verhuurders. Met een frisse kijk op de makelaardij combineren we expertise met creativiteit. Onze makelaars luisteren écht en nemen de tijd om jouw wensen te begrijpen.


Bij Ditters sta je er niet alleen voor. We denken met je mee, begeleiden je in elke stap en zijn altijd bereikbaar voor vragen. Neem gerust contact met ons op – we helpen je graag verder!