Omschrijving

Ruime eengezinswoning met drie slaapkamers, veranda en tuin op het zuiden

Deze eengezinswoning uit 1972 combineert ruimte, comfort en energiezuinig wonen. Met een woonoppervlakte van 139 m², drie slaapkamers, een moderne keuken en een tuin op het zuiden is dit een ideale gezinswoning. Dankzij de aanwezigheid van 11 zonnepanelen en airconditioning in de woonkamer en in de slaapkamer woon je hier comfortabel en toekomstbestendig. De woonkamer is ruim opgezet en geeft veel natuurlijk licht door de vele raampartijen.

Pluspunten van deze woning
+ Eigen oprit met parkeergelegenheid
+ Moderne keuken met diverse inbouwapparatuur
+ Drie slaapkamers, waarvan één met airconditioning
+ Airconditioning ook aanwezig in de woonkamer
+ 11 zonnepanelen voor energiezuinig wonen
+ Tuin op het zuiden met veranda en terras

Ligging
De woning ligt in een prettige woonwijk met alle voorzieningen dichtbij. In de directe omgeving vind je supermarkten, winkels, basisscholen, kinderopvang en sportfaciliteiten. Winkelcentrum Parkweide ligt om de hoek en er zijn uitstekende busverbindingen naar station Ede-Centrum en intercitystation Ede-Wageningen. Dankzij de nabijheid van de A30 en A12 is ook de rest van de regio goed bereikbaar. Voor ontspanning en natuur woon je bovendien vlak bij de Veluwe, ideaal voor wandel- en fietstochten.

Indeling
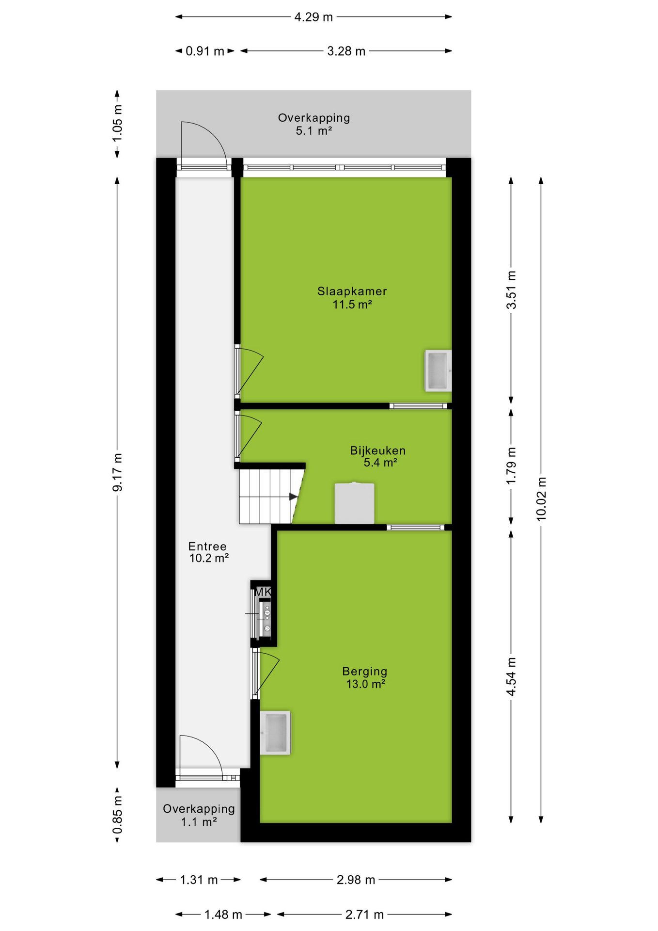
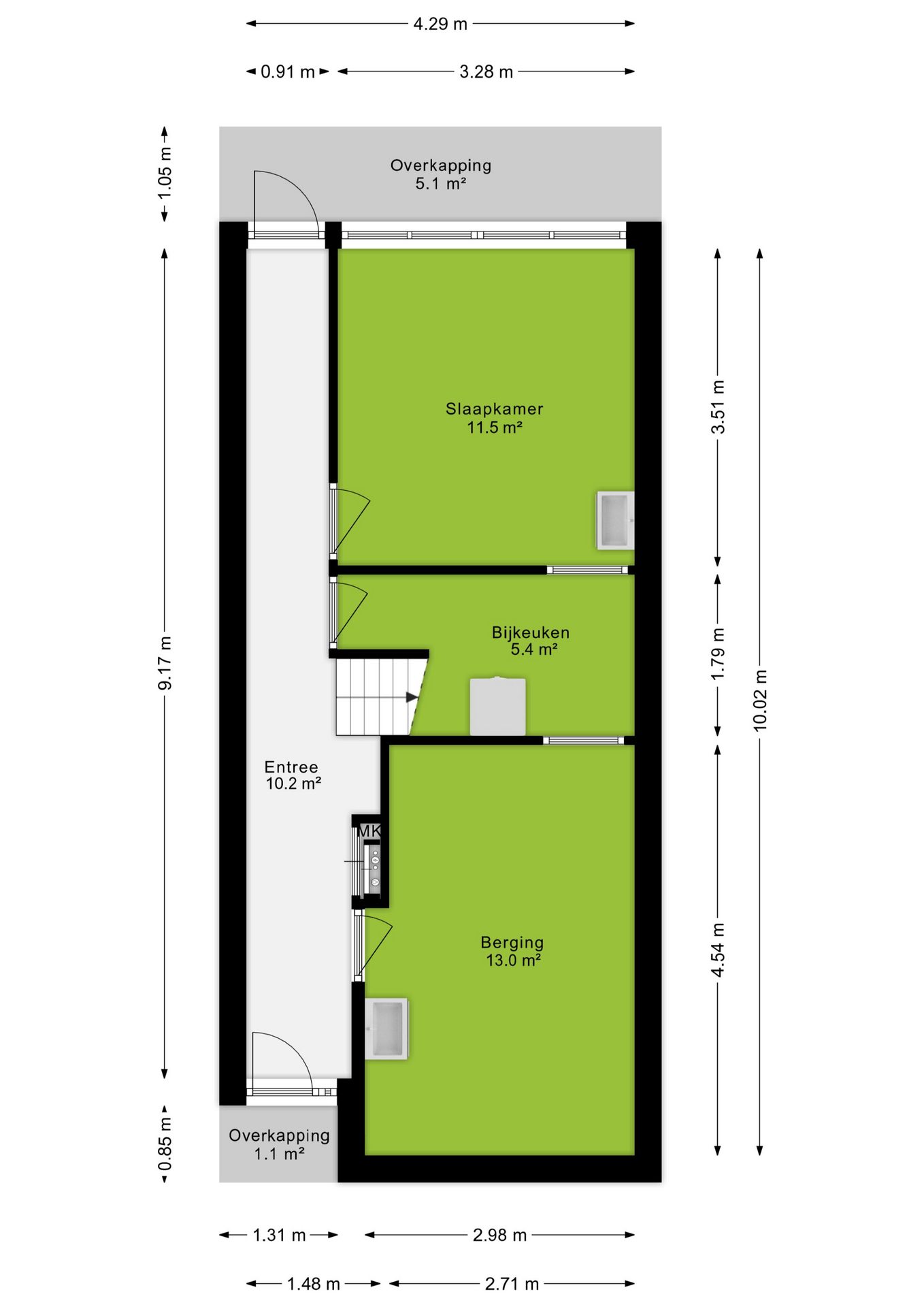
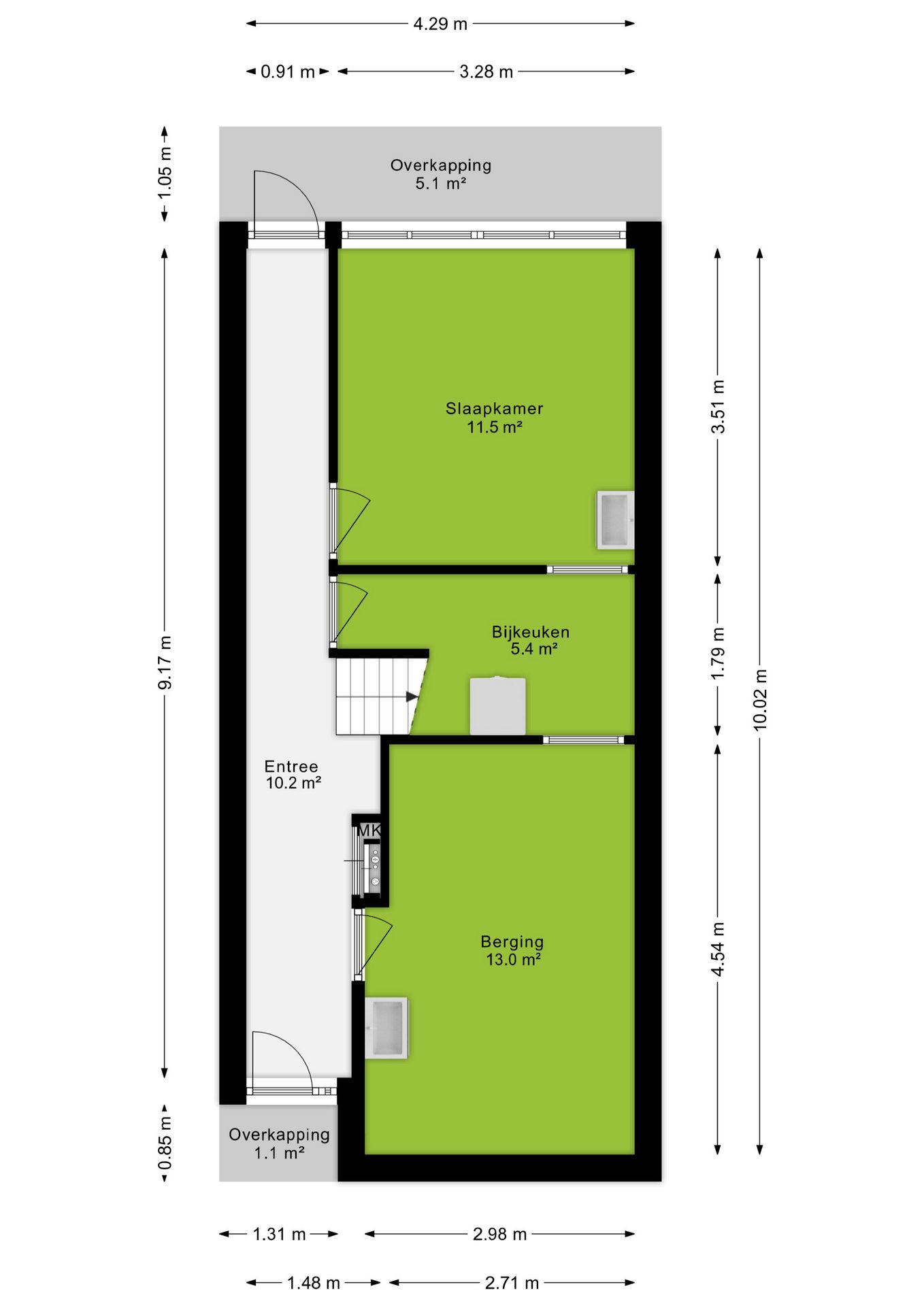
Begane grond
Via de entree kom je in de hal met meterkast en toegang tot diverse vertrekken. Aan de rechterzijde bevindt zich een handige ruime berging met wastafel. Verder vind je op deze verdieping een bijkeuken met wasmachineaansluiting en achterin nog een slaapkamer met wastafel. Via de achterdeur heb je toegang tot de tuin met overkapping.

Eerste verdieping
Op de eerste verdieping ligt de gedeeltelijk open keuken, uitgerust met inductiekookplaat, afzuigkap, vaatwasser, oven en koelkast. Deze moderne keuken, met een mix van grijstinten en zwarte accenten, biedt een fijne en sfeervolle uitstraling.
Vanuit de keuken heb je toegang tot een praktische opbergkast en een toilet. De ruime woonkamer straalt dankzij de grote raampartijen een aangename lichtheid uit, en biedt volop mogelijkheden voor een comfortabele zithoek. Bovendien zorgt de airconditioning voor een prettig binnenklimaat.

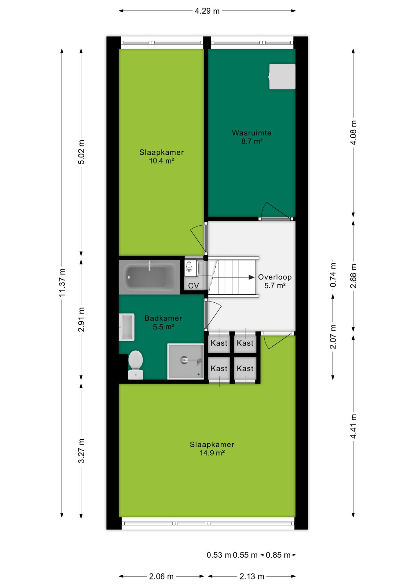
Tweede verdieping
De tweede verdieping beschikt over een ruime slaapkamer van circa 15 m² met inbouwkast en airconditioning. Op deze verdieping ligt ook de badkamer met ligbad, aparte douche, toilet en wastafel. Daarnaast is er een tweede slaapkamer van circa 10 m² met veel natuurlijk licht en een aparte wasruimte met wasmachineaansluiting. Op de overloop bevindt zich de cv-ketel.

Buitenruimte
De tuin van circa 14 m² ligt op het zuiden en beschikt direct bij de achterdeur over een overkapping, gevolgd door een terras en een gazon. Achter in de tuin staat een ruime veranda waar je beschut kunt genieten van de avondzon.

Bijzonderheden
- Bouwjaar 1972
- Woonoppervlakte 139 m²
- Perceeloppervlakte 112 m²
- Energielabel C
- 11 zonnepanelen
- Airconditioning in woonkamer en slaapkamer
- Tuin op het zuiden met veranda

Koopovereenkomst:
Bij de verkoop zal er een standaard NVM koopovereenkomst worden gehanteerd.
Bij woningen welke ouder zijn dan 20 jaar, worden de volgende clausules opgenomen in de koopovereenkomst:
- Asbestclausule;
- Ouderdomsclausule.

Koop je de woning zonder voorbehoud van financiering? Dan zullen wij een termijn hanteren van 6 weken na het opstellen van de koopovereenkomst voor het storten van de bankgarantie/waarborgsom.

Deze informatie is door ons met de nodige zorgvuldigheid samengesteld. Onzerzijds wordt echter geen enkele aansprakelijkheid aanvaard voor enige onvolledigheid, onjuistheid of anderszins, dan wel de gevolgen daarvan. Alle opgegeven maten en oppervlakten zijn indicatief.
+ toon meer
deze woning is Verkocht

Koelhorst 14 Ede

Koelhorst 14

6714 KP, Ede
Ditters open huis: 5 april 2025 10:00 - 12:00 uur
Landelijke Open Huizen Route NVM: 5 april 2025 11:00 uur - 15:00 uur
Vanaf€ 362.500 k.k.

Schakel een aankoopmakelaar in.

Snel handelen helpt je jouw droomhuis te bemachtigen. Zo vergroot je de kans dat je er op tijd bij bent.
Ede
verkocht

Of maak vrijblijvend een zoekprofiel aan.

Vergelijkbare woningen

Hypotheken

Onafhankelijk hypotheekadvies

  • Ligt jouw droomhuis binnen handbereik?
  • Wil je jouw huidige hypotheek verhogen?
  • Is er hypotheekruimte voor verduurzaming?

Blijf op de hoogte

Ontvang als eerste updates over nieuw aanbod en mis geen enkele kans om jouw droomwoning te vinden.

Gratis waardebepaling of verkoopgesprek

Met de vrijblijvende waardecheck weet je snel waar je aan toe bent. Onze makelaars kijken naar de lokale markt en vergelijkbare woningen in jouw buurt om een goede schatting te geven.

Realiseer al jouw woondromen met Ditters

Wij zijn een team van gedreven vastgoedexperts met een passie voor het maken van verbindingen – tussen kopers en verkopers, huurders en verhuurders. Met een frisse kijk op de makelaardij combineren we expertise met creativiteit. Onze makelaars luisteren écht en nemen de tijd om jouw wensen te begrijpen.


Bij Ditters sta je er niet alleen voor. We denken met je mee, begeleiden je in elke stap en zijn altijd bereikbaar voor vragen. Neem gerust contact met ons op – we helpen je graag verder!