Omschrijving

Ben je op zoek naar een tussenwoning met verrassend veel ruimte, een zonnige tuin én eigen garage? Dan is deze woning aan de Olthorst 29 precies wat je zoekt. De woning beschikt over vier slaapkamers, een woonkamer op de eerste verdieping, inpandige garage én een fijne tuin op het zuiden met veranda en houtkachel. Fijn is het vrije uitzicht op een groenstrook en het water – een oase van rust in een centrale woonomgeving.

De woning ligt in een rustige woonwijk in Ede, op korte afstand van alle voorzieningen. Winkelcentrum Parkweide ligt om de hoek voor je dagelijkse boodschappen. Het centrum van Ede en station Ede-Wageningen bereik je binnen 10 minuten fietsen. Ook de A30 is snel bereikbaar, wat zorgt voor uitstekende verbindingen richting de rest van het land.

Wat maakt deze woning aantrekkelijk?
+ Tussenwoning met maar liefst 4 slaapkamers
+ Wonen op de eerste verdieping, met privacy en uitzicht
+ Inpandige garage en parkeren op eigen terrein
+ 12 zonnepanelen (energielabel C)
+ Tuin op het zuiden met veranda en houtkachel
+ Vrij uitzicht op groen en water

Indeling
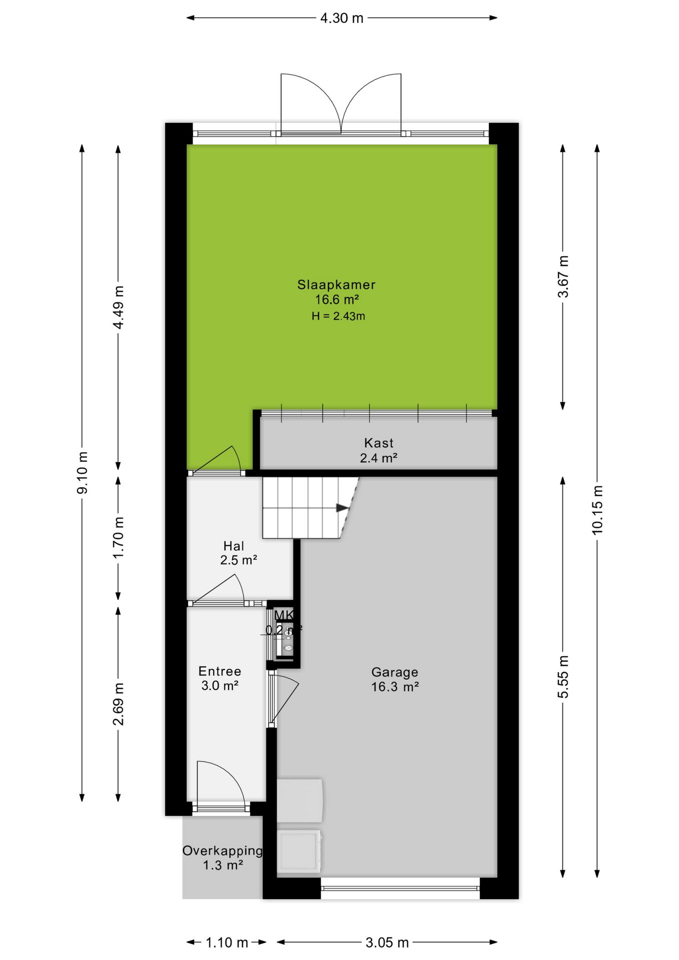
Bij binnenkomst tref je direct de inpandige garage, zowel van binnen als van buiten toegankelijk. Vanuit de hal kom je in een multifunctionele kamer: ideaal als slaapkamer, kantoor aan huis of hobbyruimte. Deze ruimte biedt directe toegang tot de tuin, gelegen op het zuiden.

Eerste verdieping
Op de eerste verdieping bevindt zich de leefruimte. De woonkamer van ca. 22 m² ligt aan de achterzijde en biedt een prettig uitzicht. De keuken aan de voorzijde is ingericht met een gasfornuis, oven, afzuigkap en koelkast. De overloop biedt daarnaast toegang tot het separate toilet.

Tweede verdieping
Hier bevinden zich nog drie slaapkamers van ca. 15 m², 10 m² en 8 m². In de slaapkamer van 10 m² bevindt zich een kast met de cv-ketel. De badkamer is netjes en voorzien van een ligbad, inloopdouche, toilet en wastafel met meubel.

Buitenruimte
De tuin is een groot pluspunt: gelegen op het zuiden, ca. 10 meter diep en 5 meter breed, met een heerlijk zonnige ligging. Achterin de tuin is een veranda geplaatst met sfeervolle houtkachel – perfect om in elk seizoen buiten te kunnen zitten.

Nieuwsgierig geworden?
Maak snel een afspraak voor een bezichtiging en ontdek wat deze fijne woning jou te bieden heeft.

Koopovereenkomst:
- Bij de verkoop zal er een standaard NVM koopovereenkomst worden gehanteerd. Bij woningen welke ouder zijn dan 20 jaar, worden de volgende clausules opgenomen in de koopovereenkomst:
- Asbestclausule;
- Ouderdomsclausule.

Koop je de woning zonder voorbehoud van financiering? Dan zullen wij een termijn hanteren van 6 weken na het opstellen van de koopovereenkomst voor het storten van de bankgarantie/waarborgsom.
+ toon meer
deze woning is Verkocht

Olthorst 29 Ede

Olthorst 29

6714 KT, Ede
Ditters open huis: 5 april 2025 10:00 - 12:00 uur
Landelijke Open Huizen Route NVM: 5 april 2025 11:00 uur - 15:00 uur
Vanaf€ 375.000 k.k.

Schakel een aankoopmakelaar in.

Snel handelen helpt je jouw droomhuis te bemachtigen. Zo vergroot je de kans dat je er op tijd bij bent.
Ede
verkocht

Of maak vrijblijvend een zoekprofiel aan.

Vergelijkbare woningen

Hypotheken

Onafhankelijk hypotheekadvies

  • Ligt jouw droomhuis binnen handbereik?
  • Wil je jouw huidige hypotheek verhogen?
  • Is er hypotheekruimte voor verduurzaming?

Blijf op de hoogte

Ontvang als eerste updates over nieuw aanbod en mis geen enkele kans om jouw droomwoning te vinden.

Gratis waardebepaling of verkoopgesprek

Met de vrijblijvende waardecheck weet je snel waar je aan toe bent. Onze makelaars kijken naar de lokale markt en vergelijkbare woningen in jouw buurt om een goede schatting te geven.

Realiseer al jouw woondromen met Ditters

Wij zijn een team van gedreven vastgoedexperts met een passie voor het maken van verbindingen – tussen kopers en verkopers, huurders en verhuurders. Met een frisse kijk op de makelaardij combineren we expertise met creativiteit. Onze makelaars luisteren écht en nemen de tijd om jouw wensen te begrijpen.


Bij Ditters sta je er niet alleen voor. We denken met je mee, begeleiden je in elke stap en zijn altijd bereikbaar voor vragen. Neem gerust contact met ons op – we helpen je graag verder!