Omschrijving

Op zoek naar een mooie tussenwoning waar je zo in kunt? In de wijk 'Rietkampen' staat deze goed onderhouden woning te koop welke van alle gemakken is voorzien! De woning staat met alleen bestemmingsverkeer waardoor je geen last hebt van verkeer en in alle rust kunt genieten. Ook kun je de auto op eigen terrein onder de carport parkeren.

Daarnaast zijn er 8 zonnepanelen geplaatst op het dak, goed voor circa 2.000 kWh.

In de buurt ligt de Albert Heijn XL, winkelcentrum ‘Stadspoort’, Ziekenhuis Gelderse Vallei en binnen enkele minuten bereik je de uitvalswegen, waaronder de A12 en de aansluiting naar de A30.

Enkele pluspunten van de woning:
+ Acht zonnepanelen;
+ 2,5 meter uitgebouwd bij de woonkamer;
+ Drie slaapkamers, mogelijkheid voor vier;
+ Badkamer (2023) voorzien van een ligbad en douche;
+ Eigen parkeerplaats onder de carport;
+ Goede bereikbaarheid.

Indeling
Begane grond
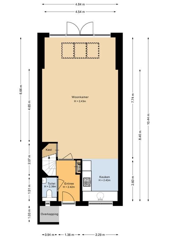
De gehele begane grond is uitgerust met een plavuizen vloer met comfortabele vloerverwarming.
De hal beschikt over een meterkast (8 groepen en aardlekschakelaar) en een aparte toiletruimte met fonteintje. Wanneer je de glas in roede deur opent kom je uit in de woonkamer, onder de trap is een extra kast aanwezig als opbergruimte. De woonkamer is uitgebouwd en heeft een lichtstraat en dubbele openslaande deuren naar de achtertuin.
Aan de voorzijde ligt de open keuken met kleine apothekerskast en carrouselkast. Tevens is de volgende apparatuur aanwezig:
+ Gaskookplaat
+ Afzuigkap
+ Vaatwasser
+ Koel/vriescombinatie

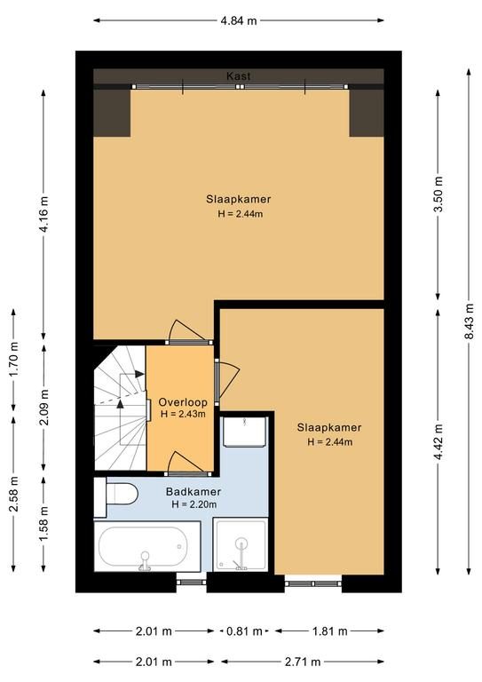
Eerste verdieping
Via de overloop heb je toegang tot twee slaapkamers (voorheen drie) en de badkamer. De slaapkamers aan de achterzijde is vergroot en heeft een dakkapel, laminaatvloer en gestuct plafond. Aan de voorzijde ligt de tweede slaapkamer. Deze is recht opgetrokken en heeft een handbediend rolluik. De luxe badkamer is vernieuwd in 2023 en bestaat uit een wastafelmeubel met spiegelkast, ligbad, glazen douchecabine (beiden met thermostaat kraan) en soft close toilet. Daarnaast is de badkamer volledig betegeld en heeft het een verlaagd plafond met inbouwspots. Ook hier is een handbediend rolluik aanwezig.

Tweede verdieping
De voorzolder beschikt over een Velux dakraam. In de natte ruimte zijn de nieuwe CV ketel (Intergas HRE, 2024) en de aansluiting van de wasmachine gesitueerd. Hier is ook een dakkapel met handbediend rolluik aanwezig. De derde slaapkamer heeft ook een dakkapel met elektrisch rolluik en bergruimte achter de knieschotten, zowel aan de voor- als de achterzijde.

Derde verdieping
Vlizotrap naar de bergzolder, het rolluik op zolder is in één deel en wordt elektrisch bediend.

Tuin
Vanuit de woonkamer kijk je uit op de onderhoudsarme tuin, gelegen op het noordwesten. Hier is een buitendouche aanwezig en staat een sfeervolle houten overkapping met elektra en aansluiting voor een houtkachel. Tevens is er een deur naar het gangpad achter de woning.

Perceeloppervlakte: 159 m²
Inhoud woning: 363 m³
Woonoppervlakte: 110 m²

Bijzonderheden
Verwarming: CV ketel Intergas HRE (2024);
Warm water: CV ketel Intergas HRE (2024);
Isolatie: Volledig geïsoleerd;
Tuinligging: Noordwesten;
Aanvaarding: In overleg.

Koopovereenkomst:
Bij de verkoop zal er een standaard NVM koopovereenkomst worden gehanteerd. Bij woningen welke ouder zijn dan 20 jaar, worden de volgende clausules opgenomen in de koopovereenkomst:
- Asbestclausule;
- Ouderdomsclausule.

Koop je de woning zonder voorbehoud van financiering? Dan zullen wij een termijn hanteren van 14 dagen na het opstellen van de koopovereenkomst voor het storten van de bankgarantie/waarborgsom.

Deze informatie is door ons met de nodige zorgvuldigheid samengesteld. Onzerzijds wordt echter geen enkele aansprakelijkheid aanvaard voor enige onvolledigheid, onjuistheid of anderszins, dan wel de gevolgen daarvan. Alle opgegeven maten en oppervlakten zijn indicatief.
+ toon meer
deze woning is Verkocht

Sadatsingel 19 Ede

Sadatsingel 19

6716 GA, Ede
Ditters open huis: 5 april 2025 10:00 - 12:00 uur
Landelijke Open Huizen Route NVM: 5 april 2025 11:00 uur - 15:00 uur
Vanaf€ 425.000 k.k.

Schakel een aankoopmakelaar in.

Snel handelen helpt je jouw droomhuis te bemachtigen. Zo vergroot je de kans dat je er op tijd bij bent.
Ede
verkocht

Of maak vrijblijvend een zoekprofiel aan.

Vergelijkbare woningen

Hypotheken

Onafhankelijk hypotheekadvies

  • Ligt jouw droomhuis binnen handbereik?
  • Wil je jouw huidige hypotheek verhogen?
  • Is er hypotheekruimte voor verduurzaming?

Blijf op de hoogte

Ontvang als eerste updates over nieuw aanbod en mis geen enkele kans om jouw droomwoning te vinden.

Gratis waardebepaling of verkoopgesprek

Met de vrijblijvende waardecheck weet je snel waar je aan toe bent. Onze makelaars kijken naar de lokale markt en vergelijkbare woningen in jouw buurt om een goede schatting te geven.

Realiseer al jouw woondromen met Ditters

Wij zijn een team van gedreven vastgoedexperts met een passie voor het maken van verbindingen – tussen kopers en verkopers, huurders en verhuurders. Met een frisse kijk op de makelaardij combineren we expertise met creativiteit. Onze makelaars luisteren écht en nemen de tijd om jouw wensen te begrijpen.


Bij Ditters sta je er niet alleen voor. We denken met je mee, begeleiden je in elke stap en zijn altijd bereikbaar voor vragen. Neem gerust contact met ons op – we helpen je graag verder!