Omschrijving

Zijn jullie klaar om verliefd te worden op jullie nieuwe stekje? Goed nieuws, want we hebben een parel van een woning die jullie hart sneller zal doen kloppen!

Deze uitgebouwde tussenwoning is hét perfecte thuis voor wie droomt van een plekje met net dat beetje extra. En ja, we hebben het over een fantastische bijkeuken om al je spullen handig op te bergen, plus een heerlijke tuin voor zwoele zomerbarbecues of gewoon lekker ontspannen met een boekje in de zon. En laten we die stevige schuur niet vergeten - ideaal voor fietsen, gereedschap of om te toveren in een coole hobbyruimte.

Leef licht, leef luchtig! Jullie nieuwe woning beschikt over heerlijk veel lichtinval, mede dankzij twee lichtkoepels die zorgen voor die extra sfeer in jullie uitbouw én bijkeuken. En wát een keuken is het! Een moderne inbouwkeuken waar je feestmaal na feestmaal in elkaar tovert voor vrienden, familie of gewoon voor een fijn avondje met z’n tweeën.

Het huis is gelegen in een rustige straat waar je helemaal tot rust komt na een bruisende dag. En natuurlijk, superhandig gelegen nabij allerlei fijne voorzieningen zoals: scholen, winkelcentrum De Spindop voor alle dagelijkse boodschappen en Station Ede-Wageningen. En verplaats je jezelf graag snel en zorgeloos? Hoppa, binnen no time ben je op de A12 of A30 of spring je op de trein op Station Ede-Wageningen.

Benieuwd? Kom gauw een keer kijken op een van de kijkmomenten en voel de magie zelf. Wie weet is dit binnenkort jullie nieuwe en sfeervolle huis!

Indeling:
Begane grond:
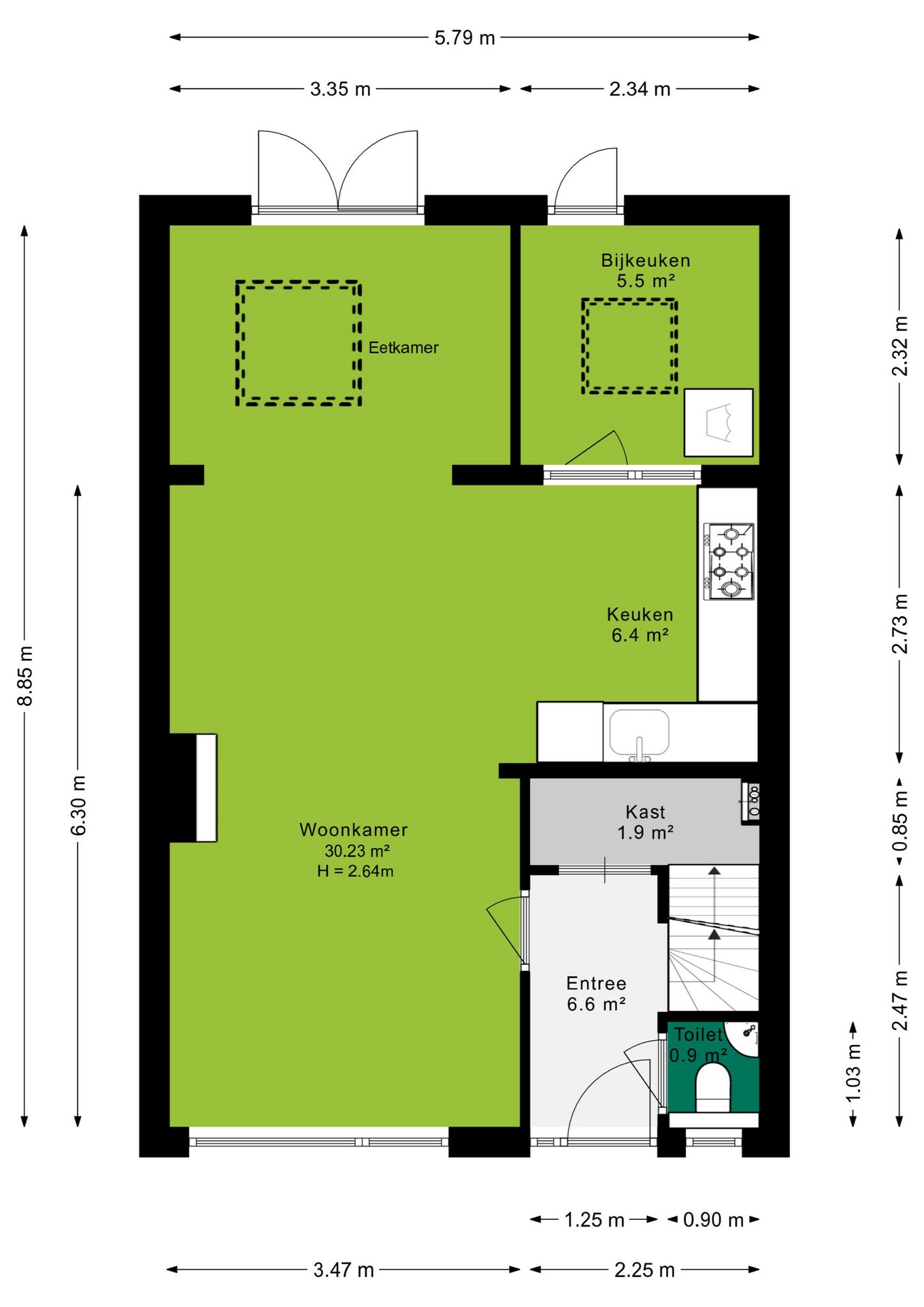
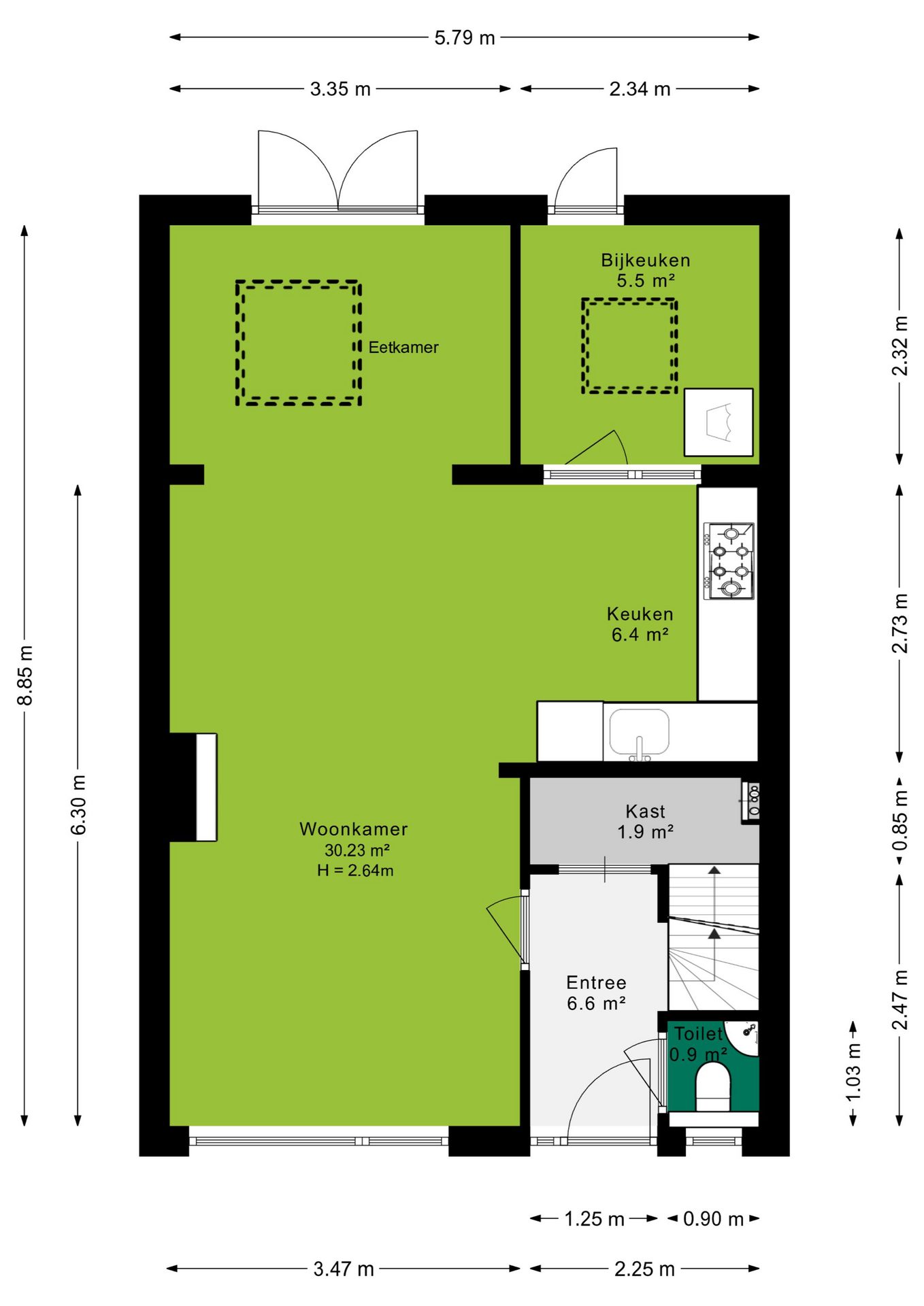
Via de hal kom je bij de entree, welke voorzien is van vinyl vloer afwerking, met trapkast, garderobe, moderne toiletruimte met wandcloset en een fonteintje en voorzien van lichte wandtegels met antraciet accenten, trapopgang naar de eerste verdieping en toegang tot de woonkamer. De ruime en enorm lichte woonkamer is aan de achterzijde uitgebouwd, uitgerust met een lichtkoepel, strakke wandafwerking en voorzien van een eiken houten vloer. In de woonkamer is de schouw/schoorsteen nog aanwezig echter is deze niet meer in gebruik.
De woning beschikt ook over een kelder, ideaal voor het opbergen van spullen of voorraad. Deze uitgebouwde tussenwoning is hét perfecte thuis voor wie droomt van een plekje met net dat beetje extra. En ja, we hebben het over een fantastische bijkeuken om al je spullen handig op te bergen, plus een heerlijke tuin voor zwoele zomerbarbecues of gewoon lekker chillen met een boekje in de zon. En laten we die stevige schuur niet vergeten - ideaal voor fietsen, gereedschap of om te toveren in een coole hobbyruimte. Centraal tussen de woonkamer en keuken bevindt zich het eetgedeelte. Hier is meer dan voldoende ruimte voor een grote eettafel met stoelen. Een fijne plek om met familie en/of vrienden te genieten van een hapje, drankje en spelletje! De open keuken is voorzien van een moderne L-vormige inbouwkeuken met koelkast, combi magnetron/oven, vaatwasser, afzuigkap en gaskookplaat. Vanuit de keuken is er tevens toegang tot de praktische bijkeuken. In de bijkeuken is de wasmachine aansluiting. Vanuit de uitbouw en bijkeuken is de tuin bereikbaar.

1e Verdieping:
Via de vaste trap kom je bij de overloop en is er toegang tot drie 'recht opgetrokken' slaapkamers en de badkamer. De slaapkamers zijn voorzien van een laminaatvloer. De volledig betegelde moderne badkamer beschikt over douchehoek, wastafelmeubel, radiator en venster. De kleurstelling is wit en antraciet.

2e Verdieping:
Door middel van een vaste trap is de zolderverdieping bereikbaar.

De open zolderverdieping is erg handig voor het opbergen van al je spullen. Hier is ook de C.V.-ketel opstelling gevestigd.

Deze verdieping beschikt over een dakraam en dus ook over daglicht.

Door het plaatsen van een dakkapel is het op deze verdieping mogelijk om een extra (slaap) kamer te realiseren.

Tuin:
De heerlijke achtertuin is gelegen op het noorden en door de fijne afmeting is er altijd wel een plekje in de zon of schaduw te vinden. De tuin beschikt over diverse terrassen en sfeervolle planten bordes. In de tuin is een handige berging aanwezig. Tevens is er nog een achterom.

Afmetingen:
Woon- eetkamer 30.2 m²
Keuken 6.4 m²
Bijkeuken 5.5 m²
Slaapkamer 1 11.5 m²
Slaapkamer 2 10.1 m²
Slaapkamer 3 5.3 m²
Badkamer 2.3 m²
Berging 7.2 m²

Woonoppervlakte 87 m²
Perceel grootte 175 m²

Bijzonderheden:
Verwarming: Nefit HR combiketel (2010)
Warm water: Nefit HR combiketel (2010)
Isolatie: Dakisolatie, dubbel glas
Bouwjaar: 1960
Tuinligging: Noorden
Aanvaarding: In overleg

Kenmerken:
* middenwoning met uitbouw en bijkeuken, beide met lichtkoepel;
* moderne inbouwkeuken;
* verzorgde sanitaire voorzieningen;
* lichte sfeervolle woonkamer;
* de woning is gelegen nabij diverse scholen, openbaar vervoer, winkelcentrum De Spindop en uitvalswegen A12 en A30.

Koopovereenkomst:
Bij de verkoop zal er een standaard NVM koopovereenkomst worden gehanteerd. Bij woningen welke ouder zijn dan 20 jaar, worden de volgende clausules opgenomen in de koopovereenkomst:
- Asbestclausule;
- Ouderdomsclausule.

Koop je de woning zonder voorbehoud van financiering? Dan zullen wij een termijn hanteren van 14 dagen na het opstellen van de koopovereenkomst voor het storten van de bankgarantie/waarborgsom.

Deze informatie is door ons met de nodige zorgvuldigheid samengesteld. Onzerzijds wordt echter geen enkele aansprakelijkheid aanvaard voor enige onvolledigheid, onjuistheid of anderszins, dan wel de gevolgen daarvan. Alle opgegeven maten en oppervlakten zijn indicatief.
+ toon meer
deze woning is Verkocht

Willem Marislaan 12 Ede

Willem Marislaan 12

6717 HD, Ede
Ditters open huis: 5 april 2025 10:00 - 12:00 uur
Landelijke Open Huizen Route NVM: 5 april 2025 11:00 uur - 15:00 uur
Vanaf€ 375.000 k.k.

Schakel een aankoopmakelaar in.

Snel handelen helpt je jouw droomhuis te bemachtigen. Zo vergroot je de kans dat je er op tijd bij bent.
Ede
verkocht

Of maak vrijblijvend een zoekprofiel aan.

Vergelijkbare woningen

Hypotheken

Onafhankelijk hypotheekadvies

  • Ligt jouw droomhuis binnen handbereik?
  • Wil je jouw huidige hypotheek verhogen?
  • Is er hypotheekruimte voor verduurzaming?

Blijf op de hoogte

Ontvang als eerste updates over nieuw aanbod en mis geen enkele kans om jouw droomwoning te vinden.

Gratis waardebepaling of verkoopgesprek

Met de vrijblijvende waardecheck weet je snel waar je aan toe bent. Onze makelaars kijken naar de lokale markt en vergelijkbare woningen in jouw buurt om een goede schatting te geven.

Realiseer al jouw woondromen met Ditters

Wij zijn een team van gedreven vastgoedexperts met een passie voor het maken van verbindingen – tussen kopers en verkopers, huurders en verhuurders. Met een frisse kijk op de makelaardij combineren we expertise met creativiteit. Onze makelaars luisteren écht en nemen de tijd om jouw wensen te begrijpen.


Bij Ditters sta je er niet alleen voor. We denken met je mee, begeleiden je in elke stap en zijn altijd bereikbaar voor vragen. Neem gerust contact met ons op – we helpen je graag verder!