Omschrijving

Ben je op zoek naar een eengezinswoning met vier slaapkamers, een tuin op het oosten en een groene woonomgeving? Met een eigen parkeerplaats, een moderne badkamer en energielabel B is dit de ideale plek om jouw nieuwe thuis te creëren.

De tuingericht woonkamer biedt ruimte voor een gezellige zithoek en een 6-persoons eettafel. De keuken is gelegen aan de voorzijde en heeft een leuk uitzicht over de straat. De dubbele keuken opstelling is voorzien van diverse inbouwapparatuur en beschikt over meer dan voldoende werkruimte. Op de verdiepingen beschik je over welgeteld vier slaapkamers, een moderne badkamer en bergruimte achter de knieschotten. In de tuin, gelegen op het oosten, kan je heerlijk van het buitenleven genieten.

Gelegen aan de Europalaan, biedt deze gezinswoning zowel comfort als gemak. Op loopafstand van de prachtige bossen en brede uitwaarde van de Neder-Rijn kan je hier terecht voor een heerlijke wandeling. Het centrum van Renkum biedt een scala aan winkels zoals twee supermarkten, drogisterijen, cafés en restaurants. De nabijgelegen snelwegen A12 en A50 zorgen voor snelle verbindingen naar steden zoals Arnhem, Nijmegen en Utrecht. Deze woning combineert de voordelen van een rustige woonomgeving met de voorzieningen van de stad. Mis deze kans niet om deze mooie eengezinswoning te bezichtigen. Je nieuwe thuis wacht op je!

Plus punten:
+ Gezinswoning met vier slaapkamers
+ Parkeerplaats op eigen terrein
+ Moderne badkamer met inloopdouche, vernieuwd in 2020
+ Gelegen nabij diverse voorzieningen en natuurgebied Beekdal
+ De woning beschikt over energielabel B

Indeling:
Begane grond:
Bij binnenkomst via de voortuin, waar je beschikt over een eigen parkeerplaats en een praktische berging met bergvliering, betreedt je de entree van deze ideale gezinswoning. De hal biedt toegang tot een toiletruimte, de meterkast, trap naar de eerste verdieping en zowel de woonkamer als de keuken. De woonkamer is tuingericht en beschikt over een groot raam waardoor en veel natuurlijk lichtinval binnentreedt. Vanuit de woonkamer is er toegang naar de achtertuin. De keuken is gelegen aan de voorzijde en heeft een leuk uitzicht over de straat. De dubbele keuken opstelling is uitgevoerd in een lichte kleuropstelling en voorzien van diverse inbouwapparatuur en beschikt over meer dan voldoende werkruimte. Ook is er een trapkast aanwezig voor het opbergen van voorraad en bijvoorbeeld de stofzuiger.

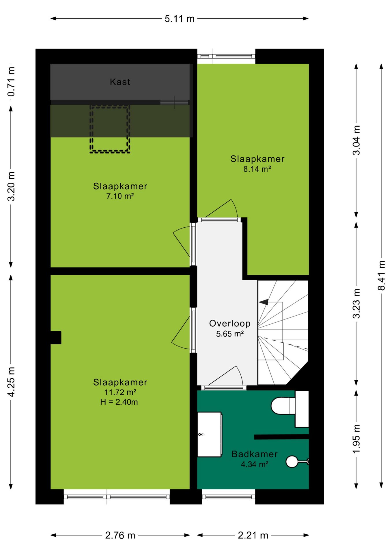
Eerste verdieping:
De eerste verdieping biedt toegang tot drie slaapkamers en de moderne badkamer. De slaapkamers zijn voorzien van een laminaatvloer en zijn allen goed bemeten met een oppervlakte van circa 12m², 8m² en 7m².
De moderne badkamer is vernieuwd in 2020 met een stijlvol wastafelmeubel en een ruime inloopdouche. Tevens is er een raam aanwezig voor een fijn daglicht en om de badkamer ook op een natuurlijke manier te kunnen ventileren.

Tweede verdieping:
Via de vaste trap bereik je tweede verdieping die nog naar wens ingedeeld kan worden. Hier kun je bijvoorbeeld een vierde slaapkamer creëren. Deze kamer kan ook ideaal voor andere doeleinden worden gebruikt, te denken valt aan: een werk-, sport-, hobby- of logeerkamer. Bovendien tref je op deze verdieping de aansluiting voor het witgoed en bergruimte achter de knieschotten.

Tuin
De achtertuin is gelegen op het oosten en beschik over een achterom en een berging voor het stallen van de tuinkussens. In de tuin kan je heerlijk tot rust komen en genieten van de zon of een plekje in de schaduw.

Kenmerken:
Verwarming: C.V. combiketel (bouwjaar 2024)
Isolatie: Dubbelglas, dakisolatie
Bouwjaar: 1983
Aanvaarding: in overleg

Koopovereenkomst:
Bij de verkoop zal er een standaard NVM koopovereenkomst worden gehanteerd.

Koop je de woning zonder voorbehoud van financiering? Dan zullen wij een termijn hanteren van 14 dagen na het opstellen van de koopovereenkomst voor het storten van de bankgarantie/waarborgsom.

Deze informatie is door ons met de nodige zorgvuldigheid samengesteld. Onzerzijds wordt echter geen enkele aansprakelijkheid aanvaard voor enige onvolledigheid, onjuistheid of anderszins, dan wel de gevolgen daarvan. Alle opgegeven maten en oppervlakten zijn indicatief.
+ toon meer
deze woning is Verkocht

Europalaan 85 Renkum

Europalaan 85

6871 ZC, Renkum
Ditters open huis: 5 april 2025 10:00 - 12:00 uur
Landelijke Open Huizen Route NVM: 5 april 2025 11:00 uur - 15:00 uur
Vanaf€ 385.000 k.k.

Schakel een aankoopmakelaar in.

Snel handelen helpt je jouw droomhuis te bemachtigen. Zo vergroot je de kans dat je er op tijd bij bent.
Renkum
verkocht

Of maak vrijblijvend een zoekprofiel aan.

Vergelijkbare woningen

Hypotheken

Onafhankelijk hypotheekadvies

  • Ligt jouw droomhuis binnen handbereik?
  • Wil je jouw huidige hypotheek verhogen?
  • Is er hypotheekruimte voor verduurzaming?

Blijf op de hoogte

Ontvang als eerste updates over nieuw aanbod en mis geen enkele kans om jouw droomwoning te vinden.

Gratis waardebepaling of verkoopgesprek

Met de vrijblijvende waardecheck weet je snel waar je aan toe bent. Onze makelaars kijken naar de lokale markt en vergelijkbare woningen in jouw buurt om een goede schatting te geven.

Realiseer al jouw woondromen met Ditters

Wij zijn een team van gedreven vastgoedexperts met een passie voor het maken van verbindingen – tussen kopers en verkopers, huurders en verhuurders. Met een frisse kijk op de makelaardij combineren we expertise met creativiteit. Onze makelaars luisteren écht en nemen de tijd om jouw wensen te begrijpen.


Bij Ditters sta je er niet alleen voor. We denken met je mee, begeleiden je in elke stap en zijn altijd bereikbaar voor vragen. Neem gerust contact met ons op – we helpen je graag verder!