Omschrijving

Ruime jaren 30 tussenwoning voorzien van 12 zonnepanelen!

Welkom aan de Bernard de Waalstraat in Utrecht, waar deze prachtige jaren '30 tussenwoning op je wacht. Deze woning combineert de charme van het verleden met moderne gemakken en biedt een heerlijke plek om thuis te komen. Bij binnenkomst voel je direct de authentieke sfeer, met karakteristieke details zoals de originele open haard die uitnodigt tot gezellige avonden met een goed boek of een glas wijn. De woonkamer is ruim en licht, perfect voor zowel ontspanning als het ontvangen van gasten. De woning beschikt over drie comfortabele slaapkamers, ideaal voor gezinnen of voor het inrichten van een thuiskantoor. Elk van de kamers biedt voldoende ruimte en mogelijkheden om ze naar eigen smaak in te richten. Duurzaamheid staat hoog in het vaandel met maar liefst 12 zonnepanelen op het dak, die zorgen voor een aanzienlijke vermindering van de energiekosten.

De omgeving van Bernard de Waalstraat is ideaal voor mensen die van groen en recreatie houden. Het nabijgelegen Julianapark is een populaire plek voor bewoners om te ontspannen, te wandelen of te sporten. Daarnaast zijn er diverse voorzieningen zoals basisscholen, sportfaciliteiten en lokale winkels die bijdragen aan het gemak en comfort van het dagelijks leven.

Wat betreft bereikbaarheid, is de locatie uitstekend. De wijk Zuilen is goed verbonden met de rest van Utrecht en Nederland via een uitgebreid netwerk van snelwegen en openbaar vervoer. De A2, A12 en A27 zijn allemaal gemakkelijk bereikbaar, waardoor er snelle verbindingen zijn naar steden als Amsterdam, Rotterdam en 's-Hertogenbosch.

Openbaar vervoer is ook ruim beschikbaar in de buurt. Station Utrecht Zuilen ligt op korte afstand en biedt directe treinverbindingen naar Utrecht Centraal, het grootste spoorwegknooppunt van het land. Vanaf hier zijn er frequente intercity- en sprinterdiensten naar vrijwel alle grote steden in Nederland, zoals Amsterdam, Rotterdam, en Eindhoven. Daarnaast zorgen lokale en regionale buslijnen voor een gemakkelijke verbinding met verschillende delen van de stad en omliggende gebieden.

De Bernard de Waalstraat is niet alleen praktisch gelegen, maar er zijn regelmatig culturele en sociale activiteiten dankzij de aanwezigheid van buurtcentra en lokale initiatieven. Dit alles maakt de omgeving van Bernard de Waalstraat 53 tot een dynamische en aangename plek om te wonen binnen de bruisende stad Utrecht.

Enkele pluspunten van de woning:
+ Twaalf zonnepanelen aanwezig (260 Wp);
+ Openhaard in de woonkamer;
+ Drie slaapkamers;
+ Ruime tuin op het noordoosten;
+ Keuken uit 2015;
+ Mogelijkheid om meer woonoppervlakte te creëren door de zolder uit te breiden met een grotere dakkapel.

Indeling
Begane grond:
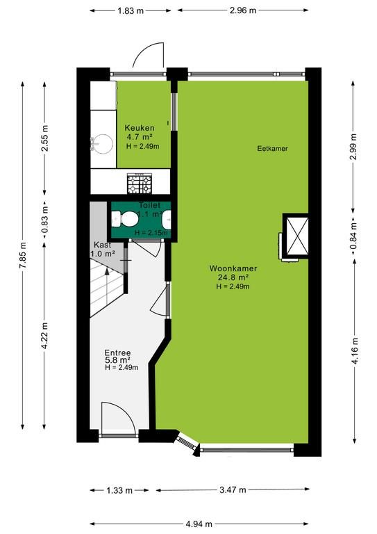
Binnenkomst via de entree, waar zich een trapopgang bevindt met daaronder handige bergruimte, en een toilet met fonteintje. De ruime woonkamer biedt dankzij de vele raampartijen een overvloed aan natuurlijk licht. Centraal in de woonkamer is een sfeervolle open haard geplaatst. Vanuit de woonkamer is er toegang tot de keuken. Deze afgesloten keuken is uitgevoerd in een lichte kleurstelling en voorzien van diverse inbouwapparatuur, waaronder een 4-pits gasfornuis, afzuigkap, oven, magnetron en koelkast.

Via de keuken is de tuin te bereiken.

Eerste verdieping:
Op de overloop bevindt zich een toilet met fonteintje, dat toegankelijk is vanuit zowel de hal als de ouderslaapkamer. De ouderslaapkamer beschikt over een ruime inbouwkast en biedt toegang tot het balkon, dat uitkijkt over de tuin. Vanaf de overloop kom je bij de badkamer, die volledig is betegeld in een lichte kleurstelling en is uitgerust met een wastafel en douche. Daarnaast bevindt zich de tweede slaapkamer, die eveneens voorzien is van een inbouwkast.

Tweede verdieping:
Op de overloop vind je een wastafel, de cv-installatie en de aansluiting voor de wasmachine. Daarnaast is er een derde slaapkamer, die extra bergruimte biedt achter de schuine kanten.

Tuin:
Via de keuken kom je in de tuin, waar je onder de zonwering optimaal kunt genieten van het buitenleven. Verderop in de tuin bevinden zich vier praktische bergingen, perfect voor het opbergen van tuingereedschap, fietsen en andere benodigdheden. Bovendien is de woning ook toegankelijk via een achterom, wat extra gemak biedt voor het betreden van de tuin en het opbergen van fietsen of afvalcontainers. Deze achteringang maakt het eenvoudig om de tuin te bereiken zonder door de woning te hoeven gaan.

Afmetingen
Perceeloppervlakte: 117 m²
Inhoud woning: 330 m³
Woonoppervlakte: 92 m²

Bijzonderheden
Verwarming: CV-ketel, NEFIT CV Trendline HRC25 CW4;
Warm water: CV-ketel, NEFIT CV Trendline HRC25 CW4;
Isolatie: Dakisolatie, vloerisolatie en dubbel glas;
Bouwjaar: 1941;
Tuinligging: Noordoosten;
Aanvaarding: In overleg.

Koopovereenkomst:
Bij de verkoop zal er een standaard NVM koopovereenkomst worden gehanteerd. Bij woningen welke ouder zijn dan 20 jaar, worden de volgende clausules opgenomen in de koopovereenkomst:
- Asbestclausule;
- Ouderdomsclausule.

Koopt u de woning zonder voorbehoud van financiering? Dan zullen wij een termijn hanteren van 14 dagen na het opstellen van de koopovereenkomst voor het storten van de bankgarantie/waarborgsom.

Deze informatie is door ons met de nodige zorgvuldigheid samengesteld. Onzerzijds wordt echter geen enkele aansprakelijkheid aanvaard voor enige onvolledigheid, onjuistheid of anderszins, dan wel de gevolgen daarvan. Alle opgegeven maten en oppervlakten zijn indicatief.
+ toon meer
deze woning is Verkocht

Bernard de Waalstraat 53 Utrecht

Bernard de Waalstraat 53

3555 BH, Utrecht
Ditters open huis: 5 april 2025 10:00 - 12:00 uur
Landelijke Open Huizen Route NVM: 5 april 2025 11:00 uur - 15:00 uur
Vanaf€ 525.000 k.k.

Schakel een aankoopmakelaar in.

Snel handelen helpt je jouw droomhuis te bemachtigen. Zo vergroot je de kans dat je er op tijd bij bent.
Utrecht
verkocht

Of maak vrijblijvend een zoekprofiel aan.

Vergelijkbare woningen

Hypotheken

Onafhankelijk hypotheekadvies

  • Ligt jouw droomhuis binnen handbereik?
  • Wil je jouw huidige hypotheek verhogen?
  • Is er hypotheekruimte voor verduurzaming?

Blijf op de hoogte

Ontvang als eerste updates over nieuw aanbod en mis geen enkele kans om jouw droomwoning te vinden.

Gratis waardebepaling of verkoopgesprek

Met de vrijblijvende waardecheck weet je snel waar je aan toe bent. Onze makelaars kijken naar de lokale markt en vergelijkbare woningen in jouw buurt om een goede schatting te geven.

Realiseer al jouw woondromen met Ditters

Wij zijn een team van gedreven vastgoedexperts met een passie voor het maken van verbindingen – tussen kopers en verkopers, huurders en verhuurders. Met een frisse kijk op de makelaardij combineren we expertise met creativiteit. Onze makelaars luisteren écht en nemen de tijd om jouw wensen te begrijpen.


Bij Ditters sta je er niet alleen voor. We denken met je mee, begeleiden je in elke stap en zijn altijd bereikbaar voor vragen. Neem gerust contact met ons op – we helpen je graag verder!