Omschrijving

Forel 1 te Veenendaal: een fraaie en uitgebouwde hoekwoning in het populaire en kindvriendelijke Veenendaal-Oost.

Zoek jij een fijne en ruime gezinswoning en heb je geen zin om te klussen? Staan vijf slaapkamers, energielabel A, vloerverwarming met vloerkoeling en een strakke en moderne afwerking hoog op jouw wensenlijstje? Dat is wellicht deze fijne gezinswoning jouw nieuwe plek!

Belangrijkste kenmerken:
- 140 m² woonoppervlakte
- Vijf slaapkamers en een moderne badkamer
- Energielabel A
- Gelegen in het populaire en kindvriendelijke Veenendaal-Oost
- Vloerverwarming en vloerkoeling via warmtenet DEVO

Locatie:
De ligging is ideaal: op fietsafstand bevind zich een buurtwinkelcentrum met onder andere supermarkten, een basisschool, kinderopvang en diverse sportverenigingen. De A12 en A30, evenals het NS-station, zijn binnen enkele minuten bereikbaar. Op loopafstand ligt De Groene Grens: ideaal voor een ommetje of een mooie fietstocht.

Indeling
Begane grond:
Via de ruime hal, met meterkast en toilet, kom je in de leefruimte. De lichte woonkamer is gelegen aan de achterzijde van de woning en is daarmee tuingericht. Dankzij de openslaande tuindeuren is er veel daglicht en kun je tijdens zonnige dagen binnen bij buiten betrekken. De woonkamer is heerlijk ruim waardoor er ruimte is voor een royale hoekbank en een gezellige zithoek. Centraal gelegen tussen de woonkamer en de keuken bevindt zicht het eetgedeelte met plek voor het hele gezin. De moderne en open keuken is gelegen aan de voorzijde van de woning, biedt uitzicht over de rustige en autoluwe straat en is uitgevoerd met witte fronten en een donker Fenix aanrechtblad. Kijkend naar het inbouwapparatuur dan zien we dat de keuken beschikt over een inductiekookplaat met geïntegreerde afzuiging, combi-stoomoven met verschillende functies, koel-vriescombinatie inclusief water- en ijsdispencer, een vaatwasser en een Quooker met flexibele uitrekslang. Ook de keuken wordt door middel van grote raampartijen voorzien van de gewenste daglichttoetreding.

1e verdieping:
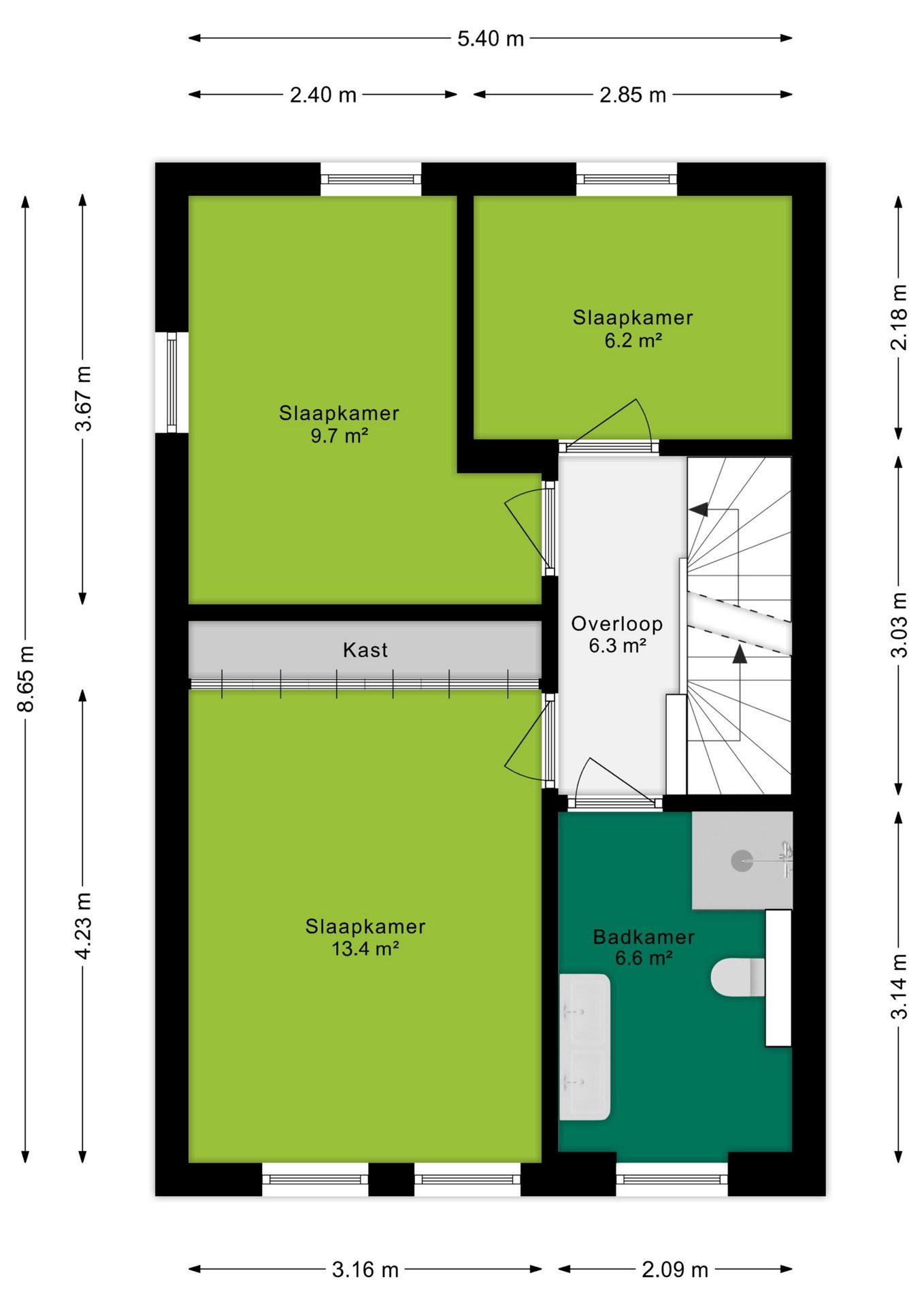
Vanaf de overloop zijn drie slaapkamers, de badkamer en de trapopgang naar de 2e verdieping bereikbaar. De slaapkamers zijn 13,4 m², 9,7 m² en 6,2 m² en groot. De grootste slaapkamer is samen met de badkamer gelegen aan de voorzijde van de woning en de twee andere slaapkamers aan de achterzijde. De grootste slaapkamer beschikt tevens over een kledingkast, waarvan het middelste gedeelte met verlichting.

De ruime en moderne badkamer is voorzien van een dubbele wastafel, inloopdouche, toilet, vloerverwarming en een te openen raam voor de gewenste natuurlijke ventilatie.

2e verdieping
Via de vaste trap bereik je de zolderverdieping met twee extra slaapkamers van circa 12,5 m² en 9,5 m², beide met een dakraam. Deze ruimtes zijn ook ideaal als werk- of sportruimte. Hier bevinden zich tevens de aansluitingen voor wasmachine en droger.

Tuin
De brede, op het noorden gelegen achtertuin biedt volop ruimte voor een fijne loungehoek en een speelplek voor de kinderen. Achterin staat een houten berging voor bijvoorbeeld fietsen en tuingereedschap. De praktische achterom is ideaal voor onder meer de kliko’s.

Bijzonderheden:
Verwarming en warmwater: stadsverwarming en vloerverwarming.
Energielabel: A;
Isolatie: volledig geïsoleerd;
Zonnepanelen: 2 stuks
Tuinligging: noord;
Aanvaarding: in overleg.

Koopovereenkomst:
Bij de verkoop zal er een standaard NVM koopovereenkomst worden gehanteerd.

Koop je de woning zonder voorbehoud van financiering? Dan zullen wij een termijn hanteren van 6 weken na het opstellen van de koopovereenkomst voor het storten van de bankgarantie/waarborgsom.

Deze informatie is door ons met de nodige zorgvuldigheid samengesteld. Onzerzijds wordt echter geen enkele aansprakelijkheid aanvaard voor enige onvolledigheid, onjuistheid of anderszins, dan wel de gevolgen daarvan. Alle opgegeven maten en oppervlakten zijn indicatief.
+ toon meer
deze woning is Verkocht

Forel 1 Veenendaal

Forel 1

3907 HP, Veenendaal
Ditters open huis: 5 april 2025 10:00 - 12:00 uur
Landelijke Open Huizen Route NVM: 5 april 2025 11:00 uur - 15:00 uur
Vanaf€ 625.000 k.k.

Schakel een aankoopmakelaar in.

Snel handelen helpt je jouw droomhuis te bemachtigen. Zo vergroot je de kans dat je er op tijd bij bent.
Veenendaal
verkocht

Of maak vrijblijvend een zoekprofiel aan.

Vergelijkbare woningen

Hypotheken

Onafhankelijk hypotheekadvies

  • Ligt jouw droomhuis binnen handbereik?
  • Wil je jouw huidige hypotheek verhogen?
  • Is er hypotheekruimte voor verduurzaming?

Blijf op de hoogte

Ontvang als eerste updates over nieuw aanbod en mis geen enkele kans om jouw droomwoning te vinden.

Gratis waardebepaling of verkoopgesprek

Met de vrijblijvende waardecheck weet je snel waar je aan toe bent. Onze makelaars kijken naar de lokale markt en vergelijkbare woningen in jouw buurt om een goede schatting te geven.

Realiseer al jouw woondromen met Ditters

Wij zijn een team van gedreven vastgoedexperts met een passie voor het maken van verbindingen – tussen kopers en verkopers, huurders en verhuurders. Met een frisse kijk op de makelaardij combineren we expertise met creativiteit. Onze makelaars luisteren écht en nemen de tijd om jouw wensen te begrijpen.


Bij Ditters sta je er niet alleen voor. We denken met je mee, begeleiden je in elke stap en zijn altijd bereikbaar voor vragen. Neem gerust contact met ons op – we helpen je graag verder!